Property Description
Copy and Paste Video Link: https://youtu.be/usDPMwIMpuI?si=LVrgYkhveqwSwVuZ
Discover Hale-O-Ao – a gated and fenced 4-acre retreat in Kaʻū, Hawaii, offering partial coastline views and a self-sufficient lifestyle. This meticulously maintained property features a custom home, a well-equipped workshop, and lush gardens. Perfect for sustainable living, this private oasis blends comfort, security, and the natural beauty of Hawaii.
Main Home & Multi-Family Potential:
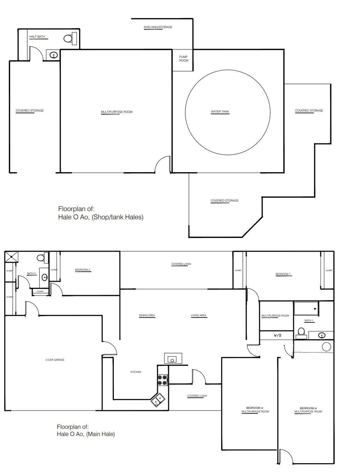
- 2,345 sq. ft. custom home with bonus rooms that can easily be converted into a separate living space with its own private entrance, living room, and kitchen area—ideal for multi-generational living, rental potential, or guest quarters.
- Energy-efficient design with 15 photovoltaic panels (net metering), solar/electric water heater, and underground septic system.
- Spacious kitchen with Hawaiian Koa-trimmed cabinets and Corian countertops.
- Attached 2-car garage with electric roll-up door.
Workshop & Storage:
- 528 sq. ft. woodworking shop with roll up door and a ½ bath, dust collection system, and ample storage.
- Multiple storage areas, including an enclosed attic, exterior storage closets, and a breezeway with firewood storage.
Sustainable Living & Gardens:
- 20,000-gallon rain catchment tank (covered under roof).
- Raised organic garden beds with vegetables, herbs, and mature apple, peach, and plum trees, thornless blackberries, and white pineapples.
- Mushroom-growing greenhouse and two exterior garden storage areas.
- Property is zoned agricultural, allowing for chickens, goats, and more.
Outdoor Lifestyle & Location:
- Amazing rock wall entry with electric gated entry for privacy with full concrete driveway.
- Home is set near the back of the property in a tranquil forest setting.
- Multiple walking trails through native ʻŌhiʻa and Koa forest spread across 4 acres.
- Tiled lanai to relax and enjoy the serene forest view.
- Just 6 miles to Ocean View town (grocery stores, gas, restaurants) and 49 miles to Kailua-Kona.
The cost of living is low with a self-supported septic
system, a 20,000-gallon covered rain catchment water tank, plus a reverse
electricity meter, keeping utility costs low. Property taxes are also low in
this area and appliances are Energy Efficient.
The rural area has an ideal climate with warm days and cool
nights, perfect for enjoying outdoor activities, whether exploring your piece
of the native forest or relaxing on the lanai. There are beautiful walking
trails through the old-growth forest on the property.
This is a rare opportunity to own a fully sustainable paradise in Hawai’i. Low property taxes, energy efficiency, and total privacy make this home a must-see!
PROPERTY HIGHLIGHTS:
| self-sufficient hawaii home | mushroom greenhouse setup | low-tax hawaiian lifestyle | Country Homes | Sustainable |
| multi-generational layout | serene forest & ocean views | solar panels (net metering) | Mountain Property | Luxury |
| organic garden & fruit trees | off-grid water & septic | Coastal Property | Recreational Property |




















































