Property Description
MOUNTAIN HOME IN CO WITH IRRIGATED ACREAGE FOR SALE
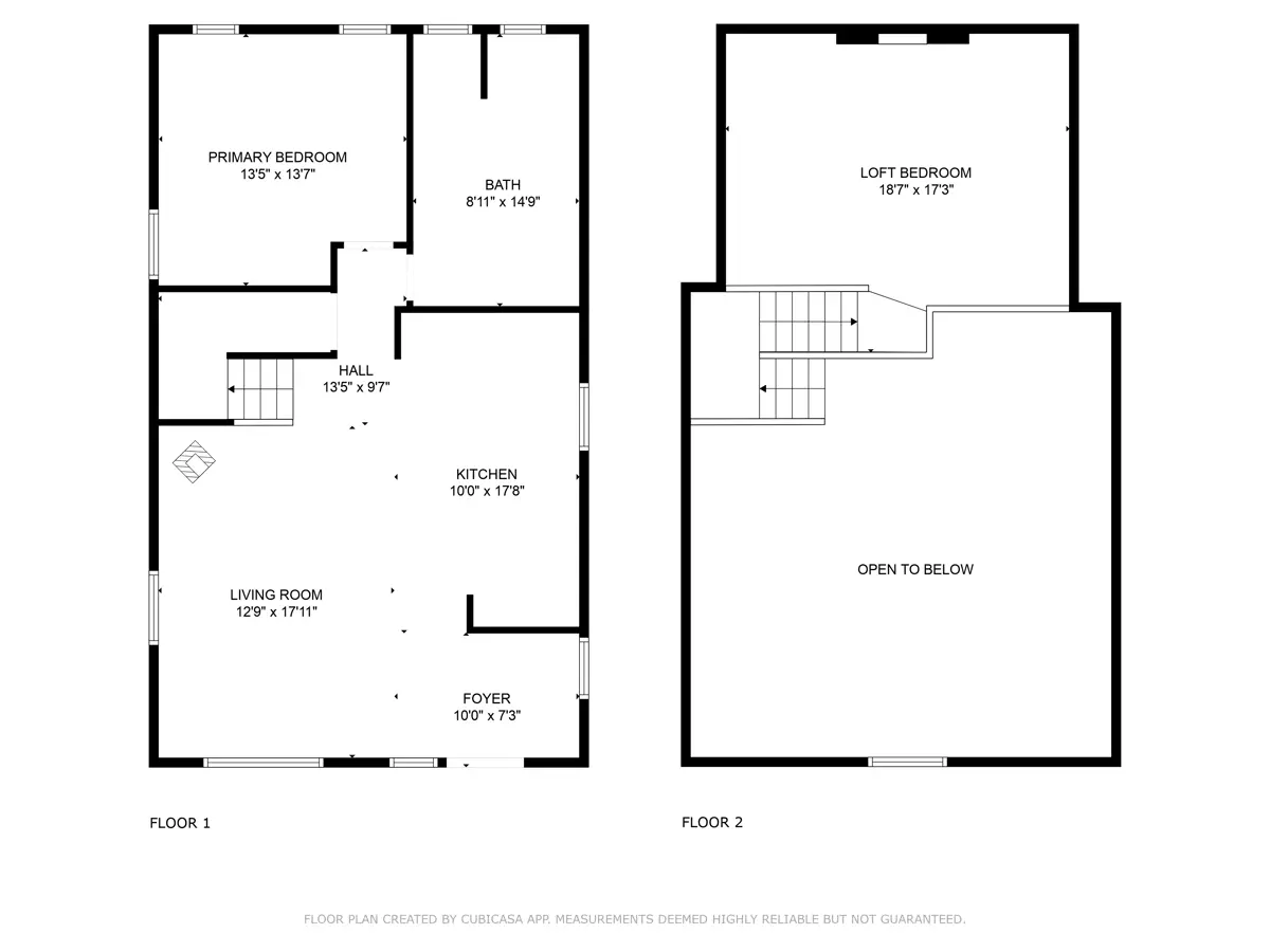
Western Colorado mountain home with custom features on 35 fully fenced acres, with irrigation, and a professional setup for specialty crops. Enjoy quiet and privacy on this rural property yet remain just minutes from the historic western town of Collbran and a short drive to the I-70 corridor for travel, adventure, or residential needs. From I-70, drive Highways 65 and 330 through scenic canyons, along creeks, with frequent wildlife sightings, mountain valleys, and peaceful country roads to reach this home surrounded by pastures with stunning mountain and valley views. This 960 sq ft, 1-bedroom with a spacious loft and ¾ bath offers a well-designed floor plan enhanced by custom craftsmanship—perfect for efficiency in a Colorado country lifestyle. Enter the home through a covered Trex deck porch and a beautiful arched wood door with embellished glass. Step into a welcoming foyer with a built-in wood bench and continue into the open concept living and kitchen areas, framed by custom crafted vaulted wood cross-beamed ceilings. Shiplap walls with an attractive color scheme, decorative lighting, and a pellet stove bring warmth to the home during chilly Colorado seasons. The kitchen features stunning handcrafted hardwood counters with a spacious breakfast bar, stainless steel double-door refrigerator, dishwasher, electric range with vented hood, deep farmhouse sink with arched extended spray faucet, garbage disposal, and under-counter microwave. Custom wood cabinets with shelving nooks and under-stairway storage offer functionality and charm. The large bathroom includes a walk-in tiled shower, vanity, and floor-to-ceiling storage unit. The laundry area includes a Direct Drive Hydroshield efficiency washer and dryer. The main bedroom is conveniently located on the main level. A pine wood stairway leads to a roomy loft featuring a wood ceiling and stained-glass light fixture overlooking the living area. Additional comfort features include a tankless eco-friendly electric hot water heater, large double-paned windows for abundant natural light, window coverings, spray foam insulation, wood laminate flooring, and convection electric wall-mounted heat units. Landline, cell, and internet service are available. UPS and FedEx delivery services are also accessible. Natural terrain landscaping creates ideal outdoor spaces for family activities, entertaining, or simply enjoying the views and frequent wildlife sightings. Stone and wood steps lead to multiple areas including a covered chicken coop and an organic caterpillar-style greenhouse. An underground water system is supplied by a year-round pond. This custom property offers year-round agricultural production and peaceful country living under Colorado blue skies and star-studded nights.
COLORADO HOME FOR SALE WITH PROFESSIONAL SETUP FOR YEAR-ROUND SPECIALTY CROPS
Graveled roadways provide easy access to the fully installed setup designed for specialty crops or various types of agricultural manufacturing—offering year-round production opportunities. Currently set up for a gourmet culinary mushroom operation, the buildings can be adapted for many other uses. Continue to use for a culinary mushroom growing operation, grow specialty crops, or convert to shops, workshops, or other ag-related operations. The infrastructure includes three metal-framed, insulated, blackout greenhouses—two of which are built on concrete slabs with heat, water, and electricity. The third sits on a floating wood-sealed floor, also with heat and electric service. New exterior plastic was put on the 3 greenhouses in 2024. A dedicated propagation, harvest, and packing building includes a tub sink, counters, a walk-in cooler, and a sealed wood-coated floor. Another large building is divided into specialized sectioned rooms for proficiency operations. It features single and double door entries, with each room outfitted with double doors, gas furnace, steam boiler, controlled heating and cooling, sinks, counters, an office area, maintenance room, and storage spaces. The outdoor space includes additional garden areas with organic soil and native terrain. The greenhouses are equipped with 200-amp service and two 1,000-gallon cisterns for agricultural water use. The garden area features efficient drip irrigation systems and water storage tanks for irrigation. The home also has 200-amp service, and a year-round pond is available. A domestic well is in place and could be utilized Environmentally friendly and built for cultivation efficiency, this must see, one-of-a-kind property offers incredible potential and opportunity.
COLORADO WESTERN SLOPE AREA COUNTRY HOME FOR SALE
History is alive with homestead ranches and generational ranching families in the Plateau Valley area. The historic western town of Collbran offers many services and events throughout the year. Highway 330 is the main throughway with local and tourist traffic. Collbran is a historic town with original structures dating back to 1908. Many of these buildings maintain an old-time western front, while others house modern businesses— including a bank, grocery store, post office, restaurants, a fitness center, library, gift shops, motels, auditorium, churches, hardware store, police and fire departments, realty office, weed control service, Forest Service office, feed and supply store, automotive store, schools, medical and emergency clinic, vet services, therapy center, and diner—offering additional services for the community. 4H, FFA, and school events are supported with commitment and enthusiasm from the entire community. Area highlights include Collbran Heritage Days, Cowboy Christmas, numerous rodeos, and the occasional cattle drive through town and along country roads. The nearby community of Mesa also offers restaurants, a community center, salon, churches, post office, RV park with a convenient store and cabin rentals, local produce market, fire department, and plenty of friendly residents. A short scenic drive along Highways 330 and 65 to I-70 leads to Grand Junction and the adjoining towns of Palisade, Clifton, and Fruita—spanning several miles along I-70 with major shopping, colleges, schools, hospitals, a regional airport, and more amenities for residential and business needs. Stop at local museums or visitor centers to learn more about the region’s rich history and offerings. The area is known for mild winters, sunny days, and year-round recreation from the high desert to the nearby mountaintops.
COLORADO COUNTRY HOME FOR SALE NEAR RECREATION
Colorado adventure awaits in every direction, and the Western Slope of Colorado offers a wide variety of recreation for all ages and interests. Nearby Highway 65, also known as the scenic byway over Grand Mesa, crosses the world’s largest flattop mountain. With over 300 lakes, Grand Mesa offers excellent fishing, boating, campgrounds, and lodges, as well as access to hunting units including unit 421, hiking, ATV, and biking trails, plus cross-country skiing and snowmobiling. Birdwatching and wildlife viewing offer great photo opportunities for both amateur and professional photographers. Powderhorn Ski Resort features winter and summer activities. In winter, enjoy skiing and snowboarding for all skill levels; in summer, enjoy biking and hiking trails. The resort also features a lodge, condos, a restaurant, and more. Travel Highway 330 to Collbran and enjoy Vega State Park with year-round recreational activities. Hiking trails and mountain terrain surround Vega Reservoir, where you can fish, boat, or relax along the shore of clear mountain rippling waters behind Vega Dam. Vega Lodge offers cabin rentals, a restaurant, and more. Highway 65 winds through scenic Plateau Canyon to access I-70 and the high deserts surrounding Grand Junction and nearby communities known for hiking and biking trails, Jeeping adventures, dinosaur digs, sports events, seasonal festivals, golf courses, and farmers markets. The popular Jeep trails challenge off-roaders from across the region. The Colorado National Monument is a major landmark with a rimrock drive showcasing stunning rock formations, wildlife, native horticulture, and birdwatching. Orchards and farmlands stretch across the valley into towns like Palisade, Fruita, Clifton, Orchard Mesa, and Fruitvale. Cowboy and early settler history fills the area with tales—both legendary and true—about life on the Western Slope of Colorado.
PROPERTY HIGHLIGHTS:
| Country Home For Sale in CO | Mesa County Property For Sale | Amber Feller 970-986-3863 | Equine Property | Mountain Property |
| Colorado Hobby Farm For Sale | Mountain Home For Sale in CO | Julie Piland 970-985-0913 | Farms for Sale | Luxury |
| Home and Acreage For Sale | Colorado Greenhouse Property | Country Homes | Land for Sale |



















































