Property Description
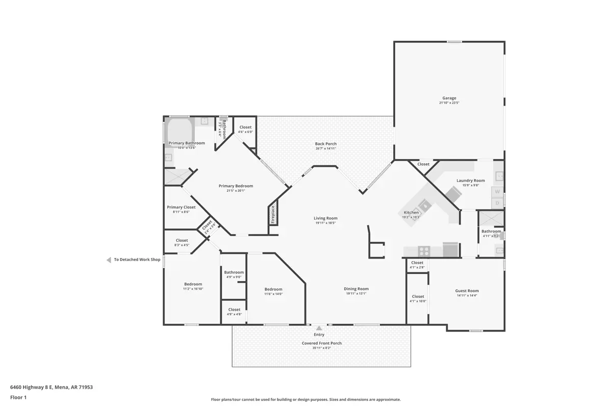
Joining the Ouachita National Forest this 64 acres has all the right touches! Located in eastern Polk County about 25 minutes from Mena this property is a great retirement place. The house is over 2,400 square feet, with two car attached oversized garage, central air and heat, large living room, dinning room, kitchen with custom built hickory cabinets, ceramic tile floor and more. The house has a gas fireplace, covered back porch, covered front porch, central vacuum system and more. The extra touches in this home make it super nice. All walk in showers are custom tile, large walk in closets, solid wood interior doors, etc.
Outside you will find a large 2,400 square foot insulated red iron shop with plumbing and two overhead doors. There is a guest house too, backup generator, and partially paved driveway.
This home sits atop a hill, overlooking the valley below and sits right in the heart of commercial spring water country. The equipment shed/barn is on a pasture below the house. This property is private, secluded, but easy to access. If you are looking for a perfect retirement property, this is it! Excellent hunting on the property to include deer, bear and turkey! Potentially save thousands on extra buyers agency fees, call the listing agent!
Call Christy Titsworth at 479-216-0050 or John Titsworth at 479-234-2304. $850,000
PROPERTY HIGHLIGHTS:
| Private | Wooded | Barn | Equine Property | Recreational Property |
| Creek | Workshop | Custom Built | Hunting | |
| Guest House | Equestrian | Country Homes | Mountain Property |


















































