Property Description
Home on Acreage in Rio Arriba County, NM
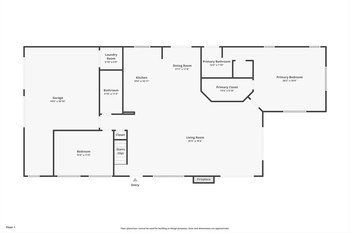
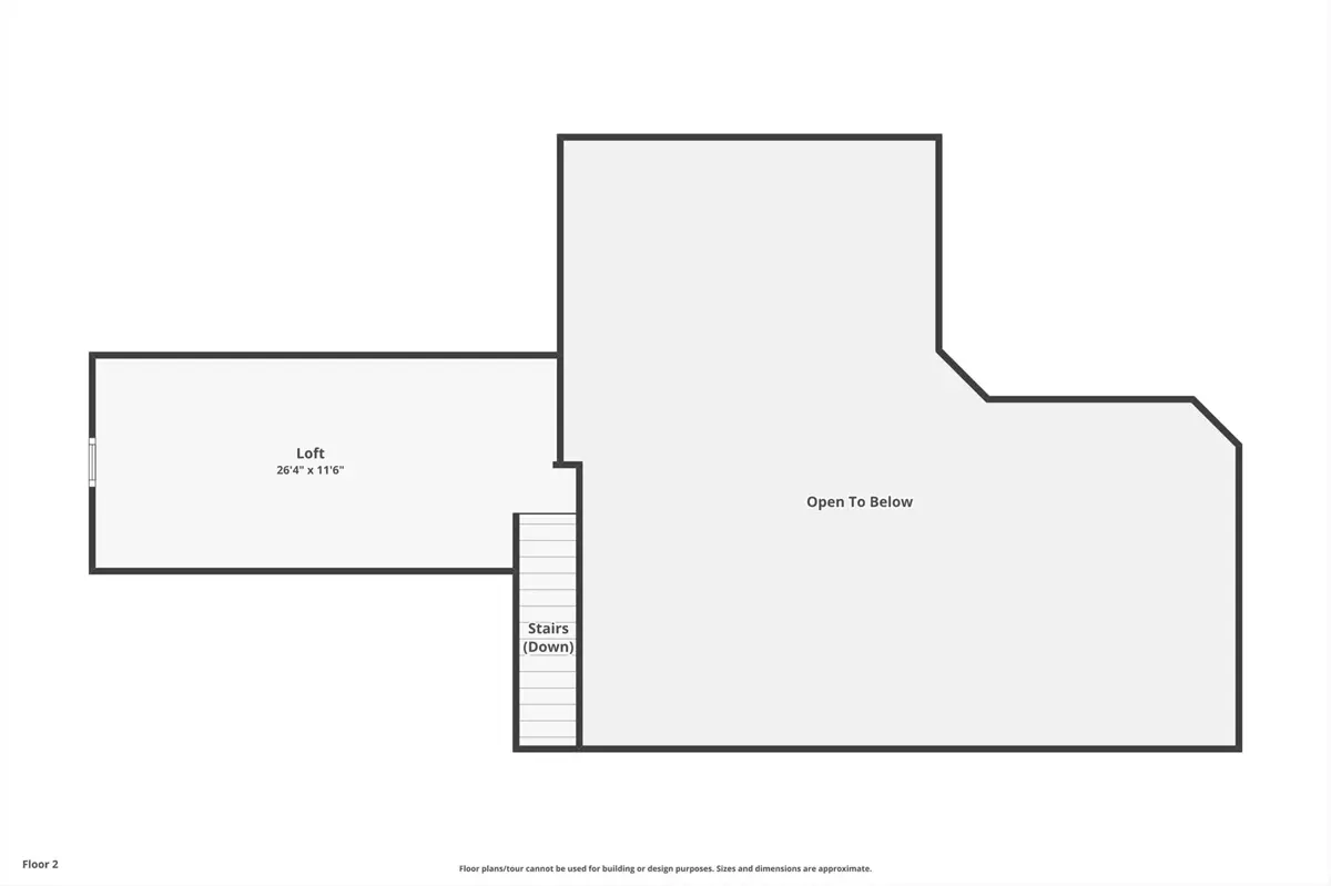
Located north of the Village of Chama, this 24.6 acres has Chama River Frontage on the west, the Cumbres and Toltec Scenic Railroad tracks on the east and it borders a large ranch holding (RDOP) on the north. The property is 2 levels with approximately 12 acres on the upper portion where the house is located and approximately 12.6 acres in the flood plain along the Chama River. Enjoy the amazing views from the covered decks of the spacious and thoughtfully designed D Log home or head down the path to the shade of the cottonwoods along the river. The main floor of the house has an open concept living and kitchen area, 2 bedrooms, 2 bathrooms and attached 2 car garage with laundry facilities. The upstairs is an open loft area, great for overflow company, office or hobby space. The main bedroom has a large walk in closet, an en suite bathroom, complete with a steam shower and soaking tub. The house has in-floor heat and a wood burning fireplace for the chilly winter nights. During the summer, the train departs the train station in Chama around 10am and heads north along the property boundary and returns in the afternoons around 4pm. This is a private location, perfect for the buyer who is looking for a self sustaining property where trout fishing is just down the hill and everything is powered by solar or generator power.
Key Features:
- 24.6 acres located north of the Village of Chama, NM
- Chama River frontage on the west side
- Cumbres & Toltec Scenic Railroad borders the east side
- Main floor: open-concept living and kitchen, 2 bedrooms, 2 bathrooms
- Trout fishing access is close to the home
- Powered by solar or generator
Exploring Chama NM
Chama, New Mexico, is a charming mountain village in Rio Arriba County known for its breathtaking landscapes, outdoor recreation, and rich railroad history. Located near the Colorado border, Chama offers year-round beauty with snowy winters, mild summers, and vibrant fall colors. The area is home to the historic Cumbres & Toltec Scenic Railroad, which winds through stunning mountain and river scenery. Outdoor enthusiasts love Chama for its trout fishing in the Chama River, endless hiking and horseback riding trails, and abundant wildlife viewing opportunities. With its mix of secluded rural properties, riverfront homes, and recreational acreage, Chama is the perfect destination for those seeking a peaceful mountain lifestyle, a vacation retreat, or self-sustaining living in Northern New Mexico.
PROPERTY HIGHLIGHTS:
| Chama NM Home For Sale | Cumbres & Toltec Tracks | Stunning Views | Log Homes & Cabins | Riverfront Property |
| Chama River Frontage | Trout Fishing | 2 Bedrooms, 2 Bathrooms | Land for Sale | |
| Home on Acreage in Chama NM | Acreage For Sale in Chama NM | Country Homes | Mountain Property |

















































