Property Description
Spacious 5-Bedroom Home for Sale in Ocotillo Heights Subdivision of Queen Creek, AZ
22193 E. Via Del Oro, Queen Creek, AZ 85142
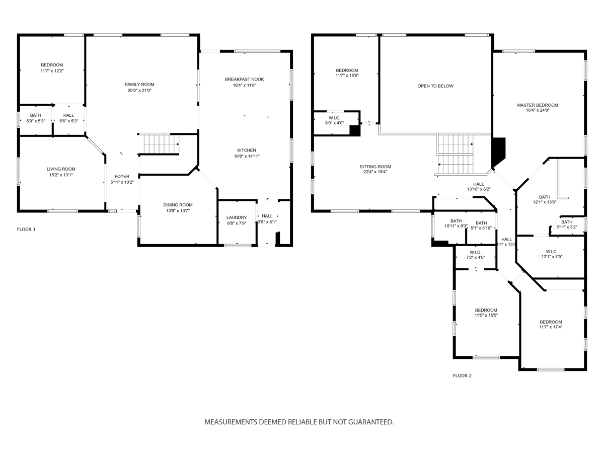
5 Beds | 3 Baths | 3-Car Garage | 3,481 Sq Ft
Built in 2016 | North-Facing Lot | ✅ No Rear Neighbors
✨ Property Highlights
- Located in the desirable Ocotillo Heights neighborhood
- 5 spacious bedrooms and 3 full bathrooms with fresh interior paint
- Downstairs bedroom with full bath – ideal for guests or multi-gen living
- Formal living and dining rooms
- Bright and open family room with vaulted ceilings
- Chef’s kitchen with
- Oversized island
- Ample cabinet and counter space
- Cozy breakfast nook
- Large laundry room with space for a second fridge or freezer
Upstairs Features
- Open loft – great for home office, media room, or playroom
- Expansive primary suite with ample space and privacy
- 3 additional bedrooms with a shared hall bath
Outdoor Living
- Covered back patio perfect for entertaining or relaxing
- Spacious backyard with no rear neighbors
- North-facing lot offers ideal sun exposure and shade
Prime Queen Creek Location
- Next to Queen Creek High School
Minutes from:
- Frontier Family Park
- Pecan Lake Entertainment District
- Shopping, dining, and freeway access
- Parks and top-rated schools
Move-In Ready & Full of Possibilities
This beautifully maintained home blends comfort, function, and convenience in one of Queen Creek’s most sought-after neighborhoods. Whether you’re hosting family gatherings or enjoying peaceful evenings under the stars, this home offers the space and lifestyle you’ve been looking for.
About Queen Creek, Arizona
Queen Creek, Arizona is a vibrant and growing town in the southeastern Phoenix metropolitan area, making it a highly desirable location for homebuyers and real estate investors. Known for its family-friendly neighborhoods, scenic desert landscapes, and excellent schools, Queen Creek offers a variety of real estate options including single-family homes, luxury properties, and new construction communities. With easy access to local amenities, parks, shopping, and nearby golf courses, Queen Creek real estate provides the perfect combination of small-town charm and modern convenience. Whether you’re looking to buy a home, invest in property, or explore the Queen Creek housing market, this thriving Arizona community has something for everyone.
Contact John Payne – Arizona Property & Auction
PROPERTY HIGHLIGHTS:
| 5 Beds, 3 Full Bathrooms | Chef’s Kitchen w/ Island | No Rear Neighbors | Luxury | |
| Downstairs Guest Bedroom | Large Upstairs Loft Area | 3-Car Garage, Built in 2016 | Investment & Income | |
| Vaulted Ceilings in Family | Expansive Primary Suite | Desert Property | Home in Town |












































