Property Description
Home in Town for sale in Willard, Missouri
To View All Listings in The Ozarks Click Here!
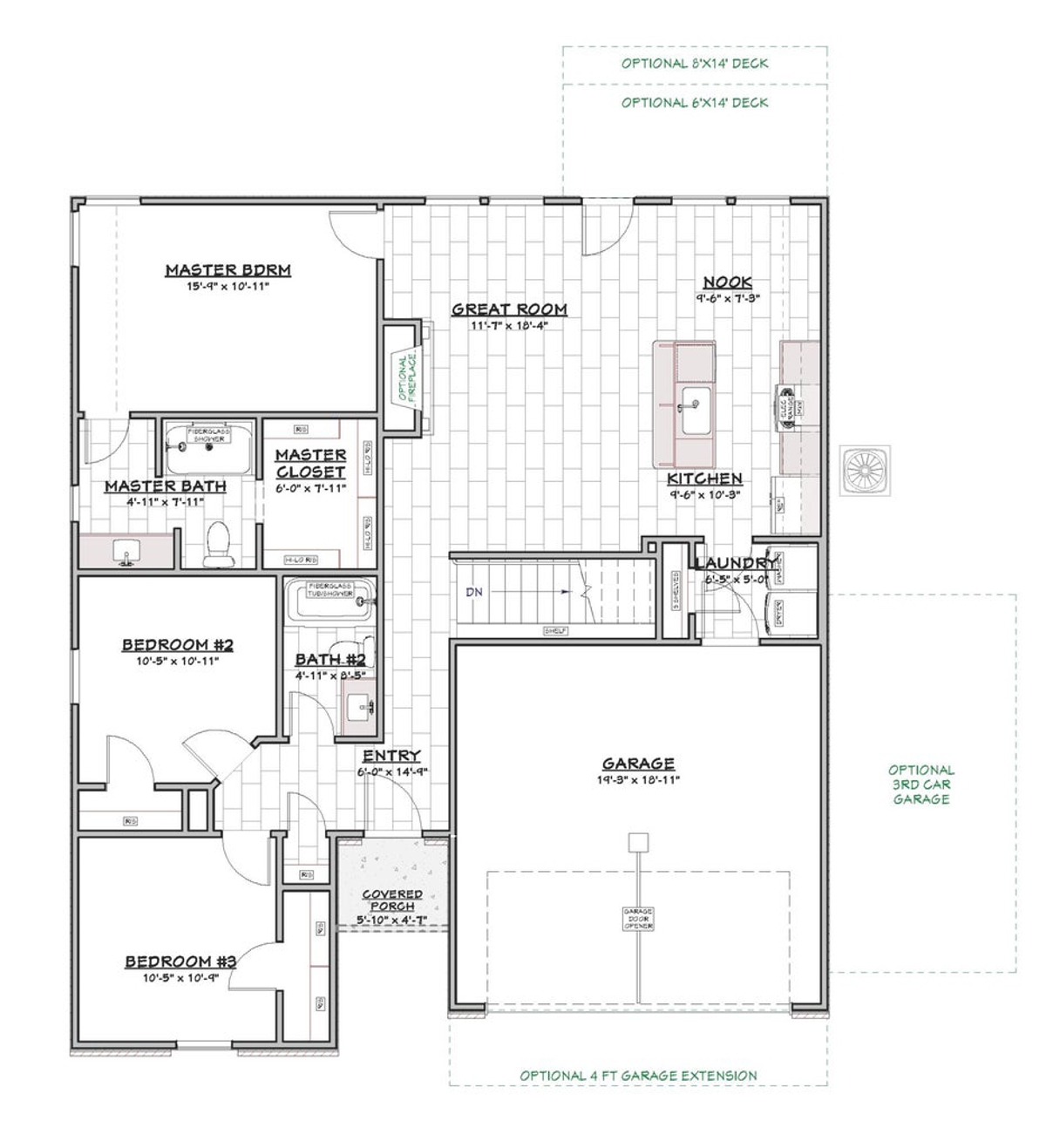
Welcome to this beautifully designed 5-bedroom, 2,218 sq ft home, offering flexible living with
two separate living areas and a dedicated office—perfect for families needing space to work,
play, and relax.
Whether you’re dreaming of a home gym, playroom, office, or even a custom John Deere room,
this versatile floor plan has you covered. Nestled in a sought-after neighborhood with highly
rated schools, this home ensures top-tier education and a strong community feel.
Enjoy the convenience of being just a short walk from Miller Farm Park, where outdoor
recreation and family fun are right around the corner. With ample storage throughout, there’s
room for everything and everyone.
Don’t miss your chance to own this well-appointed home in an unbeatable location—schedule
your private showing today!
Directions: Take the exit onto Highway 160 towards Willard. As you enter Willard, you will encounter a roundabout. Take the exit onto Farm Road 94. Continue on Farm Road 94 until you reach the intersection with Farm Road 88/Hughes Road. Turn right onto Farm Road 88/Hughes Road. As you follow Farm Road 88, you will notice Stone Creek subdivision on your right-hand side.
MLS# 60299171
Greene County, Missouri
Greene County is located in the southwestern part of Missouri and is home to Springfield, the third-largest city in the state and the largest in the Ozarks region. Established in 1833, the county was named after Revolutionary War hero General Nathanael Greene.
Population
Approximately 301,000 (2023 estimate)
Climate
Greene County experiences four distinct seasons, with an average of 210 sunny days per year. The July high is around 89°F, and the January low is near 24°F.
Education
Greene County is home to multiple public school districts including Springfield Public Schools—the largest in Missouri—plus private and charter schools. Higher education includes Missouri State University, Drury University, and Evangel University.
Hospitals
CoxHealth – A top-rated health system offering comprehensive medical services and multiple hospital campuses across the county.
Mercy Hospital Springfield – A Level I trauma center with a wide range of specialized care and advanced facilities.
Electric Company
City Utilities of Springfield – Provides electric, gas, water, broadband, and public transit services to Springfield residents and businesses.
Telecommunications
Mediacom, AT&T, and T-Mobile – Offer high-speed internet, cable, and mobile services throughout the county.
Airports
Springfield-Branson National Airport – Located just northwest of Springfield, offering daily flights to major U.S. cities.
Branson Airport – A secondary option for regional travel, located about an hour south.
Closest Large Cities
Branson, Missouri – 45 miles south, known for entertainment, Silver Dollar City, and Ozark mountain recreation.
Kansas City, Missouri – Approximately 165 miles northwest, a vibrant city with professional sports, dining, and the arts.
St. Louis, Missouri – Roughly 215 miles northeast, home to the Gateway Arch, museums, and historical landmarks.
Fayetteville, Arkansas – Around 120 miles southwest, part of the growing Northwest Arkansas metro area.
Tulsa, Oklahoma – About 180 miles west, known for its arts district and music history.
Things to Do
Springfield Attractions
- Route 66 Birthplace & Museum
- Dickerson Park Zoo
- Fantastic Caverns
- Wonders of Wildlife National Museum & Aquarium
Outdoor Activities
- Nathan Boone Homestead State Historic Site
- Wilson’s Creek National Battlefield – A preserved Civil War site with walking and horse trails
- Lake Springfield Park – Kayaking, fishing, and picnic areas
- Frisco Highline Trail – 35-mile scenic biking/hiking trail
Economy
Greene County has a robust and diversified economy led by sectors like healthcare, education, logistics, technology, and finance. Springfield is home to Bass Pro Shops’ national headquarters and serves as a regional hub for commerce, healthcare, and innovation.
PROPERTY HIGHLIGHTS:
| Home in town MO | Home for sale in the Ozarks | Ozarks United Country | Investment & Income | |
| Home for sale in Greene Co | Home in Town MO Ozarks | Southern Missouri Real Estate | Luxury | |
| Home for sale in Missouri | United Country Real Estate | Home in Town | Retirement & Active Adult |























