Property Description
Nestled along the Suwannee River in the charming small town of Suwannee, Florida, this spacious 2-bedroom, 2-bath dream home boasts an array of incredible features that will make every day feel like a vacation. From the private boat lift to the breathtaking river views, this property offers an awesome waterfront living experience. Don’t miss the opportunity to own your very own piece of Florida paradise.
Directions: From Old Town, head South on SE Hwy 349 towards Suwannee, Turn Left onto SE 219th Street. Turn Left onto SE 909th Ave. House will be on your left. Look for UNITED COUNTRY SMITH & ASSOCIATES SIGN!
PROPERTY HIGHLIGHTS:
| SUWANNEE WATERFRONT HOME | HOME WITH BOAT DOCK | Coastal Property | Fishing | |
| SUWANNEE RIVER FRONTAGE | BRAD SMITH, REALTOR | Recreational Property | Investment & Income | |
| NORTH FLORIDA REAL ESTATE | 352-463-7770 | Riverfront Property | Luxury |
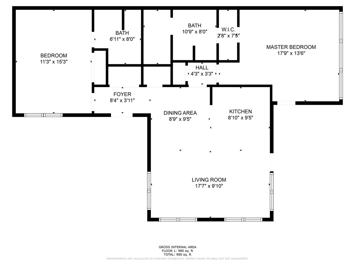
Property Id: 504576
Price: $749,000
Property Lot Size: 0.14 ac
Bedrooms: 2
Bathrooms: 2
County: Dixie County
Lot Size (AC): 0.14000
Year Built: N/A
Listing ID: 09090-89405
Office ID: 2368
Listing Address: 523 SE 909th Ave, Suwannee, Florida 32692
Other Features
.600 acre - 3 lots- prime area
+/- 5000 sq ft Show Room
+/-11
+/-240 Tillable Acres
~35 minutes to Nashville
$19
0.97 Acres
000 +/- feet Stream Frontage
000 COW RANCH
000 SF Shop
000 sq ft Indoor Grow Space
000 sq ft Shop
000 sq ft Two Sided Bldg
000 square feet
000 square feet grow area
000 VEHICLES PASS BY DAILY
000' Marsh Frontage
000+ Sq Ft
033 ACRES
048 sq ft Home
05071-20072
05071-21042
05071-21130
05071-21159
078 ACRE IRRIGATED FARM
1
1 3/4 BTH MFG HOME
1 acre m/l on Hwy 67
1 ACRES
1 bath
1 Generator/2 Water Wells
1 IRRIGATION WELL
1 MILE TOMAHAWK CREEK
1 Pivot Field
1.5 Bath
1.5 Miles of Ozan Creek
1.5 Story
1.5 STORY HOME
1.5 Story Home for Sale
1+ Acre Lot
10
10 acres
10 ACRES TO BE SURVEYED OUT
10 MIN TO CANON CITY COLOR
10 Shade/Loafing Sheds
10 x 15 storage building
10.38 ACRES
10' Ceilings
10+ Acres with city views
100 Acre Cattle Farm for Sale
100 acres for sale in Colorado
100 Contiguous Acres
100% HVAC
100% Native Genetics
100% Tillable Bottom Farm
100%Minerals/Tillable/Pasture
1000+/- Ac
10000 ocean frontage
1008 Lakeshore Dr
100s.f.+/- Office Separate
101+/- Ac
1026 Deeded Acres
104 Ft of beachfront
104ft beachfront
105 ac Dryland
106 Apartments
108 Acres Hunting Land
1080 acres full of wildlife
11 acres
11 Unit Hotel
110 Ac in Spring Wheat
110 Ac Spring Wheat
110+/- Acres Tiled & Terraced
110± acres
113+/- Acres
12
12 Guest Room Bed & Breakfast
12 Stations of Drip
12 Units
120 Acres
120.9 FSA Tillable
125+/- Acres w/ 90+/- Tillable
126.51 ACRES BLYTHEWOOD
129.5 Acres
129.81 Wooded Acres
13 Acres of Land
13 APARTMENTS SURROUNDED
13.04 AC Borders National Park
13+ acres
130 miles of trail system
133+/- in Row Crop
1350 Feet Road Frontage
135acre Lake
14
14 Acre Private Lake
14 garages
14 Studio Apartments
14.96 acres-Talking Rock
140 ACRES FOR SALE NW MO
1426 Ac
1453acre cattle ranch for sale
146 Acres
146.86 Acres
1465+/- Deeded Acres
147+/- Ac
1473 Acres
15
15 - 2 Bedroom Apartments
15 acres
15 acres For Sale
15 MILES SOUTH OF DIAMOND OR
150 ac.
150 Acres
150 Acres to Hunt and Fish
150+/- Acres Timber
1500+ ACRES
152.593 Acres
152+ ACRES
155+/- Ac
157 Acres
158.46± Acres
16 +- acres
16 acres for sale in Oklahoma
16 miles south of Burns Oregon
16.5 Acres
160 Acre Recreational Timber
160 acreage
160 acres for sale
160 AUCTION ACRES
162 AC
162 acres farm
163 Acre Farm
163 ACRES OF LAND
165 +/- Ac Irrigated Pasture
165 AC FOR SALE NW MO
167+ Acres
17 acres
170 +/- Acres of water
173 acres
18 MILES SW OF NORTH PLATTE NE
1800 feet of river frontage
18000 CARS PASS DAILY
1812 acres of land in Missouri
1840 Plantation Home
19 + Acres
190+/- FSA Tillable
1910 Craftsman home for sale
193 Acres
1968 SQ.FT.
1st Street-Waterfront
2
2 - 1 Bedroom Apartments
2 1/2 Bathrooms
2 access
2 Acre Pond
2 BATH
2 Bath home
2 bathroom
2 Bathrooms
2 BEAUTIFUL HOME ON PROPERTY
2 bedroom
2 bedroom/1 bath 850 SF
2 BEDROOMS - 2 BATHS
2 car attached garage
2 Car Garage
2 CAR GARAGES ATTATCHED TO
2 Fireplaces
2 Fishing Lakes
2 Half Baths
2 Homes
2 Homes for Sale
2 houses
2 HVACs
2 LOTS
2 Master Suites
2 MILES OF ROAD FRONTAGE
2 MILES TO GILBERT
2 On-Site Cabins
2 Ponds
2 Ponds for Wildlife/Livestock
2 Ponds with Creek
2 RANCH STYLE HOMES
2 Rentals
2 Soaking Tubs
2 STORY COUNTRY HOME
2 Story Home
2 STORY LAKEHOUSE FOR SALE
2 water features
2 Water Heaters
2 Windmills
2 x 6 Construction w 8" floors
2.07 ACRES+/- 4BD/2.5BTH HOME
2.5 acres
2.5 Acres Vineyard
2.9AC
2/24 Shares Southside Land Co
20 ACRES OUTSIDE SILVER CITY
20 Acres Wooded Land
20 Min from Commercial area
20-40 acre Lots
20-Acre Pivot
20+ Acres for sale
200 finished sq ft
200-300 Head Carry Capacity
200' RIVER FRONT
2000 Planted Pine
2015.37 ACRES
2021 Remodel
21 Acres
21 Acres of Privacy
21 RV CAMPSITES
210 acre cattle farm for sale
2170 acre ranch
224+/- Contiguous Acres
225 Acres Wooded
23 ACRES WINNSBORO
23 miles from Bruns
230 acres
232 Acres
2355 sq ft
239 Acre High Fence Hunting
23x19 Media Room
24 Acres
24 Hour security
24 hours security
24/7 Security
2400 sq ft shop w/ electricity
2450 Feet Marsh Frontage
25 Miles West of Bentonville
25 X 35 SHOP W/GUEST HOUSE
250 Annual Income
250 Cow/Calf Pairs
250 Sheep
250+/- Acres Chillicothe
250K+ trees
26 ac ranch central texas
26 acres lake
260+/- Acres Hunting & Crop
262.12 ACRES
26x46 shed/cement floor
27 Acre Lake
27 ACRES
27 Total Acres
278 Acre High Fence Hunting
278 ACRE HUNTING PROPERTY
278 Acres Maries County MO
28 ACRES OF LAND EAST TEXAS
280 Acre Farm w/ Home
280 ACRES
281.29 ACRES
286 Acre farm in East TN
2880 square foot hanger
29+/- Wooded Acres
2944 Sq. Ft.
2Ba Luxurious Home
2bed/1bath
2nd 2-Car Garage & RV Parking
2nd HOME POTENTIAL
3
3 1/2 Bathrooms
3 BA
3 BATH
3 Bathroom Home
3 Bathrooms
3 baths
3 BD
3 Bdrm/2 Bath Owner's Home
3 Bed
3 BED 2 BATH HOME
3 BED 2.5 BATH HOME
3 BED 3 BATH
3 Bed/2 Bath Home+Mobile Home
3 Bed/2 Bath Hunting Camp
3 bed/2 bath Manufactured Home
3 Bedroom
3 bedroom 2 bath for sale
3 Bedroom 2.5 Bath Cabin
3 Bedroom/2 Bath/2292 Sqft.
3 Bedroom/2 Bath/2632 sqft
3 Bedrooms
3 bedrooms and 3 1/2 baths
3 Big Rig Bays
3 br
3 br/2 bath ranch style home
3 CABINS & OUTBUILDINGS
3 cabins on property
3 CAR GARAGE
3 custom built log cabins
3 HOMES
3 Kitchens
3 Miles of Trails
3 Parcels
3 parcels each 35 acres
3 Phase
3 PHASE ELECTRIC
3 Ponds
3 Ponds (2 Stocked)
3 quality built homes
3 Streams
3 wells
3 Wood Fireplaces Gas Inserts
3-phase power
3.000 + Ft Paved Rd Frontage
3.3 bath
3.5 BA
3.5 Bathrooms
3.9% Return on Investment
3.95 Acres In West Plains mo
3/4 mile of gravel frontage
3+ Miles of Asphalt Paving
3+/- Stocked Pond
30
30 acres
30 x 30 finished shop
30 YEAR TERM WRP
30.79 +/- Acres Includes Timbe
30+ Acre Poultry Farm
30+/- Ac of Farm Fields
300 ACRES
306+/- acres for sale
31/2 baths
320 ACRES
320 ACRES MOL
320 Acres Ranch For Sale
320 acres with cabin
320 Acres with Home & Improve
320 fenced acres
33555 Ophir Rd Gold Beach
33x60 Shop
34.33 Acres
350 acres m/l
3500 Square Feet Under Roof
352 Acres in East TN
353+/- FSA Tillable
354 ACRES
36 - 2 bd/2 ba
360 Acres
360 Degree Views
361 Acres
364.359 Acres
364+ ACRES
37 ACRES FOR SALE CAMERON MO
37.5 ACRES CAMP COUNTY TEXAS
38 acres
39.931 ACRES DEVELOPABLE LAND
391.41 ACRES FORESTED LAND
3ACRES
3BD/3BTH Brick Home
4
4 1/2 baths
4 AC Borders National Park
4 acres
4 ba and 9 car garage
4 Bath Home For Sale
4 bath+ estate home
4 Baths
4 Bed
4 bed & 4 bath
4 BED 5 BATH CUSTOM HOME
4 Bed Home
4 BED/3BATH
4 BEDROOM
4 BEDROOM 2.5 BATH BRICK HOME
4 Bedroom 4.5 Bath
4 BEDROOM BRICK LUXURY HOME
4 BEDROOM COUNTRY HOME
4 bedrooms
4 Bedrooms - 2 1/2 Bathrooms
4 BEDROOMS - 2 BATHS
4 BEDROOMS - 2.5 BATHROOMS
4 BEDROOMS - 3 BATHS
4 Bedrooms 3-1/2 Baths Garage
4 BEDROOMS 4.5 BATHROOMS
4 Bedrooms/4 Bathrooms
4 Full baths
4 HOUSE BROILER POULTRY FARM
4 Houses on Arkansas Ranch
4 Miles South of MSU
4 ponds
4 PONDS/ CREEK/ SPRINGS
4 Poultry Breeder Houses
4 residential properties
4 Tack Rooms
4 tax lots
4.2+ Acres
4.5 BATHS
4.66 ACRES
4.66 ACRES COMMERCIAL
4.7 Acres In West Plains
4+ Miles River Frontage
40 ACRE POULTRY FARM FOR SALE
40 acre Private Lake
40 Acres
40 acres commercial acreage
40 Acres in hay
40 acres SW MS
40 x 70 Shop - 30'x 40 Garage
40-minutes from St Joseph
40'x60' Shop
40+/- Acres - Lafayette County
400 Acres to Hunt and Fish
400 feet of beach
4000 SqFt guest house
409 acres
414.33 ACRES
42000 SQ FT OF LAND ON RT 66
425 Acres Grazing Permits
43 EAST TEXAS ACRES
430 ACRES
44 units
440 Acres M/L
448 ACRES EAST TX LAND
45 MOSTLY WOODED ACRES
45'Schweiss Bifold remote door
450+/- Acres Chillicothe
461 ACRES
468 Acres
47 acres
47 FRANKLIN COUNTY ACRES
4800 SQ FT NEWLY BUILT HOME
482 acres
482± Acres
487 ACRES FOR SALE
49 Acres
490 HIGHWAY FRONTAGE
5 Acres
5 ACRES+/- OF LEVEL OPEN LAND
5 bath
5 Bathrooms
5 bd / 4 Ba
5 Bed
5 BED/4BATH
5 bedroom
5 bedroom + Formal Office
5 bedroom 4.5 baths
5 Bedroom Home OKC
5 Bedroom/3 Bath/2520 Sqft.
5 Bedrooms
5 Bedrooms / 3.5 Baths
5 Bedrooms 3 Full Bath
5 Bedrooms 3 Full Bath Home
5 Bedrooms 4.5 Baths
5 BR
5 BR Main House
5 Brick Buildings
5 OR 6 BR
5 outbuildings
5 Story Complex
5 WEEKEND CABINS
5 wells
5+ AC Lot - NW Madison Co. TN
5+ ACRE LAKE
50 % Mineral Rights
50 acres
50 MILES FROM TULSA
50 Minutes from Kansas City
50+ ac
500 Acre Farm in KY
500 Cow Ranch
500 SF 6 Bed/6 Bath Lodge
500 SQ FT home
500+ of living space
500+/- Feet of Frontage on 289
5000 Deeded Acres
5000sq/ft Home
508 ACRES SECLUDED LOCATION
509.9 Acres
50x57 Shop/Hangar w/ 9' wings
52 acres
55 Acres
55 Acres For Sale
55 Acres of Rolling Fields
55 acres ready for building
5500SF 5 Bedroom Log Lodge
56 platted lots
56 Space RV Park
588+/- acres
5892 +/- total deeded acres
595 Contiguous Acres
5980+/- Acres
5beds
6 ACRE LAKE
6 acre lot
6 Bd 5 Bath
6 Bed Rooms 7563 SQFT
6 Bed/2 Bath Camp on MS River
6 Bed/4.5 Bath Home for Sale
6.41 +/- Acres
6.625 acres
600 ACRE FT OF WATER
600 Head Cattle Ranch
601.3 ACRES IN VIDOR TEXAS
60x45 Workshop
63 ACRES LAND
64 ac For Sale Goshen NY
64 acres with irrigation
640 ACRES MOL
65 Acres Development Tract
65 miles North of Atlanta
6500 sq' building on 1.49 acre
68 Acres+/- w/Creek Frontage
7
7 bedroom
7 Bedrooms
7 MILES EAST OF BEAUMONT
7 pools
7.10 Acres
7.68 ACRES
7.85 Acres
7.99 ACRES COMMERCIAL LAND
7+ Acres
70 Acres Chandler Walnuts
70 ACRES IN EAST TEXAS
700 HEAD CATTLE FEEDYARD
700+ FEET OF WATERFRONT
7009 SQUARE FOOT HOME
710 ac Under Center Pivot
72 Acre Farm
72.5 Acres in Row Crop
720 DEEDED ACRES
7200 SQ. FEET OF LIVING
73 Acres in East TN
73 wooded acres
73.75 +/- Acres
7355 sq ft home for sale
74+ Acres
750 sq ft
765+/- ACRES NATIVE OAK TREES
8
8 - 3bd/2ba
8 Commercial Offices
8 Miles of Water Line
8 PLEX FOR SALE
8 Ponds
8-bedroom home in Paonia
8-plex and 4-plex
8.65 Acres In West Plains
8.8 acres
8+ ACRE LAKE
80 MILES TO BENTONVILLE
80+/- in Row Crop
800 +/- Feet Stream Frontage
800' Road Frontage
800' Saltwater Frontage
800+ Acres
8000 SERIES VALLEY PIVOT
80X80 SHOP WITH APARTMENT
81 acres of woods & Seclusion
8350 total sqft. under roof
84 ACRES
84 Acres in East TN
8400 SQ FEET OF SHOP/GARAGE
8400 SQ. FEET OF LIVING
85+/- Acres of Field Land
87.64 ACRES
88ft of oceanfront
8M Cubic Yards to Excavate
9 Buildable Acres
9 Working Wells
9.943 acres lush pasterland
90 Acres
90 acres Tillable
90.5 ACRES
90+/- Acres Andrew County MO
900-1
900-amp
9000 Feet Kerr Lake Frontage
93 Acres +/-
94.51 ACRES
951 sq ft
96 acres
961 Acre High Fence
97+/- Total Acres
982 feet of IH-35 Frontage
99.4% Acres are Bottom
99.4% of Acres are Bottom
A Log Cabin Lifestyle
Abingdon VA Real Estate
Above Ground Pool
ABSOLUTE ~ NO RESERVE
Absolute Net Lease
Abundance of Wildlife
Abundant Wildlife
ACCESS FROM 5 CITY STREETS
Access to I10
Access to water and electric
Acerage
Acerage For Sale
acreage
Acreage & Resort Like Home
Acreage | Cherokee County
ACREAGE AVAILABLE FOR HUNTING
Acreage Development
Acreage for Hunting
Acreage for sale
Acreage for Sale | Ball Ground
Acreage For Sale Franklin TN
Acreage for sale Idaho Count
acreage for sale in florida
Acreage For Sale in Franklin
Acreage For Sale Lake City
Acreage for Sale Loma
Acreage For Sale Pamlico Co.
Acreage in Arkansas for Sale
Acreage in Cherokee
Acreage in North Georgia
Acreage in Pickens County
Acreage in Santa Clara County
ACREAGE IN THE OZARK MOUNTAINS
Acreage in Town
Acreage in Vacaville
Acreage Lot
Acreage MT
Acreage Off Us Hwy 10
ACREAGE WITH COUNTRY HOMES
ACREAGE WITH PRIVATE LAKE
Acreage with Road Frontage
acres
Across from elementary school
Across from library/college
Across From Walmart
Active gravel quarry for sale
Active Poultry Farm
Adair Co MO Farm For Sale
ADAIR COUNTY RANCH FOR SALE
Adams County hunting land
Adams County Land For Sale
Adams County Timber land
Additional 700 acres
Additional Land Available
Adjacent to Carillon Beach
Adjacent to I-25 Easy Access
Adjacent to Industrial Park
Adjoins Camp Powhatan
Adjoins Nat'l Forest
Ag Exempt
Ag Exempt Taxes
Ag farm for sale northern ca
Ag property for sale Beaufort
AGA COOK STOVE
Agates
Agricultural Exemption
Agricultural Land
Agricultural property for sale
agriculture
Agricultureal Property
Air Park
Air Park & RV Parking
Airplane Runway
Airport
Al
Al Horse Property For Sale
Alabama Mansion for sale
Alabama Row crop Land
ALACHUA COUNTY
Alaska commercial property
Alaska Hunting & Fishing
Alaska RV park for sale
Albany
ALBEMARLE PLANTATION
Albuquerque Santa Fe NM
Alexander County Farm
Alfalfa & Grass Hay Farm
ALFALFA & RYE FARM LISTING
All Coastal Ocean facing units
All Levee Protected
all new windows
All Rented
ALL UTILITIES AVAILABLE
All utilities included
All Woods
Almond Orchards
Almost 3 Acres!
Alternative Energy
Alturas
ALVORD PROPERTIES FOR SALE TX
Amazing Beach Home
AMAZING MILLION DOLLAR VIEWS
Amazing views of lake
American Dream Complex
Amherst Dairy Farm For Sale
Amish Built Cabinets
Amite County Hunting Land
Ample Income
AMSIH MINI FARM
ANADARKO OKLA LAND FOR SALE
AND BEAR HUNTING
Andrew County
ANDREW COUNTY MO SUBDIVISION
Angie Taylor 970-341-1104
Animas Valley
Antelope
antique cars and parts
Apartment Complex For Sale
Appanoose County Farm For Sale
Appanoose County Iowa Land
Appanoose County Land For Sale
Appliance
Appliance & Repair business
APPLIANCES INCLUDED
Approved Subdivision Lots
Approx 1 hr North of Atlanta
Approx. 2 Acre spring fed pond
Aqua Water Co- Water Supply
AR
AR commercial property
AR Country Home For Sale
AR Farm with Ponds & Creek
AR Home
AR office building
AR Pasture Land For Sale
AR Realtree Recreational Land
AR Recreational Land For Sale
AR strip mall on 1.2 acres m/l
Arcadia
Area Known for Good Water
Arena
Arena for Sale in Howell Co.
Arena for Sale in Mt. View
Arizona home for sale
Arkadelphia
Arkansas
Arkansas Country Home For Sale
Arkansas Country Homes
Arkansas Hunting Land for Sale
Arkansas Lake Front Property
Arkansas land 600 acres Ranch
Arkansas land 700 acres +/-
arkansas ranch for sale
Arkansas real estate for sale
ARKANSAS RECREATION PROPERTY
arkansas recreational
Arkansas Recreational Property
ARKANSAS RIVER MINUTES AWAY
ARKANSAS SMALL TOWN RESTAURANT
Artesion Well
Ashland Kansas
Aspen income property for sale
Aspen ski condo for sale
asphalt drive way
Assisted Care Facility GJ
ATTACHED 1-CAR GARAGE
Atv Trails
Auburn AL Cabins For Sale
Auburn Home
AuSable River Otsego County
Austin
Austin stone home
Auto Shop for sale in Arkansas
Automotive salvage yard
Automotive Service Business
Available for Long Term rental
Award Winning BBQ Restaurant
Axtell ISD School District
AZ GOLD CANYON LOTS FOR SALE
AZ VIEW LOTS FOR SALE
B&B for Sale in Va
B&B Log Cabins in North Idaho
B&B/Restaurant/Shop/Airbnb
Backs up to Moundtain
Backyard
Backyard Hot Tub
Balanced cattle ranch for sale
Ball Ground
Ball Ground land for Sale
Bancroft
Bancroft WI
Basement
Basketball Court
Battle Creek
Bayfield
Bayfield County home for sale
BBQ Pit
BBQ Restaurant for Sale
BEACH CONDO FOR SALE
Beach Front
Beach Front Land
Beach Front Lot
Beaches
Beachfront
Beachfront condos
BEACHFRONT PROPERTY FOR SALE
Bean Station
Bear
Bear Hunting
Bear Hunting Tract For Sale NC
Bear Lake Property
BEARS
Beautiful Calm Beachfront
Beautiful Central Oregon Views
BEAUTIFUL COUNTRY INN
Beautiful Home
Beautiful Landscaping
Beautiful Log Home
Beautiful Mountain Views
Beautiful Oak Trees
Beautiful Prime Pastureland
Beautiful views
Beautiful Wood Country Cabin
BECKHAM COUNTY
bed & breakfast
Bed & Breakfast / Lodges
Bed & Breakfast For Sale
Bed and Breakfast for Sale
Bee Business For Sale
Belle Isle Home for Sale
Bentley Square Houses
Benton County
Benton County Land
Benton County Missouri
Benton County MO
Bentonville
BETHANY MO CSTORE FOR SALE
Big Bend Real Estate
Big Black River Frontage
Big Country Home on 160 Acres
Big Island Ka'u land for sale
Big Piney River Frontage
Big South Fork
BIG SPRING
Big timber
Big Whitetail Deer
BIG YEAR ROUND SPRING
Billboard Income
Billion dollar views
Black Hills
Black Hills Land for Sale
BLACK HILLS SD HUNTING LAND
BLACK HILLS SD RANCH FOR SALE
Blacktop Frontage
Blacktop Frotage W/ Entrance
BLM Lease
Blooming Commercial Business
Bloomington Apartment Building
Bloomington Country Home
Bloomington Indiana Hobby Farm
Bloomington Indiana Real Estat
Blountville
Blue Mile of Statesboro
Boarders State Forest
Boarding
Boat Dock
boat docks
boat door
Boat Lift
boat lifts
boat ramp
Boathouse & boat docks
BOATING
Bob Clyde Land Specialist
Bob Clyde Realtree Land Pro
Bob Clyde WI Realtor
Bonifay Florida Hunting Land
Bonus Room
BONUS ROOM & SUNROOM
Booming Resort Town
Boone & Crockett Whitetails
BORDER NATIONAL FOREST
Bordering 6600 acres public
Bordering Pike State Park
Borders BLM Ground
Borders City of Hardeeville
Borders Forest Service
BORDERS MALHEUR FOREST
Borders National Foredt
Borders National Forest
BORDERS THOUSANDS OF ACRES BLM
Bossier Parish Land
BOTH SIDES OF THE RIVER
Bottom land
Boulder CO
BOWIE COUNTY
BOWLING CENTER
Brand new home
Brandon Wikman land specialist
BRANSON MO
Brazilian Cherry Floors
BREATH TAKING VIEWS
BREATHTAKING VIEWS
Breeder Farm Jasper Co
Brewery For Sale
Brick Home
BRICK HOME FOR SALE
BRICK HOME FOR SALE IN TN
Brick home in Howell County
BRICK HOME WITH FULL BASEMENT
Brick House
Brick Multi Tenant Building
Bridlewood Golf Club
Brier Creek
BROILER CHICKEN FARM
Broiler Farm Central MS
Broiler Farm for Sale South MS
Broiler Farm Lincoln County MS
Broiler Farm Neshoba Co
Brook on Property
Browns Valley
Brush
BUC-EE'S
BUCKING BULL RANCH FOR SALE
BUFFALO RIVER LAND FOR SALE
Build a Home
Build Home
Building is fully leased
Building Location Cass County
building new subdivision
Building Site
Built: 2014
Bull Lake
BULL LAKE ACCESS
BULLARD ISD
BULLARD TEXAS CUSTOM HOME
Bullard TX Farm Land for Sale
Bunkhouse/Mother-in-Law Suite
Burke County
Burkesville Kentucky
Business + Real Estate Sale
Business for Sale
Business For Sale in East TN
Business for Sale in GJ
Business for sale in Hope
Business for Sale in MO
BUSINESS FOR SALE IN NE TEXAS
Business For Sale In Pilot Mtn
business for sale in San Angel
Business for sale in Texas
Business for sale in Utah
Business in So Central MO
BUSINESS INVESTMENT
business investment opertunity
Business Opportunity
Business opportunity available
business property
Business property for sale AR
Business Retreat
Businesses for Sale
Butler Co Al Home For Sale
Butler’s Pantry
Butte des Morts + Poygan
Buy all or will split
C STORE FOR SALE MO
CA
CA Acreage For Sale
CA Bee Business For Sale
CA Country Homes
CA Country Homes For Sale
CA Delta
CA For Sale
Ca home for sale
CA Homes For Sale
CA Houses
CA Houses For Sale
CA Land For Sale
CA Remodeled Home
Ca. Gold Country Property
CABIN
Cabin and Cattle Farm
Cabin for Sale Southwest MS
cabin in Ellijay
Cabin investment land
CABIN NESTLED IN TREES
CABIN ON THE CURRENT RIVER
Cabin Site Pikes Peak View
Cabinas Diversion Tropical
Cabins
Caddo County OK Ranch For Sale
Caddo county real estate
Caliche
California
California Acreage
California Bee Business 4 Sale
California Fishing For Sale
California Orchards For Sale
California Property for Sale
call John 502-331-9147
CALL SHERRI @ 580-243-9439
CALL TERRY CALDWELL
Callaway County Country Home
Calm Beachfront
Calvin Oklahoma Real Estate
Cameron
CAMERON MO BLDG FOR SALE
CAMERON MO DUPLEXES FOR SALE
CAMERON MO INCOME PROPERTY
Camp
CAMP SITE
campground
Camping
CAMPSITE
Can be Open for 2021
Can Be Subdivided
canal
Canal Front
Caney Fork River
Cannabis
Cannabis Dispensary
Cannabis dispensary for sale
Cannabis Greenhouse for Sale
cannabis grow
Cannabis Grow For Sale
Cannabis Grow plus Home
Cannabis Property
CANON CITY RANCH BORDERS BLM
CANOPY COVERED BLUESTONE PATIO
Capay Valley
Captivating Private Home
Carao T2-1
Carnegie
Carnegie OK. for sale
Casa Alegria: FLAMINGO BEACH
Casa Cielo Colores de Pacifico
Casa De Iluminacion
casa frente al lago
Casa Petronella
Casa Positive Vibration
Casita/Guesthouse
Casitas over the sea
catering
CATHEDRAL CEILINGS
cattle
CATTLE / HAY RANCH FOR SALE
CATTLE AND EQUINE
Cattle Farm
Cattle Farm For Sale
CATTLE FARM FOR SALE IN MO
Cattle Farm for Sale MS
Cattle Farm for Sale Summit MS
Cattle Farm in Huntsville
CATTLE FARM IN OXFORD
Cattle Grazing
Cattle Grazing Land For Sale
CATTLE OPERATION & EQUIPMENT
CATTLE OR HORSE FARM FOR SALE
Cattle pen and chute
Cattle Pens
CATTLE RAN
Cattle Ranch
Cattle Ranch / Equine Property
Cattle Ranch For Sale
Cattle Ranch For Sale in MO
Cattle Ranch For Sale Missouri
Cattle Ranch for sale Opp AL
Cattle Ranch in Armstrong MO
Cattle Ranch in Southern MO
Cattle Ranch w/Custom Home
Cave Creek AZ Home Auction
Cave Creek AZ Home For Sale
Cedar County
Cedar County Missouri
Cedar County MO Land For Sale
Cedar Lake Home For Sale
Center Pivot Irrigated Land
Centerburg
Central Air
Central Arkansas land
Central Business District
Central Flyway
Central Location
Central Montana Farm Land
Central Montana Home & Acreage
Central Montana Land
Central Montana Living
Central Nebraska Ranch
Central New Mexico
Central New Mexico Land
Central New Mexico Views
Central NM Cattle Ranch
Central Texas
Central Texas Country Home
Central TX land for sale
Central WI
Centrally Located
Centrally located community
Century Farm Missouri Ozarks
Chain O' Lakes
Chain O' Lakes Home
Chama NM Irrigated Property
Chama NM Log Homes for Sale
Chama NM Ranch for Sale
Chama NM Real Estate For Sale
Chapel
Chapel on Site
Charming Farmhouse for Sale
Cheatham County Home FOR SALE
Chefs Kitchen
Cherokee County
Cherokee County TX
Cheyenne Mountain
Chicken Farm Amite County
Chicken Farm Amite County MS
Chicken Farm for Sale in MS
Chicken Farm for Sale MS
Chicken Farm for Sale Wesson
Childcare center for sale
Chillicothe School District
Chris Pinson 970.275.1642
Chuckey
Churchill County Land for sale
Cielo y Mar Flamingo Developme
Cimarron Sneffels Mountains
Cisco Texas Land For Sale
Citrus Properties For Sale
City Skyline Views
City Utilities
CITY WATER
City Water & Sewer
City Water & Sewer Available
Clark County
CLARK FORK RIVER AREA
Clarksville
Class 6 Liquor License
Class II & III Soils
Clay County MO
Clay Patrick 850-693-6610
clearwater river
Clinton County Farm For Sale
Close by to Asheboro
Close Highway 40 access
Close to 30-A
Close to Anton
Close to Beach
Close to Bocas
Close to By Pass
Close to commercial
Close to Commercial Area
Close to Coronado
Close to Coronado Ammenities
Close to Cripple Creek
Close to David City
Close to Divide
Close to Down Town
Close to Florissant
Close to Fort Hood
Close to Hospital
Close to hunting
Close to I-10
close to industrial park
Close to International Tocumen
close to intl. raceway
Close to Los Santos
Close to Medical
Close to Panama America Rd
Close to Panama City
Close to Panama City & Coronad
Close to Penonome
Close to Rio Hato Airport
Close to Ruidoso Downs
Close to School Bus Route
Close to shopping
Close to shopping and medical
close to the beach
Close to town
Close to Walmart
Close to water
Close to Westland Mall
Close to Wineries
Close to Woodland Park
CO
CO Hunting Property
CO Log home on 40 acres
CO RANCH TELLER COUNTY
CO Restaurant For Sale
CO Vacation Home for Sale
Coastal Farmhouse
Coastal Property
COCommercial Building for Sale
COFFEE CO
Coffee farm for sale Hawaii
Coffered & Crown Molding
Colfax For Sale
Colfax Property
Collbran CO land for sale
Colo property for sale Weld Ct
Colo. Mountain Home for sale
Colorado
Colorado Acreage For Sale
Colorado Acreage with Creek
Colorado Business Opportunity
Colorado cattle ranch for sale
Colorado Commercial Land
Colorado Country Home for sale
Colorado development Property
Colorado elk hunting property
Colorado equine property sale
Colorado golf course home
Colorado Guest Ranch For Sale
Colorado Hobby Farm For Sale
Colorado Home
Colorado home with ponds
Colorado Horse Property
Colorado Horse Property For Sa
colorado hunting ranch
Colorado Hunting Retreat
colorado income property
Colorado Investment Property
Colorado Land for Sale
Colorado Luxury Home
Colorado Luxury Home for Sale
Colorado Luxury Private Home
Colorado Luxury Ranch For Sale
Colorado Luxury Retreat
Colorado Mountain acreage
Colorado Mountain Home
COLORADO MOUNTAIN RANCH
Colorado mountain ranch sale
Colorado National Monument
Colorado National Monument Vie
Colorado off-grid living
Colorado outfitting business
Colorado Private Fly Fishing
Colorado Ranch for Sale
Colorado Ranch Home
Colorado Ranch home for sale
Colorado recreation property
Colorado recreational property
Colorado resort for sale
Colorado River Frontage
Colorado River views
Colorado River/ MountainViews
Colorado Shared Amenity Ranch
Colorado Springs
COLORADO SPRINGS AREA RANCH
Colorado Springs Pikes Peak
Coltyn Bettis land specialist
Combination Farm For Sale
Comm property w/ rental inc
Commercial
Commercial + Private Airport
commercial acreage 49009
COMMERCIAL ACREAGE FOR SALE
COMMERCIAL BLDG
COMMERCIAL BLDG FOR SALE
Commercial Building
Commercial Building for Sale
COMMERCIAL BUILDING MIDDLE TN
Commercial Building Missouri
Commercial Buildings for Sale
Commercial Bus. in Ozark Co.
commercial business
Commercial Business For Sale
Commercial Business in Chama
Commercial Corridor C-1 Zoning
Commercial Development 4 Sale
Commercial Development Land
Commercial in Oregon Co.
COMMERCIAL LAND
Commercial Land for Sale
Commercial Land For Sale Iowa
COMMERCIAL LAND FOR SALE OKLA
Commercial Land for Sale SW MS
COMMERCIAL LAND IN MISSOURI
Commercial Land Moriarty Nm
commercial land norman
Commercial land Washington
Commercial Land West Plains MO
Commercial Lease Space
COMMERCIAL LOT
Commercial Lot for Sale
COMMERCIAL MEDICAL FACILITY
Commercial Opportunity
COMMERCIAL OR RESIDENTIAL
Commercial or Residential Use
Commercial or Residential Zone
Commercial Possibilities
Commercial Potential
Commercial Properties For Sale
Commercial Property
Commercial Property Abingdon
Commercial Property For Sale
Commercial Property Hotel
Commercial property Howell Co
Commercial Property Idabel OK
Commercial Property in Alton
Commercial property in Fulton
Commercial Property in Iowa
Commercial Property in Mayo
COMMERCIAL PROPERTY IN SW KS
Commercial Property Investment
commercial property norman
Commercial Property Ocala
Commercial property Ozarks
Commercial property Washington
Commercial Property Wyoming
commercial propertyy for sale
Commercial Real Estate
Commercial real estate broker
Commercial Real Estate ForSale
Commercial Rental Property
Commercial spot for campground
Commercial TIF Development
Commercial Water
Commercial Water Rights
commercial/industrial property
COMMERICAL BUILDING
Commerical Building for Sale
Commerical FOR SALE
Commerical Lot
commerical property
Commerical Property Rockport
Commerical Property Texas
Commmercial
Community Activities
Commute to OKC metro area
Complete Start-up
completely fenced for animals
Completely remodeled
Completely Upgraded
Completly off grid
Compton
Concrete floors
CONNECTED SECTIONS
Connelly Springs
Conservation Easement
Construction
Contemporary Home/bonus room
Contemporary open-concept
Contry Home Sale Chuckey TN
CONVENIENCE STORE FOR SALE MO
convenient location
Convenient to Boone
Convenient to Charlotte
Convenient to Greensboro
Convenient to High Point
Convenient to NWA
Convenient to Roanoke
Convenient to State Park
Cool for Sale
CORNER ACREAGE
Corner Lot
Corner property near I-81
CORNER TRACT
Corrals
Cortez
Coryell County
Costa Luxury home for sale
Costa Rica Business for sale
Costa Rica ranch for sale
Costa Rica Ranch/Farm for Sale
Costa Rica real estate
Cotton and Corn Farm in Texas
Cotton Wheat Farm For Sale
Country Acreage
Country Acreage For Sale
Country Acreages
Country Estate
Country Estate for sale
Country Estate Pere Marquette
Country Estates
Country Estates/Hunting
COUNTRY HOME
Country Home / Country Living
Country Home & 7 Ac. For Sale
Country Home Blue Ridge
COUNTRY HOME FOR SALE
COUNTRY HOME FOR SALE - OZARKS
COUNTRY HOME FOR SALE EAST TX
Country Home For Sale Hugo OK
Country Home for Sale in Floyd
Country Home For Sale in Iowa
Country Home for Sale in MO
Country Home For Sale in NM
COUNTRY HOME FOR SALE IN TN
Country Home for Sale in VA
Country Home for Sale Moscow
Country Home For Sale NY State
Country Home for Sale South MS
Country Home for sale Waupaca
Country Home For Sale West TN
Country Home in Colorado
Country Home in Orchard City
COUNTRY HOME IN SHANNON COUNTY
Country Home in Tennessee
COUNTRY HOME LARGE ACREAGE
COUNTRY HOME MT
Country Home Oklahoma
Country Home on 3 Acres
COUNTRY HOME ON 60 ACRES
COUNTRY HOME ON ACREAGE
Country Home Site
Country Home Site for sale VA
Country Home South Central MO
Country Home w/ 4BR 2BA
Country Home w/ Acreage
Country Home w/ Large Farm
COUNTRY HOME WITH ACREAGE
Country Home with Lake & Land
COUNTRY HOME WITH LAND
Country Home with land in Ky
COUNTRY HOMES
COUNTRY HOMES FLORIDA
Country Homes For Sale
Country Homes For Sale Colorad
Country Homes For Sale Iowa
COUNTRY HOMES IN FLORIDA
Country Homes in Tennessee
Country Homes with Acreage
COUNTRY LIFESTYLE
country living
Country living close to town
Country Properties For Sale
Country Properties in N CA
Country Properties with Land
Country Property
Country Property Atlanta MI
Country Property for sale
Country Retreat for Sale in VA
COUNTRY SETTING
COUNTY
County home for sale
County Road /State Hwy Access
County Road Access
County Road Frontage
Covered Arena
Covered Deck with Views
Covered Decks & Patios
Covered Front Porch
Covered Horse Pens
Covered RV Storage
Cozy 1800's historic home
Cozy Cabin
CRAIG COUNTY RANCH FOR SALE
Crawford TN
CREEK
Creek for Use/Features
CREEK FRONTAGE IN IZARD COUNTY
Creek run through property
Creeks
CREEKS& STOCKED PONDS
Cripple Creek
Crop
Crop Acreage
Crop Acres
Crop Land / Pasture
Crop Rent
CROPLAND
Cross Fenced
Crossville TN
Crown Moulding
CRP
CRP Enrolled
CRP Ground
CRP Ground for Sale
CRP Income
Crystal clear water
Cul de Sac
CUL DE SAC DUPLEXES
Cul-De-Sac Lot
CULTIVATED
Cultivated Land for Sale
Cultivation
CUMBERLAND RIDGE SUB
Cumberland River
Current Ag Exempt.
CURRENT AG EXEMPTION
CURRENT RIVER PROPERTY 4 SALE
CUSTOM
Custom Blinds
Custom brick home for sale
CUSTOM BUILT
Custom Built Beautiful Home
Custom Built Home
Custom Built Home for Sale
Custom Built Home w/Garage
Custom Built Home with Pool
CUSTOM BUILT HOUSE
Custom Built Mountain Home
Custom cabin
CUSTOM CABINETS
Custom construction
Custom Features & Moldings
custom home
Custom Home / Open Floor Plan
CUSTOM HOME BUILT IN 2009
Custom Home for Sale Chama NM
CUSTOM HOME FOR SALE EAST TX
Custom Home for Sale in VA
CUSTOM HOME WITH LAND
Custom Interior
Custom Log and Stone work
Custom Log Home
Custom New Home
Custom Ranch Home
Custom remodel Home
Custom Res Lots
Custon Home
Cypress Brake - Duck Hunting
D'Monaco Luxury Resort
Dade County
Dairy Farm
dairy farm for sale
dairy farm in live oak fl
DALLAS
Danny Thomas (479)841-7041
Davenport Land For Sale
DAVIESS COUNTY MO AC FOR SALE
Davis County IA Land For Sale
Daylight Basement
Dealership
Deck
Deck and Hot Tub
Deeded Acres
Deeded Grazing Acres
Deep Water Bay
Deer
Deer & Turkey Hunting Land
Deer & Turkey Hunting Property
Deer and Turkey Hunting
Deer and Turkey Hunting Land
Deer and Turkeys
Deer farm
Deer Hunting
Deer Hunting Farm For Sale
DEER HUNTING IN ARKANSAS
deer hunting kansas
DEER HUNTING LAND FOR SALE
DEER HUNTING LAND UP STATE NYE
Deer Hunting Oklahoma
Deer Hunting Property
Deer Hunting Property For Sale
Deer Hunting Property in Iowa
DEER TURKEY HOGS
Deer Turkey-Lots of Wildlife
Deer Under Strict Mgt Program
Degray Lake
DeKalb County Home
DEKALB COUNTY MO AC FOR SALE
DEKALB COUNTY MO LAND FOR SALE
Del Rio Hunting Ranch for Sale
DELTA COUNTY TX LAND FOR SALE
DENT COUNTY
Desert climate
Desirable Location
Desoto County Land For Sale
Detached garage/shop
Develop
Developement land Howell Co.
Development
development acreage
development ground
Development Investment
Development Land
Development Land for Cabins
DEVELOPMENT LAND FOR SALE
Development Land For Sale - TN
Development land for sale in
Development Land for Sale MO
DEVELOPMENT LAND FOR SALE OKLA
Development Land in CO
Development Land W Plains
Development opportunity
Development Oppurtunity
Development Parcel
Development Potential
Development Property
Development Property For Sale
Developmental prop. for sale
Dining & Parlor
Dirt road frontage
Distribution Center for Sale
Diverse High & Low Ground
Diverse Planted/Nat Pine Stand
Diverse Wildlife
Diving
DIXIE COUNTY
DIXIE COUNTY FLORIDA
Dixie County Home For Sale
dock
Dodson Creek
Doggy Day Care
Dolores
DOMESTIC & EXOTIC DEER
Doniphan MO homes in town
Dos Rios Golf Club
Double-Sided Gas Fireplace
Double-sided wood fireplace
DOUGLAS COUNTY LAND FOR SALE
downtown Aspen location
DOWNTOWN BURNS OREGON
Downtown City Block
Downtown Franklin Ky.
Downtown Proximity
DOWNTOWN TYLER
Dramatic Views
Driftless
Driftless Region
Drip Irrigated Farm in Texas
Drive-in Cinema
Dry land
Dry Land Farming
DRYLAND CROPLAND
Duck
Duck & Turkey Hunting
Duck Blinds
DUCK HUNTING LAND FOR SALE
Duck Hunting Sloughs
Ducks
Ducks & Turkey Hunting
Duplex
Durango
EAGLES BLUFF SUBDIVISION
EAST OF SPRINGFIELD
East Sister Creek
East Tennessee Land for Sale
EAST TEXA REAL EASTATE
East Texas
East Texas Country Home
East Texas Farm for Sale
East Texas Land For Sale
EAST TEXAS MEDICAL PROPERTY
East Texas Pasture Land
EAST TEXAS POULTRY FARM
East Texas Property for Sale
East Texas Ranch For Sale
EAST TEXAS REAL ESTATE
East TN Cabins For Sale
East TN Country Home For Sale
East TN Farm for Sale Greene
East TN Home with Acerage
East TN Mountain View Property
EAST TX COMMERCIAL REAL ESTATE
East TX Hunting Land for Sale
East TX Land for Sale Lindale
EAST TX LUXURY HOME FOR SALE
EAST TX LUXURY PROPERTIES
East TX Ranch 2 Homes for Sale
EAST TX WATERFRONT HOMES
Eastern
Eastern NC office building
Eastern New Mexico Dairy
EASTERN OK POULTRY FARM
EASTERN OR FARM FOR SALE
Eastland
Eastland Texas Land For Sale
Easy access
Easy Access to I-45
Easy Access to Kansas State
Easy Ride From Coastal Cities
Edgewood
Edgewood New Mexico Easy Acces
Edmond Acreage
EDMOND OK COMMERCIAL PROPERTY
EDMOND OK CORNER LOT FOR SALE
EDMOND RESIDENTIAL DEVELOPMENT
El Dorado County Real Estate
Electric
Electric and Water Available
Electric Available
ELECTRICITY
ELECTRICITY & WELL
Electricity and City Water
electricity nearby
ELEVATED CABIN OR HOMESITE
Elevated land
ELEVATOR
Elk
ELK CITY
Elk Creek
Elk Hunting in GMU 551
ELK RESTORATION ZONE
EMIGRANT MONTANA HOMES
EMINENCE MO LAND
END OF ROAD 360 DEGREE VIEWS
Energy Efficient
Entertainment
Epsarto
Equatrian Property
Equestrian Center
Equestrian Estate
Equestrian Estate on Acreage
EQUESTRIAN ESTATE WEST MONROE
Equestrian Home for Sale
Equestrian Properties For Sale
equestrian property
Equestrian Property For Sale
Equestrian Ranch Southwest MS
Equine
Equine 10 acres Guest House
Equine Event Venue
Equine Farm for Sale
EQUINE FOR SALE
Equine land and home for sale
Equine Property
Equine Property Callahan Co
Equine property for sale
Equine Property For Sale in TN
Equine Property in MO Ozark
Equine Property in Ozarks
Equine Property in Southern MO
EQUINE PROPERTY WITH PONDS
Equine Ranch
Equipment List plus more
Equipment Shed
Eric Seeger land specialist
Established 2018
established business
Established business for sale
Established Location
Established Restaurant
Estancia New Mexico
Estancia Valley Classical
ESTELLINE PROPERTY FOR SALE TX
ETHRIDGE TN
Eureka
EUREKA SPRINGS
Evant
Evant TX
Event Center
Event Center for sale
EVENT VENUE FOR SALE
Excellent Drainage
Excellent Duck Hunting
Excellent Homesite w/ Views
Excellent hunting
Excellent Hunting GMU 63
Excellent Hunting Land
Excellent Hunting Opportunity
excellent income history
Excellent Location
Excellent Perimeter Fencing
excellent ranch improvements
excellent rental history
excellent US50 street frontage
Excellent Vineyard Potential
Executive Home
Executive Home for sale in CA
Executive Luxury Lake Home
Existing Farm
Existing Income
EXIT #1 IN THACKERVILLE
Exotic Animals
Expansive Views
Exquisit finishes
Exquisite Home in Woods County
Exquisite log home
Extra large decks
EXTRA LARGE GARAGE
Fairview TN Home FOR SALE
Family Compound
Family Mountain Getaway CO
Family Retreat
Fantastic Landscaping
Fantastic location
Fantastic Mountain Views
farm
Farm / Land For Sale MO Ozarks
Farm and Hunting Property MO
FARM AND LAND FOR SALE
Farm and Ranch Land
Farm and Ranch w/ oceanview
Farm Equipment Included
FARM FOR LIVESTOCK
Farm for Sale
Farm for Sale 144 Acres
Farm for sale Beaufort Co. NC
Farm for Sale by Fort Peck Dam
Farm for sale Franklin County
Farm For Sale Harrison Co.
Farm for Sale in Arkansas
FARM FOR SALE IN EAST TX
Farm for Sale in Hardeman Co.
FARM FOR SALE IN MISSOURI
Farm for sale in MO
Farm for Sale in Panama
FARM FOR SALE IN PUTNAM CO
Farm For Sale in Seneca County
Farm for Sale in Southen MO
Farm For Sale in Southern Iowa
Farm for Sale in Southern MO
FARM FOR SALE IN TENNESSEE
FARM FOR SALE IN TEXAS COUNTY
Farm for Sale in The Ozarks
Farm for Sale in Tiffin
FARM FOR SALE IN TN
Farm for sale in Virginia
Farm For Sale Kansas
Farm For Sale Marianna
farm for sale Missouri
Farm For Sale NW MO
Farm For Sale Paris Texas
Farm For Sale Southern Iowa
Farm For Sale Taylor County IA
Farm For Sale Vinita Oklahoma
Farm ground
FARM GROUND FOR SALE
Farm ground near Moscow
FARM HOUSE
Farm House & Land for Sale
Farm House For Sale
Farm House in East TN
FARM IN IOWA FOR SALE
Farm in Lee Co.VA For Sale
FARM IN MISSOURI - 183 ACRES
FARM LAND
Farm Land & House for Sale
Farm Land For Sale in TN
Farm Land For Sale Oklahoma
FARM LAND FOR SALE TEXAS
Farm Land in Maury County
FARM LAND IN UPSTATE N.Y.
Farm Land Near New Orleans LA
Farm Property Chocowinity
Farm Property near Delta
farm supply
Farm tract Beaufort County NC
Farm with Acreage for Sale
FARM WITH ACREAGE FOR SALE-MO
Farm with country home
Farm with historic home in VA
FARM WITH HOME FOR SALE
Farm with Rotational Grazing
Farmhouse
Farmhouse For Sale
Farmhouse with Acreage
Farming
Farmland
Farmland For Sale
Farmland for sale Beaufort Co.
Farmland for Sale in Floyd VA
Farmland For Sale in Ohio
Farmland for Sale in SWVA
Farmland For Sale in VA
Farmland For Sale MO
Farmland for sale NC
Farmland near Albuquerque
Farmland SW Wisconsin
Farmland/Open Pasture/Wooded
Farms
Farms for Sale
Farms for sale Beaufort Co. NC
Farms For Sale in Iowa
Farms For Sale Southern Iowa
FARNIMG LAND
Farwell TX Equine Event Venue
Fast Growing Cypress Tx.
Fayetteville
Fayetteville Square
Feature
Featuring 84 Acres
Feeders and Blinds
Fence
Fenced
Fenced & Cross Fenced
Fenced and cross fenced
FENCED AND CROSSED
Fenced pasture
Fenced Property
Fenced Property For Sale
Fenced w/motorized gates
Fenced yard
Few steps from the beach
FIBER OPTICS
finished basement
Finished Walk Out Basement
Fireplace
Fireplace Location
Fishing
FISHING AND BOATING LAKE
Fishing Hunting HIking
fishing properties
Fishing Properties For Sale
Fishing Resort
Fishing Rights
FIVE BEDROOM
Fl
FL Business For Sale
FL HOMES WITH A POND
FL Ranch For Sale
Flamingo Marina Lot
Flat
Flat Land
Flat Lots
Flexible Warehouse Space
Flexible Zoning
Flint Hills Prairie Views
Flood Irrigated Hay Land
Florida
FLORIDA BEACHFRONT CONDO
Florida Deer Hunting Property
Florida Farm Home For Sale
FLORIDA HOME WITH A POND
FLORIDA HOMES
FLORIDA LAND FOR SALE
FLORIDA LOTS FOR SALE
Florida Property near Beach
FLORIDA RIVERFRONT HOMES
FLORIDA VACANT LAND
FLOWING WELLS
Floyd County VA Real Estate
Floyd VA Home for Sale
Floyd VA Land for Sale
Floyd VA Real Estate for Sale
Folsom
FOOD PLOT AREA
Food Plots
For Sale
FOR SALE 80 AC KC METRO AREA
FOR SALE HOTEL DEVELOPMENT
For Sale in Bancroft
For Sale in California
For Sale in Etna Ca
For Sale in Fort Jones
For Sale in Siskiyou County
For Sale in Yreka
For Sale in Yreka Ca
For Sale Luxury Home
Forage Buyers in Proximity
FORESTED WITH HOMES ON 2 SIDES
Formal Dining
Formal Living
Fouke School District
Four Bedrooms Custom Finishes
Four Corners Market
FOUR SEASONS RECREATION
Four Units
FRANKLIN COUNTY TEXAS
Franklin TN Home For Sale
Fredericksburg
FRENCHTOWN SCHOOL DISTRICT
Fresh water Fishing
Front the sea
Frontage on 3 streets
Frontage on Van Dyke & Dryden
FRONTS HIGHWAY
Fruit Trees
FS Access
Ft Leonard Wood Military Base
Full Basement
Full Liquor License
FULL WALKOUT BASEMENT
Fully Compliant
Fully equipped kitchen
Fully fenced wooded acreage
Fully Furnished
FULLY FURNISHED RESTAURANT
Fully Leased Long Term Tenants
Functional Design
Furnished
Future Timber Investment
GA
GA city limits
Gainesville
GAINESVILLE FLORIDA
Gaither Mountain Views
Game Farm
Game Room
Garage
Garden
Gardens & Greenhouse
Garrison Lake home for sale
GAS FIREPLACE
Gas Nearby
Gasconade River
GASCONADE RIVER FRONTAGE
Gated
Gated and private Land
gated commuity
Gated Community
Gated community and safe secur
Gated Community Lake Home
Gated Community Safe Secure
Gated Entrance
Gated Entry
Gated Lake MI Community
Gated Secure Resort Property
Gated/Safe and Secure
Gatesville
Gatesville TX
General Store & Gas Station
Generate income
Generator
Generator and Water Well
Gently rolling farm land
Gently Rolling Land in East TN
Gentry County Missouri
Georgetown
Georgetown home for sale
Georgia
Georgia Southern University
Geothermal
Geothermal & Solar panels
Gift Shop for Sale Chama NM
GILCHRIST COUNTY
Giles County
Giles County VA Home for sale
GILMER
Gilmer County
Gilroy
GMU 22 OTC Hunting
GMU 31 Colorado hunting ranch
GMU 32 OTC Hunting
Go Kart Track
Go Kart Track For Sale
Goguac Lake
GOLD CANYON AZ CUSTOM HOME LOT
Golden Triangle Hunting Ranch
Golden Triangle Ranch
Golf Community
Golf Community home for sale
Golf course
GOLF COURSE AREA
GOLF COURSE FOR SALE
Golf Course Frontage
Golf course home
GOLF COURSE HOME FOR SALE
Golf Course Neighborhood
Golf Membership
Golf Near by
Golf Property
Good Fence
Good Fence and Cross Fence
Good fencing on 3 sides
Good for Farming
GOOD HUNTING
Good Stands of Timber
GOOD TIMBER
Google 05071-21012
Google 05071-21088
Google 05071-21089
Google 05071-21100
Google 05071-21107
Google 05071-21112
Google 05071-21132
Google 05071-21147
Google 05071-21184
Google 05071-21223`
Gorgeous 2nd home on Lake MI
Gorgous view of Pea River
Gourmet Chef's Kitchen
Gourmet Kitchen
Gower
Gower MO New Country Home
Grainger Co.
Grand Junction acreage sale
Grand Junction Luxury Home
GRAND LAKE AREA LAND
Granite Counter
Granite counters
Granite Countertops
Grants Pass Building For Sale
Grass
Grass Land
Grass Land Ranch for Sale
Grass Valley For Sale
Grass Valley Horse Property
Gravel Investment Opportunity
Grayson County
Grazing
Grazing Land
Great 2 story cabin
GREAT ACCESS CLOSE TO TOWN
Great building site
Great Deer & Duck Populations
Great Deer & Turkey Hunting
Great deer hunting
Great Development Potential
GREAT FISHING
Great Horse Property
Great Hunting
Great Hunting Location
Great Income Producer
Great Interior Road System
Great investment
Great Investment Opportunity!
Great Investment Property
Great Location
Great Location on Hwy 16
Great Lodging
Great Pastures
Great Ranch close to town
Great Rental History
Great Return on Investment
Great roads
Great ROI Potential
Great Starter Farm
Great tourism
GREAT VIEW
Great Views
Great Water
Great Wildlife Habitat
Greeme County Mo Luxury Home
Green Acres Subdivision
Greene County Mo Farm For Sale
Greenfield
Greenhouse
Greenhouse & Subterranean grow
Greers Ferry Lake frontage
Grocery Store for Sale
ground water
Grow
Grow Opportunity
growing area
growing neighborhood
Growing Operation
Grows Big Bird
Grows Super bird 9 lb
Grundy County
Guest Cottage
GUEST HOME OR AIRBNB
Guest House
Guest Quarters
Guest Quarters 2 Bed
Guest Suite
Guinda Farm Land
gulf access home
Gulf front lot
gulf home
gulf of mexico homes
Gulf property
Gull Lake
Gym/Fitness Center
Hacienda Nelson Mar Vista
Half of 18 Acre Lake
Hallsville ISD
Hamblen Co.
Hamilton county
HAMILTON COUNTY KANSAS FARM
Hamilton County Land For Sale
Hancock Co
HANDICAP ACCESSIBLE
Handicapped Accessible
HANDY TO FT. SMITH
Hard Surface Road
Hard to find mini farm
Hardwood Bottoms
hardwood floors
Hardwood Timber Land SW MS
Hardwood Timberland Lorman MS
Hardwood Timberland Tract LA
Harvestable Timber
Has Well
hawaii
Hawkins Co.
Hay & Cattle Production
Hay and Cattle Ranch
Hay Farm
Hay Farm For Sale Bascom Fl
HAY FIELDS
Hay Ground
headwater to Jackson River
Heart of Retail District
Hearth Room
Heat Pump w/ Central Air
Heated Bathroom Floors
Heated Indoor Arena
Heated Pool with Diving Board
HEAVILY TRAVELED AREA
Heavily Wooded
Heavy Industrial
Heavy Industrial Lovelock NV
Heavy Industrial zoning
Heavy Power
HEAVY TRAFFIC COUNT
Heavy Trees
Helena Valley
Hemp Farm
Hemp processing
Hemp processing facility
Henry County
Henry Horton State Park
Hensley
Hickory Corners
Hickory/Walnut Kitchen Cabinet
High Ceilings
HIGH FENCE
High Fence Deer Hunting
High Fence Elk Hunting
High Fence Game Ranch For Sale
High Fence Hunting Property
High Fence Hunting Tract SW MS
High Fence Land
High Fenced
High Fenced Hunting Ranch
High Income
HIGH INCOME BUSINESS
High Mountain Meadows
High Net Profit
High Production Farm Ground
High Production Tillable
HIGH PROFILE LOCATION
HIGH QUALITY SUPPLIES
High speed internet
high traffic
High Traffic Area
HIGH TRAFFIC BUSINESS LOCATION
HIGH TRAFFIC CORNER LOCATION
HIGH TRAFFIC COUNT
HIGH TRAFFIC ROAD FRONTAGE
High traffic volume
High Yield Tillable Acreage
High-Quality Land in MO Ozarks
Highest polyphenol olive oil
Highly Managed Area
Highly Tillable
Highly tillable farm Kansas
Highway 19
HIGHWAY 31
Highway 36 Road Frontage
Highway 40 Frontage
Highway 63 Frontage
Highway 63N Road Frontage
Highway frontage
Highway frontage - 250 feet
Highway Frontage Along I-10
HIGHWAY FRONTAGE US-69
Highway Visibility
Hiking
Hiking Biking Skiing
Hiking Biking Swimming
Hiking Colorado
Hiking Hunting Skiing
Hiking Hunting Skiing Swimming
Hiking Swimming Biking
Historic
Historic building
Historic building & area
Historic Business Opportunity
Historic Home For Sale OK
Historic Home in Chiefland
Historic Home in Floyd VA
Historic Home with land
HISTORIC WINNSBORO
Hobby Farm / Farmette
HOBBY FARM CATTLE/EQUINE
Hobby Farm in N. Arkansas
Hobby Farm in The Ozarks
Hobby Farm in West Plains MO
Hocking Hills
Hog Confinements
HOGS
Hohenwald
Holmes County Deer Hunting
Home
HOME - FORMER BED & BREAKFAST
HOME & ACREAGE FOR SALE ARP TX
Home & Acreage in Georgiana Al
Home & Land for sale
Home & land for sale in Odessa
Home & Ranch Country living
Home + up to 200Acrs For Sale
Home and 177 Acres
Home and acreage
HOME AND ACREAGE FOR SALE
Home and land Antlers
HOME AND LAND FOR SALE
Home and land for sale East TX
Home Build Site
Home close to airport
Home for sale
Home for Sale Ava Missouri
Home For Sale Battle Ground WA
Home For Sale Calvin Oklahoma
Home for Sale Cass County
Home for Sale Douglas County
Home for sale east of Chama
Home For Sale Grand Junction
Home For Sale High Rock Lake
HOME FOR SALE HOUSTON TX
Home for Sale in Abingdon VA
Home for sale in Franklin
Home For Sale in Franklin TN
Home for sale in Fruita Co
Home for sale in growing town
home for sale in hermann mo
Home for Sale in McLennan Co
Home For Sale In Pilot Mtn
Home for Sale in Richlands VA
Home for Sale in Russel County
home for sale in San Angelo
HOME FOR SALE IN SHANNON CO
Home For Sale in SW Wisconsin
Home For Sale in Waupaca Co
Home for Sale Jacksonville TX
Home for Sale Lebanon VA
Home For Sale McAlester OK
Home for sale near lake
Home for Sale OKC
Home for sale on acreage
Home For Sale Paris Texas
Home for Sale Pike County MS
Home for sale Pleasant Hill
Home for sale Richland County
Home for Sale St. Francisville
Home For Sale Surry County
Home for Sale West Plains MO
Home for Sale with Acreage VA
Home for Sale with Land in VA
Home in Floyd VA for Sale
HOME IN GATED NEIGHBORHOOD
Home in Northern CA
Home in the Country in Iowa
Home in Town
Home in Town in Doniphan
Home in West Plains Missouri
Home in Willis VA for Sale
home land country property
Home on 150 Ac +/-
Home on 16 Acres Southern MO
Home on 37 Acres in East TN
Home on Acreage for Sale
Home on Land
Home On Site
Home on the Golf Course CO
Home Site
Home surrounded by windows
Home Theater
Home w/ acreage For Sale
Home with Acreage
Home with Acreage for sale
Home With Acres For Sale
Home with an office
Home with creek
Home with Lake views
HOME WITH LAND
HOME WITH LAND FOR SALE
HOME WITH LAND WEST MONROE LA
HOME WITH POOL FOR SALE
Home with shop/ No covenants
Home with two lots
Homes and land for sale in AR
Homes Close To Town For Sale
HOMES FOR SALE ALVORD TEXAS
Homes in Folson
Homes on 3 acres For Sale CO
Homestand
Homestead
homesteader's property
Horse & Livestock Capabilities
Horse Acreage For Sale
Horse Farm
Horse Farm for sale in AR
Horse farm for sale in VA
Horse farm for sale TN
Horse Farm in Ozark County MO
Horse Land For Sale Arizona
Horse Lift
Horse or Cattle Farm Missouri
Horse Properties For Sale CO
Horse Property
Horse Property Edmond
HORSE PROPERTY FOR SALE
Horse property for sale AZ
Horse Property for Sale TN
Horse Property in Alabama
Horse Property in Esparto
Horse Property Northeast OK
Horse property Sauk Cty WI
HORSE PROPERTY WEST MONROE LA
Horse Property with corrals
Horse Ranch
Horse Ranch near Grand Mesa
Horse Ranch South Mississippi
Horse stables
HORSEBACK
horses
Horses Included
Hospital
Hospitality business
Hot Tub
Hot Tub & Outdoor Shower
HOT TUB IN BACKYARD
Hotel across from Train Depot
Hotel development land
HOTEL DEVELOPMENT PROJECT
HOTEL DIAMOND
Hotel for Sale Chama NM
Hotel for sale in Arizona
Hotel Investment For Sale
Hottub
House
HOUSE & DUPLEXES FOR SALE
House and Land for Sale Alva
House for sale
House for sale Hallsville ISD
House for Sale McComb
House for Sale Pike County MS
House for Sale Southwest MS
House for Sale West Felicicana
House for sale with land
House Fully Furnished
House in town for Sale
house needs some work
House with acreage
HOUSTON
HOUSTON TX REAL ESTATE
HOWARD COUNTY
Howard County MO Grazing Land
Howell Co Railroad Spur
Howell Co. Commercial Land
Howell County commercial land
HOWELL COUNTY FARM FOR SALE
HOWELL COUNTY HOME & LAND
HOWELL COUNTY HOME FOR SALE
HOWELL COUNTY LAND FOR SALE
Howell County Luxury Home
Howell County MO Custom Home
Howell County Ranch-Style Home
HSU
HTC has dsl service available
Huacas
Huge inventory
Huge Shop
Huge Views
Hunt County
Hunt Deer Duck in Smith Co TX
Hunt ETX Whitetail Deer & Hogs
Hunt Native TX & Exotic Game
Hunting
HUNTING & FISHING IZARD COUNTY
HUNTING & PASTURE
Hunting & Recreational
HUNTING AC FOR SALE NW MO
Hunting Acreage for sale
Hunting and Fishing
HUNTING AREA
HUNTING AREA UNIT 34
HUNTING CABIN
Hunting Camp for Sale NE LA
Hunting Camp Northern Michigan
Hunting Camp with 408 Acres
Hunting East Texas Wildlife
Hunting Equity Shares For Sale
Hunting Farm
Hunting Farm For Sale NW MO
Hunting Farm in NW Missouri
Hunting Farm with Income
Hunting Fishing Biking Skiing
Hunting Ground
Hunting Ground with Return IA
Hunting guide service for sale
HUNTING IN CALICO ROCK
HUNTING IN IZARD COUNTY
Hunting Land
Hunting land Adams County
Hunting Land Childress County
HUNTING LAND FOR SALE
Hunting Land For Sale Bogata
Hunting Land For Sale Crawford
Hunting Land For Sale in Avery
Hunting land for sale in Fl
Hunting Land For Sale in Iowa
HUNTING LAND FOR SALE IN MO
Hunting Land for Sale in MT
hunting land for sale in Texas
Hunting Land for Sale in TN
Hunting Land For Sale in Troy
Hunting land for sale in TX
Hunting land for sale Irion Co
Hunting land for sale KY
Hunting Land for sale Marquett
Hunting land for sale Missouri
Hunting Land For Sale MS
Hunting Land For Sale North MO
HUNTING LAND FOR SALE OKLAHOMA
Hunting Land For Sale Paris TX
Hunting Land for Sale SW MS
Hunting land for sale TX
Hunting Land for sale WI
Hunting Land in Florida
Hunting Land in Geneva County
Hunting Land in Jonesburg
Hunting land in Missouri
Hunting Land in Oklahoma
Hunting Land in Wayne Co
HUNTING LAND MOUNTAIN STREAM
Hunting Land Near Destin
HUNTING LAND NEAR WHITE RIVER
Hunting Land Northen Michigan
Hunting Land Overton for Sale
Hunting Land Pittsburg Co
Hunting land Richland County
Hunting Land Southwest MS
Hunting Land St. Clair County
Hunting Land Vernon County
Hunting land Vernon County WI
Hunting Leases
HUNTING LIVE STREAM HAY MEADOW
Hunting Lodge For Sale in Iowa
Hunting Lodge for sale in OK
Hunting Lodge on Acreage
Hunting Properties
Hunting Properties Arkansas
Hunting Properties For Sale IA
Hunting Property Callahan Co
Hunting Property for Sale
Hunting Property For Sale MS
HUNTING PROPERTY FOR SALE TX
Hunting Property for Sale VA
HUNTING PROPERTY IN LOUISIANA
Hunting property in TX
Hunting Property Liberty MS
HUNTING PROPERTY N LOUISIANA
Hunting Property Pickens Co AL
Hunting Property South MS
Hunting Property Southwest MS
Hunting property.
Hunting Ranch
Hunting Ranch Chama NM
Hunting Ranch For sale
Hunting Ranch in Pinon
HUNTING RECREATIONAL LAND
HUNTING RETREAT
Hunting tract Beaufort Co. NC
HUNTING TRACT FOR SALE FLORIDA
HUNTING TRACTS FOR SALE FLORID
hunting type
Hunting/Fishing land for sale
Hunting/Recreational Property
Huntsville
HW/Tile Flooring
Hwy 84 Frontage Near Hwy 51
Hwy 90 commercial
HWY FRONTAGE
HWY FRONTAGE PROPERTY FOR SALE
Hydroponics production
I-1 Land for Sale
I-10 Corridor
I-10 FRONTAGE
I-35 Corridor Development Land
IA Tillable Land For Sale
IA Trophy Whitetail Farm
Idaho
Idaho Land
Idaho land for sale
Illinois Farm For Sale
Immediate Income
Impeccable Home in West Plains
IMPROVED GRASSED FOR GRAZING
Improved Pasture
In City Limits
In coronado
In Coronado Golf Beach club
In Ground Heated Pool
In ground pool
IN Ground Pool/backyward oasis
In Isla Contadora
In Panama City
In Penonome Town
in the country
In-Ground Pool / Diving Board
In-ground pool 4x15 meters
In-Ground Saltwater Pool (L)
INCOME
Income generator
Income Potential
Income Producer
income producing
INCOME PRODUCING CHICKEN FARM
Income producing farm
Income Producing Farm For Sale
Income Producing Good Renters
Income Producing Land
Income Producing Property
Income producing tillable farm
Income Property
Income Property for Sale
Income property Grand Junction
Income Propery for Sale
Incredible Location
Incredible location and views
Independent
Indiana Apartments for Sale
Indiana Country Home
Indoor Arena
Indoor Grow
Indoor/Outdoor Grow Space
industrial
Industrial Building For Sale
Industrial Building Howell Co
Industrial Building Wyoming
Industrial Colfax
Industrial Land
Industrial Lot
INDUSTRIAL LOT-MISSOURI OZARKS
Industrial or Manufacturing
Industrial Park Lovelock
Industrial Property
Industrial Property N Florida
Industrial Warehouse for Sale
Industrial Zoning in Live Oak
Inground Pool
INGROUND SALTWATER POOL
INSIDE CITY LIMITS OF LUFKIN
INSIDE PALESTINE CITY LIMITS
Interestate location
INTERIOR CONTENTS STAY
Interstate 10 frontage
INTERSTATE 20 FRONTAGE
Interstate Frontage
Interstate Visibility
INVESTMENT
Investment building for sale
Investment Home McAlester OK
Investment Land
Investment Land For Sale
Investment land for sale in TX
Investment Land For Sale OK
Investment Land For Sale Paris
Investment land for sale Tx
Investment land in North MO
Investment Opportunities
INVESTMENT OPPORTUNITY
Investment Opportunity in KS
Investment Potential
Investment proerty
Investment Property
Investment Property For Sale
Investment Property Hyde Co.
Investment Property in Panama
investment/income
Investment/Income Property
INVESTORS DREAM
Iowa City Home
Iowa Deer Hunting Land
Iowa Farm For Sale
Iowa Farm Land for Sale
Iowa Hunting Land For Sale
Iowa Hunting Property
Iowa Income Producing Farm
Iowa Investment Property
Iowa Land For Sale
Iowa Pasture Land for Sale
Iowa Recreational Land
Iowa Tillable Row Crop Farm
Irrigated
Irrigated Crop & Hay Land
Irrigated Cropland SE Alabama
Irrigated Farm
Irrigated Farm Ground
Irrigated farm land for sale
IRRIGATED FARM LAND SALE
Irrigated Farmland
Irrigated Farmland South AL
Irrigated Hay Land
irrigated hay meadow 8 acres
irrigated hay meadows
Irrigated Mountain pastures
Irrigated Pasture
Irrigated Pastures
Irrigation
Irrigation Included with Sale
Irrigation Pivots
Irrigation system
Irrigation Water Rights
irrigation well
Isla Colon
Island Gourmet Kitchen
Island style peninsula
IZARD COUNTY FARMLAND
IZARD COUNTY RECREATION LAND
JACK COUNTY HUNTING PROPERTIES
JACKSBORO LAND FOR SALE TX
Jackson County Hunting Land
Jackson County Ohio farm
Jacuzzis
James River Front Property
Jason Syens Land Specialist
Jason Syens WI Realtor
Jason Syens Wisconsin Realtor
Jasper
Jefferson City Commercial Land
Jefferson County Mississippi
Jim Vilstrup WI Realtor
joe Nawrot land specialist
Johnson Co. MO Farm For Sale
Johnson County Acreage
Johnson County Iowa Home
Joins National Forest
Josh Genz WI Realtor
Julie Piland 970-985-0913
Just North of Waterfowl Refuge
Just Outside City Limits
Kalamazoo commercial land
Kansas City
KCMO Home For Sale
Kenduskeag Stream
Kennel
Kennel business for sale
Kentucky
Kentucky Horse farm for sale
Kentucky hunting land for sale
Kentucky land for sale
Kentucky recreational land
Kewaunee County hunting Land f
KIAMICHI RIVER
Kiamichi River Frontage
kids log fort
King County Texas
KINGS RIVER
kooskia Idaho home
KS
KS Land For Sale
KY
KY Home For Sale
LA
La Crosse land for sale
La Plata Mountains
LAFAYETTE COUNTY LAND FOR SALE
lake
lake access
LAKE AMISTAD HOME FOR SALE
Lake Business For Sale
Lake Cabin For Sale
Lake Front
LAKE FRONT HOME FOR SALE
LAKE FRONT HOME IN TX
Lake Frontage
Lake Home
Lake Home For Sale
Lake Home In Waushara
Lake Kabetogama
Lake Michigan Real Estate
Lake Murray
Lake of the Ozarks
Lake on Property
LAKE PALESTINE ACREAGE
LAKE PALESTINE HOME FOR SALE
LAKE PALESTINE PROPERTY
LAKE PALESTINE REAL ESTATE
LAKE PALESTINE VACATION HOME
Lake Property
Lake Stockton
LAKE THUNDERHEAD HOMR FOR SALE
Lake View
Lake View and Walk to Beach
Lake View Home in MO Ozarks
Lake Views
Lake Winneconne
Lakefront
LAKEFRONT ACREAGE IN EAST TX
Lakefront Farm Home
Lakefront Home For Sale
Lakefront Home North Florida
Lakefront Home with Acreage
Lakefront house for Sale
Lakefront Living - Wisconsin
Lakefront Lot For Sale in TN
Lakefront Property
LAKEFRONT PROPERTY FOR SALE
Lakefront recreational land AR
Lakefront Resort
LAKES/RIVERS/STREAMS
Lakeside Living
Lakeview
Lakeview Property For Sale
Lamar County Real Estate
Lamb County
Lampasas River
Lamy
Land
Land - 21 +/- Ac.
Land and home near Abilene
Land For Sale
Land for Sale 1hr from NYC
Land for Sale Adams County MS
Land for Sale Amite County
Land for Sale Amite County MS
Land For Sale Bagwell Texas
Land for sale Beaufort County
Land For Sale Bogata Texas
Land For Sale Brookhaven MS
LAND FOR SALE CADDO COUNTY OK
Land for Sale Caliborne Co
Land for Sale Catahoula Parish
Land for Sale Claiborne Co
Land for Sale Claiborne Co. MS
Land for Sale Claiborne County
Land For Sale Clarksville TX
Land for Sale Clayton OK
Land For Sale Colorado
Land for Sale Comanche
land for sale crescent
Land For Sale Dixie Springs MS
Land for Sale Downsville
LAND FOR SALE EDMOND OKLAHOMA
LAND FOR SALE FLORIDA
Land for Sale Franklin Co MS
land for sale franklin county
Land For Sale Gadsden Co
Land For Sale Geneva Co
Land for Sale Greene County MS
LAND FOR SALE HALL COUNTY TX
Land for sale Hallsville Texas
Land for Sale Harrisonburg LA
Land for Sale Hazlehurst
Land For Sale Hill County
Land For Sale Hugo Oklahoma
Land For Sale Idabel Oklahoma
Land For Sale in Almont
Land for Sale in AR
Land for sale in Arcadia
Land for sale in Arkansas
Land for sale in Ava mo
Land For Sale in AZ
Land For Sale in Beaufort Co.
Land For Sale in Benton Co
Land for Sale in Colorado
Land for Sale in Columbia TN
Land for sale in East TX
Land for sale in Eau Claire
Land for Sale in Floyd Co VA
Land for sale in Little Rock
Land For Sale in McGregor TX
LAND FOR SALE IN MISSOURI
Land for Sale in MO
Land for Sale in MO Ozarks
Land for sale in Morgan County
Land For Sale in Mosheim
Land for sale in North MO
Land for Sale in Oklahoma
Land for sale in Olathe
Land for Sale in Panama
LAND FOR SALE IN PUTNAM CO
Land For Sale in Southern IA
Land for Sale in Southern MO
Land For Sale in Tennessee
land for sale in Texas
LAND FOR SALE IN TEXAS COUNTY
Land for Sale in Thayer MO
Land for Sale in Viola
Land for sale Jackson Co Fl
Land for Sale Jasper County MS
Land for Sale Jefferson Co
Land for Sale Jefferson Co MS
land for sale Kalamazoo
Land for Sale Lamar County
Land For Sale LaSalle Parish
Land for Sale Lumberton
Land for Sale Mammoth Spring
Land For Sale McLennan County
Land For Sale Meadville MS
land for sale Mertzon
Land For Sale Mississippi
Land for sale Missouri
Land for Sale Moniteau County
Land for Sale Monroe Co
Land for sale Monroe County
Land For Sale Morgan County MO
Land For Sale Natchez MS
Land for Sale Near Baton Rouge
Land For Sale near Centerville
Land for sale near Grand Lake
LAND FOR SALE NOCONA TEXAS
Land for sale Okaloosa Co Fl
Land for Sale Oklahoma
Land for Sale Panama
Land For Sale Paris Texas
Land For Sale Rogers County OK
Land for Sale Sardis Lake OK
Land For Sale Southern Iowa
Land for Sale St Fracis Co
Land for Sale St Francisville
Land for Sale St Helena Parish
Land For Sale Stover
Land For Sale Stover Mo
Land for Sale Tangi Parish
Land for Sale Tensas Parish LA
Land for sale Vernon county
Land for sale Versailles
Land For Sale Vinita Oklahoma
Land for sale Walton Co Fl
Land for Sale Warren County MS
LAND FOR SALE WAURIKA OKLAHOM
Land for Sale Wilkinson Co
LAND FOR SALE WISE COUNTY TX
Land for Sale Wood County TX
Land for Sale Zachary
Land in Franklin
Land in Middle Tennessee
LAND IN MISSOURI FOR SALE
LAND IN TEXAS FOR SALE
Land in Upton County for sale
land is in coffee belt
LAND IS OPEN AND ROLLING
land near I-35
Land near Midland TX
LAND NEAR NATIONAL FOREST
Land Pushmataha County OK
LAND WITH BLUFF VIEWS OF RIVER
LAND WITH HOME
LAND WITH INCOME FOR SALE
LAND WITH LAKE FOR SALE
Land with Outbuildings
Land- river frontage for sale
Lands End
Landscaped
Landscaped Backyard
Large 5.98 acre lot
Large Acreage
Large acreage for sale
LARGE ACREAGE FOR SALE - MO
Large Acreage in Floyd VA
LARGE ACREAGE IN IZARD
LARGE ARKANSAS ACREAGE
LARGE CAVE ON PROPERTY
Large Colonial style home
Large Contiguous Tract
Large Country Home for Sale
LARGE COUNTRY HOME ON ACREAGE
Large Custom Home
Large Family Home for Sale VA
Large Farm
Large Farm Home
Large farm in Virginia
Large Farm near New River
Large Garage
Large Garage & Storage Space
Large Green Areas
Large Greenhouse
Large Heated and Cooled Shop
Large Home
Large Home for Sale in VA
Large home in town
LARGE INDUSTRIAL SPACE
Large Kitchen
Large Land Tract
Large Lawn Area
Large Neighboring Ranches
Large Pasture Farm
large pond
Large Pond & creek & woods
Large Rooms/Open Concept
Large Sanctuary
Large Shop
Large Shop For Heavy Equipment
Large spring fed pond
Large Texas ranch for sale
Large titled home
Large Tract of Land in AR
Large upscale home
Large Winery Building
Large yard
Larimer County property
LaSalle Parish Louisiana
Laundromat
Laundry Room
Lawndale NC
Lawrence
Lays Great
Leaf Riverfront Land McClain
Lease Income
Lease to Own
Leavenworth County
Legendary 6666's Ranch
Leipers Fork Cottage for sale
Leipers Fork home for sale
Leipers Fork Land For Sale
Leisure housing development
Lengthy Paved Road Frontage
Less than a Mile from Intersta
Less than a mile on gravel
Levee Protected
Level Acreage
Level Land
Level Site w/ pad
LEVEL TO ROLLING
LEVY COUNTY FL
Lewis Co. TN Land for Sale
Lewis County
Lewistown MT Ranch
Lg Acreage Lake Near Zachary
Library
LICENSE TRANSFERABLE
Licensed Hemp Grow
Licensed Hemp Grow Facility
Licenses transfer
Light Industrial or Retail
LIMESTONE FIREPLACES
Limited Commercial opportunity
Lincoln County
Lincoln County Mississippi
Lindale ISD
LINDALE SCHOOLS
Lindsborg Kansas Home For Sale
Lion hunting in Texas
Liquor Store
Liquor store for sale
LIQUOR STORE FOR SALE TN
Listing
Little Bear Creek
Live creek
Live Creeks
Live Oaks
LIVE STOCK ALLOWED
Live Water
Live Water creek/stream
Live Water on TX land for Sale
Live Water ranch Texas
Live Water/ Creek
Livestock
Livestock capabilities
Livestock Farm
Livestock in Blue Ridge
LIVESTOCK R
Livestock Water
Loading Dock
loafing shed
Loam/Sand Mix
Located 2.5 miles from Rome
Located at the end of the road
Located in Idaho County
Located in opportunity zone
Located in Sisterdale
LOCATED IN THE HEART OF
Located in West Tennessee
Located on Busy Hwy. 121
LOCATED ON HWY 67
LOCATED ON STATE HIGHWAY
Located within Arcadia
location
Lock and Leave with Low Maint.
Lodge
Lodge - 5 bdrms
Lodge & Lakes
Lodge for sale in Costa Rica
Lodge for Sale near Heron Lake
Lodge for sale Wisconsin
Lodge Style Cabin
Lodge West Feliciana Parish LA
Lodge/Cabin/Campground
Lodge/Hotel Property
LODGING DEVELOPMENT FOR SALE
log cabin
Log Cabin for sale
Log cabin home
Log Cabin in Saguache County
LOG CABINS FOR SALE
Log Home
Log Home / Custom Log Home
Log Home Delta Colorado
Log Home for Sale
Log Home for Sale in Floyd VA
Log Home For Sale Missouri
LOG HOME IN LASALLE PARISH
Log Home VA For Sale
Log Home with Acreage for Sale
Log Homes
Log Homes & Cabins
Log Homes For Sale Missouri
Log Hunting Lodge
LOG SIDING
Logging Trails
Long Lake
Long Lake - Waushara Co.
Long Range Mountain Views
Long range views
Long standing business
Long Swamp Creek
Long Term Contract
Long Term Lease Option
Long Term Renters
Longleaf Pines
Longview Home
LOOP 256 FRONTAGE
Lorena Texas Land for Sale
Lots available.
Lots of Oak Trees
LOTS OF SEATING FOR CUSTOMERS
Lots of Upgrades
LOUISIANA DUCK HUNTING
LOUISIANA HUNTING PROPERTY
Low HOA
Low property tax
Low taxes
Lucas County Hunting
Lush Landscaping
LUSH NATIVE GRASSES
Luxurious home
luxury
Luxury Artist's Retreat
Luxury built
Luxury Colorado Home for Sale
Luxury Country Home for sale
Luxury Country Homes For Sale
Luxury Custom Home
Luxury Custom Home For Sale
Luxury Estate for Sale WI
Luxury Home
Luxury Home for Sale
Luxury home for sale acreage
Luxury Home For Sale Colorado
Luxury Home in CO For Sale
Luxury Home in West Plains
Luxury Home Middle TN
Luxury Home on Acreage
LUXURY LAKEFRONT PROPERTIES
Luxury Log Cabin
Luxury Log Home
Luxury Log Home & 5 Acres
LUXURY MONTANA HOME
luxury ranch home
Luxury Real Estate in Alva
Luxury Real Estate VA
Luxury Ski Home For Sale
LUXURY WATERFRONT PROPERTY
Lyon County Development Land
Lyon County NV land for sale
Madison County
Magnificent View of Boyd Creek
Mahaska County IA Land
Main floor laundry
Main Floor Master Bedroom
MAIN HOUSE
MAIN HOUSE - 2 BEDROOM CABINS
MAIN HOUSE IS 2499 SQ FT
Maine Timber Land For Sale
Maine Timberland
Maine Timberland For Sale
Maintenance Provided
MAJOR COUNTY ROAD ACCESS
Managed Hunting Farm
Managed Pine/Mature Timber
Managed Whitetail Deer
Manager's House & Bunk House
Manawa WI Home For Sale
Mancos
Mancos River
Mancos Valley
Manger's House & Bunk House
Mansell Road
Manufactured Homes Allowed
Manufacturing Building Howell
MANUFACTURING SITE IN MISSOURI
Many High Profile Businesses
Many Large Operators in Area
Mar Vista Luxury Home for sale
Maries County Missouri Land
Marijuana Dispensary
Marijuana Grow
Maritime concession
Marketable Timber
Marketable Timber at Present
Marketable Timber Land
Marshall County
Marshall County Farm For Sale
Marshall MI Horse Property
Marshall Texas Commercial
Mart TX ranch for sale
Massive Business potential MO
Matthews NC
Mature Hardwood Forest
Mature Hardwoods
Mature hardwoods & Pine Timber
Mature Pines & Hardwoods
MATURE TIMBER
Mature Timber Pine Hardwood
Mature Timberland
Mature Trees
Maury County
Maury County Acreage TN
Maury County Home for Sale
Maury County Land For Sale
Maury County Real Estate
Mayo
MAYSVILLE MO FARM FOR SALE
MCCOY CREEK RUNS THRU PROPERTY
McCrossen Lake Home for Sale
Mclennan County Home For Sale
McLennan County Land For Sale
McPherson County Kansas Land
Meade County Kansas
Meadow Vista For Sale
Meadowlark Ski Resort
Medical District Buildings KS
Medical Grade Standards
Mediterranean-Style Homes
Merrimac WI hunting land
Mesa County Home For Sale
Mesquite
Meticulously Maintained
Mexican cuisine
Mexico Beach
MI
Michael Krieg United Country
Michigan Hunting Land
Middle Tennessee getaway
Middle TN Hunting Farm 4 Sale
Midland Texas Investment
MILD CLIMATE
Miles of Public Road Frontage
Milk River Frontage
Milking Parlor
Mill Creek & Mature Trees
Mille Lacs Resort For Sale
Millen
Mineola Tx
Mineral Rights
Mineral rights included
Minerals
Mini Farm For Sale Surry Co.
Mining
Mining Property for Sale MS
Minutes from Bryant
Minutes from great camping
Minutes from I-35
Minutes to Downtown Phoenix
Minutes to Lake & Yuba River
MINUTES TO POTEAU OKLAHOMA
Mississippi Land For Sale
Missouri
MISSOURI CATTLE RANCH FOR SALE
MISSOURI COMMERCIAL ACREAGE
Missouri Country Home For Sale
Missouri Farm For Sale
MISSOURI FARM GROUND FOR SALE
Missouri Farmland For Sale
Missouri Farms for Sale
Missouri Hunting Land
Missouri Land & Home for Sale
MISSOURI LAND AND HOME
Missouri land for sale
MISSOURI LOG HOME FOR SALE
Missouri Ozarks
MISSOURI OZARKS CATTLE RANCH
Missouri Ozarks commercial
Missouri Ozarks Farm for Sale
Missouri Ranch for Sale
MISSOURI RETAIL LAND FOR SALE
Missouri River Bottom
Missouri River Bottom Farm
Missouri Row Crop Land
MIX OF PASTURE & TREES
Mix of woods and pastures
Mixed Hardwood & Pine Timber
Mixed Use Property for Sale
MN
MO
MO AREA HOME
MO Building For Sale
MO CATTLE FARM
MO Cattle Ranch For Sale
MO Commercial acreage for sale
MO commercial land
MO COUNTRY HOME
MO FARM FOR SALE
MO HISTORIC HOME
MO hobby farm
MO Homes For Sale
MO INDUSTRIAL PARK
MO LAND FOR SALE
MO Ozarks farm for sale
MO Ozarks property for sale
MO Ozarks Self Sufficient Farm
MO Property For Sale
MO ranch for sale
MO Sustainable Property for Sa
MO WEDDING VENUE FOR SALE
MO Whitetail Deer Hunting
Mobile Home
Mobile home on 64 acres
mobile home park
Mobile home park for sale
Mobile Home Park in East TN
Modoc County
Moffat County CO Land For Sale
Moffat County Ranch For Sale
Monroe
Monroe Central Schools
Monroe County hunting land
Monroe County land for sale
Monroe County MS Land For Sale
MONTAGUE COUNTY LAND FOR SALE
Montana
Montana Farm land
Montana Farms for Sale
Montana Hunting
Montana Hunting Property
Montana Land
Montana Land for Sale
Montana Mountain Home
Montana Mountain Property
Montana Ranch
Montana Ranch for Sale
Montana Views
Montana Wildlife
Montgomery County
Montmorency Cty Land for sale
Montrose Ouray Ridgway
Montrose Ouray Ridgway CO
Montrose restaurant for sale
Montrose Ridgway Ouray
Montrose Ridgway Telluride
Monument
Morgan County
Moriarty
Moriarty NM I40 Corridor
Most Ponds Fenced & Tanked
Mostly 0-3% Slopes
Mostly Cleared & Fenced
Mostly Cleared Land
Mostly Open Pasture
Mostly Terraced and Tiled
Motel For sale
Motel Rooms
Motivated Seller
MOUNT VERNON FARM
MOUNT VERNON TEXAS FARM
Mountain
Mountain Cabin Land
mountain cabin with pond sale
Mountain Canyon Edge Retreat
Mountain Cottage Hotchkiss
Mountain Elk and Mule Deer
mountain grazing land
Mountain Home
Mountain Home for sale in Co
Mountain hunting land KY
Mountain Land
Mountain Land for Sale
Mountain land for sale in Ky
Mountain Land for Sale in VA
MOUNTAIN MEADOWS FOR HORSES
Mountain Premier Luxury Home
Mountain property
Mountain Property | Waterfront
Mountain property for sale
Mountain property for sale MT
Mountain Property for Sale OK
Mountain property in Pickens
Mountain Ranch For Sale
mountain ranch for sale CO
Mountain Recreational Property
Mountain Retreat
Mountain Retreat Floyd Va
Mountain Retreat for Sale
Mountain View
Mountain View Home Near Town
Mountain view property
Mountain Views
Mountain Views all around
Mountains
Mountian and Valley Views
Move-in Ready Home
Movie Theatre
MS
MS Riverfront Land for Sale
MS SW MS
MS Timberland For Sale
MT Acreage for sale
Mt. Elba RD East / CR #122
Mudroom/Great room
Mueller State Park
Mule Deer
MULTI BUILDING PROPERTY
MULTI FAMILY HOMES FOR SALE
MULTI FAMILY LAND
MULTI FAMILY RENTAL UNITS
Multi use property Motel Lodge
Multi-Family
multi-family homes
Multifamily Unit
Multifamily Zoning
Multiple buldings
Multiple Creeks Throughout
multiple dwellings
Multiple houses on land
Multiple Office Spaces
MULTIPLE OUTBUILDINGS
Multiple Potential Lake Sites
Multiple Retail Locations
Multiple Uses
Musselshell Land for Sale
Musselshell River Land 4 Sale
N CA Duck Club For Sale
N CA Homes with Pools For Sale
N CA Orchards For Sale
N California Orchards For Sale
N of Geneseo
N. Bishop Ave Road Frontage
N. FL Commercial Building
Naalehu Mauka coffeefarm
Nat'l Forest Boundaries
National Forest
National Forest access
National Forest Boundary
National Forest Frontage
NATIVE GRASSES
Native Ohia forest
NATURAL LIGHT IN BUILDING
Natural Pine Upland Hills
Natural Pine/Hardwood Timber
Natural Spring on Site
Natural Springs & Live Water
Nature
NBA Quality Basketball Gym
NC
NC Business
NC commercial building
NC commercial building for sal
NC commercial prop
NC commercial property
NC investment property Hyde
NC land for sale
NEAR 1-40
Near Bainbridge Island
Near Commercial Area
Near commercial areas
NEAR FAYETTEVILLE
Near Geneva Alabama
Near Harris Beach State Park
Near Hartford Alabama
Near Hiking and Overlooks
NEAR HOSPITAL & SHOPPING
Near I-25 Denver
Near I35
Near Lake
Near Mt. Elba
Near Multiple Local Amenities
Near Municipal Airport
Near Ohio River
NEAR PICKWICK LAKE & SHILOH
Near Ruidoso NM
near Seaside
Near Telluride Ski site
Near to Beach
Near to commercial Area
Near Tularosa
near Walmart Supercenter
NEAR WHITE RIVER
NEARBY LAKES
Nebraska Cannabis Property
Nebraska Greenhouse for Sale
Nebraska Ranches
NEBRASKA RESTAURANT
Nebraska Sandhills
NEBRASKA STEAKHOUSE
NEMO Farm w/ Home For Sale
NEMO Tillable Acreage For Sale
Nevada Horse property for sale
Nevada land for sale
Nevada Ranches for sale
Nevada water rights for sale
New Appliances
NEW CONSTRUCTION
New Construction 2020
New Hardie siding
new hardwood floors
New Home for sale
NEW LONDON FARM FOR SALE
New Mexico
New Mexico Horse Property
New Pine Creek
NEW PRINCETON OREGON
NEW ROOFS IN 2021
NEWBERRY FLORIDA
newer arena
Newer built home
Newer Covered Storage Sheds
NEWER FARM
Newer Fences
NEWER FENCING
Newly built 2017
Newly Renovated Home
Nice layout
Nice views
Niles
Ninnescah River
NIOBRARA RIVER
Niobrara River Frontage
NM
NM Dispenser License
No Floodplain
No HOA
No HOA or Covenants
NO HOA's or Covenants
No. Cal Lake Property
No. Cal Land for Sale
norman commercial land
norman land for sale
Norris School District
North Arkansas Estate for sale
North Central AR Land for Sale
NORTH FLORIDA HOMES FOR SALE
NORTH FLORIDA LAND
NORTH FLORIDA LAND FOR SALE
North GA
North Georgia
North Georgia Mountain home
North Idaho Rural Property
NORTH MO FARM FOR SALE
NORTH MO HUNTING LAND
NORTH MO LAND FOR SALE
NORTHEAST EDGE OF VIDOR TEXAS
NORTHEAST TEXAS
Northeastern CA
Northern CA Commercial Land
Northern CA Homes For Sale
Northern CA Hunting Properties
Northern CA Land
Northern CA Luxury Properties
Northern CA Orchards for Sale
Northern CA Properties
Northern CA property
Northern CA Ranch Properties
Northern CA Single Story Homes
Northern California For Sale
Northern Idaho Custom Home
Northern MO Farm For Sale
Northern MO Hunting Farm
Northern New Mexico Land
Northern NM Hotel for Sale
Northern NM Hunting Land
Northern NM hunting property
Northern NM Ranch Property
Northwest Arkansas
Northwest Arkansas acreage
NORTHWEST ARKANSAS FARM
Northwest Arkansas Hobby Farm
Northwest Arkansas Real Estate
Northwest MI Hunt Camp
Northwest Montana
now Titled
NV Commercial Land For Sale
NV Industrial Land For Sale
NV Recreational Land For Sale
NV Residential Land For Sale
NW IL
NW Missouri Farm For Sale
NW Missouri Hunting
NW Missouri Hunting Farm
NW Missouri Row Crop Farm
NW MO
NW MO AC FOR SALE
NW MO CRP
NW MO Custom Home on 7 Acres
NW MO Excellent Hunting
NW MO FARM FOR SALE
NW MO INCOME PROPERTY FOR SALE
NW MO Land & Home For Sale
NW MO ROW CROP AC FOR SALE
NW MO SUBDIVISION FOR SALE
NWA
NY Finger Lakes Farm For Sale
Oak Grove MO Development Land
OBU
ocean
Ocean and Marina views
Ocean and mountain view
Ocean front
Ocean View
Ocean View Living
Ocean View Peaks
Ocean Views
Ocean/Mountain views
Oceanfront
Oceanfront home for sale
Oceanfront Property
Oceanview Home For Sale
Ocena Front
Ocena Lot
Odessa land and home for sale
Off Grid
Off Grid Bug out Place
OFF GRID HOME FOR SALE
off road
Off-Grid Group Destination
Off-Grid potential
Off-Grid Property
Off-grid Sustainable Cabin
Off-grid sustainable property
Office
Office Building On 2 Acres
Ohio
Ohio Farm for Sale
Ohio Hunting Properties
Ohio Hunting Property
Ohio Realtree Land Pros
Oil & Gas
Oil & Gas land for sale in TX
OK
OK BUILDING FOR SALE
OK LAND FOR SALE
OK Restaurant
OK Trophy Whitetail Hunting
Ok. home for sale
Ok. real estate
Okanogan River
okla Commercial propert
OKLAHAOMA COUNTRY HOME
OKLAHOAM PANHANDLE FARM LAND
oklahoma build site
Oklahoma Country home for sale
Oklahoma Hunting land for sale
OKLAHOMA HUNTING PROPERTY
oklahoma land for sale
OKLAHOMA LAND FOR SALE RANCHES
Oklahoma Ranch
Old Farm House
Old Farmhouse
Old growth forest
Old Stage Road
Old west ghost town
Olive Grove for sale CA
OMMA licenses
On the Duck River
On-Grid
ONE CONTIGUOUS BLOCK
One-Story Living
Online Auction 8/26 6PM
OPEN AND WOODED
OPEN CONCEPT
Open Floor Concept
Open Floor Plan
Open Floor Plan w/ gourmet kit
Open Garage
Open layout
OPEN SINCE 1982
Operatiing resort
OR
Or luxury Resort
Orchard For Sale
Oregon Co. Commercial Property
Oregon County Farm for Sale
Organic Dairy Farm For Sale WI
ORGANIC FARM FOR SALE
Organic Farm Ground
Organic Hay
Organic Walnut Orchards
Osage Creekfront
Otis Orchards near Id and WA
Ouachita Nat'l Forest
Ouachita National Forest OK
Ouachita River
Ouachita River Frontage
Ouray Ridgway Montrose
Ouray Ridgway Silverton
Outbuildings
Outdoor Arena
OUTDOOR ENTERTAINING
OUTDOOR ENTERTAINING AREAS
Outdoor Entertainment Area
Outdoor Kitchen
Outfitting business for sale
Outside City Limits
outside wood furnace
Outstanding Fishing
Outstanding Hunting
Outstanding Owner Stewardship
Outstanding Rental History
Outstanding Sales & CAP Rates
Over 1
Over 3
OVER 69 EAST TEXAS ACRES
Over 8
OVER HALF MILE OF BLACK RIVER
Over the sea concession
Over the Sea restaurant
Overlooking El Vado Lake
Oversized Garage
Oversized lot/Irrigation
OWC 50% down
Owner Financing
Owner Financing available
OZARK COUNTY HOME
Ozark County MO Farm for Sale
Ozark County MO Land for Sale
Ozark Mountain land for sale
Ozark Mountain Views
Ozark Mountains
Ozarks Farm for Sale
Ozarks Livestock Property
Ozarks Property for Sale
Ozarks Ranch for Sale
Ozarks Restaurant For Sale
Pageland SC
PALESTINE TEXAS
Palmer Lake
Palouse dry land farm ground
Palouse dryland farm ground
Panama city
Panama City Beach Westside
Panama Properties
Panola County Texas
Panoramic Views
Paonia CO historic home sale
Parade of Homes Colorado
Park
Parking
Parkville Home For Sale
Partially Furnished
Partially Timbered
pasture
Pasture and Woodland
Pasture For Sale in Iowa
Pasture For Sale Southern IA
Pasture For Sale Southern Iowa
PASTURE LAND FOR SALE
Pasture Timber
Pasture with Hunting in Iowa
PASTURE/ FARM
Pastureland Near Baton Rouge
Pastures & Fruit Trees
PATIO
Paved Parking Lot
Paved Road
Paved road access
PAVED ROAD FRONTAGE
PAWN SHOP FOR SALE IN TN
pays itself
peaceful
Peaceful Area
PECAN ORCHARD
Pending Riverfront Land
Penelope ISD Schools
PERC Test Completed
Perfect Apartment Living
PERFECT FOR HORSES/CATTLE
Perfect Location In Town
Perlas del Pacifico
Permitted 2018 AG building
Pharmacy Commercial Property
Phenix Twnshp
Phillips County Saco MT
Pickens
Pike County Ohio Land for Sale
Pike National Forest
Pikes Peak
Pikes Peak Views
PIKES PEAK-MT PISGAH VIEWS
Pilot VA Land for Sale
PINE TIMBERLAND INVESTMENT
Pinehurst Subdivision Home
Pinnacle NC home for sale
Pipe fencing
PIPE FENCING AROUND HOME
Pipeline
PIVOT & WHEEL LINE IRRIGATED
Pivot about 273 Acres
Pivot and Wheel Lines
PIVOT IRRIGATED
PIVOT IRRIGATION
PIVOT IRRIGATION FARM KS
PIVOT IRRIGATION OKLAHOMA FARM
Pivot Irrigation Systems
PLANO
Plantation Shutters
Platte County
PLATTE COUNTY MO 80 ACRES
Playa Potrero Beachfront Lot
Pleasant Hill Land For Sale
Pleasant Hill School District
Plus Den/4th bedroom
Pond
POND AND CREEK ON PROPERTY
Pond Bordering Lawn
Ponds
Ponds & Active Creek
Ponds and Watering Tanks
Pool
Pool & Hot Tub
Pool and Clubhouse
POOL HOUSE WITH KITCHEN & BATH
Pool w/ screen enclosure
Pope and Young Bucks
Popular Business in MO Ozarks
Port Gibson
Port Orford
Port Royal Sound
Portage Co
Portage CO Dairy Farm For Sale
Portage WI Land for Sale
Portales New Mexico
Possible 5th Bedroom
Possible Mixed Use Tract
Possible Residential Dev.
Potash
POTEAU
Potential Bed and Breakfast
Potential Farm Land
Potential for Subdividing
Potential Income
Potential Income Property
Potential to rezone
Poultry 2 Breeder House Farm
Poultry Broiler Farm for Sale
Poultry Farm
Poultry Farm 6 House Broiler
Poultry Farm Bogue Chitto MS
POULTRY FARM EAST TEXAS
Poultry farm for sale
Poultry Farm for Sale Leake Co
Poultry Farm for Sale Louin
Poultry Farm for Sale MS
Poultry Farm for Sale SW MS
Poultry Farm for Sale Terry MS
Poultry Farm with Pastureland
Poultry Farms
Poultry/Cattle Farm Central MS
Powell Valley Farm for Sale VA
POWER
Power Installed
Prairie Pot Hole Amenities
Predominantly Amarillo Soils
Premier Cattle Property in MO
Premier Coastal Home
Premier Hunting Property
Premier property in Costa Rica
Premier rural real estate Bath
Premiere Facility
Premium appliances
Premium Border location
Premium Missouri Cattle Farm
PRESTIGIOUS GLENDOWER COURT
PREVIOUS - SAWMILL
Pride of Ownership
Prime Commercial Property
PRIME COMMERCIAL SITE
Prime Deer and Turkey Hunting
Prime Development Location
prime development potential
PRIME INVESTMENT PROPERTY
Prime Land 4 com. development
PRIME LAND IN ROGERS COUNTY
PRIME LOCATION
PRIME MEDICAL PROPERTY
PRIME OZARKS COMMERCIAL SITE
PRIME REAL ESTATE
Pristine Semi-Private Lake
Privacy
PRIVACY HOMES FOR SALE
Private
Private & Secluded Setting
Private 10 Acres For Sale
Private 11 acre lake
PRIVATE ACCESS
Private Acreage Near Town
Private and secluded
PRIVATE AUCTION - BID BY PHONE
private Bay access
Private Cabin
PRIVATE COUNTRY HOME SITE
Private Dock On Lake
Private Elevator
Private fishing lake
Private Gated Community
Private helipad
PRIVATE HILLTOP SETTING
Private home in Kentucky
Private Hunting Retreat
Private Lake
Private Lake Fishing
Private Location
Private Log Home
Private Lot
Private Luxury Estate
PRIVATE MOUNTAIN HOMESITE
Private Well
Private Yard
Processing
Productive Cattle Ranch
Productive Cattle Ranch NE TX
Productive Crop Land
productive farm land
Productive Soils
Profitable business
Properties in Yolo County
property
Property for Sale
Property for Sale Bay Springs
Property for Sale Clayton LA
Property for Sale Copiah Co MS
Property for Sale Crosby MS
Property for Sale in AR Ozarks
Property for sale in Bear Lake
Property for sale in Howell Co
Property For Sale in Kansas
Property for sale in Missouri
Property For Sale in NC
Property for sale in North FL
Property for Sale Jefferson Co
Property for Sale Kentwood
Property for Sale Loman
Property for Sale Lorman
Property for Sale Lowell
Property for Sale Natchez
Property for Sale Port Gibson
Property for Sale Roxie
Property for Sale Roxie MS
Property for Sale South MS
Property for Sale Southeast MS
Property for Sale Southwest MS
Property for Sale Sumrall
Property for Sale SW MS
Property for Sale Union Parish
Property for Sale Vicksburg MS
Property for Sale Widener
property in mayo
Property Near Baton Rouge LA
Proven Income Property
Pryor
Public Land Access
Public path/Escarpment trail
Public water available
Pulaski county acreage
Pulaski County Hunting Land
Pushmataha land for sale
PUTNAM CO
QDM area
Quality Class II and III Soils
Quality Construction
Quality Row Crop. Strong NCCPI
Quality Soils
Quartz Counters
Quartzsite AZ
Quiet
Quonset
QUONSET BUILDING
R/V electric
Race Track
Race Track for Equine
Radiant Floor Heat
raditional agriculture
Railraod spur
railroad spur
Railroad Spur & Switch
railroad spur Nevad
RALLS COUNTY FARM FOR SALE
Ranch
Ranch / Country house
Ranch Cattle and hunting
RANCH FOR SALE
Ranch For Sale Calvin Oklahoma
Ranch For Sale Hugo Oklahoma
Ranch For Sale in Avery
Ranch for sale in Eddy County
Ranch for sale in Irion county
Ranch For Sale In Kansas
Ranch for sale in Missouri
Ranch for Sale in MO Ozarks
Ranch for Sale in Oregon Co MO
Ranch for sale in Otero County
Ranch for Sale in Southern MO
RANCH FOR SALE IN THE OZARKS
Ranch for sale in Unit 34
Ranch for Sale in Weed
Ranch For Sale Medicine Lodge
Ranch For Sale Paris Texas
RANCH FOR SALE STILWELL OK
Ranch for sale Texas Panhandle
Ranch For Sale Vinita Oklahoma
Ranch for Sale with Hunting
Ranch Harmon County Oklahoma
Ranch home
Ranch Home Acreage NW MO
Ranch Home/Currently leased
Ranch in Collin County
RANCH IN MISSOURI FOR SALE
Ranch Land
Ranch Land for Sale in East TX
Ranch Land for Sale in MO
Ranch land in North Arkansas
Ranch Land in So. MO Ozarks
Ranch Property
Ranch Property for Sale
RANCH STYLE HOME
Ranch w/Luxury Home
Ranch with Air Strip
Ranch-Style Home in the Ozarks
RANCH/HORSE PROPERTY
Ranches
Ranches for Sale
RANCHES FOR SALE NORTH TEXAS
RANCHES FOR SALE OKLAHOMA
Ranchette
Ranching Operation
Rancho Aloe Costa Rica Farm
Randolph County
Rapidly Developing Area
Rare Contiguous Farm
Rare Farm
Rare Opportunity - Secluded
Rathbun Lake Property
Raw Land
ready to Develope houses
REAL ESTATE
Real Estate Bagwell Texas
Real Estate for Sale Alva OK
REALTREE HUNTING LAND TEXAS
Realtree Hunting Lands
Realtree hunting property
Realtree United Country Land
Rec land for sale Adams Cty
Rec land for sale Richland Cty
Rec land Richland County
Recently Built
Recently Updated
Recreation
RECREATION AREA
RECREATION BUSINESS FOR SALE
recreation land for sale
recreation land near Moab Utah
Recreation near by
Recreation property
recreation property for sale
Recreation Property on 134 Ac
Recreational
Recreational Acreage
RECREATIONAL AREA
Recreational Cabin Near Paonia
Recreational Hardwood Bottoms
Recreational Home in Colorado
Recreational Home with Acreage
Recreational hunting land Deer
RECREATIONAL LAND
Recreational Land For Sale
Recreational Land for Sale NM
Recreational Land For Sale TX
Recreational Mecca
Recreational Paradise
Recreational Property
RECREATIONAL PROPERTY FOR SALE
Recreational Property in MO
Recreational property in NC
Recreational Property NC
Recreational Tract
Recreational Tract 2 Lakes
Recreational Use
Red Feather Lakes
Red Feather Lakes real esate
RED RIVER FRONTAGE
Redding IA Farm for Sale
Reduced Price
Reduced Utilities- Natural Gas
Reinke center pivot system
Remodeled
Remodeled Farmhouse
Remodeled Home
REMODELED KITCHEN
Rental business active and run
Rental Cabins
Rental Cabins For Sale
Rental for sale in West Plains
Rental Income
RENTAL PROPERTIES
Rental Units For Sale
Reserva Conchal
Residential
Residential Development
Residential Development Land
RESIDENTIAL ON TWO SIDES
RESIDENTIAL OR COMMERCIAL
Residential property in NC
Residential/Commercial use
resort
Resort beach area home
Resort Investment Income
Resort land for sale
Resort Property
Resort Property for sale Id
Restaurant
Restaurant for sale in Texas
RESTAURANT FOR SALE OR LEASE
Restaurants/Shopping
Restrictive Covenants
Retail and Rental Building
Retail Center for Sale
RETAIL FOR SALE
RETAIL LOCATION IN WEST PLAINS
Retail Property
Retail Space
Retail Store
Retirement & Active Adult
Retreat For Sale
Retreat Venue Near Montgomery
Reynolds County Mo
Rich Creek Bottom Soil
Richland County
Richland County Land
Richland County Land for Sale
Richmond Kansas farm for sale
Ridge Top Farm for sale in WI
Ridgway Co
Ridgway Colo Log Home for sale
Ridgway Colorado Custom Home
Ridgway Industrial Building
Ridgway Montrose Ouray
Ridgway Ouray Montrose
Ridgway Ouray Montrose Co
Ridgway Ouray Telluride CO
Rink Lake
rio arriba
Rio Arriba County Commercial
Rio Tularosa
RIVER
River Access
river front
RIVER FRONT LAND IN STONE CO
RIVER FRONT PROPERTY
River Frontage
River Frontage & Live Water
River Frontage with Access
River Frontage- Pulaski County
River Land
River Property
River Property for Sale AR
RIVER RANCH FOR SALE
RIVER RETREAT
Riverfront
RIVERFRONT HOME FOR SALE IN TN
Riverfront Home for Sale in VA
RIVERFRONT HOMES
Riverfront Hunting Property
Riverfront Land for Sale
Riverfront Property
Riverfront property for sale
RIVERFRONT PROPERTY IN MO
Road frontage
Road frontage land
Road frontage on three sides
ROAD FRONTAGE ON TWO SIDES
Road frontage property
roads
Robertson County Land For Sale
Rock River
Rock River home on 4+ acres
rock walls
Rocking W Ranch in Lowell
Rocky Mountain Elk Hunting
Rogers County Homes For Sale
Rogersville
Rolling Farm for Sale
Rolling hardwood forests
Rolling Hills
Room
roping arena
Rotational Grazing
Route 66 Business frontage
Route 66 Motel
Route 66 Property for Sale
Route 66 Restaurant
Row Crop
ROW CROP FARM
Row Crop Farm For Sale MO
Row Crop Farm in NW Missouri
Row Crop For Sale
row crop land for sale
ROYSE CITY
Running Creek
Running spring water
Running spring water (2)
RURAL
rural area
Rural Country Homes for Sale
Rural Country Setting
Rural Esparto Home
RURAL LIVING 3 BED 2 BATH
rural lots
Rural Property
Rural real estate Adams County
Rural real estate for sale
Rural Retreat
Rural Upstate New York Farm
rural water
Rural Water at Road
Rural Water w/Meter in place
Rusk Co TX Ranch Land for Sale
Rustic home
Rutherford County
RV
RV / Boat Parking
RV AND ATV
RV Campground
RV Hook up/ Parking
RV HOOKUP
rv park
RV PARK ON LOCATION
RV Parking
RV Parking & Hookup
RV Parks & Mobile Homes
Sabinal River Frontage
Sabine River Frontage for Sale
Saco Montana
Sacramento
Sacramento County Acreage
Sacramento County Homes
Sae and Secure
Safe
safe 24/7
Safe and Secure
SAGEHEN CREEK
SALE ON HOLD BUFFALO RIVERFRON
Salem
Salem Arkansas
Salem MO Hunting & Timber
Salem Va Real Estate for Sale
Sales of Commerical Property
Salina Kansas Development Land
Saline Bluff Ranch
Saline River Frontage
Salisbury Home For Sale
SALON STATION RENTALS
Salt Water Pool
Saltwater pool
Sam Tanke WI Realtor
Same Family for 34 Years
San Joaquin River
Sand Beachfront
Sand Dunes
Santa Fe County
sasSD
Sault Ste. Marie Comm. Prop
Sauna
SAVANNAH BOWLING CENTER
SC
Scattered Trees
Scenic Mountain Location
SCENIC MOUNTAIN VIEWS
Scenic Views
Schertz-Cibolo
School
Scotland Co Home and Land
Scott County
screened in porch
SD Homes for Sale
SD Hunting Land for Sale
SD LAND FOR SALE
SD Ranch Land for Sale
SE Iowa Hunting Property
SE OK Cattle Ranch for Sale
Seagrove Beach cottage
Seasonal Log Home Colorado
Sebastian Inlet
secluded
Secluded 5 bed
Secluded and Private
Secluded Country Estate SE LA
Secluded Country Setting
Secluded Deer Hunting Tract
SECLUDED HIDEAWAY
Secluded Home & Acreage
Secluded Home Build Site
Secluded Mountain Community
Seclusion
SECOND HOME IS 1332 SQ FT
Secure
Secure and Safe
Security
security 24/7
Security System
Security System/Alarm
Sedona
Self Sufficient Farm & Ranch
Self Sufficient Home In So MO
Self-sufficient Farm So MO
SENIC NEBRASKA SANDHILL RANCH
Senior Care Facility for Sale
Senior Living For Sale
Separate Guest Home
Separate Residence
septic
SEVEN LAKES
SEVERAL BUILDING LOCATIONS
Several Cattle Water Stations
Several irrigated tanks
Several ponds
Several Streams on Property
Sevier County Land for Sale
Sewer
Sewer Available On Site
Shadow Lake
Shelby MT
Sheldon Missouri County Home
Sheridan AR Acreage
SHOP
Shop with living quarters
Shop with three phase power
Shop/Storage Space
Shopping Center for Sale KS
Short Commute to Gainesville
Short drive to Bandon/Coos Bay
Short Drive to Beach & Marina
Simmons Creek frontage
SINGLE FAMILY
Single Family Residential
Single level home
Single Level Ranch Guest House
Single Story Homes For Sale
Single Story N CA Homes
Six Cabins
Ski Area Views
Ski Resort For Sale in Cody WY
Skiing in Telluride Co
Slaughter Facilities
Sleeps 6
Small Acreage
Small Creek
Small house
SMALL MOUTH BASS FISHING
SMART HOME FEATURES
So. Central Missouri Farm
Sobre la via interamericana
Soil reports available
Solano County Acreage
Solano County Acreage For Sale
Solano County Home & Land
Solano County Properties
solar energy property
Solar Panels
Solar Power
Solar powered greenhouse
Solid Granite Counter tops
SOLOR HOME
Some inventory w/sale
South AL
South Central Missouri Farm
South Central MO home for sale
South Central MO Ranch
South Texas
SOUTH TYLER
SOUTH TYLER LAND FOR SALE
Southeast IA Whitetail Farm
Southeastern Ohio Land
Southern Illinois Farm
Southern Middle TN
Southern Missouri
Southern Missouri Acreage
Southern Missouri Hunting Land
SOUTHERN MISSOURI OZARKS RANCH
SOUTHERN MISSOURI RANCH
Southern MO Farm for Sale
Southern MO Land for Sale
Southern MO Ranch For Sale
Southern OK Land for Sale
Southern OK Real Estate
Southern Oklahoma
SOUTHERN OKLAHOMA COMMERICAL
Southern Ozark Farm for Sale
Southern Santa Fe County
Southern Utah land for sale
Southwest Florida
SOUTHWEST KANSAS FARMLAND
Southwest Missouri Property
Southwest New Mexico
Space for building
Spacious Daylight Rancher
Spacious home on 39 acres
SPACIOUS HOME WITH POOL
Spacious Kitchen
SPACIOUS LODGE-STYLE HOME
Spacious Ranch Home For Sale
SPACIOUS RANCH HOUSE
Spacious Retail Spacce
Spacious Terrace
SPECIALTY REFRIGERATION BUILDI
Spectacular N ID Hilltop Views
Spectacular views
Spirit in The Oaks Campground
Sporting & Cattle Ranch
sporting goods
SPORTMAN'S PARADISE
Sportsman's Paradise
Spring
Spring Fed Bass Ponds
Spring Fed Fish Pond
spring water
Spring-fed creek
Springs
Springs & Creeks
Sprinkler System
SPRNGS
St. Charles County MO
St. Francis River Frontage
Stainless Appliances
Stalls
Statesboro
STEENS MOUNTAIN
Steps From Beach
Steps from the Beach
Stock tanks
stock tanks (4)
STOCKED FISHING POND
STOCKED LAKE
STOCKED POND
Stocked Ponds
STOCKED PONDS & STREAMS
Stocked Trout Fishing Pond
Stockton Lake
Stockton Lake / Stockton MO
STONE COUNTY LAND FOR SALE
Storage
Storage building with Bed
Storage Tank
Storm Shelter
Storm Shelter/Cellar
Stover
Stover Mo
Strategically Cross Fenced
Strong Cash Rent
Strong Following
Stroud Land For Sale
STUNNING 3/2.5/2 COUNTRY HOME
Stunning views
Sturgis
subdividable
subdivision
Subdivision Potential
Suited for Pecans or Grapes
sunroom
Sunset Views & Sand Frontage
Supermarket
Surfing
Surorunded green area
Surrounded by Green Space
Surry County Business
Survival Properties
Sustainable
SUSTAINABLE HOMES FOR SALE
Sustainable Living
Sustainable Off Grid potential
Sustainable Properties
SUSTAINABLE TN FARM FOR SALE
Sutter County Properties
Suwanee River
Suwannee county land for sale
SUWANNEE FLORIDA
Suwannee River
SUWANNEE RIVERFRONT
SW Colorado commercial for sal
SW Colorado Land
SW Michigan
SW Missouri
SW Missouri Deer Ranch
Swarovski Chandelier in Dining
Swimming
swimming pool
Swimming Skiing Hiking
Switzerland of America
SWVA Home for Sale
Sycamore
T
TABLE ROCK LAKE
TABLE ROCK LAKE FRONT
Table Rock Lake Hotel For Sale
Tackle/bait shop
Tamarindo Commercial Center
Tamarindo Luxury Home
TANEY COUNTY FARM & HOME
Telluride Ouray Montrose
Telluride Ridgway Ouray CO
Tempe home for sale with pool
Tenant pays utilities and tax
Tennessee
Tennessee Horse Farm
Tennessee Hunting Land 4 Sale
Tennessee Ranch
TENNESSEE REAL ESTATE
Tennessee Wildlife/Hunting
Tennis Court
Tennis Court and Pool House
Territorial Style
Territorial Views
TEXAS
Texas Blueberry Farm for Sale
Texas Cattle Ranches For Sale
Texas Commercial Auction
Texas Commercial Property
Texas Country Home for Sale
Texas Country Homesite
TEXAS COUNTY
TEXAS COUNTY LAND FOR SALE
TEXAS COUNTY OKLAHOMA FARM
Texas Farm for Sale Smith Co
TEXAS FARM LAND FOR SALE
Texas Hunting land for sale
Texas Hunting Properties
Texas Hunting Property
Texas hunting ranch for sale
TEXAS LAND
Texas Land For Sale
Texas land for sale Red River
Texas Land Properties For Sale
Texas Monster Alligator Gar
Texas Ranch for Sale
TEXAS RANCH LAND FOR SALE
Texas Ranch Land Grazing
Texas Ranches For Sale
TEXAS WATER RIGHTS INVESTMENT
THE BLUE RIDGE MOUNTAINS
The Reserve
Thompson Creek TImberland
Thorn Hill
THREE BATH
Thriving Business
TILE DECRA STONE COATED STEEL
Tiled and Terraced
Tillable
Tillable Acreage
Tillable Acreage For Sale
Tillable Acres
Tillable and Timber Land in Ad
Tillable Farm For Sale in IA
Tillable Land
TILLABLE/CROPS IN BROOME C. O.
Timber
Timber Acreage For Sale NC
Timber Creek Row Crop
Timber Investment
Timber land in AR for sale
Timber Land in the Ozarks
Timber Producing Property
Timber Property for Sale
Timber Property For Sale NC
TIMBER TRACT FOR SALE FOR SALE
Timberland
Timberland for sale
Timberland For Sale Florida
Timberland for sale in Ark
Timberland Investment Property
Timberland Near Little Rock
Timberland Property
Timberland Southwest MS
Timberland Tract Near LA Line
Timberland- Loblolly Pines MS
Tina Marshall Land Specialist
Titled
Titled 4 titled acres
Titled coastal land
Titled land
Titled lot
Titled Oceanfront
Titled oceanfront lots
Titled Resort Style Building
Titted oceanfront
TN
TN Commercial
TN Farm For Sale
TN Farm For Sale - Investment
TN Home For Sale
TN Home with Acreage for Sale
TN Land
TN Land For Sale
TN PREPPER FARM FOR SALE
TN Recreational Farm for Sale
TN RIVER FRONT LAND – 6.5AC
TN Riverfront Home for Sale
TN TIMBER LAND FOR SALE
TN Waterfront Home for Sale
TN Waterfront Land For Sale
Tobacco River
TomGreen County home and land
Top Quality Contiguous Farm
Top Quality Contiguous Pasture
Top-end Red Seed Stock
Topeka KS Commercial Buildings
Topeka KS Redevelopment
Topeka Shopping Center
Topisaw Creek McComb
Torrance County
Totally "off the grid"
Touches Wal-Mart Property Line
Tower and Ground Blinds Convey
Town Home in Doniphan
Townhouses for Sale
Tractor Equipment Included
Traditional Agriculture
Traditional Style Home in SWVA
TRAILS THROUGHOUT
Training & Boarding Facility
Travertine tile floors
Travis Hamele Land Specialist
Travis Hamele WI Realtor
Tree Stands Already Set
TREES
TREES MEADOWS ROCK FORMATIONS
TRENTON FLORIDA
Trinity Riv TX Land for Sale
Trophy Deer & Turkey Hunting
Trophy Deer Hunting
Trophy deer hunting land WI
Trophy Deer Land for sale
Trophy hunting property
Trophy Whitetail Deer & Turkey
Trophy Whitetail Hunting
Trophy Whitetail Hunting Mo
Troup ISD
Trout Fishing-Nations BEST
Trucking Yard
Turbine Irrigation pump
Turkey
Turkey Abundant
Turkey Flocks Abundant
Turkey Hunting
turkey hunting Cattle Cows
turkey hunting land AR
Turn key
TURN KEY BUSINESS FOR SALE
Turn Key condition
Turn key farm
Turn key farm for sale
Turn Key Horse Farm
Turn Key Hunting Property MS
Turn key investment
Turn Key Offering
Turn Key Office and Showroom
Turn-key All Inclusive Farm
Turn-Key Business
Turn-Key Country Farm Setup
Turn-key established business
TURN-KEY RESTAURANT
TurnKey
Turnkey Business w/ Low Taxes
Turnkey Cattle Opportunity
Turnkey High Fence Hunting
Turnkey Hunting Camp South LA
Turnkey Hunting Camp South MS
Turnkey Hunting Camp SW MS
Turnkey Hunting Land West AL
Turnkey Hunting Property
Turnkey Hunting Property NE LA
Turnkey Operation
Turnkey SC Farm For Sale
Turnkey Texas Ranch for Sale
Tuscan Style Home Howell Co.
Twin Hill Estates
Two Addresses for license need
Two Bedroom Home
Two Homes
Two Homes on Ranch
Two Master Suites
Two twenty acre lake
Two-Car Garage
TX
TX business for sale
TX Country Home Cherokee Co
TX Deer Hog Hunting Smith Co
TX DOT I-20 FRONTAGE PLAN
TX Estate Property
TX High Fence Ranch for Sale
TX Hunting Land Freestone Co
Tx Investment land for sale
TX Land For Sale
TX land for sale in Ector co.
TX Organic Berry Farm for Sale
TX Ranch Val Verde Co for Sale
TX Recreational Land for Sale
TYLER COMMERCIAL PROPERTY
TYLER COMMERCIAL REAL ESTATE
TYLER TEXAS
UDSA Inspection Approved
ULYSSES KS ~ RESIDENTIAL LAND
Under 1hr from Overland Park
Under an hour from Kansas City
Underground Bunker
Undeveloped Commercial
Undeveloped Land
Undeveloped Land in MO Ozarks
UNDEVELOPED WATERFRONT LAND
unfinished basement
Unimproved land
Union County
Unique Design
Unique geological feature
UNIT 16 KANSAS
UNIT 16 KANSAS Hunting
United Country Commercial
United Country Costa Rica
United Country Cotham and Co
United Country Doug Allen
United Country Michael Krieg
United Country Mike Krieg
United Country Missouri
United Country Real Estate
United country Von Box
University of Florida
UNRESTRICTED
unrestricted land
UNRESTRICTED LAND FOR SALE
Unrestricted Land for Sale TN
UP TO 2
updated
updated home for sale hermann
Updated Kitchen
Updated Kitchen and Dining
Upgraded Appliances
Upland Game
Upland Row Crop Farm
Upland w/ Some Creek Bottom
Upper Peninsula Hunter's Dream
Upper Peninsula Land
Upscale Remodel
UPSHUR COUNTY TEXAS
Upstairs Bonus Room & Bedroom
Upstate NY Home For Sale
Upstate NY Lake Property
US Highway frontage
Us Route 66 Business District
US Route 66 NM 41
Usable Acres Zoned RR2.5
USDA Organic TX Blueberry Farm
Utilities
Utilities and sewer
Utilities Available
Utilities on site
VA Hunting Property For Sale
VA Mountain Land for Sale
VA Real Estate
VA Recreational Land for Sale
Vacant
VACANT LAND
Vacant Land Commercial
Vacant Land For Sale
Vacant Land For Sale Arizona
Vacant Property For Sale N FL
VACATION HOME FOR SALE EAST TX
Vacation Mountain Retreat
Vacaville
Vacaville hoime for sale
Vacaville home for sale
Vacaville Land For Sale
Val Verda ranch for sale
VALENTINE NEBRASKA
Van Buren County IA Land
Van Buren County Land For Sale
Vast Interconnected Timber
Vaulted
vaulted ceilings
Venue For Sale
Vernon County Missouri Land
VERY PRIVATE - 3 ACRES
Very Private But Close to Town
Victorian
Victorian Home
View
View of Buffalo Mountain
View of Gunnison River
View of Mountains
Views
Views for Miles from the Cabin
Views from every room
Views of Blue Ridge Mountains
Views of Mountain Ranges
Views of Mt. Adams
Views of Mt. Hood
Vineyard
Vineyard & Winery East Texas
Vineyards & Wineries
Vinton County Ohio
Viola Arkansas land for Sale
Virginia
Visibility From 4 Lane Hwy
Vista views
Von Box United Country
Voyageurs National Park
W/D in Each Unit
WA Home For Sale
WA Land For Sale
Walk In Closets
Walk to beach
Walk to Commercial Area
Walk to schools K-12
Walk to the beach
Walk-out Basement
Walking to beach
Walking to Commercial area
Walthour-Moss Foundation
Wapello County Hunting Land
Wapello County Land For Sale
WAREHOUSE
warehouse industrial I 80 NV
Warsaw
Washington
Washington commercial property
WASHITA CO
Washoe County Land for sale
Washoe County NV Land for sale
water
Water - Pasture - Woods - Hay
WATER & ELECTRIC
WATER ACCESS
Water Available on Site
Water bottling plant
WATER FRONT
Water front Log Home
WATER INVESTMENT OPPORTUNITY
Water Natural Gas Electric
Water Property
Water rights
Water Rights Transfer
Water view home
Water Well
Water well and gas well
Water wells
Water Wells on Land
Waterfowl
Waterfowl Hunting
waterfront
Waterfront acreage for sale
Waterfront Community
Waterfront Executive Home
Waterfront Home For Sale
WATERFRONT HOME FOR SALE TX
WATERFRONT HOME W/POOL EAST TX
Waterfront Land
Waterfront land in Ball Ground
WATERFRONT LUXURY HOME
Waterfront Property
WATERFRONT PROPERTY EAST TX
Waterfront Property for Sale
Waterfront Property SE LA
Waterfront tract for sale Bath
Waupaca
Waupaca Chain O Lakes For Sale
Waupaca Chain O' Lakes
Waupaca Chain O' Lakes Home
Waupaca Co Home For Sale
Waupaca Lake Home For Sale
Waupaca Riverfront Home
Waupaca WI
Waushara
Wave runner included
Waxhaw
Wayne County Land For Sale
WAYNESBORO TN FARM FOR SALE
Wedding Venue
Wedding Venues in CA For Sale
Weddinng Venue For Sale
Well established
Well Maintained Broiler Farm
Well Maintained Home
WELL MANAGED PASTURELAND
Well Performing Broiler Farm
WELL WATER
WELL WATER & CO-OP WATER
Wellington NV Horse property
West Feliciana Parish Land
WEST PLAINS
West Plains MO custom Home
West Tennessee land for sale
WEST TEXAS
West Texas Cutting Horse Arena
West Texas Ranch For Sale
West TN Hunting Land For Sale
west TX home & land for sale
Western
Western CO Luxury Home
Western Colorado Home For Sale
Western Colorado hunting land
Western Colorado Recreational
Wet Weather Streams Missouri
Wetlands
Whale Dolphin watch
Wheat farm for sale in Idaho
White County AR Home For Sale
White Lakes Center Topeka Blvd
White River Overlook
White Tail Deer
WHITEFISH MOUNTAIN RESORT
Whitesboro Land For Sale
whitetail
Whitetail Deer
Whitetail Deer Hunting
Whitetail Habitat
Whitetail Hunting Farm
Whitetail Hunting Property
Whitetail hunting texas
Whitetail Management Program
Whitetail Property for Sale
Whitewright
Whitley City
Whole House Generator
Wholesale Business For Sale
WI
WI Acreage For Sale
Wild Hogs
Wildlife
Wildlife Abounds
Wildlife Area
Wildlife Exempt
Wildlife Haven
Wildlife Opportunites
WildlifeWater
WILL DIVIDE! 20+ ACRES
Williamson Act
Williamson Co. TN Commercial
Williamson County
Williamson County Land
Williamson County real estate
Williamson County Schools
Winding Staircase
WINDOWS IN EVERY OFFICE
Wine Cellar
Winery
Winery site
Winnebago County home for sale
Winneconne Lake home
WINNSBORO - WOOD COUNTY TEXAS
Winter Park Resort views
Winters
Wisconsin Dells WI land for sa
Wisconsin Development Property
Wolf River Channel
Wonderful Main Residence
Wonderful Renovations
Wood Burning Fireplace
WOOD COUNT TEXAS LAND
WOOD COUNTY TEXAS
WOOD COUNTY TEXAS ACREAGE
WOOD COUNTY TEXAS LAND
WOOD COUNTY TEXAS POULTRY FARM
Wooded
Wooded Acres
Wooded Lot Pond Guest Quarters
Wooded property
Woodland
WOODS and PASTURE
Woods with trails
Work Out Room
Working cattle farm
Working cattle pens
Working Cattle Ranch
WORKING CATTLE RANCH FOR SALE
WORKING CATTLE RANCH TEXAS
Working Farm in Southern MO
WORKING PENS
WORKING POULTRY FARM
Working ranch in SE New Mexico
Workshop
Workshop & Garage
Workshop/Garage 3 bay
Workshop/Garage/Storage
World Class Deer Hunting
World Class Hunting
WRIGHT COUNTY RANCH FOR SALE
Wyoming Land
Year Round Access
Year Round Creek
Year Round Lake Home
Year Round Recreation Property
Yoga retreat for sale
Yolo County Acreage For Sale
Yolo County Country Properties
Yolo County Multiple Units
YOSEMITE
Young 2015 Planted Pine
Yuba County
zip
Zoned AG-20
Zoned Agriculture
Zoned C-3
Zoned C2
zoned commercial
ZONED COMMERCIAL C-4
ZONED COMMERCIAL CORRIDOR
Zoned Commercial/Residential
ZONED COMMERICAL
Zoned Light Industrial
Zoned Rural Residential
Zoned T4 Neighborhood Center
Brad Smith
Smith & Lancaster Inc. (Main) - Smith & Associates (09090)
Call Office(352) 463-7770
Call Mobile(352) 221-5256
Contact Me
Similar Listings
Waterfront House For Sale In Suwannee Florida!!
$589,900
WATERFRONT HOUSE FOR SALE IN SUWANNEE FLORIDA!! This charming 3-bedroom, 2-bathroom house, perched on stilts, offers a unique blend of comfort and coastal living. As you arrive, you'll be gr ...


















































