Property Description
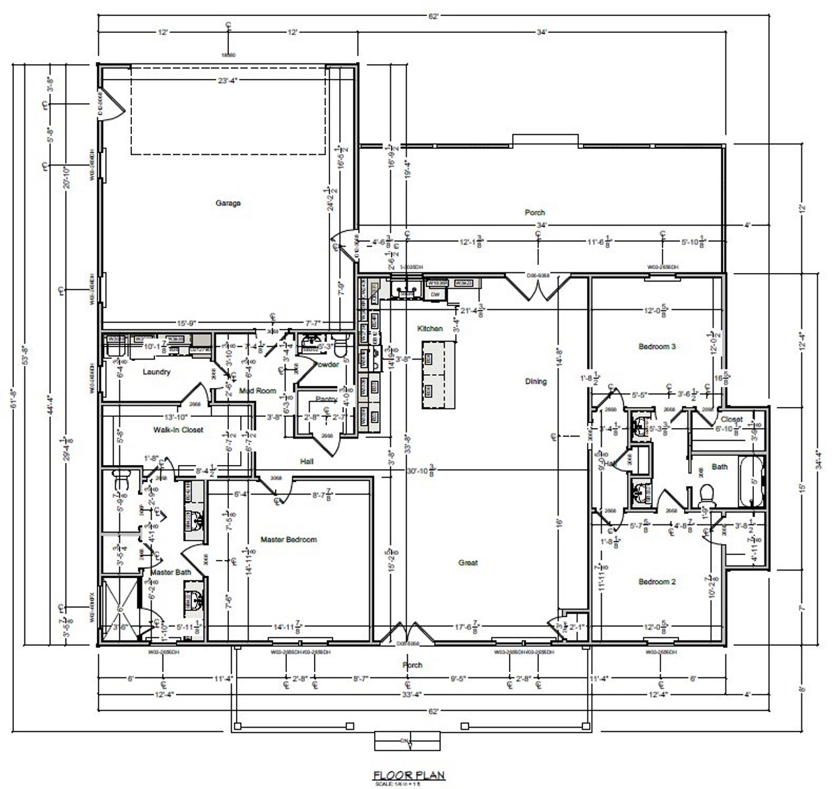
#71590-71148 Modern Farmhouse Perfection: Pre-Sale Opportunity Near Aaron’s CreekEmbrace the blend of timeless farmhouse design and serene country living with this brand-new construction, perfectly situated on a peaceful stretch of Love Town Road. Set on 2.35 wooded acres, this property promises the privacy and rural comfort you’ve been seeking, yet keeps you conveniently located near the Mecklenburg/Halifax County line.This meticulously crafted home offers approximately 1,930 square feet of living space, featuring 3 spacious bedrooms and 2.5 well-appointed bathrooms. Designed and built by an experienced local craftsman, every detail speaks to a commitment to quality. The 2-car garage provides ample storage and protection.Step inside the open-concept interior and be greeted by sophisticated finishes, including durable LVP flooring, gleaming granite countertops, and a full suite of stainless steel appliances. The heart of the home, the great room, features a stunning stone gas fireplace, creating a warm and inviting atmosphere for family gatherings.But the appeal doesn’t stop inside. Imagine cozying up on your covered porch, complete with a second stone fireplace—the ultimate spot for enjoying crisp fall evenings or quiet weekend mornings with a cup of coffee.For the outdoor enthusiast, this location is a dream, offering direct access to nearby Aaron’s Creek. Enjoy fishing, kayaking, or simply spending quiet time by the water, making outdoor recreation an effortless part of your daily life.Currently under construction with an estimated completion in Fall/Winter 2025, this beautiful modern farmhouse offers the exciting opportunity to secure your future home. Pre-sale offers are now being considered. Don’t miss the chance to start a new chapter in this exceptional countryside retreat.$525,000.00 Call Today! 434-374-2011 Email: info@ucvirginiarealty.com
PROPERTY FEATURES:
Country Homes
New Construction
Kerr Lake, VA
Buggs Island Lake, VA
Recreation
Fishing
Mecklenburg County, VA
Clarksville, VA
Country Homes
Fishing
Recreational Property
Luxury























