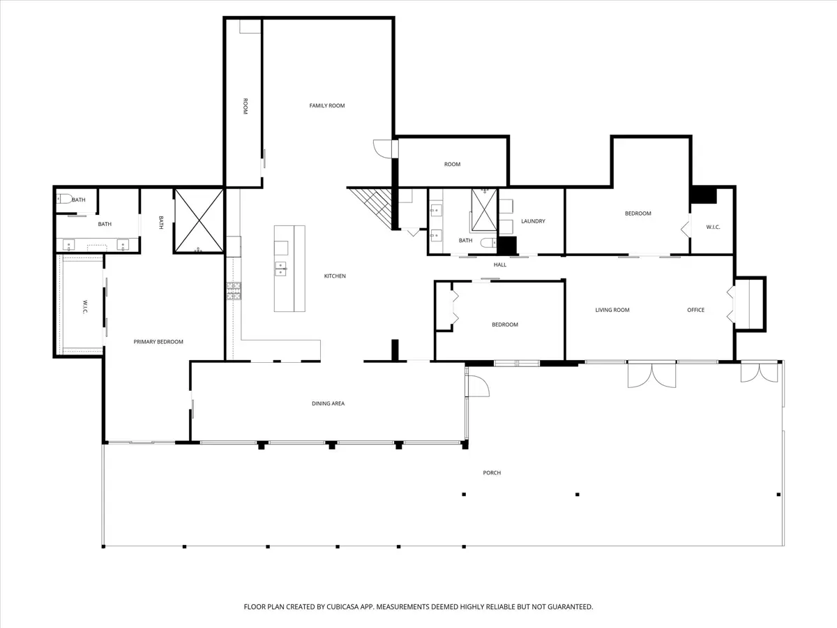
Property Description
Tucked away from the pace of everyday life on 27 Acres, 510
Herrin Lane is a true Hill Country sanctuary where intentional design and
expansive acreage come together just outside Bertram. Created for those who
value independence, longevity, and refined living, this partially
earth-sheltered concrete residence blends seamlessly into the landscape,
delivering a quiet, temperature-stable environment year-round.
Constructed with
reinforced concrete and steel, the home provides exceptional durability, energy
efficiency, and resilience rarely found in traditional construction. Earth
contact naturally contributes to a negative ion–rich indoor environment—similar
to the air after a fresh rain—supporting improved air quality, reduced
allergens, and a calming, wellness-focused atmosphere. Inside, generous living
spaces feel warm and inviting, with hardwood and slate flooring, abundant
natural light, and flexible areas suited for entertaining or everyday living.
A
dvanced air filtration and whole-home water purification systems further
enhance comfort and wellness. The kitchen serves as the heart of the home,
designed for serious cooking and highlighted by a BlueStar gas range, premium
appliances, and generous prep space. A thoughtful flow and natural light
strengthen the connection between indoor and outdoor living. Outside, rolling
Hill Country terrain unfolds with scenic views and a peaceful spring-fed pond
that attracts wildlife and creates a serene backdrop.
The acreage lends itself
well to agricultural pursuits, including the potential for a boutique wine
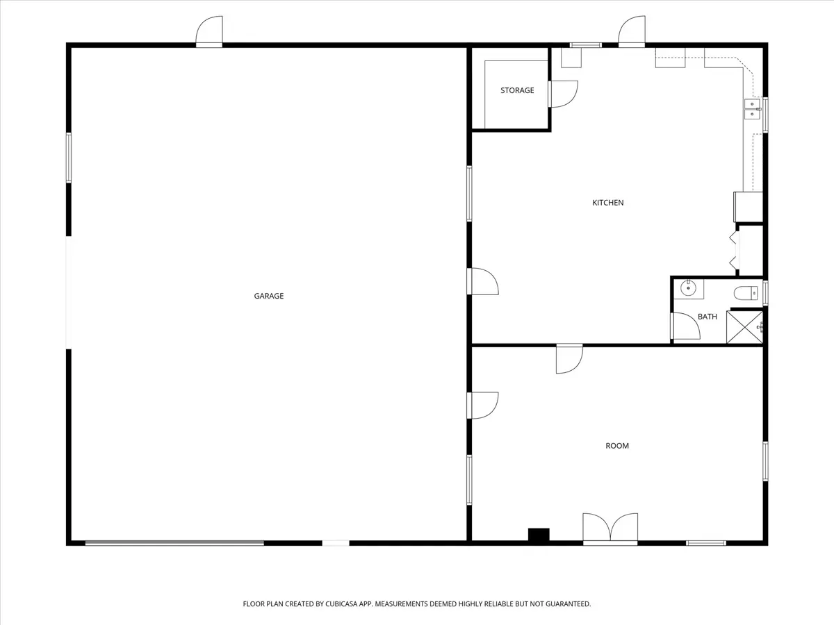
vineyard in a region suited for viticulture. An insulated steel outbuilding
with multiple roll-up doors provides flexible workshop or storage space, along
with separate guest or multi-generational living quarters. Water-capture
systems and dual septic setups support a self-sustaining lifestyle.
Showings
are available by appointment only.
PROPERTY HIGHLIGHTS:
| Luxury Properties For Sale | Burnet County For Sale | 20+ Acres For Sale in Texas | Investment & Income | Ranches |
| Central Texas Home For Sale | Central Texas Land and Home | Texas Ranch For Sale | Luxury | |
| Bertram, Texas Homes | Luxury Living Central Texas | Hunting | Military |









































