Description
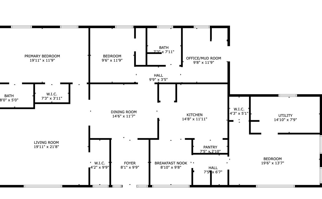
Where Country Charm Meets Functionality in a Rustic SettingTucked away just a couple minutes west of Heber, this 17.49 acre estate offers the ultimate country living experience.Whether your dreams involve equestrian pursuits or a peaceful rural escape, this listing delivers- complete with a comfortable 1,880 +/- sq.ft. home, a stocked pond, a large 30×50 shop. It also has a barn with 2 horse stalls. Fencing & electric cross fencing. This property is ideal for horses & other livestock.The HomeBuilt in 1950, this sprawling ranch style home boasts loads of charm & craftsmanship. Real wood floors throughout & a thoughtfully designed floor plan are both great reminder some things never go out of style. 3 beds, 2 bath & an office/mudroom off the back make this floor plan very functional. You can enjoy your morning coffee in the breakfast nook just off the kitchen. This home also offers a formal dining room that could be used as a 2nd living space. Gather for group get togethers or give yourself some space with 4 total rooms & 2 living spaces. The large den is complemented by large windows, allowing for lots of natural light & a view of the stocked pond located in front of the home. Enjoy nature in style from one of the two covered porches, one on the front & one on the back of the home.The LandThis property offers new owners lots of variety & space. Pasture, woods, a rustic barn. A large 1,500 +/- sq.ft. shop. A gated front entrance from Bypass Rd. Fencing & electric cross fencing allow for running different groups of animals & small grade rotational grazing. The nearly half-acre pond is accents the property well as you drive by it on your way in & out of the property. What’s not to love about this setup?The ShopMeasuring approximately 50’x 30′, new owners will have plenty of space for storage of items big & small. Tractors, bush hogs, implements, you name it. RV power hook up is located on the south side of the shop & an awning could easily be added to both sides for additional covered parking. The shop has an 12′ tall slide out door as well as a standard 3×7 side entry door.The AgentFor nearly a decade, Garrett G. Philpot has helped buyers & sellers all over the Natural State. For more information or to schedule your own private tour, contact Garrett at 870-830-6677 or at Garrett@UCNaturalState.comThe Hashtags#ArkansasForSale #Land #LandForSale #HeberSprings #HorseProperty #HobbyFarm #RuralRealEstate #RuralProperty
PROPERTY FEATURES:
Pond
Barn
Shop
Home Office
Electric Fencing
Heber Springs Address
Horse Property For Sale
Home with Land For Sale
Country Homes
Equine Property
Farms for Sale
Land for Sale
Recreational Property






























