Description
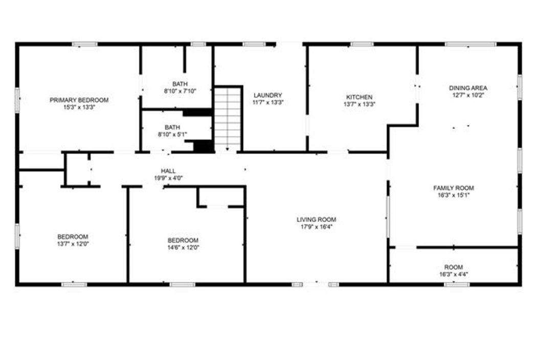
Searching for a spacious, updated country home in Salem, Arkansas? This well-maintained 4-bedroom, 2-bathroom home sits on a peaceful 2-acre lot. With nearly 3,000 square feet of total living space—including a finished basement—this property provides plenty of room to grow, work from home, or simply enjoy the quiet of the countryside. New roof (2022)New HVAC system (2023)New energy-efficient windows (2023)New hot water heater (2025)New well pump (2021)New luxury flooring throughout (2024)Fully remodeled kitchen with modern finishes (2024)Fresh interior paint ADT security system NEXT fiber internet Fenced backyard (2025)Mature, producing peach trees in the backyard. Natural light fills this home, creating a bright and inviting environment. The open-concept kitchen and living area provide a perfect space for family life or entertaining. Downstairs, the basement offers flexible bonus space for a home office, gym, playroom, or guest quarters. Outside the fenced backyard is ideal for children or pets, and the detached two-car garage/shed and large ckn coop add value. This move-in ready home in North Central Arkansas has all the big updates already completed—saving you time and money.Contact Burdetta Pendergrass for more information – 870-371-0001
PROPERTY FEATURES:
Newer HVAC
4 bedrooms
partial basement
family room
Large level yard
Newer roof
Paved Highway frontage
Country Homes
Recreational Property
Retirement & Active Adult
































