• 4 Bedrooms
  • 2 Bathrooms
  • 2.00 ac
  • 2,910.00 ft2

Country Home with chicken coop for sale Salem, AR

$ 215,000
5678 AR-9, Salem, Arkansas (Fulton County)

Property Description

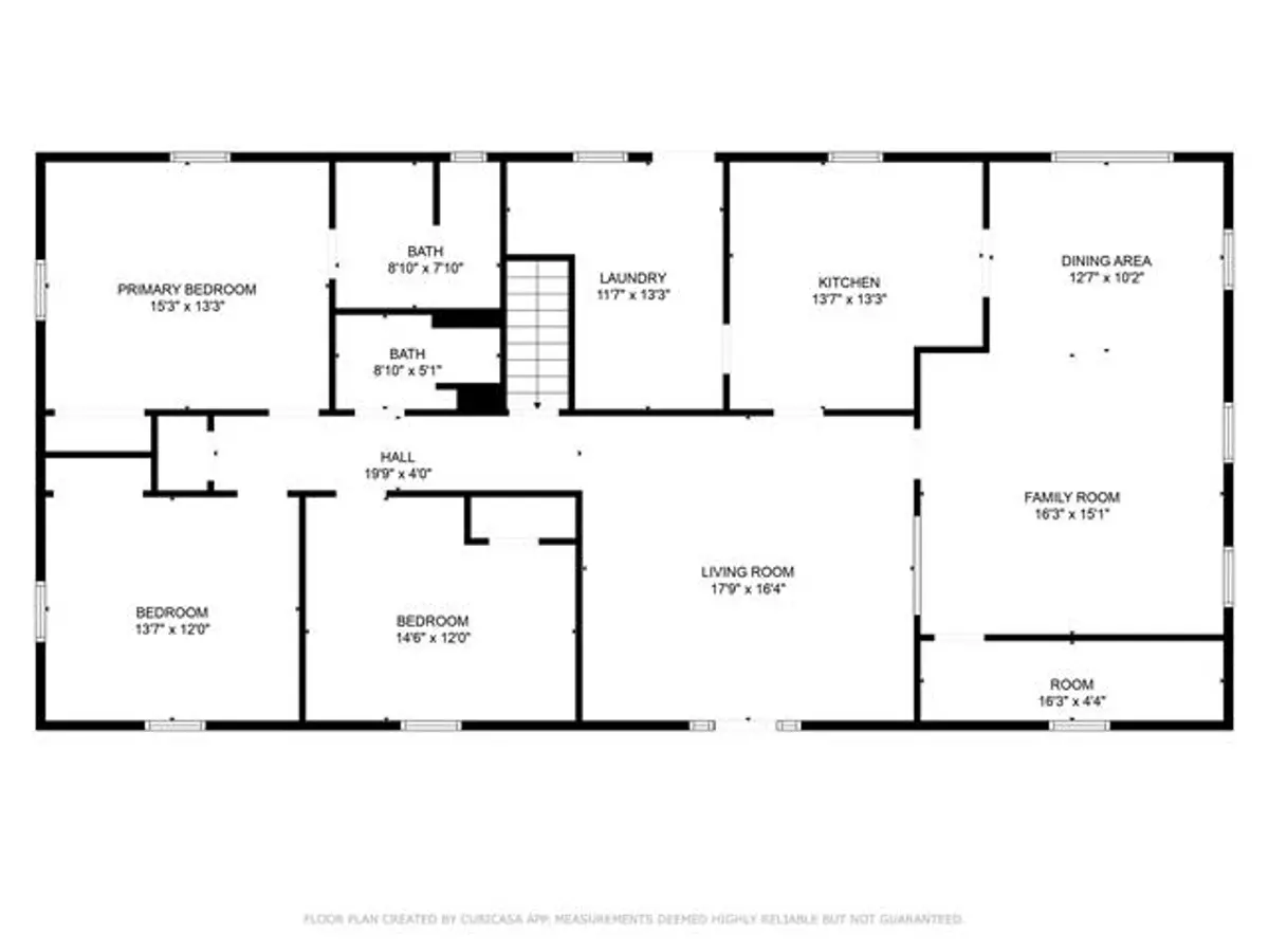
Searching for a spacious, updated country home in Salem, Arkansas? This well-maintained 4-bedroom, 2-bathroom home sits on a peaceful 2-acre lot. With nearly 3,000 square feet of total living space—including a finished basement—this property provides plenty of room to grow, work from home, or simply enjoy the quiet of the countryside. New roof (2022)New HVAC system (2023)New energy-efficient windows (2023)New hot water heater (2025)New well pump (2021)New luxury flooring throughout (2024)Fully remodeled kitchen with modern finishes (2024)Fresh interior paint ADT security system NEXT fiber internet Fenced backyard (2025)Mature, producing peach trees in the backyard. Natural light fills this home, creating a bright and inviting environment. The open-concept kitchen and living area provide a perfect space for family life or entertaining. Downstairs, the basement offers flexible bonus space for a home office, gym, playroom, or guest quarters. Outside the fenced backyard is ideal for children or pets, and the detached two-car garage/shed and large ckn coop add value. This move-in ready home in North Central Arkansas has all the big updates already completed—saving you time and money.

Contact Burdetta Pendergrass for more information – 870-371-0001

PROPERTY HIGHLIGHTS:

Newer HVAC family room Paved Highway frontage Retirement & Active Adult
4 bedrooms Large level yard Country Homes
partial basement Newer roof Recreational Property

Address: 5678 AR-9
City:
Area:
State/County:
Zip: 72576
Country: United States

Property Id: 746431
Price: $ 215,000
Property Size: 2,910.00 ft2
Property Lot Size: 2.00 ac
Bedrooms: 4
Bathrooms: 2
County: Fulton County
Lot Size (AC): 2.00000
Year Built: 1995
Listing ID: 03050-460100
Office ID: 3051
Listing Address: 5698 Ar 9 Hwy S, Salem, Arkansas 72576-9139

Other Features
- Rural real estate for sale
.45 ACRE CORNER LOT
.45 Acres/Dockable Lot
.47 Acre Lot in Grainger Co TN
.59 Acres in East TN
.67 Acre Lake View Lot
.79 Acre Lot in East TN
.81 Acres in East TN
.9 Acre Lot in East TN
)ne year old home
& Boar Hunting
>1700 SQ FT Deck/ Patio
<10 Minutes to Walmart
<2 Minutes to Town of
<3 Min to Buffalo Nat'l River
<6 minutes of White River
#Riverlife Arizona
~2019 Cleared/Harvest Area
$10
$2600 PRICE DROP
$90
0.27AC TN RIVER FRONT LAND
0.3AC
0.5 AC CREEKFRONT LAND
0.5AC LAND IN BEECHVIEW ESTATE
0.5AC RIVER FRONT LAND
0.73AC
0.8AC RIVERVIEW LAND
000 +/- feet Stream Frontage
000 COW RANCH
000 Feet of Waterfront
000 PRICE DROP
000 SF Shop
000 sq. ft. building
000’± of waterfront
033 ACRES
05071-21042
05071-21130
05071-21159
1
1 ½ Story Home with 2BR/2BA
1 acre
1 acre for sale
1 Acre Lot in East TN
1 acre Organic Field
1 acre pond
1 ACRE WATER VIEW LOT
1 ACRES
1 BA in East TN
1 bath
1 BATH CABIN
1 Bath Home
1 bed cabin on 1/2 acre
1 Bedroom 1 Bath
1 BEDROOM 1 BATH TN RIVER CABI
1 bedroom 3 bathrooms
1 BTH HOME 0.4 ACRES
1 hour from Moab
1 HOUR TO PANAMA CITY BEACH
1 hr from Olathe
1 hr from Overland Park
1 Pivot Field
1 stock well
1.23 acres total
1.32 Acres in East TN
1.35 Acres in East TN
1.37 Acres
1.5 baths
1.5 Miles of Ozan Creek
1.82 Acres
1.83 Acres
1.86 Acres in Hawkins Co
1/2 Acre
1/2 mile from Chikaskia River
1/2 mile from maintained road
1/2 Story Country home
1/24 Share Southside Land Co
1/4 Mile of Hwy. Frontage
1/4 mile of road frontage
½ MI. FROM TN RIVER
10 ac timber tract
10 Acres +/-
10 Acres for Sale
10 Acres in Hickman County
10 acres near Bascom
10 acres no restrictions
10 Acres of Hunting Land
10 miles to Downtown
10 MIN TO CANON CITY COLOR
10 Wooded Acres
10 Year Tax Abatement Program
10.01 total acres
10.6 HEAVILY WOODED ACRES
100 + Acres in East TN
100 Acres m/l
100 acres Maine land
100 ACRES TIMBER FOR SALE
100% Native Genetics
100+ acres
100+ Acres in Dugspur VA
104 Ft of beachfront
104ft beachfront
106 feet of river frontage
108 Acres Hunting Land
11
11 acres
11 Acres open ground
11.42 Unrestricted Acres
11.5+/- Acres
11.5± acres of land for sale
11.6 Ac Wooded Property
110 ACRES UNRESTRICTED LAND
110 ft beachfront
110+ acres
111.65 Acres
113 ACRES
113 acres with waterfront
113.8 Acres with creek
114 acre farm for sale
116 acres of land
117 Acres for Sale
12
12 miles East of Prescott
12.27 Acres
12.7 Acres Surveyed
120 Acres
120 acres land in AR for sale
120 acres of woodlands
1200 acre sugarbush
1200 SQ FT
123+ ACRES
1240 Sq. Ft. Home
126.51 ACRES BLYTHEWOOD
127 Acres Hunting Land
128 Sq Ft
13 Acres For Sale in East TN
13 ACRES WOODED
13.04 AC Borders National Park
13.87 Acres in East TN
1300 Square Feet
131 acres joining Arkansas WMA
1350 Feet Road Frontage
135acre Lake
1404 Sq. Ft.
1442 Sq. Ft.
1453acre cattle ranch for sale
15 Acres
15 Acres in East TN
15 ACRES+/- ON INDIAN CREEK
15 MILES SOUTH OF DIAMOND OR
15 Minutes South Chillicothe
15.27 Acres
150 ac.
150 Acres
150 FT OF TN RIVER FRONTAGE
150 meters from shore
150 steps from lake
154.25 Acres
157 ACRES
158 Acres
158 Acres Farmland
158 Total Acres
16 Acres Unrestricted Land
16.5 ACRES
160 acreage
160 ACRES
160 AUCTION ACRES
160 deeded/160 state lease ac
162 +/- acres land in Arkansas
1650' Road frontage
166 Acres of Hunting Property
167+ Acres
17 acres
17 acres +/- joins Government
17 Acres in East TN
17.31 Acres in East TN
173 acres
173 acres in AR for sale
18 Acres of Land For Sale
18 Acres-Open & wooded land
18 MILES SW OF NORTH PLATTE NE
18.5 +/- acres
18.84 Acres in East TN
180 Degree View Of Ocean
1800-3500 gal syrup production
19 Acres
19 Acres in East TN
19 S Close to Current River
19 S Close to Mark Twain Fores
19.68 Acres in East TN
1904 square foot home
1910 Craftsman home for sale
1mi of Saline River Frontage
2
2 ACRES
2 BA
2 bath
2 Bath Furnished Camp
2 BATH HOME – 11.8AC
2 Bathroom
2 baths
2 Bed
2 Bed/1 Bath Hunting Camp
2 bedroom
2 Bedroom 1 Bath
2 Bedroom/2 Bath
2 Bedroom/2 Bath/2681 sqft
2 BEDROOMS
2 BR
2 building lots for sale
2 Cabins
2 car att garage
2 COMMERCIAL LOTS
2 drilled wells
2 Fishing Lakes
2 Full baths
2 golf courses
2 homes
2 house on land
2 houses
2 Large Pastures
2 LIVING AREAS- 1 UP & 1 DOWN!
2 lots
2 LOTS SELLING TOGETHER
2 Ponds
2 Private Lakes
2 spring fed creeks
2 STORY CABIN
2 Story Home
2 STORY LAKEHOUSE FOR SALE
2 TENNESSEE HOMES FOR SALE
2-stall pole barn
2.07 ACRES+/- 4BD/2.5BTH HOME
2.29 Acres
2.37 Acres
2.5 Acres
2.5 bATH
2.51 ACRES TN LAND
2.53 Acres in East TN
2.5BTH HOME – 14 ACRES
2.69AC
2.74 Acres in East TN
2.97 Acres
2.995 ACRE WATERFRONT ACCESS
2.9AC
2/24 Shares Southside Land Co
20 AC
20 ac. Recreational Hunting
20 ACRES
20 Acres M/L
20 acres of fields
20 acres of Off-Grid Land
20 ACRES OUTSIDE SILVER CITY
20 Acres Wooded Land
20 Minutes from Town
20 plus acres for Sale
20 Surveyed Acres
20 x 30 Shop Building
20.5 Acres in East TN
20.58 wooded acres
20' x 60' Shop
200 Acres
200' RIVER FRONT
2000 Planted Pine
2000± road frontage
2003 Planted Pine
2007 Planted Pine
2008 Planted/Natural Pine
2011 Planted Pine
2014 Planted Pine
2018 Pine Plantation
2018 Planted Pine
2018-2019 Cleared/Harvest Area
2019 Harvest/Open Land
2019 Planted Pine
2020 Harvested/Cleared Land
2020 Planted and Natural Pine
2021 Cleared/Harvest Area
21 Acres of Privacy
21 acres woodlands
21.095 ACRES+/- SURVEYED
21+ Ac
210 acre cattle farm for sale
2145' of Creek Frontage
22 ACRES TN LAND FOR SALE
22.24 ACRES
22'x30' Detached Garage/Shop
225.5 ACRES IN THE OZARKS
23 ACRES WOOD COUNTY TEXAS
23.5 ACRES EAST TEXAS
23.54 ac
230-Acres For Sale in NC
232 Acres
234 Acres Waterfront Property
235 FT WATER FRONT
239 Acre High Fence Hunting
24 HOUR MANNED GATED SECURITY
24 HOUR MANNED SECURITY
24 hours security
24.5 acres
24.58 +/
2400 SQ FEET
2450 Feet Marsh Frontage
246 acre farm
25 ACRE HUNTING LAND
25 acres of Recreational Land
25 Miles West of Bentonville
25 minutes from Montrose
25.74 wooded acres
25+/- ac
250' +/- Paved Road Frontage
2500 m/l Square feet
259 Acres
26 ac ranch central texas
26 ACRES+/- & BIG POND
26+ acres
265' water frontage
27 Acre Lake
27 Acre Lot
27 Acres- wooded
27 Total Acres
27.068 ACRES+/- FENCED
278 Acre High Fence Hunting
278 ACRE HUNTING PROPERTY
28.62 ACRES
280 Acres in VA For Sale
2880 square foot hanger
28X40 SHOP W/ ELECTRICITY
29.98 Acres
296 Acres in East TN
299.93 ACRES
2BD/1BTH – TN RIVER HOME
2BR
2BR-1BA + LARGE SHOP BUILDING
2nd 2-Car Garage & RV Parking
2nd HOME POTENTIAL
3
3 & 4 Bedrooms
3 1/2 Bathrooms
3 acre building lot for sale
3 acre building site
3 acre lot for sale
3 Acres
3 acres for sale
3 acres M/L in Arkansas
3 BA
3 BARNS/SHOP
3 BATH
3 baths
3 Bed
3 Bed 2 Bath
3 BED- 2 BATH ON 40 ACRES
3 Bed/1 Bath Home for Sale MS
3 Bed/2 Bath Hunting Camp
3 BEDROOM
3 BEDROOM 2 BATH HOME 1.25AC
3 BEDROOM 2 BATH HOME IN AR
3 BEDROOM HOME
3 Bedroom/ 2.5 Bath (+ den)
3 bedrooms
3 BEDROOMS - 2 1/2 BATHROOMS
3 BEDROOMS - 2 BATHROOMS
3 bedrooms 3 bathrooms
3 BR
3 CABINS & OUTBUILDINGS
3 CREEKS – 1 POND
3 custom built log cabins
3 HOMES
3 Income properties
3 lots (2 lakefront)
3 lots near bull shoals lake
3 or 4 bedrooms
3 PHASE ELECTRIC
3 PONDS
3 Ponds (2 Stocked)
3 Rail Fencing
3 Streams
3 Wooded Acres
3-acre
3. 435' +/- Paved Road Front
3.000 + Ft Paved Rd Frontage
3.14 Acres in East TN
3.48 +/- ac For Sale
3.5 ACRES MORE OR LESS!
3.595 Acres
3.61 acres
3+ Miles of Asphalt Paving
30 AC FOR SALE NW MO
30 AC Primarily Open Fields
30 acres
30 Acres For Sale Lincoln MI
30 minutes to Bocas
30 minutes to Grand Junction
30 Minutes to Statesboro
30 YEAR TERM WRP
30.59 Acres in East TN
30' x 42' 2 Stall Work Shop
30’X24’ BARN WITH STALLS
3000’ of brook frontage
302 ACRES HUNTING RECREATION
306+/- acres for sale
308 ACRES
31/2 baths
32 Acres
320 ACRES
320 ACRES IRRIGATED LAND IN KS
320 acres with cabin
320 fenced acres
33 ACRES EAST TEXAS
33 acres with Country Home
33 mostly wooded acres
33.91AC -INVESTORS NOTICE
3300 Square feet building
34 PRIVATE SECLUDED ACRES
34.4+/-ac For Sale
35 acre lot for sale in SW
35 acre mountain parcel in CO
35 Acres
35 ACRES EAST TEXAS
35 acres of land
3500 Square Feet Under Roof
352 Acres in East TN
354 ACRES
359± feet water frontage
36 Acres in Greeneville
36x24 Metal building
37 acres
37+ ACRES WITH A POND
38 acres
38 acres m/l
38.01 Acres
380 FT+/- ON INDIAN CREEK
39 Acres For Sale
3BD/2BTH AMERICAN DREAM
3BD/3.5BTH COUNTRY HOME
3BR/2BA Home on 50 acres m/l
4
4 AC+/- & YEAR ROUND CREEK
4 Acres
4 ACRES+/- MATURE TREES
4 BED
4 Bed Home
4 Bedroom 3 Bath Home For Sale
4 BEDROOM COUNTRY HOME
4 bedroom septic installed
4 Bedrooms
4 bedrooms- 2baths
4 Bedrooms/2Bathrooms
4 Bedrooms/4 Bathrooms
4 PONDS/ CREEK/ SPRINGS
4-D COUNTRY ESTATES 2BR-1BA
4.21 Acres
4.48 Acres
4.5 BATHS
4.57 acres
4.8 +/- ACRES TN LAND
4.99 Acres of Land for Sale
4+ ACRE STOCKED FISHING LAKE
4+ ACRE STOCKED LAKE
4+ Miles River Frontage
4+/- Acres in Platte County
40
40 +/- Acres
40 AC FOR SALE NW MO
40 Ac hunting Richland County
40 acre parcel
40 acre Private Lake
40 Acres in East TN
40 acres m/l
40 Acres No HOA Private Quiet
40 ACRES OF LAND
40 Acres of Mature Timber
40 Acres of Mountain Land
40 Acres Recreational Land
40 Plus Acres For Sale
40 x 70 Shop - 30'x 40 Garage
40-Acres For Sale Ringgold Co
40.72 Acres
40'x60' Shop
400 Acres to Hunt and Fish
400' on BNR Nat'l Park
41 Acres Hunting Land
41.61 Acres
41+ ACRES
42 ACRES
42 READY TO DEVELOP ACRESES
4200 Sqft. total heat/cooled
43 Acres Texas County MO
432 Square Feet
44 Acres +/-
44.64 acres woods/pasture
45 Acres
45 Acres in East TN
45 Gently Rolling Acres
45 MINUTES TO TULSA
45 MOSTLY WOODED ACRES
45'Schweiss Bifold remote door
450' +/- Paved Road Frontage
46 ACRES
461 ACRES
468 Acres
47 +/- Wooded Acres
48.1 Acres
48.89 ACRES
4800 SQ FT NEWLY BUILT HOME
487 ACRES FOR SALE
4BD/2BTH AMERICAN DREAM
4bed 2 bath
5 Acre Building Track in TN
5 Acres
5 Acres For Sale Spring River
5 Acres M/l
5 ACRES+/- OF LAND FOR SALE
5 BED/4BATH
5 Bedrooms
5 BR Main House
5 HEAVILY WOODED ACRES
5 MILES EAST OF MT. ENTERPRISE
5 miles North of Rosston
5 MILES SE OF WOODVILLE
5 min - Missouri River access
5 OR 6 BR
5 outbuildings
5 Wooded Acres
5.19 ACRES
5.65 ACRES+/- TN LAND FOR SALE
5.76 Acres in East TN
5.84 ACRES+/-
5.96 acres
5+ Acre Lot
5+ acre stocked lake
50 Acres in Freetown NY
50 acres on gated road
50 FT ROAD FRONTAGE
50 Minutes from Kansas City
50 x 215 TN River Front Lot
50 X 80 metal building
50+ ac
50+ ACRES
500 Acre Farm in KY
500 Cow Ranch
500 SF 6 Bed/6 Bath Lodge
5000sq/ft Home
500sqft Tiny Home
509.9 Acres
50x57 Shop/Hangar w/ 9' wings
54 Acres with home and shop
54.5 acres
54.607 Acres
55 acres ready for building
55+ ACRES
5500SF 5 Bedroom Log Lodge
56 Space RV Park
560± on Berry brook
57 Acres Ready for Development
57.3 Acres in East TN
57.7 +/- Acres
588+/- acres
595 Contiguous Acres
5AC+/-
5beds
5BR
6 ACRES
6 Bd 5 Bath
6 Bed Rooms 7563 SQFT
6 Bed/2 Bath Camp on MS River
6 Bed/4.5 Bath Home for Sale
6 miles NE of Prescott
6 miles SE of Fordyce
6 PONDS - EAST OF DFW
6.29 ACRES WATERFRONT LAND
6.31 Acres
6.4 ACRES+/- OPEN LAND
6.69 ACRES+/- SURVEYED
6.82 acres for sale
60 Acres
60 minutes to Columbus
600 Feet Highway 22 Frontage
601.3 ACRES IN VIDOR TEXAS
61+/- Acres
62 Acres in East TN
62 EAST TEXAS ACRES FOR SALE
62+ Acres Surveyed
632 Acres
64 ac For Sale Goshen NY
64 Acres in Duffield
64.094 Acres / Adams County
65.087 ACRES FORESTED LAND
66.49 Ac
69 Highway Expansion
7
7 +/- acres Maine Land
7 ACRES
7 Acres in East TN
7 Bedrooms and 5.75 Baths
7 Lakes for fishing & boating
7 MILES EAST OF BEAUMONT
7.24 Acres in East TN
7.32 Acres in East TN
7.5 Acres in East TN
7.76 acres
70 MILES TO PCB
700 FEET FROM LAKE
700 HEAD CATTLE FEEDYARD
700+ FEET OF WATERFRONT
700± paved road frontage
7009 SQUARE FOOT HOME
700ft Of Pave State Frontage
72 Acre Farm
73 Acres in East TN
75.02 FT+/- OF CREEK FRONTAGE
75.19 FT+/- OF CREEK FRONTAGE
750 sq ft
76' of lakefront
765+/- ACRES NATIVE OAK TREES
79.44 Acres
7mi NW Fordyce
8
8 ac timber tract
8 Acres
8 Person Duck Blind on Site
8 stall barn
8-bedroom home in Paonia
8.31 Acres
8.31 ACRES SURVEYED
8.43 Acres
8.51 wooded acres for sale
8+ ACRE LAKE
80 ACRES
80 ACRES HUNTING LAND
80 ACRES HUNTING PROPERTY
80% WOODED
800 +/- Feet Stream Frontage
800+ Acres
81 acres of woods & Seclusion
810' Oceanfront
82.966 Acres
8350 total sqft. under roof
84 Acres in East TN
85 Miles to Pittsburgh
87 acres
87 acres joining Arkansas WMA
88.419 ACRES VACANT LAND
9 Acres Arkansas Land for Sale
9 Buildable Acres
90 MINUTES TO FAYETTEVILLE
900-1
94 Surveyed Acres
95 x 110 lot for sale
961 Acre High Fence
97.5 ACRES+/- TN LAND
98.75 ACRES RECREATION HUNTING
99+ ACRES OF GRAZING LAND
A Frame
A Frame Home for Sale SWVA
A Log Cabin Lifestyle
Abingdon VA Home for Sale
Abingdon VA Real Estate
ABSOLUTE ~ NO RESERVE
Absolute Ocean Front
Abundant Vegetation
Abundant Wildlife
Abuts conservation
AC in all rooms
ACCESS GOOD BUT NOT DEEDED
Access to boat landings
Access to Cold Stream Pond
Access to Lake & Beach
Access to Public Boat Ramp
Access to the Red River
Access Trails
Accessed by Paved County Road
Aceage
ACREAGE
Acreage & Resort Like Home
Acreage | Cherokee County
Acreage for Hunting
Acreage for sale
Acreage for Sale Atlanta MI
Acreage For Sale Beaufort Co.
Acreage for Sale in Arkansas
Acreage for Sale in Bland VA
Acreage For Sale in Colorado
Acreage for Sale in Fulton
Acreage For Sale in Iowa
Acreage for Sale in the Ozarks
Acreage for sale Lachine MI
Acreage For Sale Lake City
Acreage For Sale Lincoln MI
Acreage for sale no CCR's
Acreage for Sale on the Lake
Acreage For Sale Pamlico Co.
Acreage For Sale Paris Texas
Acreage For Sale Southern Iowa
Acreage For Sale Taylor County
Acreage for sale Unionville MI
Acreage for sale with no CCR's
Acreage in Arkansas for Sale
ACREAGE IN BROOME CO. NY
Acreage in Contra Costa
Acreage in Florida
ACREAGE IN KIRKSVILLE
Acreage in Mammoth Spring
Acreage in North GA | Mountain
Acreage in Rural Arkansas
Acreage in Talking Rock
Acreage in the Ozarks
Acreage in Town
acreage in West Texas
acreage in west TX for sale
acreage land Como 80432
ACREAGE NEAR WHITE RIVER
Acreage on Spring River
Acreage w/Road Frontage
Acreage with mining claim
ACREAGE WITH NO RESTRICTIONS
Acreage with Road Frontage
Acres for Sale in Southern MO
Acres Of Land
Across from elementary school
Adair Co MO Farm For Sale
Adair Co Potential Build Site
ADAIR COUNTY RANCH FOR SALE
Adams County huntin gland
Adams County hunting land
Adams County Land For Sale
Adams County lot for sale
Adams County Timber land
Adams County Wi Land for Sale
Additional 700 acres
ADDITIONAL LAND AVAIL.
Additional land available
Adin California
Adjoins Camp Powhatan
Adjoins National Forest
Affordable Beach getaway
AFFORDABLE HOME IN TN
affordable land for sale
Affordable Mountain Land
Ag Exempt
Ag Exempt Property For Sale
Ag Exempt Taxes
Ag property for sale Beaufort
AGA COOK STOVE
Agricultural Land
Agricultural land for sale NC
Agricultural property for sale
Agriculture Land for Sale TN
Air B&B Potential
Air Park
Airport
AIRSTRIP
Al
Al Lake Property For Sale
Al Waterfront Home
Albany
Albany KY
ALBEMARLE SOUNDFRONT HOME
ALBION CREEK
Albuquerque
Albuquerque New Mexico
Alexander County
All Contents convey
ALL INVENTORY INCLUDED
All Utilities
ALL UTILITIES AVAILABLE
All Utilities for Building
All Woods
Almost 2 Acres
almost 3 acres
Almost Level
Along Dead End Road
Alpena Cty Land for Sale
ALTAMONT MO AC FOR SALE
Alturas
ALVORD DESERT
Amazing 360 Degree Views
Amazing Bohio with Ocean view
AMAZING MILLION DOLLAR VIEWS
Amazing Sunrises
Amazing View
Amazing views
Amazing views of lake
Amite County Hunting Land
Amite County Land For Sale
Amite County MS Land For Sale
amoblado y equipado
and septic
Andalusia Alabama lot for sale
ANDREWS OREGON
Antelope
Antique wood cook stove
Anvil Rock Rd area
Appanoose County IA Land
Appanoose County Iowa Land
Apple and Pear Tree
Appliance
APPLIANCES INCLUDED
APPROVED CAMPER TOPS ALLOWED
Approved Subdivision Lots
APPROVED TO BUILD 3BR HOME
APPROX 150 ACRES
Approx. 2 Acre spring fed pond
AR
AR acreage
AR City Limits
AR Country Home For Sale
AR Deer Turkey Hunting land
AR Greentree Timber Hunting
AR Home on Golf Course/ CC
AR hunting land for sale
AR Land
AR Land For Sale
AR Realtree Recreational Land
AR Recreational Land For Sale
AR recreational property
AR School District
AR Timberland
AR timberland for sale
AR weekend getaway land
Arcadia
Arena
Arizona Game Mgmt 15B
Arizona mountain land for sale
Arizona Mountains
Arizona unit 19B hunting
Arkadelphia
Arkadelphia School Districts
Arkansas
Arkansas Cabin For Sale
Arkansas Country Home
Arkansas Country Home For Sale
Arkansas deer hunting land
Arkansas fishing
Arkansas Hobby Farm For Sale
Arkansas hunting land for sale
Arkansas hunting land woods
Arkansas Hunting Property
Arkansas Investment Property
Arkansas Lake Front Property
Arkansas Lake Property
Arkansas land 12 acres +/-
Arkansas land for sale
Arkansas Lot on White River
ARKANSAS LOT WITH CREEK
Arkansas Lots for Sale
ARKANSAS MOUNTAINSIDE ACREAGE
Arkansas Ozarks Land for Sale
Arkansas Property for Sale
Arkansas real estate for sale
Arkansas recreation property
Arkansas Recreational Land
Arkansas recreational property
Arkansas River Lot
ARKANSAS RIVER MINUTES AWAY
Arkansas River Property
Arkansas Riverfront Property
Arkansas timberland for sale
ARKANSAS TROUT FISHING
Arkansas Vacant Land for Sale
Aroostook county
Arrowhead Lakes Land for Sale
Arrowhead Lakes Lot So MO
Artesion Well
Arthur City Texas Real Estate
Arthur City TX Homes For Sale
Ash Grove Schools
ASHBROOK
Ashley County
Asian Market
Aspen and Pine trees
Aspen Trees and Adjoins NF
AT LAKE BROWNWOOD
Athens County Ohio
Athens County Ohio Land
Athens County Ohio Land for Sa
Atlanta
Atlanta MI acreage for sale
Atlanta MI Home for sale
Atlanta MI Montmorency Cty
Atlanta MI Property for sale
Atlanta MI Real Estate
Atoka County OK Real Estate
Attached 2-Car Carport
ATV
ATV AND RV WELCOME
ATV Trails
ATV trails- quadding
ATV/UTV TRAILS
ATVs
Auction
Auction East Tennesse Land
Auction Home For Sale
Auction Live 7/24 1PM
AuSable River Otsego County
Auxvasse
Available to Subdivide
Avery Lake Lewiston MI
Awesome Hunting
Awesome Views
AZ GOLD CANYON LOTS FOR SALE
AZ VIEW LOTS FOR SALE
Azure Subdivision Atlanta MI
B&B Business
B&B for Sale in Va
Back water cove access
BACK YARD OASIS
backs BLM in SW CO
Backs up to Moundtain
Backs up to State Land
Backyard Hot Tub
Ball Ground land for Sale
Banks
Bar
Bar For Sale
BARE LAKE LOT FOR SALE
Bare lake lot North MO
BARE LAND
BARE LOT AT LAKE THUNDERHEAD
Bare lot at private lake
Bare Lot For Sale
Bare waterfront lot for sale
Barn
Barn w/ attached Apartment
Barn with Horse stalls
Barndominium for sale
Barns For Sale
Barren River Lake
BASEMENT
Basketball Court
Bastimentos beachfront
Bates County Duck Hunting
Bates County MO
Bawfaw Views
Baxter State Park
Bayfield County home for sale
Bayou de Loutre Scenic River
Bayou de Loutre wetland
Bayside Gated Community
BBQ
Beach
Beach Coastal property
Beach Community
BEACH CONDO FOR SALE
Beach front
beach front and mountain view
Beach Front views
Beach Property
BEACH RENTAL
Beach View
Beach View Property
Beaches
Beachfront
BEACHFRONT PROPERTY FOR SALE
Bean Station
Bean Station TN Lot for Sale
Bear
Bear hunting
Bear Hunting Tract For Sale NC
BEARS
BEASON CREEK
BEASON CREEK FRONTAGE 155FT
Beaufort Co. NC water access
Beaufort County
Beautiful Building Site
BEAUTIFUL CREEK
Beautiful Desert Home
Beautiful Future Homesites
Beautiful Home Site
Beautiful Home Site For Sale
Beautiful Home/Camp Site
Beautiful Landscape
Beautiful Mountain Views
Beautiful Pond
BEAUTIFUL RIVER VIEW
Beautiful Small Farm House
Beautiful tall trees
BEAUTIFUL TN RIVER VIEW
Beautiful views
Beautiful views of Spavinaw Lk
Beautiful Wood Country Cabin
Beautifully Preserved
BEAVER LAKE
BECKHAM COUNTY
Beckham county near Erick
Bed & Breakfast / Lodges
Bedford Land for Sale
BEECH CREEK TN LAND FOR SALE
Belhaven
Belhaven residential
Bent Mountain Land for Sale
Benton County
Benton County Land
Benton County Missouri
BENTON COUNTY TN
Berm House for Sale in MO
Between Ridgeland and Okatie
BIG BASS LAKE in EAST TEXAS
Big Bend Real Estate
Big Black River Frontage
Big Creek Frontage
Big Cypress Bayou
Big Game Hunting Land forsale
Big Hole River
Big Kitchen
Big Piney River Frontage
BIG RIVER PLANTATION
BIG RIVER PLANTATION LOT SALE
Big Rock Formations
Big South Fork
Big Springs
Big Stone Gap
Big timber
Big Whitetail Deer
Biking Trekking Preppers lot
Billion dollar views
Billy Creek Recreational Area
Black Bear Tract For Sale
Black Hills
Black Hills Land for Sale
Blackfork River Frontage
Blacksburg VA Land for Sale
Blacktop Frontage
Blacktop Road Frontage
Blackwater
Blake Spence Properties Sell
Blanchard Springs Caverns
Bland VA Land for Sale
BLM Lease
Blue Ribbon Trout Streams
Blue Ridge Parkway
Blue Ridge Parkway Land
Boarders State
Boardes State Land
Boat
Boat Dock
Boat dock with lift
Boat house
Boating
Boating & Kayaking
Bob Clyde Realtree Land Pro
Bogata Texas Recreational Land
Bogue Chitto River
Bogue Chitto School District
Bold Creek Front Land for Sale
BONUS ROOM
BONUS ROOM & SUNROOM
Boone & Crockett Whitetails
Border Homochitto Nat'l Forest
BORDER NATIONAL FOREST
Bordering 6600 acres public
Bordering Creek
Bordering Pike State Park
Borders Blm Garfield County
Borders Bull Shoals Lake
Borders City of Hardeeville
borders Crooked Creek 350'
BORDERS MALHEUR FOREST
Borders Modoc National Forest
BORDERS NATIONAL FOREST
Borders Ozark National Forest
Borders Public Land 2 Sides
Borders State Land
Borders State Trust
Borders State Trust - 2 Sides
Borders State Trust Land
BORDERS THOUSANDS OF ACRES BL
BORDERS THOUSANDS OF ACRES BLM
Bossier Parish
Bottom land
Bow Hunting Only
Bowhunting Land
BOWIE COUNTY
Bowling Alley For Sale
BOWLING CENTER
Bradford Island 5 Acres
Brand New Home
Brandon Wikman land specialist
BRANFORD FLORIDA
Brazos Area Mountain Land
Brazos Cabins for sale
Brazos Cliff View Property
BREATHTAKING ELEVATED VIEW
BREATHTAKING VIEWS
Brick Fireplace
Brick Home
Bridge Canyon Estates
Bristol TN Home for Sale
Bristol TN Lake Home
Bristol TN Land for Sale
Bristol VA Land for Sale
Bristol VA Real Estate
Brockett Road
Bronston
Brook frontage
Brook on Property
Brookhaven MS Land For Sale
BROWN MOUNTAIN
BROWNS DAN RIVER FRONTAGE
Brush
Buffalo National River Close
BUFFALO RIVER
Buggs Island Lake
buidable
BUIDLING SITES
Build
BUILD ON RIVER FRONTAGE
Build site
Build your Dream Home
BUILD YOUR NEW HOME HERE
Build-able land for sale
Buildabe Lot
BUILDABLE
Buildable Land with Well
Buildable Lot
Buildable Property Atlanta MI
Buildable wooded lots for sale
Building /Lit
Building Land for Sale
Building Land for Sale in VA
Building Land in Floyd VA
Building Location Cass County
Building lot
Building Lot for Sale
Building Lot for Sale Foss
Building Lot for Sale in VA
Building Lots Atlanta MI
Building Lots for Sale
Building Site
Building site -no restrictions
Building Site Available
Building Site for Home/Cabin
Building Site for Sale
Building Site for Sale in NETN
Building Site for Sale in VA
Building Site in VA For Sale
building site land for sale
Building Site near Chama NM
Building Site Near Lake
Building sIte Northern NM
Building sites
Building Sites w/lots of VIEWS
Building sites w/possible view
BUILDING SPOT ON CREEK LOT
building spots
Building to park your camper
Buildings
Built in 2006
Bull Canyon Ranches
Bull Canyon Ranches Private
BULL LAKE ACCESS
BULL RIVER
Bull shoals lake
Bull Shoals Lake Property
Bull Shoals Lakefront Prop.
BULLARD ISD
BULLARD SCHOOL DISTRICT
BULLARD TEXAS CUSTOM HOME
Bullard TX Farm Land for Sale
Bulloch County
Bulls Gap
Bunkhouse
Burkesville
Burkesville Kentucky
BURNS
Business for Sale
Business for Sale in MO
Business for sale in Utah
Business Oppor. DeTour Village
Bybee
CA Delta
CA Hunting Property For Sale
Ca.
CABIN
Cabin & Home Building Sites
Cabin and Cattle Farm
Cabin and Home Building Sites
Cabin and land for sale
Cabin Feel / Look
Cabin For Sale
Cabin For Sale Fort Towson OK
Cabin For Sale In KS
Cabin for Sale in MO
Cabin for Sale in the Ozarks
Cabin for Sale Lake Norfork
Cabin For Sale Near Chama
Cabin For Sale Near TN River
Cabin in Alton
Cabin in East TN For Sale
Cabin in Mammoth Spring
Cabin in the Ozarks
Cabin in the woods
Cabin in Woods
Cabin investment land
Cabin near Lake
CABIN NESTLED IN TREES
Cabin on 71.3 acres +/-
Cabin on Grand Mesa for Sale
CABIN ON THE CURRENT RIVER
Cabin Resort
Cabin Richland County
CABIN SITE
Cabin Site Pikes Peak View
Cabin with Outbuildings
Cabin with Utilities
Cabinet View Golf Course
Cabinet Views
CABINS FOR SALE IN MONTANA
Cabot
Cabot Public Schools District
CADDO COUNTY LAND FOR SALE
Caddo Lake
Cal Pines Lake Unit
California
California Fishing For Sale
California MO Land Auction
California Pines
California Timberland For Sale
Call Chad Madison 757-575-0774
CALL JOHN 502-331-9147
Call/Text Carla @270-403-3969
Callaway County
Camden County MO
Cameron Missouri Home
Camp
CAMP SITE
Camp with septic
Camper
CAMPER LOT FOR SALE
Camper Space
Camping
Camping Lot for Sale
Camping site
CAMPSITE
CAN BE BOUGHT WITH LESS ACRES
Canada Creek Ranch Atlanta M
Canada Creek Ranch Home 4sale
Canal Lot for sale Hillman MI
Canby Ca
Caney Bayou Hardwood Timber
Caney Fork River
canoe
CANON CITY RANCH BORDERS BLM
Canyon Views
Captivating Private Home
Caribbean coast Close to Colon
Caribou Lake Rd property 4sale
Carport or Covered Patio
Carriage Barn
Carroll County VA Land
Carson City NV Land For Sale
Carteret County
Cass County
Cass County land for sale
Cathedral Peaks Ranch land
CATLOW VALLEY
Cattle
CATTLE AND EQUINE
Cattle Farm
Cattle farm for sale
Cattle Farm in Huntsville
CATTLE FARM IN IZARD COUNTY
Cattle Farms
Cattle Grazing Land
Cattle Land for Sale South MS
Cattle Pens
CATTLE RANCH
Cattle Ranch / Equine Property
Cattle Ranch For Sale
Cattle Ranch For Sale in MO
Cattle Ranch in Southern MO
CAVE FOR SALE
Cedar County Missouri
Cedar County Mo
Cedar County MO Land For Sale
Center Pivot Irrigated Land
Central Air
Central Arkansas land
Central FL 2+ acres
Central Flyway
Central Heat/Air
Central MN Land For Sale
Central Montana Farm Land
Central Montana Home
Central Montana Home & Acreage
Central Montana Land
Central Montana Land & Timber
Central New Mexico Land
Central NM
Central OK
Central Oklahoma
Central Texas
Central Texas Country Home
Central TX land for sale
Century Farm Missouri Ozarks
Chama Hunting Land for sale
Chama NM Fixer Upper
Chama NM Homes for Sale
Chama NM Horse Property
Chama NM Irrigated Property
Chama NM Land for Sale
Chama NM Log Homes for Sale
Chama NM Lot for Sale
Chama NM Mountain Land
Chama NM Ranch for Sale
Chama NM Ranches for Sale
Chama NM Real Estate
Chama NM Real Estate for Sale
Chama NM Recreational Land
Chama NM Recreational Property
Chama NM Residential Lot
Chama Real Estate For Sale
Chama River Fishing Access
Chandler
Chandler Homesite
Chandler Hunting Land
chandler oklahoma land sale
Charming
cheap cabin building sites
Cheboygan MI vProperty for sal
Chelaque Estates Lot For Sale
Cherokee County Property
Cherokee County Texas
Cherokee County TX
Cherokee Lake
Cherokee Lake Lot for Sale
Cherokee Lakefront Lot for Sal
Cherokee Village
Chevy Irrigation Motor
Cheyenne Mountain
CHICKAHOMINY RESERVOIR
CHICKEN COOP
Chicken Farm For Sale
Chicken Houses Hartford AL
CHIEFLAND FL PROPERTY FOR SALE
Choudrant School District
Chris Pinson 970.275.1642
Chuckey
Churchill County Land for sale
Cimarron River Hunting
Cimarron Sneffels Mountains
Cisco Texas Land For Sale
Cistern
Citrus Properties For Sale
City Limits
City Lot For Sale Paris Texas
City Water
City Water Available
Claiborene Co TN Riverfront
Claiborne Co.
Claiborne County Lot for Sale
Claiborne Parish
Clark County Home
CLARK FORK RIVER
CLARK FORK RIVER AREA
CLARK FORK RIVER FISHING
CLARK FORK RIVER VIEWS
Class 2 Kirkland Silt Loam
Clay Co.
Clay County MO
Clay Patrick 850-693-6610
Clean
Clear cold water lake
CLEAR CREEK
Clear Water Frontage
Clear Water Lake
Cleared
CLEARED AND WOODED ACREAGE
CLEARED AND WOODED LAND
CLEARED BUILDING SITE
Cleared farmland for sale NC
Cleared Lot for Sale SWVA
Cleared Lot for Sale VA
Cleveland County
CLICK HERE FOR MORE INFO
Clinton County
Clinton OK Land for Sale
CLOSE BOAT LAUNCH
Close to 7 wooded ac for sale
close to airport
Close to amenities
Close to AT Trail
Close to Beach
CLOSE TO BEACHES
Close to boat ramp
Close to Bocas
Close to Buffalo Nat'l River
Close to Bull Shoals Lake
Close to By Pass
Close to City
CLOSE TO COMMERCIAL AREA
Close to Conservation land
Close to Coroando
Close to Coronado
Close to Coronado -Panama city
CLOSE TO CRANE LAKE
Close to Cripple Creek
Close to David City
Close to Dismal Falls
Close to Divide
Close to Downtown
Close to El Paso
CLOSE TO ELECTRICITY
Close to Eufaula
CLOSE TO EUREKA SPRINGS
Close to Fishing
Close To Flat Tops Wilderness
Close to Florissant
Close to Fort Collins
Close to Golf course
Close to Grider Hill Marina
Close to Heron Lake
CLOSE TO HIDEOUT GOLF COURSE
CLOSE TO HOUSTON AND BEAUMONT
Close to hunting
Close to I-40
Close to Johnson City
close to lake
close to Lake Cumberland
Close to Lake El Vado
Close to Lake George
Close to Lake Heron
Close to Lake Heron & El Vado
CLOSE TO LAKE HINKLE!
CLOSE TO LAKE MURRAY
Close to Lake Roosevelt
Close to Lake Wappapello
Close to Medical
Close to Medicine Lodge River
Close to Mingo Wildlife area
Close to Morristown
CLOSE TO MOUNTAIN VIEW
Close to National Forest
Close to Ocean
Close to Panama City
Close to Panama Cityy
Close to public game hunting
Close to public lands & rivers
Close to Restaurants Shopping
Close to Rte 17 (future I-86)
Close to Ruidoso Downs
Close to School
Close to shapping
Close to shopping
Close to shopping & dining
Close to shopping Coronado
Close to State Trust Land
CLOSE TO SULPHUR RIVER
Close to the beach
close to the gulf
Close to the Hocking Hills
Close to the New River
Close to TN/VA border
Close To Town
close to water
Close to Waynesboro & Augusta
CLOSE TO WHITE RIVER
Clsoe to shopping
Clubhouse
CO
Co Fl
CO Log home on 40 acres
CO RANCH TELLER COUNTY
Co Ranch Teller County Views
CO Vacation Home for Sale
Coasdtal Property
Coastal
Coastal near waterfront
Coastal Property
Coastal Property for Sale NC
Cobscook Bay property
Coffee County AL Land for sale
COLLINWOOD TN HOME FOR SALE
COLLINWOOD TN LAND FOR SALE
Colo. Mountain Home for sale
Colorado
Colorado Acreage for Sale
Colorado cabin for sale
Colorado cattle ranch for sale
Colorado Country Home For Sale
Colorado elk hunting property
Colorado GMU 18 & 28 elk hunts
Colorado GMU 63 hunting land
Colorado GMU 66 land for sale
Colorado golf course home
Colorado golf course property
Colorado golf property
Colorado Hunting Land
colorado hunting ranch
Colorado Investment Property
Colorado land for RV parking
Colorado Land for Sale
Colorado mountain home
Colorado Mountain Home Ridgway
Colorado Mountain Home Sale
Colorado mountain land
Colorado mountain property
COLORADO MOUNTAIN RANCH
Colorado outfitting business
Colorado Ranch Home
Colorado river front home
Colorado Springs
COLORADO SPRINGS AREA RANCH
Colorado Springs Pikes Peak
Colroado land
Coltyn Bettis land specialist
Columbia
Columbia County
Columbia County Hunting
Columbia County hunting land
Columbia County Land For Sale
Combination Bottom & Upland
Combination Farm For Sale
Combination Of Woods & Open
COMBO FARM
Comes with custom home plans
comes with equipment
Commercial
Commercial /Residential Prop.
Commercial + Private Airport
Commercial Building
Commercial Building for Sale
Commercial Business For Sale
Commercial Development Land
Commercial Hunting Ranch
Commercial Land
Commercial Land Big Cabin OK
Commercial Land For Sale
Commercial Land Paris Texas
Commercial Land Potential
Commercial location
Commercial lot
Commercial Property
COMMERCIAL PROPERTY FOR SALE
Commercial Property Hotel
Commercial property in Fulton
Commercial spot for campground
Commerical
COMMERICAL BUILDING
Common areas deeded access
Community Activities
COMMUNITY BOAT RAMP
COMMUNITY PARK
Community Water
Community Water Available
COMO
COMPLETE PERIMETER FENCING
Completly off grid
Concessions
Condo for Sale Gold Beach Or
Connie Watkins 334-798-0984
Construction Building Site
Contemporary open-concept
Convenient
Convenient Location
Convenient to Boone
Convenient to Charlotte
Convenient to Dickson
Convenient to Greensboro
Convenient to High Point
Convenient to Leesville Lake
Convenient to Roanoke
Convenient to Smith Mtn Lake
Convenient to State Park
Conveniently Located
Conway AR Shopping
Copper Hill VA Land for Sale
Cordes Junction
Cordes Lakes
Corner Lot
Corner Lot For Sale
Corner lot with 250 ft.frontag
Coronado rental
Coronado Shopping close
Corps Land
Corral
CORRALS
Cortez Golf Course
Coryell County
Coshocton County Ohio
Costa Rica Business for sale
Costa Rica Ranch/Farm for Sale
Cotham and Co Real Estate
Cottage
Cottage Style Home for Sale TN
COULD BE INCOME PRODUCING
Country Acreage
Country Acreage for Sale
Country Acreages
Country Club
Country Estate Pere Marquette
Country Estates
Country Estates/Hunting
Country Feel & Close to Town
country feel building lot
Country Home
Country Home 3 bed
Country Home Atlanta MI
Country Home Blue Ridge
Country Home For Sale
Country Home For Sale Atoka OK
Country Home for Sale in AR
Country Home for Sale in Floyd
Country Home for Sale in Fries
Country Home for sale in MO
COUNTRY HOME FOR SALE IN TN
Country Home for Sale in VA
Country Home For Sale Missouri
Country Home For Sale Moyers
Country Home For Sale NE Texas
Country Home For Sale NY State
country Home for Sale Ozarks
Country Home For Sale Powderly
Country Home For Sale Roxton
Country Home For Sale Sumner
Country Home for Sale SWVA
Country Home for Sale Tyler TX
Country Home in Alton
Country Home in Arkansas
Country Home in Colorado
country home in Locust Grove
Country Home in Missouri
Country Home in MO
Country Home in North Arkansas
Country Home in Orchard City
Country home in Oregon Co.
Country Home in Ozarks
Country Home In Red Hills Area
COUNTRY HOME IN SHANNON COUNTY
Country Home in Tennessee
Country Home in Thayer
Country Home near Koshkonong
Country Home on 3 Acres
Country Home on Acreage
Country Home on AR golf course
COUNTRY HOME ON LAKE WISTER
COUNTRY HOME OR CABIN SITES
Country Home Site for sale VA
Country Home Site on Highway
Country Home Specialist Adams
Country Home w/ Acreage
Country Home w/ Large Farm
Country home with acreage
COUNTRY HOME WITH LAND
Country Home with land in Ky
Country Home With Views
Country Homes
Country Homes For Sale
COUNTRY HOMES FOR SALE IN TN
Country Homesite for Sale
Country Homesites Okalhoma
Country homesites Oklahoma
Country Hone in the Ozarks
Country Land for Sale
Country life
COUNTRY LIFESTYLE
COUNTRY LIVING
Country Living in Missouri
Country Living near town
COUNTRY LIVING ON 7 ACRES
Country Log Home For Sale
Country Properties For Sale
Country property
Country Property Atlanta MI
Country Property Columbia LA
Country Property for Sale
Country Property in the Ozarks
Country Retreat for Sale in VA
country setting
Country Side Home
Country Style house
COUNTY
County Highway Road Frontage
County Home For Sale in NM
County Home For Sale Paris TX
County Property
County Road /State Hwy Access
County Road Access
County Road Frontage
County Water
Covered Deck at Rivers Edge
Covered parking spot
Covington County Land for sale
Cozy 1800's historic home
Cozy Cottage
CR frontage
CRAFTSMAN STYLE HOME FOR SALE
Craftsman Style Mountain Home
Craven Co. NC hunting property
Creek
Creek at Rear of Property
Creek bottom land
CREEK FRONT LAND
Creek front Property
Creek Front Property in Nor CA
Creek Frontage
Creek frontage in TN.
Creek on Property
Creek on rear of property
Creek Property
Creek Property Oklahoma
Creek run through property
CREEK THROUGH PART OF PROPERTY
Creek/ Live Spring
Creekfront Hunting Property
Creekfront Land | Streams
CREEKFRONT LAND FOR SALE IN TN
Creekfront Property for Sale
Creeks
Crooked Creek
Crop Farms
Crop Land for Sale in East TN
Crop Rent
CROPLAND
Cross Fenced
Crossville TN
CRP
CRP Ground for Sale
CRP Income
CRUMP TN HARDIN COUNTY
CSPIRE FIBER INTERNET
Cul de Sac
CUL-DE-SAC GOLF COURSE AREA
Cultivated Land for Sale
Cultivation
Cumberland County
Cumberland County KY
Cumberland River
Current River access
Current River land in Arkansas
CUSTOM
Custom Brick Home
CUSTOM BUILT
Custom Built Beautiful Home
Custom Built Cabin
Custom Built Country Home
Custom built home
Custom Built Home Abingdon VA
Custom Built Home for Sale
Custom Built Mountain Home
Custom cabin
custom home
Custom Home for Sale Chama NM
CUSTOM HOME FOR SALE EAST TX
Custom Lodge
Custom Log and Stone work
CUSTOM RANCH HOME & BARN
CUSTOM RANCH HOME 4 BEDROOM
Custom remodel Home
Cypress Brake - Duck Hunting
Dade County
Dale Hollow Lake
Dallas Co.
Dallas County
Damascus VA Property for Sale
Davenport Oklahoma Farm
Davenport Oklahoma Home
DAVIESS COUNTY MO AC FOR SALE
Davis County IA Land For Sale
Deaf Smith co farm for sale
DECATUR CO
Decatur County
Deck
Deed Restricted Community
Deeded Access To James River
DEEP WATER
Deep water access
Deep Water Bay
Deep Water Cove
DEEP WATER WELLS
DEEP WELL
Deep-Water Frontage
Deepwater Dock Permit in Hand
Deer
Deer & Turkey
Deer & turkey hunting
Deer & Turkey Hunting in TN
Deer & Turkey Hunting Land
Deer & Turkey Hunting Property
Deer and Turkey
Deer and Turkey Hunting
Deer and Turkey Hunting Land
Deer and Turkey Hunting Proper
deer and turkey land in AR
Deer and Turkeys
Deer Creek
DEER CREEK OKLAHOMA LAND SALE
Deer Habitat
Deer Hunting
Deer Hunting Farm For Sale
DEER HUNTING IN ARKANSAS
Deer Hunting in Arknasas
Deer Hunting Juneau County WI
Deer Hunting Land
Deer Hunting Land for Sale
Deer Hunting Land Oklahoma
DEER HUNTING LAND UP STATE NYE
Deer Hunting Oklahoma
Deer Hunting Property
Deer Hunting Property for Sale
Deer Hunting Property in Iowa
Deer Hunting Tract For Sale NC
Deer Stands
DEER TURKEY HOGS
DEER TURKEY HOGS BEARS
Deer Under Strict Mgt Program
Deer/Turkey Hunting acreage
DEKALB COUNTY 40 AC FOR SALE
DEKALB COUNTY MO AC FOR SALE
Del Rio Hunting Ranch for Sale
Delta Cedaredge Grand Junction
Delton
Desert Property
Desoto County Land For Sale
Desoto Parish
Detached garage
DeTour MI Waterfront Lot 4sale
Developable
development
development acreage
Development Land for Cabin
Development Land For Sale - TN
Development land for sale in
DEVELOPMENT LAND OKLAHOMA CITY
Development Opportunity
Development Opportunity in AR
Development Oppurtunity
Development Potential
Development Property
Development Property For Sale
Developmental Land
Diamond City Boat Dock Marina
DINE
Dining
Direct Beach access
Dirt road frontage
Dirt Woodsroad Access
Diverse High & Low Ground
Diverse Planted/Nat Pine Stand
Diverse Timber Types /Habitat
Diverse Wildlife
Diving
DIXIE COUNTY
Dock
Dodge County Wi Building Site
Dodge County Wi Hunting Land
DOG PARKS
DOMESTIC & EXOTIC DEER
Domestic Well
Doniphan MIssouri
double home property in Alton
doublewide
Doublewide Home
Doublewide in East TN
Doves
Downeast Recreational acreage
DOWNTOWN TYLER
DOZER TRAIL AROUND PERIMETER
Drilled Well
Drive-in Cinema
Driveway in Place
Dry 5 acres in N. FL for sale
DRY LAKE
DRYLAND CROPLAND
Dryland Hay Ground
Duck
duck & turkey hunting
Duck Blinds
Duck Clubs For Sale
Duck Hole for Sale in West TN
Duck Hunting
DUCK HUNTING LAND FOR SALE
Duck Hunting Land in Gilmer TX
Duck Hunting Louisiana
Duck Hunting Property
Duck Hunting Sloughs
Duck hunting tract Hyde Co. NC
Ducks
Ducks & Turkey Hunting
Dungannon VA Land for Sale
Dworshak Reservoir
EAGLES BLUFF SUBDIVISION
Earth Contact For Sale
EAST OF DALLAS/FORT WORTH
East Tennessee Land for Sale
East Tennessee Online Auction
EAST TEXA REAL EASTATE
East Texas
East Texas 28 acre tract
EAST TEXAS ACREAGE FOR SALE
East Texas Country Home
East Texas county living
East Texas Farm for Sale
East Texas Farm Land for Sale
EAST TEXAS FARM OR RANCH
EAST TEXAS HOME 75765
East Texas Land
EAST TEXAS LAND FOR SALE
East Texas pasture
East Texas Pasture Land
East Texas Property for Sale
East Texas Timberland
East TN
East TN Country Home For Sale
East TN Farm for Sale
East TN Hunting Land for Sale
East TN Land For Sale
East TN Lot For Sale
East Tn Mountain Land For Sale
East TN Mountain View Property
East TX Hunting Land for Sale
East TX Land for Sale Lindale
EAST TX LUXURY PROPERTIES
East TX Ranch 2 Homes for Sale
East TX Timber Land for Sale
EAST TX WATERFRONT HOMES
Eastern New Mexico Dairy
Eastland
Easy commute to Albuquerque
Easy commute to Santa Fe
Easy Ride From Coastal Cities
Easy to access year-round
Eat-In Kitchen
Eddieville Motorsports nearby
Edgewood New Mexico For Sale
Edmond Acreage
Egnar
El Vado Lake
El Vado Lake Cabin for Sale
Electric
Electric & Phone on Property
Electric and Phone on property
Electric and Septic
Electric and Telephone access
Electric Available
Electric close buy
Electric lines neaby
Electric on Property
Electric on site
Electric on the property
Electric Water Well
Electricity
Electricity & Water Well
ELECTRICITY & WELL
Electricity at Road
Electricity Available
Electricity in Place
Electricity on Property
electricity onsite
Electricity to Lot Line
Electricty
ELEVATE HILLTOP VIEW
ELEVATED CABIN OR HOMESITE
ELEVATED HILLTOP
ELEVATOR
ELK
ELK - MULE DEER
ELK & MULE DEER HUNTING
elk and mule deer hunting
Elk Capitol of Michigan
Elk Creek
Elk Hunting in GMU 551
ELK MULE DEER BEAR
Elko County Nevada property
Elko County NV land for sale
ELM CREEK
EMIGRANT MONTANA HOMES
EMINENCE MO LAND
End of maintained road
End of Road Setting
End of The Road Privacy
Energy Efficient
ENERGY EFFICIENT HOME
Enjoy Lake Roosevelt River
Enterprise AL Land for sale
Enterprise Alabama Land
Entertainment stage
Equestrian Center
Equestrian Home for Sale
equestrian property
Equine
Equine Facility w/ Morton Barn
Equine land and home for sale
Equine Land For Sale Paris TX
Equine property
Equine Property Callahan Co
Equine Property for sale
Equine Property For Sale in TN
Equine Property For Sale NE TX
Equine Property for Sale NM
Equine/Livestock Friendly
Equipment Shed
Eric Seeger land specialist
Erwin
Ess Lake Hillman MI
Established 2018
Estancia
Estancia New Mexico Land
Estancia Valley
Estancia Valley Classical
Estancia Valley Farm
ESTELLINE PROPERTY FOR SALE TX
Eufaula
EUREKA SPRINGS
Evant TX
Evening Shade
Excellent ArkansHunting Land
Excellent Duck Hunting
Excellent Fishing & Boating
Excellent Homesite w/ Views
Excellent hunting
Excellent Hunting Land
Excellent Hunting Opportunity
Excellent Location
Excellent long range Mt. views
Excellent Mountain Views
Excellent Pine Soil Site Index
Excellent swimming
EXCELLENT VIEW
Excellent Views
Excellent White Tail Hunting
Existing Driveway
Expansive
Expansive Saltwater Views
Expansive Views
Exquisite Home in Woods County
Extensive waterfront
Fabulous 3 bedroom
Family Mountain Getaway CO
Famous Rogue River Front
Famous White River 20 min away
Fantastic Mountain Views
Fantastic ocean views
Fantastic Views
Farm
Farm & Hunting Land
FARM FOR CATTLE OR EQUINE
FARM FOR LIVESTOCK
Farm for Sale
Farm for Sale 144 Acres
Farm For Sale Harrison Co.
Farm For Sale Henry County Moo
Farm For Sale In Arkansas
Farm for Sale in Draper VA
Farm for Sale in Floyd County
Farm for Sale in Floyd VA
Farm for Sale in Hardeman Co.
FARM FOR SALE IN MISSOURI
Farm for sale in MO
Farm for Sale in Oregon Co
FARM FOR SALE IN SHANNON CO
Farm For Sale in Southern Iowa
Farm for Sale in Southern MO
FARM FOR SALE IN TENNESSEE
Farm for Sale in the Ozarks
FARM FOR SALE KAHOKA MO
Farm For Sale Leeton Missouri
Farm For Sale Paris Texas
Farm For Sale Southern Iowa
Farm For Sale Taylor County IA
Farm Ground For Sale
FARM HOUSE
Farm House & Land for Sale
Farm house in Illinois
Farm in Indian Valley VA
FARM IN IOWA FOR SALE
FARM IN IZARD COUNTY
Farm Land
Farm Land & House for Sale
Farm Land For Sale
FARM LAND FOR SALE IN MO
Farm Land for Sale in VA
FARM LAND IN UPSTATE N.Y.
Farm Land Near New Orleans LA
Farm Land near San Angelo
Farm Land Oak Grove LA
Farm Property Chocowinity
Farm Property near Delta
Farm tract Beaufort County NC
Farm with Acreage For Sale
FARM WITH HOME
FARM WITH HOME FOR SALE
Farm with Road Frontage
Farmable Land
Farmhouse
Farming
Farming Land for Sale in VA
Farmland
FARMLAND FOR SALE AMBER OKLA
Farmland for Sale in Bland VA
Farmland for Sale in Floyd VA
Farmland for Sale in SWVA
Farmland For Sale in VA
Farmland for sale Roper NC
Farmland SW Wisconsin
Farmland with good soils
Farmland/Open Pasture/Wooded
Farms
Farms for Sale
Farms for sale Beaufort Co. NC
Farms For Sale Bogata Texas
Farms For Sale in Iowa
Farms for Sale in Tennessee
Farms For Sale Southern Iowa
Farmstead
Faulkner County Lot for Sale
Fayette MS Land For Sale
Feeders and Blinds
Feedlot
Fence
Fence and Round Pen for Horses
fenced
FENCED ACREAGE EAST TEXAS
Fenced Back Yard /Back Patio
Fenced Garden and chicken Coop
Fenced Land for Livestock
Fenced Pasture
Fenced Pasture and Hardwoods
Fenced Pasture for Horses
FENCED PASTURE LAND FOR SALE
Fenced Pastures
FENCED READY FOR LIVESTOCK
Fencing for Livestock
Few Minutes From Waynesboro TN
FIBER OPTICS
Fields / Food Plots in Place
fields and timber
Fine Sandy Loam Soils
Finished Basement
Fire Pit
FIREPLACE
Fireplace Location
FISH
Fisherman's Dream
Fishing
FISHING & BOATING
FISHING AND BOATING LAKE
Fishing and kayaking
Fishing Camp Concordia Parish
Fishing Hiking Skiing
Fishing Hunting HIking
FISHING IN PLAINS MONTANA
Fishing Lake
FISHING LOT FOR SALE
fishing nearby
FISHING ON EAST TEXAS LAKE!
Fishing Properties For Sale
Fishing property
Fishing Property For Lease
Fishing Property For Sale
FISHING PROPERTY IN MONTANA
Fishing Property Oklahoma
Fishing Rights
Fishisng
Fixer Upper For Sale
Fixer Upper for Sale in VA
FIXER-UPPER
Fixtures
FL
Fl Land For Sale
FL Ranch For Sale
Flag Lot
Flag Pond Tennesseee Auction
Flat / Gently Sloping Topo
Flat and ready to develope
Flat building Area
Flat Land
Flat to Gently Sloping Terrain
Flexible Zoning
floating
Floating cabins in KY for sale
Floating Dock
FLOIRDA
Flood Irrigated Hay Land
Florida
FLORIDA ACREAGE
FLORIDA BEACHFRONT CONDO
FLORIDA BOATING PROPERTIES
Florida farm land for sale
FLORIDA FISHING
FLORIDA HOME FOR SALE
FLORIDA HOMES
FLORIDA HUNTING
Florida hunting land for sale
florida land
FLORIDA LAND FOR SALE
FLORIDA LOTS FOR SALE
FLORIDA VACANT LAND
FLORIDA WATERFRONT PROPERTY
FLOWING CREEK
FLOWING WELLS
Floyd County Property for Sale
Floyd County VA Land
Floyd County VA Land for Sale
Floyd County VA Real Estate
Floyd VA Home for Sale
Floyd VA Hunting Land
Floyd VA Land for Sale
Floyd VA Real Estate
Floyd VA Real Estate for Sale
FOOD PLOT AREA
Food Plots
For Sale
For sale Climax Springs
For Sale Duck Hunting Property
For Sale Garnett
FOR SALE IN ANDERSON COUNTY
FOR SALE IN ARKANSAS
For Sale in Fort Jones
For sale in Siskiyou County
FOR SALE TN HUNTING TIMBERLAND
For Sale Vacant Lot/Land NC
Fordyce School District
Forest area/ Cover
FORESTED WITH HOMES ON 2 SIDES
Foresthill For Sale
Former home site
Foss Lake Lot For Sale
FOUR SEASONS RECREATION
Fourche & Black River Frontage
Franklin County Land For Sale
Franklin County Mississippi
Franklin County VA Land
Franklin County VA Real Estate
Franklin TN Land For Sale
Frankston TX Land For Sale
FRANKSTON TX REAL ESTATE
Fredericksburg
FREE GOLFING
FRENCHTOWN PROPERTY FOR SALE
Front and back decks
Frontage Lot
Frontage on HWY 431
Frontage on two roads
Fronts Gov Strip 1/2 mile
Fronts Hwy 62/412
Fruit trees
FS Access
Ft Leonard Wood Military Base
Full of wildlife
Full Section
Full walkout basement
Fully Fenced
Fully Fenced & Gated
Fully fenced wooded acreage
FULLY FURNISHED
FULLY FURNISHED LAKEFRONT HOME
Fully Furnished Living Area
Fully Insulated RV Barn
Fulton Co AR Land for Sale
Fulton County AR
Fulton County AR Home
Fulton County Arkansas
Fulton county Arkansas home
Furnished
Furnished and Move in ready
FURNISHED HOME IN EAST TEXAS
Furnished Lake House for Sale
furniture
Future Homesite
Future Timber Investment
Future Timber Value
Future Waterfront Home Spot
GA
Gainesville
Gaited Community
Game Farm
Garage
Garage/barns
Garden Shed and Chicken Coop
Gasconade County Land
Gasconade River
Gaston County
Gate
Gated
Gated & Private
Gated and private Land
Gated Comm. Private Airstrip
Gated Community
Gated Community Land For Sale
Gated Community on Bull Shoals
Gated community safe secure
Gated Community TN
GATED GRAVEL DRIVEWAY
Gated Gravel Oil Field Road
GATED HOME IN HOLLY LAKE RANCH
GATED SUBDIVISION
Gatesville
Gatesville TX
Gazebo
General Store & Gas Station
Generator
Genetics
Geneva Lake Canada Creek Ranch
gentle slope south facing lot
Gently Rolling Land in East TN
Geo Thermal
GET-AWAY
GETAWAY
Getaway Property
GILCHRIST COUNTY
Gilchrist County Property
Giles County
Giles County VA Home for sale
Giles County VA Homes for Sale
Giles County VA Land for Sale
Giles County VA Real Estate
Giles VA Hunting Land
Glade Park Land for Sale
Glade Spring VA Real Estate
Glass Gazebo with Fireplace
GMU 31 Colorado hunting ranch
Go Kart Track
Goat Ranch
GOLD CANYON AZ CUSTOM HOME LOT
Gold Mine For Sale
Goldendale
Goldendale WA
Goldendale Washington
GOLF
Golf & beach Neighborhood
Golf Community Lot for Sale
Golf course
Golf course building site
Golf Course Community
GOLF COURSE HOME
GOLF COURSE HOME EAST TEXAS
GOLF COURSE LOT EAST TX
Golf Course Lot for Sale
Golf Course Neighborhood
Golf Course Property
Golf course property ownership
Golf Membership
Golf Property
Golfing Biking Fishing
Golfing Property for Sale
GOOD ACCESS AND UTILITIES
GOOD BUILDING SITE
GOOD COUTY ROAD ACCESS
Good Development Opportunity
Good Fence
Good Fence and Cross Fence
Good Hunting
Good Livestock Farm
Good Roads Public Land Access
Good Stands of Timber
Good Timber Value
Good Whitetail Genetics Area
Goodland
Google 05071-21012
Google 05071-21027
Google 05071-21110
Google 05071-21112
Google 05071-21113
Grainger Co.
Grainger Co. TN Land For Sale
Grainger County Home for Sale
Grainger County Lot for Sale
Grand Cane
Grand Mesa National Forest
Grand Saline
GRANT CO.
GRANT COUNTY
GRANT COUNTY KS LAND FOR SALE
GRANT COUNTY LAND FOR SALE
grass
Gravel road Frontage
grazing
Grazing Land
GREAT ACCESS CLOSE TO TOWN
Great Area For Hunting
great bass fishing
Great Beaches
Great Building Site
GREAT BUILDING SITES
Great Deer & Duck Hunting
Great Deer & Duck Population
Great Deer & Duck Populations
Great Deer & Turkey Population
Great Deer and Turkey Hunting
Great deer hunting
Great Deer/Turkey Hunting
Great Development Potential
Great Fishing & Kayaking
Great Fishing/Water Sports
Great Home Site
Great Home/Cabin Site
Great horse property for sale
Great hunting
GREAT HUNTING LAND
Great Hunting Property
Great Interior Road System
Great Investment Opportunity!
Great Investment Property
Great land layout
Great Location
Great Lot
Great Lowcountry Location
Great Mini Farm
GREAT MINI FARM FOR SALE
Great Pasture
Great Pastures
Great private Location
GREAT SOIL FOR GARDEN
Great view
Great view of Handford Bluffs
Great Views
Great Views Sangre de Cristo
Great Water
GREAT WEEKEND GET-A-WAY
Great Whitetail Hunting
Great Wildlife Habitat
Green Ridge State Forest
green space for gardenning
Greenbrier High School
Greene Co.
Greenhouse
Greenhouse & Subterranean grow
Greenville MO land for sale
Greers Ferry Lake
Greers Ferry Lake frontage
Greers Ferry Lake Lots
Greers Ferry Lake Views
ground water
Guadalupe County
Guadalupe County New Mexico
Guadalupita NM Home for Sale
Guaranteed Rental program
Guest House
Guide service for sale CO
Gunnison County
guthrie land for sale
Gym/Fitness Center
Hamblen Co.
Hamilton County
HAMILTON COUNTY KANSAS FARM
Hancock Co.
Hancock County TN Land Auction
Hand- Hewn Log Cabin
Handicapped Accessible
HANDY TO FT. SMITH
Handyman Special
Hard Surface Road
HARDIN CO TN LAND FOR SALE
Hardin County Tennessee
Hardwood /Wetland Bottoms
Hardwood Bottomland
Hardwood Bottoms
Hardwood Creek Drain
HARDWOOD FLOORS
Hardwood home
Hardwood SMZ Drain
Hardwood Timber Land SW MS
Hardwood Timberland Lorman MS
Hardwood Timberland Tract LA
Hardwoods
Hardy
Harrison County
Harrison County MO
Harrisonville School District
Harvestable Timber
Has pond on property
Haskell Co. land for sale
Hawaii off grid living
HAWKINS
Hawkins Co.
Hawkins Co. Land For Sale
Hay
Hay Ground
headwater to Jackson River
HEAVILLY WOODED PINE & HW
Heavily Timered
Heavily Treed
Heavily Wooded
HEAVILY WOODED ACREAGE EAST TX
Heavy Trees
Hempstead County home for sale
Henry County
Heron Lake Acreage w Views
Heron Lake Land for Sale
Heron Lake Lot For Sale
Hickory County
Hiddenite
High Demand Combo Farm
HIGH ELEVATION
High Fence
High Fence Hunting Property
High Fence Hunting Tract SW MS
High Fence Land
High Fenced
High Production Farm Ground
High Speed Internet
High Traffic
High traffic count
High Yield Tillable Acreage
Highway 15 Frontage
Highway 15 Frontage for Sale
Highway 65 Frontage
Highway access
Highway frontage
Highway K frontage
Hike
HIKE-BIRDWATCHING
HIKING
HIKING - BIRDWATCHING
Hiking & ATV trails
Hiking and Riding Trails
Hiking Biking Fishing
Hiking Biking Hunting ATVs
Hiking Biking Hunting Swimming
Hiking Biking Skiing
Hiking Biking Skiing Swimming
Hiking Biking Swimming
Hiking Hunting Skiing
Hiking Hunting Skiing Jeeping
Hiking Hunting Skiing Swimming
Hiking Swimming Biking
Historic Antibellum Home
Historic Barn/Structures
Historic building & area
Historic Home Oklahoma
Historic Home Over 100 Yrs Old
Historic Land For Sale Nor Cal
Historic Linger Long
Historical Property
HOA
Hobby Business DeTour MI
hobby farm
Hobby Farm For Sale
Hobby Farm for Sale in MO
HOBBY FARM FOR SALE MO OZARKS
Hobby farm for sale NC
Hobby Farm for Sale Ozarks
Hobby Farm In Mo Ozarks
Hobby Farm in Shannon County
Hobby Farm Missouri
Hobby Farm near Birch Tree MO
Hobby Farm near town
Hobby Farm Opportunity in TN
Hobby Ranch
Hocking County
Hocking County Land For Sale
Hocking Hills
HOGS
HOLLY LAKE RANCH
Home
Home & Land for sale
Home & Land For Sale Atoka OK
Home & Ranch Country living
Home 4sale Lake Huron
Home and 10 acres
Home and Acreage
HOME AND ACREAGE FOR SALE
Home and land Antlers
Home and land for Sale
Home and land for sale East TX
Home and Land for Sale in MO
Home bordering National Forest
Home Building Site
HOME BY TN RIVER FOR SALE
Home comes fully furnished
Home for Sale
Home for Sale Abingdon VA
Home for Sale Adams County MS
Home for Sale Amite County MS
Home For Sale Arthur City TX
HOME FOR SALE AT THE LAKE
Home for sale Atlanta MI
Home for Sale Bean Station TN
Home for Sale Bristol TN
Home for Sale Glade Spring VA
Home for Sale Iconium MO
Home for Sale in Abingdon VA
HOME FOR SALE IN AR
Home for Sale in AR Ozarks
Home for sale in Franklin
Home for Sale in Fulton Co AR
home for sale in hermann mo
Home for sale in Mammoth
Home for Sale in Narrows VA
Home for Sale in NRV
Home For Sale in Ozarks
Home for Sale in Pearisburg VA
Home for Sale in Russel County
HOME FOR SALE IN SHANNON CO
Home for sale in Sonora Tx
Home For Sale in Town
Home for Sale in Willis VA
HOME FOR SALE IN WINONA
Home for Sale Jacksonville TX
HOME FOR SALE LAKE PALESTINE
Home for Sale Lebanon VA
Home for Sale Lincoln Parish
Home For Sale Monticello MS
Home for sale near Hope
Home for Sale Near West Plains
Home For Sale Northern NM
Home for Sale on Spring River
Home For Sale Paris Texas
Home For Sale Powderly Texas
Home for sale quiet neighborho
home for sale Red Oak ok
Home for sale Richland County
Home For Sale Roxton Texas
Home for sale Sonora Caverns
Home for Sale St. Francisville
Home for Sale SWVA
Home for Sale West Plains MO
Home for Sale with Acreage VA
HOME IN GATED NEIGHBORHOOD
Home in Missouri Ozarks
Home in Northern Arkansas
Home in Ripley County
Home in Subdivision SWVA
Home in the Country in Iowa
Home in The Village Of Chama
Home in Town
Home in Willis VA for Sale
Home lot with lake access MO
Home Near Lake
Home near Lakes and Rivers
Home near Norfork Lake
Home Near Wilburton
Home of Bull Shoals Lake
Home on 16 Acres Southern MO
Home on 25 Acres For Sale
Home on 40-Acres in Iowa
Home on 5 Lots for sale CCR
Home on full walkout basement
Home on Golf Course in AR
Home on River in AR
Home on the Golf Course CO
Home or Cabin Site
Home Site Antlers Oklahoma
Home Site For Sale
Home Site For Sale Detroit TX
Home Site for Sale in Bland VA
Home Site Lake Creek Texas
Home site w/city water&Septic
Home Sites
Home surrounded by windows
Home w/ 17 acres for sale
Home w/ 4 stall barn
Home w/ log guest house
Home with 16+ Acres
Home with Acreage
Home with Acreage for Sale
Home with Acreage in MO
Home with Acreage Ozarks
Home with Acreage SWVA
HOME WITH BASEMENT
Home with Creek SWVA
HOME WITH LAND FOR SALE
HOME WITH POOL FOR SALE
Home with shop/ No covenants
Home with two lots
Home with water rights
Home/Camp Site Potential
HOMES FOR SALE FANNIN COUNTY
Homes For Sale Lamar County
Homes For Sale Sumner Texas
Homes in the Ozarks
Homes w Acreage Rio Arriba Cty
homesite
Homesite for Sale in Willis VA
Homesite for Sale Ruston
Homesite Land Slocomb Al
Homesite location
homesite Macomb Oklahoma
homesite Pott county
Homesite Slocomb AL
homesite sparks oklahoma
Homesite w/ Utilities at Road
Homesites
Homestead
Homestead land for sale
Homochitto National Forest
Homochitto Riverfront Property
HOPKINS COUNTY TEXAS LAND
Horse & cattle 40 acres
Horse Barn with Stalls
Horse Corral and Shelter
HORSE FARM FOR SALE
Horse Farm for Sale Fries VA
Horse Farm for Sale in VA
Horse Farm-Barns
Horse Property
HORSE PROPERTY COLUMBIA LA
Horse Property Edmond
HORSE PROPERTY FOR SALE
Horse property for sale AZ
Horse Property for Sale Chama
Horse Property in Columbia LA
Horse Property in Virginia
Horse property Sauk Cty WI
Horse Property with corrals
Horse Ranch
Horse Ranch near Grand Mesa
Horse Riding/Hiking Trails
Horse Trails
horseback riding
HORSEBACK TRAIL RIDING
HORSES
Hospital
Hot Springs Village
Hot Tub
HOT TUB IN BACKYARD
House for sale Hallsville ISD
House for Sale Meadville MS
House for Sale Natchez
House for sale near san angelo
House for Sale Pike County MS
House for Sale Texas
House for Sale West Felicicana
House In Gorgona
House on White River
House Sold As It
HOUSE W/ACRES
House with Acreage for Sale
House with Work Shop
Houses for sale in Alton MO
Houses for sale in the Ozarks
Houses income property
Houston Co Al Land For Sale
HSU
huge garage
Huge Shop
Huge Shop building
Huge Views
Hunt
Hunt Club Share & Camp in LA
Hunt Club Share for Sale SW MS
Hunt Deer Duck in Smith Co TX
Hunt East TX Deer Ducks Hogs
Hunt ETX Whitetail Deer & Hogs
Hunt Native TX & Exotic Game
Hunt Polk Co TX Land for Sale
Hunt your own land
HUNTERS DELIGHT ACREAGE
HUNTERS PARADISE
Huntig lanes
huntign tract
Hunting
Hunting / Fishing
HUNTING & FISHING IZARD COUNTY
HUNTING & FISHING LAND
HUNTING & PASTURE
Hunting & Recreation
Hunting & Recreational Propert
Hunting & Recreational Value
Hunting & Wildlife Galore
HUNTING AC FOR SALE NW MO
Hunting Acreage
Hunting Acreage for sale
Hunting and Recreational
Hunting and Recreational Land
HUNTING AREA
HUNTING AREA UNIT 34
Hunting Auction in TN & VA
HUNTING CABIN
Hunting Cabin For Sale in Iowa
Hunting Camp
Hunting Camp 4Sale Lachine MI
Hunting Camp for Sale
Hunting Camp for Sale NE LA
Hunting Camp Northern Michigan
Hunting Camp Site /Utilities
Hunting Camp with 408 Acres
Hunting East Texas Wildlife
Hunting Equity Shares For Sale
Hunting Farm For Sale NW MO
Hunting Farm in NW Missouri
Hunting Fishing Biking Hiking
Hunting Fishing Biking Skiing
Hunting Fishing Hiking Climb
Hunting Fishing Skiing
Hunting Fishing Swimming
Hunting Ground
Hunting ground Galena
Hunting Ground with Return IA
Hunting guide service for sale
Hunting Hiking Biking
HUNTING IN ARKANSAS
HUNTING IN BROOME CO.
HUNTING IN CALICO ROCK
HUNTING IN CORTLAND COUNTY
HUNTING IN IZARD COUNTY
Hunting Jefferson County
Hunting Land
Hunting land Adams County
Hunting Land Bogata Texas
Hunting land Chandler
Hunting Land Crawford County
Hunting Land For Sale
Hunting land for sale Adams
Hunting land for sale Arkansas
Hunting Land For Sale Crawford
Hunting Land For Sale Detroit
Hunting Land for sale in AL
Hunting Land for sale in AR
Hunting Land for Sale in Floyd
Hunting Land For Sale in Iowa
HUNTING LAND FOR SALE IN MO
hunting land for sale in Texas
HUNTING LAND FOR SALE IN TN
Hunting Land for Sale in VA
Hunting land for sale Irion Co
Hunting land for sale Kansas
Hunting land for sale KY
Hunting land for sale Missouri
Hunting Land for sale Mo
HUNTING LAND FOR SALE MO IN MO
Hunting Land For Sale MS
Hunting Land for Sale OK
Hunting Land for Sale Oklahoma
Hunting Land For Sale Paris TX
Hunting Land for Sale Smith Co
Hunting Land For Sale So. IN
Hunting Land for Sale South MS
Hunting Land for Sale SW MS
Hunting Land for sale WI
Hunting Land for Sale Willis
Hunting Land Fort Towson OK
Hunting Land Gregg County TX
Hunting land in AR for sale
Hunting Land in Bristol VA
Hunting Land in Buffalo
Hunting Land in Florida
Hunting Land in Floyd VA
Hunting Land in Freestone Co
HUNTING LAND IN IOWA FOR SALE
Hunting Land in Jonesburg
Hunting land in Monroe County
Hunting land in Montello
HUNTING LAND IN NORTH MO
Hunting Land in Northern NM
HUNTING LAND IN NY
Hunting Land in Oklahoma
HUNTING LAND IN THE OZARKS
HUNTING LAND IN UPSTATE N.Y.
HUNTING LAND IN UPSTATE NY
Hunting Land in VA
Hunting Land in Wayne Co
Hunting Land Jackson Parish
Hunting Land Juneau County
hunting land lincoln county
Hunting land Marquette County
HUNTING LAND MOUNTAIN STREAM
Hunting Land Near Destin
Hunting land near Edmond
hunting land near OKC
Hunting Land Northen Michigan
hunting land oklahoma
Hunting Land Overton for Sale
Hunting Land Ranch For Sale Co
Hunting land Richland County
hunting land SE Oklahoma
Hunting Land South Mississippi
Hunting Land Southwest MS
hunting land sparks oklahoma
Hunting Land St. Clair County
Hunting Land Vernon County
Hunting land Vernon County WI
hunting land with cabin
Hunting Leases
Hunting Lodge for sale in OK
Hunting Lodge In Kansas
Hunting Lodge on Acreage
Hunting Nearby
Hunting Paradise
Hunting Potential
Hunting Properties Arkansas
Hunting Properties For Sale IA
Hunting Property Borders BLM
Hunting Property CO GMU 411
Hunting Property Craven County
Hunting Property Echols Cty GA
Hunting Property For Sale
Hunting Property for Sale AR
Hunting Property For Sale Iowa
Hunting Property for Sale LA
Hunting Property for Sale MN
Hunting Property For Sale MS
Hunting Property for sale NC
Hunting Property For Sale SEMO
Hunting property for sale Tn
Hunting Property For Sale TX
Hunting Property for Sale VA
Hunting property in Kentucky
HUNTING PROPERTY IN LOUISIANA
HUNTING PROPERTY IN MONTANA
Hunting Property in SW CO
Hunting Property Johnson Co.
Hunting Property Liberty MS
Hunting Property Moyers OK
HUNTING PROPERTY N LOUISIANA
Hunting Property Oak Grove LA
hunting property oklahoma
Hunting Property Ozark Co. MO
Hunting Property Pickens Co AL
Hunting Property South MS
Hunting Property Southwest MS
Hunting property with home
Hunting Property with House IA
Hunting property.
Hunting Ranch
Hunting Ranch & Retreat
Hunting Ranch Chama NM
Hunting Ranch for sale
Hunting Ranch in Pinon
HUNTING RECREATION TIMBER LAND
HUNTING RECREATIONAL LAND
HUNTING RETREAT
Hunting Shack
Hunting tract
Hunting tract Beaufort Co. NC
HUNTING TRACT FOR SALE FLORIDA
Hunting tract Hyde County
Hunting Tract in Linn County
Hunting Unit 34
Hunting/Fishing land for sale
Hunting/Fishing property
Hunting/Recreation Land SW MS
Hunting/Recreational
Hunting/Recreational Property
Huntsville
HWY FRONTAGE
Hyde County
Hyde County Hunting land
I35 access
i64
IA Building Location For Sale
IA Hunting Land For Sale
IA Hunting Property For Sale
IA Land
IA LAND FOR SALE
IA Timberland For Sale
IA Trophy Whitetail Farm
Idabel Oklahoma Real Estate
Idaho land for sale
Ideal camper site
Ideal get away
Improved Grass
Improved Pasture
IMPROVED PASTURE LAND
Improved Pasture Land For Sale
In coronado
In Ground Heated Pool
In Ground Pool Log Cabin home
In Heart of Duck Country
in Kentucky
In Town
In town home
Includes Trailer
Income generator
Income Potential
Income Producer
Income Producing
Income Producing Farm For Sale
Income Producing Property
Income Producing Property OK
Income producing tillable farm
Income property
Incredible views
Incredible Whitetail Hunting
Indian River Waterfront
Indiana Country Home
Indiana Hunting Land
Indiana Hunting Land for Sale
Indiana Recreational Land
Indiana recreational property
Indoor Arena
Indoor firepit
Inside Rosston
Int'l Falls
Interestate location
Intermittent Creek Drain
International Falls
International properties
Internet available
Inventory
INVESTMENT
Investment Land
Investment land for sale
Investment Land For Sale Paris
Investment Land For Sale SE OK
Investment Opportunities
INVESTMENT OPPORTUNITY
Investment Pine Land
Investment Pine Timberland
Investment Potential
Investment Property
Investment Property For Sale
Investment Property Hyde Co.
Investment property Kahoka
Investment Property Paris TX
Investment Timberland Property
investment/income
Investment/Income Property
Iowa City Home
Iowa Farm For Sale
Iowa Farm Land for Sale
Iowa Hunting Land For Sale
Iowa Hunting Property
Iowa Income Producing Farm
Iowa Investment Property
Iowa Land For Sale
Iowa Pasture Land for Sale
Iowa Recreational Land
Iowa Tillable Row Crop Farm
IOWA/MO BORDER LAND FOR SALE
Irion county
IRONWOOD SUBDIVISION
Irrigated Acreage for
Irrigated Crop & Hay Land
Irrigated Cropland
Irrigated Cropland For Sale
Irrigated Farm Ground
IRRIGATED FARM LAND PROPERTY
irrigated hay meadows
Irrigated Land for Sale Chama
IRRIGATED LAND FOR SALE IN KS
Irrigated Land For Sale TA NM
Irrigated Land near Chama NM
Irrigated Pastures
Irrigation
Irrigation Included with Sale
Irrigation Pivots
Irrigation Water Rights
Island Gourmet Kitchen
Isle MN Hunting Land for Sale
IZARD CO RIVERFRONT PROPERTY
Izard County AR Land for Sale
IZARD COUNTY WHITE RIVER LOT
JACK COUNTY HUNTING PROPERTIES
JACKSBORO LAND FOR SALE TX
Jackson County
Jackson County Ohio
Jackson County- Merritt's Mill
Jacksonville
James River Front Property
Janice Grantham 334-714-9183
Jason Syens Land Specialist
Jason Syens Realtor
Jason Syens WI land specialist
Jason Syens WI Realtor
Jason Syens Wisconsin Realtor
JAVILINAS
Jay County Business For Sale
Jefferson County IA Land
Jefferson County Land For Sale
Jefferson County Mississippi
Jim Dunn Creek
Jim Vilstrup WI Realtor
joe Nawrot land specialist
JOG
John Parsons Broker Realtor®
Johnson County Acreage
Johnson County Iowa Home
Johnson County Iowa Land
JOINS CORPS OF ENGINEERS LAND
Joins National Forest
Jones County
Jonesboro TX
Josh Genz WI Realtor
Jot's 427
Julie Piland 970-985-0913
July 11 @ 1:30 p.m.
July 15 @ 6 p.m.
July 25 @ 3:30 p.m.
June 15 @ 6:30 p.m.
Juneau County
Juneau County Country Home
Juneau County hunting land
Juneau County land for sale
Juneau County WI
Jungle behind
Just Under 5 BIG Acres
Just what you're looking for
Kanabec Cty Hunting Land
KANSAS FARM FOR SALE
Kansas Farmland For Sale
Kansas Hunting Land For Sale
Kansas Hunting Property
Kansas Land For Sale
Kansas Pasture Land For Sale
KANSAS RANCH FOR SALE
Kayak Out To The Broad River
Kelly Bayou Bottomland
Kentucky
Kentucky hunting land for sale
Kentucky land for sale.
Kentucky recreational land
Kerr Lake
Kettle River
Kewaunee County hunting Land f
Kiamichi River Frontage
KIamichi River Valley
kids log fort
King County Texas
KINGS RIVER
KIRKSVILLE
Kitchen
Klamath River
Klamath River Land for Sale
Klamath River Views
Koochiching County
KRCE
KS
KS LAND
KS LAND FOR SALE
KY
Kyles Ford TN Land Auction
LA
La Crosse land for sale
LA-Hwy 550 frontage
LAFAYETTE COUNTY
LAFAYETTE COUNTY HOMES
LAFAYETTE COUNTY LAND
LAFAYETTE COUNTY LAND FOR SALE
Lagoon
Laguna Vista Estates
Lake
LAKE ACCESS
LAKE AMISTAD HOME FOR SALE
Lake and Mountain Views
Lake Brownwood
LAKE BROWNWOOD ACCESS
Lake Business For Sale
Lake Cabin
Lake Cabin for Sale
Lake Cabin for Sale in Colorad
Lake Community with Air Strip
LAKE CYPRESS SPRINGS
Lake Front
LAKE FRONT HOME FOR SALE
LAKE FRONT HOME IN TX
Lake Front House For Sale
Lake Front House Lake Marie
Lake Front Land For Sale
Lake Front lot for sale
Lake Front Lot in East TN
Lake Front lot on Lake Wooten
Lake Front Property
Lake front property for Sale
Lake Gaston Lake Front
Lake George
Lake Home
LAKE HOME FOR SALE
Lake Home for Sale Bristol TN
Lake House
Lake House For Sale
Lake Huron
Lake Huron Saginaw Bay
LAKE LIVING
LAKE LOT FOR SALE
LAKE LOT FOR SALE IN NORTH MO
Lake Lot For Sale Up North MN
Lake lot in North MO for sale
Lake Lot Near Coldwater
LAKE LOT WITH CAMPER FOR SALE
Lake lots for Sale
Lake Lots Heart of MO Ozarks
Lake Marie Lake Front House
Lake Monroe Land
Lake Norfork
Lake of the Ozarks
Lake on Property
LAKE PALESTINE ACREAGE
LAKE PALESTINE HOME FOR SALE
LAKE PALESTINE LOT FOR SALE
LAKE PALESTINE PROPERTIES
LAKE PALESTINE PROPERTY
LAKE PALESTINE REAL ESTATE
Lake Piomingo Comumunity
Lake Property
LAKE PROPERTY EAST TX
LAKE PROPERTY FOR SALE
Lake Property for Sale AR
Lake Property for sale Chama
Lake property for sale Kansas
Lake Property for Sale MN
Lake property in Missouri
Lake Property MO
Lake Property Ozark Co MO
Lake Stockton
Lake Thunderhead bare lot
Lake Thunderhead Home For Sale
Lake Thunderhead lot for sale
Lake Thunderhead lots for sale
Lake Thunderhead property
LAKE THUNDERHEAD TIER LOT
Lake Thunderhead waterfront
Lake View
Lake view building site Kansas
Lake view home
Lake View Lot for Sale
Lake View Lot in Hawkins Co
Lake Views
Lake views with sunsets
LAKE WINNSBORO TEXAS
Lakefront
LAKEFRONT 13MM BIG NIANGUA
LAKEFRONT ACREAGE IN EAST TX
Lakefront Camp
Lakefront Cottage
Lakefront for sale
Lakefront Home
Lakefront Home 4sale AtlantaMI
Lakefront Home for sale
Lakefront Home Lake City
Lakefront Home with Acreage
Lakefront Log Cabin
LAKEFRONT LOT
LAKEFRONT LOT ALMOST AN ACRE
LAKEFRONT LOT FOR SALE
Lakefront Lot For Sale in TN
Lakefront Lot for Sale in VA
Lakefront Lot with Utilities
Lakefront Property
LAKEFRONT PROPERTY EAST TX
Lakefront Property For Sale
Lakefront Property Omaha
Lakefront recreational land AR
Lakefront Resort
Lakehouse for Sale Bristol TN
LAKES/RIVERS/STREAMS
Lakeshore Acres on Bull Shoals
Lakeview
LAKEVIEW PROPERTY
Lakeview Property For Sale
LAKEVIEW PROPERTY W/CABIN
Lakw Property
Lamar County Real Estate
Lamar County School District
Lampasas River
Land
Land - 21 +/- Ac.
Land Acreage Central Wyoming
land and barn for sale in TX
Land and Home for Sale
Land And Shop For Sale
Land Auction
LAND BY LAKE WINNSBORO
Land can be Divided
LAND CLOSE TO RECREATION
Land For Sale
Land for Sale 1hr from NYC
Land for Sale 7+/- ac
Land for sale Adams County
Land for Sale Adams County MS
Land For Sale Alford
Land for Sale Alturas
Land for Sale Amite County MS
Land for Sale Anderson Co TX
Land For Sale Antlers Oklahoma
Land for Sale AR
Land for Sale Auburn Schools
Land For Sale Avery Texas
Land for Sale Benton Co MO
Land for sale Benton County
Land for Sale Bienville Parish
Land For Sale Blairstown MO
Land For Sale Bogata Texas
Land for sale Branson
Land for Sale Brazos NM
Land For Sale Brookhaven MS
Land for sale Bull Shoals Lake
Land for sale Calhoun Co Fl
Land for Sale Caliborne Co
Land For Sale Cape Girardeau
Land for sale Cass County Mo
Land for Sale Catahoula Parish
Land For Sale Chama NM
Land for Sale chama NM Brazos
Land for Sale Claiborne Co
Land for Sale Claiborne County
Land For Sale Clarksville TX
Land for Sale Clayton OK
Land For Sale Coffee Spring AL
Land for Sale Concordia Parish
Land for Sale Copiah County MS
Land For Sale Detroit Texas
Land For Sale Dixie Springs MS
Land for sale Donie
Land For Sale Dothan
Land For Sale Downsville LA
Land for Sale East Feliciana
Land for Sale East Tennessee
LAND FOR SALE EAST TEXAS
Land for Sale East TN
Land For Sale East TX
Land For Sale Eat Texas
LAND FOR SALE FANNIN COUNTY TX
Land For Sale Fayette MS
LAND FOR SALE FLORIDA
Land for Sale Forrest Co.
Land For Sale Fort Towson OK
Land for Sale Franklin Co
Land for Sale Franklin Co MS
Land for Sale Franklin County
Land for Sale Freestone County
Land for Sale Fulton County
Land for sale Galena IL
Land for sale Geneva
Land For Sale Geneva County AL
Land For sale Genva County AL
Land For Sale Gloster MS
LAND FOR SALE GRADY COUNTY OK
Land for Sale Grainger Co TN
Land for Sale Greene County MS
LAND FOR SALE HALL COUNTY TX
Land for sale Hallsville Texas
Land for Sale Hamblen Co TN
Land for Sale Hamblen Co.
Land for Sale Harrisonville MO
Land for Sale Harrogate TN
Land for sale Hawaii
Land for Sale Hawkins Co TN
Land for Sale Hazlehurst
Land For Sale Henry County Mo
Land For Sale In Abingdon VA
Land For Sale in AL
Land for Sale in AR
Land for Sale in AR Ozarks
Land for sale in AR. 16 acres
Land for sale in Arcadia
Land for sale in Arkansas
Land for sale in Ashford AL
Land for sale in Ava mo
Land for Sale in Baxter Co
Land For Sale in Benton Co
Land for Sale in Bland VA
Land for Sale in Bristol VA
Land for Sale in Buffalo
Land For Sale in Bulls Gap TN
Land for Sale in Callaway VA
Land For Sale in Central NM
Land for Sale in Check VA
Land for Sale in Colorado
Land for Sale in Draper VA
land for sale in east Texas
Land for sale in Eau Claire
Land for Sale in Eddy
Land for Sale in Falls Co
Land for Sale in Fancy Gap VA
Land for Sale in Ferrum VA
Land for Sale in Florida
Land for Sale in Floyd Co VA
Land for Sale in Floyd VA
Land for Sale in Franklin
Land for Sale in Franklin Co
Land for sale in Fulton AR
Land for Sale in Fulton Co AR
Land for Sale in Fulton County
Land For Sale in Gap Burn
Land for Sale in Glade Spring
Land for Sale in Golf Course
Land for Sale in Halifax
LAND FOR SALE IN HARDIN CO
Land for Sale in Hardy
Land for Sale in Hillsville VA
Land for Sale in Hiwassee VA
Land for sale in Hyde County
Land for sale in Idaho
Land for Sale in Illinois
Land for Sale in Izard County
Land for Sale in Leon Co
Land For Sale in Leslie
Land for Sale in Limestone Co
Land for sale in Little Rock
Land for Sale in Max Meadows
Land For Sale In Medina
Land for Sale in Minnesota
Land for Sale in Missouri
Land for Sale in MN
Land for Sale in Moneta VA
Land For Sale in Mosheim
Land for Sale in Narrows VA
Land For Sale in New Mexico
Land for Sale in Newport VA
Land for Sale in North AR
Land for Sale in Pickens
Land for Sale in Pilot VA
LAND FOR SALE IN REYNOLDS CO
Land for Sale in Riner VA
Land for sale in San Angelo
Land For Sale in Santa Fe Co
Land For Sale in Southern Iowa
Land for Sale in Southern MO
LAND FOR SALE IN SOUTHERN OR
Land for sale in Squires mo
Land For Sale In Stokes County
LAND FOR SALE IN SW KS
Land for Sale in SWVA
land for sale in Tenneessee
Land For Sale in Tennessee
land for sale in Texas
Land for Sale in Thayer
Land for Sale in Thayer MO
Land for Sale in the Ozarks
LAND FOR SALE IN TN
LAND FOR SALE IN TN 11.62AC+/-
LAND FOR SALE IN TN 2.3AC
Land For Sale in Town
Land for sale in Troutdale
LAND FOR SALE IN ULYSSES
Land for Sale in VA
Land for Sale in VA Golf Sub
Land for Sale in Viola
Land for Sale in Western CO
Land for Sale in Willis VA
Land for Sale in Wythe County
Land for sale Jackson Co Fl
Land for Sale Jackson LA
Land for Sale Jeff Davis Co MS
Land for Sale Jefferson Co
Land for Sale Johnson Co TN
Land For Sale Johnson County
Land For Sale Kansas
Land For Sale Lake Creek TX
Land for Sale Lamar County
Land for Sale Lamar County MS
Land For Sale LaSalle Parish
Land for Sale Lincoln Co
Land for sale Lincoln County
Land for Sale Lincoln Par
Land for Sale Mammoth Spring
Land for sale Marathon County
Land for Sale Marion Co.
Land for Sale Marion County MS
Land For Sale McLennan County
Land for Sale Meadows of Dan
Land For Sale Meadville MS
land for sale Mertzon
Land For Sale Mississippi
Land for Sale Missouri
Land for sale Monroe County
Land For Sale Morgan County MO
Land For Sale Natchez MS
Land for Sale Near Baton Rouge
Land for Sale near BRP
Land For Sale near Centerville
Land for Sale Near Chama
Land For Sale near Dothan
Land for sale near Enterprise
LAND FOR SALE NEAR FLORIDA
Land for sale near Grand Lake
Land for sale near Jemez
Land for Sale near Kilgore TX
Land for sale near Lake Norman
Land for sale near Moriarty
Land for sale near Pecos River
Land For Sale Near the River
LAND FOR SALE NEAR TN RIVER
Land For Sale New Mexico
Land for Sale NM
Land for Sale NO. NM near lake
Land for sale north Arkansas
Land for sale Okaloosa Co Fl
LAND FOR SALE OKLAHOMA
Land for Sale on Spring River
Land for Sale Osceola
Land for Sale Osceola MO
Land For Sale Paris Texas
land for sale phelps
Land for Sale Pike County
Land for Sale Pike County MS
Land for sale Richland County
Land for sale Ripon WI
Land for Sale Rogersville
Land For Sale Roxton Texas
Land For Sale Ruth Mississippi
Land for Sale Sardis Lake OK
Land For Sale Scipio Oklahoma
Land for Sale Scott County MS
land for sale SE OK
Land for Sale Sevier County TN
Land For Sale Slocomb AL
Land for Sale Smith County TX
Land for Sale South Central MO
Land for Sale South GA
Land for Sale Southeastern OK
Land For Sale Southern Iowa
Land for Sale St Fracis Co
Land for Sale St Francisville
Land for sale St. Clair County
Land For Sale Stover
Land For Sale Stover Mo
Land for Sale Summit
Land For Sale Sumner Texas
LAND FOR SALE SW KS
Land for Sale Tangi Parish
Land for Sale Tensas Parish LA
Land For Sale Unicoi Co.
Land for Sale Union Parish
LAND FOR SALE VERDEN OKLAHOMA
Land for Sale Walthall County
Land for sale Walton Co Fl
Land for Sale Warren County MS
Land for Sale Warsaw MO
Land for Sale Wayne County MS
Land for Sale West of Chama NM
Land for Sale Western OK
Land for Sale Wilkinson Co
Land for sale Winnebago County
Land For Sale with Utilities
Land For Sale With Views
Land for Sale Wood County TX
Land for Sale Zachary
LAND FOR SAVIVE IN NY
Land in Abingdon VA for Sale
Land in Arkansas for sale
Land in Auburn School District
Land in Bland VA for Sale
Land in Christoval
Land in Coke county
Land in Floyd County VA
Land in Knox Co.
Land In McCurtain County OK
LAND IN MISSOURI FOR SALE
Land in Mooresburg
LAND IN NORTH MO FOR SALE
land in Pott County
Land in Southern Missouri
Land in Southern MO
Land in the Ozarks
Land in Upton County for sale
Land in West Texas for sale
Land in Wood County
Land in Woods County
LAND IS LEVEL TO ROLLING
Land Near Aiport
Land near Beaver Lake for sale
Land Near Blue Ridge Parkway
Land Near Bull Shoals Lake
Land near Chestnut Mt
Land near Christiansburg VA
Land Near Claytor Lake
Land Near Golf Course for Sale
Land Near Klamath River Hwy 96
Land near Lakes and Rivers
Land near Little Rock
Land near Midland TX
Land near Mountain Home
LAND NEAR NATIONAL FOREST
Land near Norfork Lake
LAND NEAR TN RIVER FOR SALE
Land on Blue Ridge Parkway
Land On Bull Shoals Lake MO
Land Pushmataha County OK
Land Sale
LAND TO BUILD A HOME ON
Land with a pond in ashford AL
Land with Acreage for Sale
LAND WITH BLUFF VIEWS OF RIVER
Land with Cabin For Sale in MO
Land with creek
Land with Creek For Sale
Land with Fishing Pond
LAND WITH INCOME FOR SALE
Land with Long Range View
Land with Pine Trees For Sale
Land with power for sale
Land with River
Land with Views Northern NM
LAND WITH WHITE RIVER FRONTAGE
Land- river frontage for sale
Lander County NV Land For Sale
LANDSCAPING
large 5 acre lot.
Large Acreage
Large acreage for sale
Large Acreage for Sale in VA
Large Acreage Hunting Land
Large Acreage in Floyd VA
LARGE ACREAGE IN IZARD
LARGE ACREAGE IN IZARD CO
Large Acreage in NC for sale
LARGE ARKANSAS ACREAGE
LARGE COUNTRY HOME / CABIN
Large Country Home for Sale
Large Deck
Large development for sale.
Large Garage
Large Garage & Storage Space
Large garage for boat storage
Large Guest Kitchen
Large home with Shop Building
Large Kitchen
Large Live Oak Trees
Large Neighboring Ranches
Large pond
Large Recreational Tract in VA
Large Shop
LARGE SHOP W/LIVING QUARTERS
Large spring fed pond
large tract of land
Large upscale home
Large yard
Larimer County property
Larimer County river front
LaSalle Parish Louisiana
Latimer County Home for sale
Latimer county land
latimer county land for sale
Laundromat
Laundry Room
Lawrence County Home For Sale
Lawrence County Land for Sale
Lays Flat to Gentle Slope
Lays rolling to steep
Lays Well
LAYS WELL – CORNER LOT
LAYS WELL – MATURE TREES
Leaf Riverfront Land McClain
Legendary 6666's Ranch
Leipers Fork Land
Lengthy Paved Road Frontage
Less than 10 miles from town
Less than a Mile from Intersta
Level
Level and Views
Level Building Site
Level Land
LEVEL LAND FOR BUILDING
Level Land for Sale in TN
Level Land for Sale SWVA
Level Lot
LEVEL LOT – OPEN LAND
LEVEL LOT – WOODED LAND
LEVEL LOT NEAR TN RIVER
LEVEL LOT ON INDIAN CREEK
LEVEL LOTS W/ELECTRIC & WATER
Level property
Level to Sloping Terrain
Lewis Co. TN Land for Sale
Lewis County
Lewistown MT Ranch
Lewistown MT Rural Land Lots
Lewsiton MI Lakefront Home
Lg Acreage Lake Near Zachary
Libby Montana
Licensed Irrigated
Licensed Water Rights
Licking MO land for sale
Lincoln County
Lincoln County Hunting Land
Lincoln County Land For Sale
Lincoln County Mississippi
Lincoln County MS Land
LINCOLN COUNTY NEBRASKA
Lincoln MI Property For Sale
LINCOLN NATIONAL FOREST
Lincoln Parish Land for Sale
LINDALE SCHOOLS
Lindrith NM Hunting Ranch
Linn County
Little Bear Creek
Little Missouri River Slough
Little Red River
Little Reed Island Creek
Little Rocky Mountains
LIVE CREEK
Live Creeks
Live Off or On the Grid
Live Water
Live Water on TX land for Sale
Livermore
Livestock
Livestock in Blue Ridge
Livestock Property
LIVING BIG SKY MONTANA
LLC
loafing shed
Located Along Dead End Road
Located at the end of the road
LOCATED IN EUREKA SPRINGS
Located in Lakeside Community
LOCATED IN MARSHALL COUNTY
Located Near Choctaw Marina
Located on 12th hole of course
Located on dead end road
LOCATED ON STATE HIGHWAY
Lockwood Mo
Lodge - 5 bdrms
Lodge & Lakes
Lodge for Sale near Heron Lake
Lodge for sale Wisconsin
Lodge West Feliciana Parish LA
Lodge/Cabin/Campground
Loft Bedroom for the Guests
log cabin
Log Cabin for Sale
Log Cabin for Sale in Riner VA
Log cabin home
Log Cabin in Saguache County
Log Cabin in TN.
Log Fencing
Log Home / Custom Log Home
Log Home For Sale Arthur City
Log Home for Sale in VA
Log Home For Sale Missouri
Log Home on 7 Acres
Log Homes & Cabins
Log Homes in Galena IL
Log homes on 3 acres
Log Hunting Lodge
Logan county hunting land
Logging Property For Sale
Logging Trails
Long Fields Planted for Doves
Long Range Mountain Views
Long range views
Long Swamp Creek
Long term rental
Longleaf Pines
Lorena Texas Land for Sale
Lot
Lot 5
LOT BY LAKE WINNSBORO
LOT CLOSE TO WHITE RIVER
Lot Fenced
lot for hobby farm or home
LOT FOR SALE
Lot for Sale Bristol VA
Lot for Sale Chama NM
LOT FOR SALE IN AERO ESTATES
Lot for Sale in Arkansas
Lot for Sale in Freestone Co
Lot for Sale in Hardy AR
Lot for sale in Ozarks
Lot for Sale on Skyland Lakes
Lot for Sale on Spring River
Lot in Gated Community
Lot in Protem MO borders corps
Lot near Bull Shoals Lake
Lot near water Marianna
Lot of deer sign
Lot of Land for sale
Lot Open
Lot Suitable For Building
Lot w/ River Access for Sale
Lot with Airstrip
Lot with Private Airstrip
Lots 4sale Canada Creek Ranch
Lots for Sale
Lots for Sale in AR
Lots for sale in Arkansas
Lots for Sale in Freestone Co
Lots For Sale Kahoka
Lots for sale Near Fishing
Lots for sale near Lake
Lots For Sale Near TN River
Lots in Gated Community
Lots of Potential
Lots of Road frontage
Lots of Storage
LOTS OF WHITETAIL DEER
Lots on Bull Shoals Lake
Lots on Current River in AR
LOUISIANA DUCK HUNTING
LOUISIANA HUNTING PROPERTY
Low HOA
Low Maintenance
Low Taxes
LOW YEARLY TAXES
Lucas County Hunting
Lucas County IA Hunting Land
Luxurious home
luxury
Luxury Cabin & Barn on Site
LUXURY CONDO
Luxury Country Homes For Sale
Luxury Custom Home
Luxury Estate for Sale WI
Luxury Home
LUXURY LAKEFRONT PROPERTIES
Luxury Log Cabin
Luxury Log Home
Luxury Log Home & 5 Acres
LUXURY MONTANA HOME
Luxury Real Estate in Alva
LUXURY WATERFRONT PROPERTY
Lyon County NV land for sale
Madison County
MADISON COUNTY LAND FOR SALE
Madrid
Madrid New Mexico For Sale
Magnificent View of Boyd Creek
MAIN HOUSE IS 2499 SQ FT
Main level living
Maine Cabin For Sale
Maine Camp
Maine Country Home
Maine Lake front
Maine Lakefront For Sale
Maine lakefront property
Maine land
Maine Land For Sale
Maine Timber Land For Sale
Maine Timberland
Maine Timberland For Sale
Maine Waterfront Home
Maintained Roads
Maintenance Provided
MAJOR COUNTY ROAD ACCESS
MAJOR FRONTAGE ON TWO ROADWAYS
Makoshika State Park Views
Malaga
MALHEUR LAKE
Mammoth Spring
Managed Hunting Farm
Managed Pine/Mature Timber
Managed Whitetail Deer
Manager's House & Bunk House
Manger's House & Bunk House
Mansell Road
Manufactured Homes Allowed
Many Possible Building Sites
Many recreational options
Marathon County land for sale
Maries County Missouri Land
Marina area
Marion County AR
Marketable Timber
Marketable Timber at Present
Marketable Timber Land
Marquette County Home for Sale
Marquette County hunting land
Marquette County land for sale
Marquette County WI Tillable
Marquette County WI Tillable L
Marquette Cty hunting land
Marshall County
Mart TX ranch for sale
Marty Griepentrog Realtor
Marty Griepentrog WI Realtor
MASSIVE ATV TRAILS
Mature Hardwood
Mature Hardwood Forest
Mature Hardwood Timber
Mature Hardwoods
Mature hardwoods & Pine Timber
MATURE MANAGED PINE & HARDWOOD
Mature Oak & Pine Timber
Mature Pecan Trees
Mature Pine & Hardwood Timber
Mature Pine and Hardwood
MATURE PINE AND HARDWOOD TIMBE
Mature Pine Timber Value
MATURE PINES
Mature Pines & Hardwoods
Mature Planted Pines FOR SALE
Mature Timber
Mature Timber Pine Hardwood
Mature Timberland
Mature Trees
Maury County
Maury County 3.10 Acres 4 Sale
Mauston land for sale
MAYO FLORIDA HOMES FOR SALE
MAYO FLORIDA LAND
McCall Creek Land For Sale
MCCOY CREEK RUNS THRU PROPERTY
McCurtain County OK Properties
Mclennan County Home For Sale
McLoud
MCNAIRY COUNTY TN
McPherson County Kansas Land
Meadow for hay
Meadowed Areas
Meadowlark Ski Resort
Meadows and Woods
Meadville Mississippi
Medicine Lodge River
Meigs County Ohio
Meigs County Ohio Land
Merchantable Natural Pine
Merchantable Natural Timber
Merchantable Pine Timber
Merchantable Pine Timberland
MERCHANTABLE TIMBER
Merrimac WI hunting land
Mesa County Home For Sale
Mesquite
Metal Building
Metal Insulated Shop
Metal Roof
Metal Shop
MFG Allowed
MI
Michigan Hunting Land
Michigan Hunting Property
Middle TN Commercial Land
Middle TN Hunting Farm 4 Sale
Midland Texas Investment
Midway Oil and Gas Field
Milaca Hunting Land
Miles from Hood River OR
Miles of Public Road Frontage
Mill Creek & Mature Trees
Mille Lacs Co Hunting Land
Mille Lacs Cty Land For Sale
Millen
MILLION DOLLAR views
Mims Florida
Mineral rights
Mineral rights included
MINERAL RIGHTS INLCUDED
Mini Farm in Floyd VA
MINI FARM IN TN FOR SALE
Mining Claim
Minnesota
Minutes from downtown
Minutes From Downtown Sylvania
Minutes from I-35
Minutes From Noxubee Refuge
Minutes from Public Lands
Minutes From Town
Minutes from Wisconsin Dells
Minutes to Bogue Chitto NWR
Minutes to Dickson
Minutes to Duck River in TN.
Minutes To El Vado Lake
Minutes to Lake & Yuba River
Minutes to Marion County WMA
Minutes to Seligman AZ
MINUTES TO TENNESSEE River
Mission Hills Subdivision
Mississippi Home For Sale
Mississippi Homes For Sale
Mississippi Land For Sale
Mississippi Mini Farm For Sale
Mississippi Property For Sale
Missouri
MISSOURI FARM FOR SALE
MISSOURI FARM LAND FOR SALE
Missouri Hobby farm For Sale
MIssouri Home
Missouri Hunting Land For Sale
Missouri Land & Home Auction
Missouri Land & Home For Sale
MISSOURI LAND FOR SALE
MISSOURI OZARKS
MISSOURI OZARKS CATTLE RANCH
MISSOURI OZARKS LAND FOR SALE
Missouri private lake
Missouri River Lot For Sale
Mitcham Peach Orchard Area
MIX OF PASTURE & TREES
Mix of woodland & grass
Mixed Hardwood & Pine Timber
Mixed Pine /Hardwood Timber
Mixed Pine/Hardwood Timberland
Mixed Timber
Mixture of Pasture & Woods
MN
MO
MO ACREAGE FOR SALE
MO BIGBUCK FARM FOR SALE NEMO
MO building site for sale
MO Cattle Ranch For Sale
MO COUNTRY HOME FOR SALE
MO FARM FOR SALE
MO FARM LAND FOR SALE
Mo fishing property
MO home and land for sale
MO home site for sale
Mo home sites for sale
MO LAKE LOT FOR SALE
MO LAND
MO land for sale
MO OZARKS LAKE PROPERTY
MO Ozarks Land for sale
MO Ozarks Recreational Land
MO Ozarks Secluded Land
MO Recreational land
MO Recreational Property
MO residential land for sale
MO residential lot for sale
MO residential lots for sale
MO Whitetail Deer Hunting
MO. OZARKS RIVER PROPERTY
Mobile Home
Modern 3 BR Home
Modern Shouse
Modoc County
Modoc National Forest
Moffat County CO Land For Sale
Moffat County Ranch For Sale
Molunkus Lake
Moniteau County Homesite
Moniteau County Pasture Farm
Monroe County
Monroe County hunting land
Monroe County Land
Monroe County land for sale
Monroe County MS Land For Sale
Montana
Montana Farm land
Montana Hunting
Montana Land
Montana Land for Sale
Montana Land Investment
Montana Mountain Property
Montana Ranch for Sale
MONTANA WILDLIFE
Montello land for sale
Montmorency County MI
Montmorency Cty Land for sale
Montrose Ouray Ridgway
Montrose Ouray Ridgway CO
Montrose Ridgway Ouray
Montrose Ridgway Ouray CO
Montrose Ridgway Telluride
Mora County
MORE LAND AVAILABLE
MORE TN HOMES FOR SALE CREEK
MORE TN LAND & HOMES FOR SALE
Morgan County
Morgan County Mo Home For Sale
Moriarty
Moriarty New Mexico
Morris Chapel
Morristown
Mostly Cleared Land
Mostly Hardwood Timber
Mostly level some raised areas
MOSTLY OPEN LAND
Mostly Open Pasture
Mostly timber land
Mostly timbered.
Mostly Wooded
Mostly wooded land with Survey
MOSTLY WOODED; GOOD HOMESITE
MOSTOLEY WOODED
Motel Rooms
MOUNTAAIN LAND
Mountain
Mountain & Valley Views
Mountain Acreage
Mountain Acreage for Sale
Mountain Acreage in Colorado
Mountain Acreage in SW CO
Mountain Bike/ATV
Mountain Cabin
Mountain Cabin Land For Sale
mountain cabin with pond sale
Mountain Canyon Edge Retreat
Mountain Cottage Hotchkiss
Mountain Get-a-way
Mountain Home
Mountain Home For Sale
Mountain home near Chama NM
Mountain Home with Acreage
Mountain hunting land for sale
Mountain hunting land KY
Mountain Land
Mountain Land for Sale
Mountain Land for Sale Chama
Mountain Land For Sale E TN
Mountain land for sale in Ky
Mountain Land for Sale in VA
Mountain Land for Sale NM
Mountain Land For Sale TN & VA
Mountain Land near Chama NM
Mountain Land Near VA Tech
Mountain Lot
MOUNTAIN MEADOWS FOR HORSES
Mountain Property
Mountain property for sale
Mountain Property for Sale OK
Mountain Property for Sale VA
Mountain Property in Dawson
Mountain Property in East TN
Mountain property in Pickens
Mountain Property near Chama
Mountain Property Views
Mountain Property with Views
mountain ranch for sale CO
Mountain Real Estate
Mountain Real Estate Chama NM
Mountain recreation property
Mountain Retreat
Mountain Retreat Floyd Va
Mountain Retreat for Sale
Mountain Retreat for Sale VA
Mountain Retreat in Bristol VA
Mountain Springs & Views TN
mountain stream
mountain terrain
Mountain top privacy.
Mountain view
Mountain View Bldg site
Mountain Views
Mountain Views all around
Mountain Views in Hawkins Co.
Mountain Views near Chama NM
MOUNTAIN VIEWS PARTIAL FENCING
Mountainair
Mountaintop Acreage
Mountian and Valley Views
Mountians
Moutain Property in East TN
Move In Ready Home
Move in Ready-Furnished!
Moved
Movie Theatre
MOWER CONVEYS
Moyers Oklahoma Real Estate
MS
MS Fishing Camp For Sale
MS Hunting Land For Sale
MS Hunting Property For Sale
MS SW MS
MS Timberland For Sale
MT Developed Land Country Home
MT Mountain Property
Mt Pleasant
Mt. Elba RD East / CR #122
Mt. Elba Road Frontage
Mt. Katahdin
Mudroom/Great room
MULE DEER
Mule Deer Hunting
Multi Parcel Auction
MULTI USE BUILDING
Multi use property Motel Lodge
Multi-use Property
Multiple Barns
Multiple barns/workshop
MULTIPLE BONUS ROOMS
Multiple Building Sites
Multiple buildings included
Multiple Creeks Throughout
Multiple Farming Fields
Multiple Outbuildings w/ Power
Multiple Potential Lake Sites
Multiple Stock Tanks
Municipal Sewer And Water
Muskingum County Ohio
Musselshell Land for Sale
N CA Duck Club For Sale
N CA Homes with Pools For Sale
N CA Hunting Properties
N FL 5 acre Rural land
N FL Riverfront Homes
N of Geneseo
N. FL
national forest
National Forest access
NATIONAL FOREST AREA
National Forest Boundary
National Forest Frontage
National Forest hunting access
NATIONAL FORREST ACCESS
Native Ohia forest
NATIVE RANGE
Natural Bridge Land For Sale
Natural Merchantable Timber
Natural Regen /Hardwood Drain
NATURAL SPRING / CREEK
Natural Springs & Live Water
Nature
NBA Quality Basketball Gym
NC
NC Farmland For Sale
NC investment property Hyde
NC land for sale
NC lot
NC WATERFRONT HOME
NE EDGE OF KIRBYVILLE TEXAS
near airport
Near ATV trails
Near Bald Mountain
NEAR BAPTIST CAMP ACCESS
Near beaches
Near Beachs
NEAR BEAVER LAKE
NEAR BEECH CREEK & TN RIVER
NEAR BOAT RAMP
Near boating
Near Bottle Lake
Near Branson
Near Buffalo National River
Near Buffalo River
Near Casper Mountain
Near Coast
Near Colgate University
Near Columbia River Gorge
NEAR COMMERCIAL AREA
NEAR CREEK
Near Crossett
Near Cumberland River
NEAR DEVIL'S BACKBONE HIKING
Near Eddieville Motocross
Near Eddieville Motocross Park
Near Emerald Mine
Near Excellent Elk Hunting
NEAR FISHING AND BOATING
Near Florida Fishing Lakes
NEAR FREDERICKTOWN
Near Geneva Alabama
NEAR GILA NAT'L FOREST
Near Hamilton
Near Hartford Alabama
Near Haynesville
Near Hiking and Overlooks
Near Historic Leslie Arkansas
Near Hood River Or
Near hospital
NEAR HOSPITAL & SHOPPING
Near Hunting areas
Near I-70
Near I35
near Junction City
Near Junior Lake
Near lake
Near Lake Cumberland
Near lakes
NEAR LOCAL BOAT RAMP
Near Logan
Near Mammoth Cave
Near Maryhill Winery
NEAR MO STATELINE
Near Mt. Elba
Near New Edinburg
Near Ozark National Forest
Near Paved Ft. Rock Rd
NEAR PICKWICK LAKE
Near public boat launch
Near Rocky Gap State Park
NEAR ROGERS
Near Ruidoso NM
near Saddleback Mountain
Near Santa Fe
Near schools
Near Spring River
Near State park
Near Telluride Ski site
Near Tennessee River
Near the Blue Ridge Parkway
Near the Coast
NEAR THE LAKE
NEAR TN RIVER
NEAR TN RIVER - BOATING
NEAR TN RIVER AND BOAT RAMP
Near to Colon and Panama city
Near Town
Near Wappapello Lake
NEAR WHITE RIVER
Near WI Dells
Near Winstar World Casino
Near Wisdom Dock Marina
Nearby ATV Trails
NEARBY LAKES
Nebraska Sandhills
Needs TLC
Nekoosa hunting land
NEMO Farm w/ Home For Sale
NEMO high demand farm
NEMO Hunting Land For Sale
NEMO Land For Sale Adair Co
NEMO pasture farm
NEMO Tillable Farm For Sale
Nevada County
Nevada County School District
Nevada Horse property for sale
Nevada land for sale
Nevada ranch land for sale
Nevada Ranches Farms For Sale
Nevada Ranches for sale
Nevada water rights for sale
New 10 Acre Duck Field
NEW 30x50 Shop Building
New Appliances
New Brick Home
New Community
NEW CONSTRUCTION
New Construction-East TN
New Fence
New Fencing
New Home
New Home Site
NEW HVAC
NEW LONDON FARM FOR SALE
New Mexico
New Mexico Land For Sale
New Mexico Multi-use Facility
New Mexico Off Grid
New River
New Storage Building
New Subdivision
New Well
New Wiring & Plumbing
NEWBERRY FLORIDA
newer arena
Newer built home
Newer community
Newer Covered Storage Sheds
Newkirk
Newkirk New Mexico
Newly built 2017
Newly remodeled
Next to golf course
Nice Build & Recreation Site
NICE BUILDIG SPOT
NICE HOME OVERLOOKING FARM
Nice homesite
Nice Lake
Nice layout
Nice lying tract of land
Nice Pond
Nice road on the bottom
Nice Trails & Food Plot Area
NICE TRAILS CUT THROUGH
NINE MILE VALLEY
Ninnescah River
NIOBRARA RIVER
Nlrthern New Mexico
NM
NM Commercial Land For Sale
NM Equine Property for sale
NM Land For Sale
NM Lot with level building sit
NM within an hour
No deed Restrictions
No Deed Restrictions Land
No Electric or Water
No HOA
no HOA's no CCR's
NO HOA's or Covenants
No Reserve Auction
NO RESTRICTIONS
NO RESTRICTIONS – HUNTING
NO RESTRICTIONS LAND
No restrictions wood land
No. Cal Land for Sale
Nolin Lake Area
Nor Cal Timber
NORFORK WOODED BUILDING SITE
Norris Lake View Lot For Sale
North California Hunting Land
North Central Idaho
NORTH FLORIDA HOME FOR SALE
NORTH FLORIDA LAND
NORTH FLORIDA LAND FOR SALE
NORTH FLORIDA RIVER PROPERTY
NORTH FLORIDA VACANT LAND
North Fork Holston River
North Missouri Land Auction
NORTH MO ACREAGE FOR SALE
NORTH MO HUNTING LAND
North MO Lake Home
NORTH MO LAKE LOT FOR SALE
North MO lake property
NORTH MO LAND FOR SALE
North MO Private Lake Lot
North MO Waterfront For Sale
North MO waterfront lot
North Pike School District
Northeast AR Timber Property
Northeast Oklahoma Hunting
Northeast Oklahoma Land
NORTHEAST TEXAS
Northeast Texas Real Estate
Northeastern Ca
Northern
Northern Arizona
Northern Arkansas
Northern AZ
Northern CA Acreage For Sale
Northern CA Duck Clubs
Northern CA Hunting Properties
Northern California
Northern California For Sale
Northern Missouri Home
Northern MN
Northern MO Farm For Sale
Northern MO Home for sale
Northern MO Hunting Farm
Northern Mo Hunting w/ Cabin
Northern New Mexico Land
Northern NM Acreage for Sale
Northern NM Cabin for Sale
Northern NM Country Homes
Northern NM Fixer Upper
Northern NM Hunting Land
Northern NM Land for Sale
Northern NM Property for sale
Northern NM Real Estate
Northern NM Recreational Land
Northern Ozark Arkansas
NORTHWEST ARKANSAS
Northwest Arkansas Hobby Farm
Northwest Arkansas Real Estate
Northwest MI Hunt Camp
Northwest Montana
NV Recreational Land For Sale
NW FL NEAR CHIPOLA RIVER
NW IL
NW Missouri Farm For Sale
NW Missouri Hunting
NW Missouri Hunting Farm
NW Missouri Hunting Land
NW MO
NW MO 40 AC FOR SALE
NW MO 40 ACRES FOR SALE
NW MO CRP
NW MO Excellent Hunting
NW MO Hunting & Income
NW MO Hunting/Very Secluded
NWA
NWA Land For Sale
NY
Oak Point Subdivision
OBU
ocean
Ocean Front
Ocean view
Ocean Views
Oceanfront
Oceanfront Property
Oceanfront property for sale
Off Grid
Off Grid - Completely
OFF GRID / BUG OUT- 16.42 ACRE
OFF GRID CABIN
off grid cabin for sale
Off Grid Cabin Northern NM
OFF GRID HOME FOR SALE
Off Grid Land
Off Grid living
Off Grid potential
OFF GRID PROPERTY IN TN
off road
off secondary road
OFF the Grid Property
off-grid location
Off-grid property
Off-Grid Property - For Sale
Off-grid Sustainable Cabin
off-roading
Offered in two tracts
Office On Site
Ogeechee River
OH
OH Two story home
Ohio
Ohio Hunting Land
Ohio Hunting Properties
Ohio Hunting Property
Ohio Land
Ohio Land for Sale
Ohio Land with Cabins
Oil and Gas Drilling
OK
OK acreage
OK Land for sale.
Okanogan River
OKLAHAOMA COUNTRY HOME
Oklahoma Hunting Land
Oklahoma Hunting Land for Sal
Oklahoma Hunting land for sale
OKLAHOMA LAKE HOME FOR SALE
Oklahoma Land
Oklahoma Land For Sale
Oklahoma Land Properties
Oklahoma Ranch
OKLAHOMA RANCH LAND FOR SALE
Oklahoma Ranch Properties
Oklahoma Recreational Land
Oklahoma Recreational Land for
Oktibbeha County
Old Farmhouse
Old Field Pine / Natural Pine
Old grass airstrip
Old growth forest
Old Stage Road
Old well
Old west ghost town
Older Historic Home
Older home in need of TLC
OLIVEHILL TN LAND FOR SALE
on Big Boyd Lake
On Big Creek
On border of river
On Grid electric
On Isla Contadora
on Lake Cumberland
ON PAVED ROAD
ON SAM RAYBURN LAKE
On the Lake
On the Lake of the Ozarks
On-grid
On-Grid Power
Onamia Land For Sale
ONE BOAT SLIP WITH LIFT
ONE CONTIGUOUS BLOCK
One Level Home for Sale SWVA
One level living w/ lake view
One Room Cabin
One year old home
Online Auction 8/26 6PM
Online Auction Hunting Land
Online Only Land Auction MO
Open & Wooded
Open Concept
Open Concept Dining
Open Concept Living
OPEN FIELD
Open Fields
Open Floor Plan
Open Floor Plan w/ gourmet kit
Open Land
Open Land for Sale NPSD
Open land w/amazing view
Open Meadows
Open Space
Open to subdividing
Open Woodsroad Access
Open/wooded land
Or luxury Resort
OREGON
Ortiz Mountain Views
Osage Creekfront
Ottawa County Kansas Land
Ouachita Nat'l Forest
Ouachita National Forest OK
Ouachita River
Ouachita River Property
Ouray Montrose Ridgway
Ouray Ridgway Montrose
Ouray Ridgway Silverton
Out Back
out in country
OUT OF FLOOD ZONE
Outbuildings
outdoor activities Como 80432
Outdoor Arena
OUTDOOR ENTERTAINING AREAS
Outfitting business for sale
Outhouse
OUTSIDE CITY LIMITS
Outstanding build sites
Outstanding Views
OUTSTANDING WATER VIEW
Over 100 Acres of Common Area
Over 2 acres
Over 3-1/2 acres
Over 3000' of water frontage
Over 3000sqft living space
Over 40 Acres
Over 6 acres
Over 600' Paved Road Frontage
OVER HALF MILE OF BLACK RIVER
Overlooks Lake Roosevelt
Overlooks White River Valley
Oversized 2 car garage
Oversized Loft Bedroom
Oversized lot/Irrigation
Owklawn Racetrack
Owner carry option
OWNER FINANCE
Owner financing
Owner financing available
Owner financing land for sale
Owner financing offered
Owner Use or Investment
Ozark County MO Farm for Sale
Ozark County MO Land for Sale
Ozark Folk Center
Ozark Mountain Hunting Land
Ozark Mountain land for sale
Ozark Mountain Views
Ozark Mountains
Ozark Mountains Land For Sale
Ozark Mountains of Arkansas
Ozark River Property
Ozark River Property for Sale
Ozarks Cabin Building Property
Ozarks Farm for Sale
Ozarks Farm for Sale in AR
Ozarks Home for sale
Ozarks Lake Lots for Sale
Ozarks Land for Sale
Ozarks Lots for Sale
Ozarks Property for Sale
Ozarks River Lot for Sale
Ozarks Riverfront home in AR
Ozarks Water Property for Sale
Ozarks Waterfront Home
PALESTINE TX LAND FOR SALE
Pamlico Co. Hunting Property
Pamlico County
Panola County Texas
Panoramic Views
Paonia CO historic home sale
Paris Texas Real Estate
Park
Park county recreational land
Park Estates/Very Private
Park Model
ParkerAZHomes
Parkers Chapel School District
Parking
part cleared
part wooded
Partial basement
Partial Mountain Views
Partial woodland
Partially Fenced
partially wooded
pasture
Pasture and Woodland
PASTURE FOR HORSES & LIVESTOCK
Pasture For Sale
Pasture For Sale Southern Iowa
Pasture Ground
Pasture land
Pasture Land For Sale
Pasture Land for Sale SW MS
Pasture Land Oak Grove LA
PASTURE/ FARM
PASTURE/ PECAN TREES
Pastureland for Sale in Floyd
Pastureland in Floyd County VA
Pastureland Near Baton Rouge
Patio
Patoka Lake Area Home
Paved Frontage Woodsville Rd
Paved Road
Paved road access
PAVED ROAD FRONTAGE
Pawnee County
pays itself
Peaceful
Peaceful Country Setting
Pecan Trees!!!!
Pecos River Frontage
Pellet Stove & Central Air
Pending Country Home
Pending Country Home for Sale
Pending in Albany
Pending land for sale
Pending Riverfront Land
Pending! Tennessee River Cabin
Penobscot River Home
Penobscot Riverfront
Perfect for a new home
PERFECT FOR HORSES/CATTLE
Perfect getaway
Perfect Hunting Property
Perkins
Permiculture Sustainable
Permitted Septic
Perry County
Perry County Tennessee Land
Persimmon
Personal ATV trails on site
PETE FRENCH ROUND BARN
PHEASANT
Phenix Twnshp
Phillips County Saco MT
Pick your Plan
PICKETT LAKE LOT
PICKLE BALL
PICTURESQUE CREEK
Piedmont MO home for sale
Pier
Pike County Ohio Land for Sale
Pikes Peak views
PIKES PEAK-MT PISGAH VIEWS
Pine Lake Chain Finlayson MN
Pine Plantation for sale
Pine River
Pine Timber Tract
PINE TIMBERLAND INVESTMENT
Pine Trees
Pine Wood interior
Pine- Fir- Cedar Trees
Piney Ck Wetlands Duck Slough
PINEY CREEK LOT IN IZARD CO
Pinion/Juniper
Pipe fencing
Pitt County bear hunting tract
Pitt County deer hunting tract
Pitt County timber tract
PIVOT IRRIGATION FARM KS
PLAINS MONTANA LOTS FOR SALE
Pleasant Hill Land For Sale
Plentiful wildlife
POA Maintains area roads
Pole Barn
Polk County
Pomme de Terre Lake
Pond
POND & SOLAR WELL
Pond and Stream
Pond Fishing
Pond for Fishing/Duck Hunting
Pond for sale Ashford AL
Pond on property
Pond Property Oklahoma
PONDEROSA PINE
Ponderosa Pines
Ponderosa Subdivision
Ponderosa Subdivison
Ponds
Pontiact mo
Pool
POOLS
Port Gibson
Portage WI Land for Sale
Portales New Mexico
POSSIBLE 5 BEDROOMS
Possible Homesite
Possible Mixed Use Tract
Possible Residential Dev.
Possible Split
Post & Beam Construction
Potential Commercial Property
Potential For Deepwater Dock
Pottawatomie county land
Powder Springs TN Land
Power
Power & Water Available
Power at street
Power at the street
Power Available
Power close by
Power Installed
Power Line / Electricity
Power Nearby
Power on site
Power to Lot
Power to Property
Power Utilities
Prairie Pot Hole Amenities
Premier Hunting Property NC
Premier rural real estate
Premier water access lot NC
Prepper bug out
Prepper Property In MO Ozarks
Prepper Property in Salem AR
Presque Isle County Hunting
PRICE REDUCED!
Priced To Sell
Prime Deer and Turkey Hunting
Prime Development Opportunity
Prime Hunting Land
Prime location
PRINCETON
Pristine lake
Pristine Semi-Private Lake
Privacy & seclusion
Privacy & Views for a homesite
Privacy along dead end road
PRIVACY HOMES FOR SALE
Privacy on Lake Wooten
Privacy w- road frontage
privacy!
Private
Private & Secluded Setting
PRIVATE ACCESS
Private Acreage Near Town
Private and Secluded
Private Boat Landing
PRIVATE BOAT SLIP
Private building site
Private building sites in TN.
Private CA Acreage For Sale
PRIVATE COUNTRY HOME SITE
Private Drilled Well
Private driveway with gate
Private Entrance Gate
Private fishing lakes
Private Getaway Property
Private home in Kentucky
Private Hunting Land For Sale
Private Hunting Retreat
Private Lake
Private Lake Home For Sale
Private lake lot for sale
PRIVATE LAKE PROPERTY
Private Lake Waterfront Lot
Private Location
Private Luxury Estate
Private Master Suite
Private MO Lake Lot For Sale
PRIVATE MOUNTAIN HOMESITE
Private Mountain Retreat
PRIVATE RETREAT
Private road
PRIVATE ROAD ACCESS
Private Scott Valley Land
Private secluded land for sale
Private secluded land in AR
Private Septic on Site
PRIVATE SETTING
Private Well
PRIVATE- NO RESTRICTIONS
Productive Cattle Ranch NE TX
Productive Crop Land
productive farm land
Productive Pasture Land
Productive Ridges
Profitable VRBO Property
Propane
Property
Property Brazos NM
Property by Lake in AR
Property East Feliciana Parish
Property for Sale
Property for Sale Bristol VA
Property for Sale Clayton LA
Property for Sale Copiah Co MS
Property for Sale Cranfield MS
Property for Sale Crosby MS
Property for Sale Hattiesburg
Property for Sale in AR Ozarks
Property for Sale in Arkansas
Property for sale in Bear Lake
Property for Sale in Fulton Co
Property for sale in North FL
Property for Sale in Oregon Co
Property for Sale in Ozarks
Property for Sale in SWVA
Property for Sale in the Ozark
Property for Sale Jefferson Co
Property for Sale Kentwood
Property for Sale Lake MS
Property for Sale Liberty MS
Property for Sale Loman
Property for Sale Lorman
Property for Sale Lowell
Property for Sale McComb
Property for Sale Meadville MS
Property For Sale Mississippi
Property for Sale Natchez
Property for Sale North LA
PROPERTY FOR SALE NORTH TEXAS
Property for Sale Port Gibson
Property for Sale Purvis
Property for Sale Roxie
Property for Sale Roxie MS
Property for Sale Ruston
Property for Sale Sandy Hook
Property for Sale South MS
Property for Sale Southeast LA
Property for Sale Southeast MS
Property for Sale Southwest MS
Property for Sale Sumrall
Property for Sale SW MS
Property for Sale Vicksburg MS
Property for Sale Wesson
Property for Sale Widener
Property in Dew
Property in Oregon Co
Property in the Ozarks
Property is off grid
Property Near Baton Rouge LA
Property near Truman Lake
Property on Spring River
Property w/ Southern Exposure
PROPERTY WITH RIVER ACCESS
Proven Waterfowl Success
Proximity to town
Public Land
Public path/Escarpment trail
Public Road /State Hwy Access
Public Utilities
Pulaski county acreage
Pulaski County Hunting Land
Pulaski VA Land for Sale
Purmela
Pushmataha County Real Estate
Pushmataha land for sale
Putah Creek Ranch Association
PUTNAM CO
PUTNAM COUNTY
QDM area
Quail
QUAIL HUNTING
Quiet Country Home
Quiet country road
Quiet Neighborhood
Quiet Rural Community
quite neighorhood
R/V electric
Raccoon Creek Frontage
Railway Right-of-Way
RALLS CO FARM FOR SALE
RALLS COUNTY FARM FOR SALE
RALLS COUNTY LAND FOR SALE
Ranch
Ranch Cattle Horses Goats Pigs
Ranch for Sale
Ranch for sale in Missouri
Ranch for Sale in Southern MO
Ranch for sale in Unit 34
Ranch for Sale in Weed
ranch for sale near Friona
Ranch For Sale Paris Texas
RANCH FOR SALE STILWELL OK
Ranch for Sale with Hunting
Ranch fpor sale near Chama
Ranch home
Ranch home needs finished
Ranch in Collin County
Ranch Land
Ranch Land for Sale in East TX
Ranch Property
Ranch style home
Ranch style house
RANCH/HORSE PROPERTY
Ranches
Ranches in New Mexico
Ranchette
Randolph County AR Farm
Randolph County has 5 rivers
Ravenden AR Farm for Sale
raw land
Raw Land West Monroe For Sale
Ready For Home
READY TO BUILD ON
READY TO BUILD ON - 1.53AC
READY TO MOVE IN
Real Estate
Real Estate Antlers Oklahoma
Real Estate for sale AtlantaMI
Real Estate for Sale Brazos
Real Estate For Sale Chama
Real Estate for Sale Chama NM
Real Estate Fort Towson OK
Real Estate in Floyd VA
Real Estate in Halifax VA
Real Estate near Chama NM
Real Ozarks Land For Sale
REAL TREE HUNTING PROPERTIES
Realtree deer hunting near LR
Realtree hunting Arkansas
REALTREE HUNTING LAND TEXAS
Realtree Hunting Lands
Realtree Hunting Properties
REALTREE HUNTING PROPERTIES MO
Realtree hunting property
RealTree Land Pros
Realtree UC Hunting Property
Rec land for sale Adams Cty
Rec land for sale Crawford Cty
Rec land for sale Richland Cty
Rec land Richland County
Rec land Vernon county
Recational Property
Recently Planted Pine Timber
Recreation
Recreation and Hunting Land
RECREATION ARE
RECREATION AREA
RECREATION BUSINESS FOR SALE
Recreation hunting & fishing
RECREATION LAND
recreation land for sale
recreation land near Moab Utah
Recreation near by
RECREATION PROPERTY
recreation property for sale
Recreation Property on 134 Ac
Recreational
Recreational acreage for sale
Recreational Cabin
Recreational Cabin Near Paonia
Recreational Hardwood Bottoms
Recreational Home in Colorado
RECREATIONAL HOMES
Recreational Hunting Land
Recreational hunting land Deer
Recreational Hunting Land LA
Recreational Hunting Land MS
Recreational Hunting Property
Recreational Land
RECREATIONAL LAND – 10AC
Recreational Land Cedaredge
Recreational Land Chatham LA
Recreational land close to are
Recreational Land Floyd VA
Recreational Land For Sale
Recreational Land for Sale NM
Recreational Land for Sale OK
Recreational Land For Sale TX
Recreational land Grant co
Recreational Land Grant County
Recreational Land in Arkansas
Recreational Land In Bristol
RECREATIONAL LAND IN NY
Recreational Land Louisiana
Recreational Land Near Glendo
Recreational Land Union Parish
Recreational land. Hunt
Recreational Lot for Sale
Recreational Mecca
Recreational Mountain land
Recreational Paradise
Recreational proeprty in AR
Recreational Prop. New Bern NC
Recreational Properties
Recreational Property
Recreational Property Chama NM
RECREATIONAL PROPERTY COLUMBIA
Recreational Property For Sale
Recreational property Hyde Co.
Recreational property in AR
Recreational Property in MO
Recreational property in NC
Recreational property in SW CO
Recreational Property NC
Recreational property Ozarks
Recreational Property South MS
Recreational Property SW MS
Recreational Ranch for Sale
Recreational Real Estate
Recreational Real Estate Chama
Recreational Retreat for Sale
Recreational RV Acreage
Recreational Tract
Recreational Tract 2 Lakes
RECREATIONAL TRACT OF LAND
Recreational Use
Recreational Value
Recreational; kayak
RecreationalLand for Sale AR
Red Feather Lakes
Red Feather lakes land
Red Feather Lakes real esate
Red Frog Beach nearby
RED OAK SCHOOL DISTRICT
Red River County Real Estate
Redding IA Farm for Sale
REDUCED PRICE!
Relaxing
Remodeled Farmhouse
Remodeled for residential
Remodeled inside and out
REMODELED KITCHEN
Remote
Remote Acreage
Remote and Accessible
remote Ranch for sale
Reno Nevada Land for sale
Rental Cabins
Rental Cabins For Sale
RENTAL INCOME POTENTIAL
Residential
Residential Development
Residential Land
Residential land for sale NC
Residential Land for Sale NM
Residential land in NC
RESIDENTIAL LAND WOOD COUNTY
RESIDENTIAL LOT
Residential Lot Beaufort Co NC
RESIDENTIAL LOT FOR SALE
Residential lots
RESIDENTIAL OR COMMERCIAL
Residential Prop. for sale NC
Residential Property
Residential Property for Sale
Residential/Unrestricted Lot
RESORT COMMUNITY
Resort Home Apple Canyon Lake
Resort Property
Restaurant
Restaurant & Bar for Sale
Restaurant Bar & Grill
RESTAURANT FOR SALE OR LEASE
Restaurants/Shopping
Restricted Community
Restricted for campers
Restrictions for development
Restrictive Covenants
Resturants/ Bar and Grill
Retirement & Active Adult
Retirement Home
Retirement Property
Retreat into Nature
Reynolds County Missouri
Richland Chambers Lake
Richland County
Richland County Land
Richland County Land for Sale
Richland County rec land
Richland County WI hunting
Richland Cty farm for sale
Richland Cty wooded hunting
Ridgway Co
Ridgway Colo Log Home for sale
Ridgway Montrose Ouray
Ridgway Montrose Telluride
Ridgway Ouray Montrose
Ridgway Ouray Montrose CO
Ridgway Ouray Telluride CO
Riding Arena and 6 stall barn
RILEY OREGON
Rio Arriba County Property
Rio Arriba County Residential
Rio Chama Estates Lot
RIP RAPPED BANK
Ripley County
Ripon WI land for sale
RIPRAPPED BANK
River Access
RIVER BREEZE ESTATES LOT #13
RIVER BREEZE ESTATES LOT #89
River Cabin
River Front
RIVER FRONT LAND - 0.4Ac
RIVER FRONT LAND 0.2Ac
RIVER FRONT LAND FOR SALE
RIVER FRONT LAND IN STONE CO
RIVER FRONT PROPERTY
River Front W/Floating Dock
River Frontage
River Frontage with Access
River Frontage- Pulaski County
RIVER HOME
River Home for Sale in AR
River Home for Sale Ozarks
River Land
River land in north Arkansas
RIVER LOT
RIVER LOT FOR SALE
River Lot for Sale AR
River Lot for Sale Arkansas
River lot for Sale in AR
River Lot for Sale in Arkansas
River lot for Sale in Mammoth
RIVER LOT FOR SALE IN TN
River lot in AR Flat terrain
River Lot in AR for Sale
RIVER LOTS
River lots for sale Arkansas
River Lots For Sale in AR
RIVER PROPERTY
River Property for Sale AR
River Property for Sale in AR
River Property for Sale Ozarks
RIVER RETREAT
River View
RIVER VIEW LAND FOR SALE IN TN
Riverfront
Riverfront Cabin in Arkansas
Riverfront Cabin in East TN
Riverfront Home Abingdon VA
Riverfront Home for Sale
Riverfront Home for Sale in AR
RIVERFRONT HOME FOR SALE IN TN
Riverfront Home for Sale in VA
Riverfront Home in the Ozarks
Riverfront Home Parker AZ
RIVERFRONT HOMES
Riverfront House in AR
Riverfront Hunting Property
Riverfront Land Auction TN
Riverfront Land for Sale
Riverfront Land for Sale in AR
RIVERFRONT LAND FOR SALE IN TN
Riverfront Land for Sale MS
RIVERFRONT LOT
Riverfront Lot for Sale NC
RIVERFRONT LOTS
RIVERFRONT PROPERTY
Riverfront Property for Sale
Riverfront Property in AR
RIVERFRONT PROPERTY IN MO
Riverfront Property in NC
Riverfront Property NC
Riverfront Property Ozarks
Riverfront Property W Monroe
Road and Sea Access
Road frontage
roads
Robertson County Land For Sale
ROCK BANK
ROCK BANK – BEAUTIFUL VIEWS
ROCK BANK – RIP RAPPED
Rock bluff and water falls
ROCK BOTTOM CREEK
Rock Formations
Rock River
Rock Walls
Rocking W Ranch in Lowell
Rocky Mountain Elk Hunting
Rolling acreage
Rolling Farm for Sale
Rolling hardwood forests
rolling hills
Rolling Terrain
Rome WI Home For Sale
Roof Top and Ground social are
Room
Rotational Grazing
ROTATIONAL GRAZING - CATTLE
ROUGH CANYON HOME WITH BARN
Route 1 Frontage
Route 66/Interstate frontage
Row Crop
Row Crop & Timber NW MO
Row Crop Farm For Sale MO
RUGGED TIMBERED TERRAIN
Running Creek
Running spring water
RURAL
Rural & Secluded
Rural acrage
Rural Acreage
RURAL ACREAGE FOR SALE
Rural and Private Location
Rural Benton County
Rural Build Site
Rural Cabin
Rural Cherokee County
Rural Country Setting
Rural East Texas
Rural Homesite
Rural land
Rural Life
Rural Lifestyle
rural lots
Rural Ozarks Land
RURAL PALESTINE REAL ESTATE
Rural Property
Rural real estate Adams County
Rural real estate Adams Cty
Rural real estate Crawford Cty
Rural real estate Vernon Cty
Rural Retreat
Rural Setting
Rural Timberland
rural water
Rush Creek Estates
Rush Lake Home For Sale
Rusk Co TX Ranch Land for Sale
RUSTIC HOME
Rustic Off The Grid Cabin
Rutledge
RV AND ATV WELCOME
RV Cover and Storage
RV Lot
RV or Build
RV Parking
Sabinal River Frontage
Sabine River Frontage for Sale
SACRAMENTO MOUNTAIN
SACRAMENTO MOUNTAINS
Safe
Saginaw Bay
Salem AR Land for Sale
Salem MO Hunting & Timber
Saline Bluff Ranch
Saline County KS Land For Sale
Saline River Frontage
Salt Fork River
Salt Plain Refuge
San Angelo good Building site
San Joaquin River
San Juan National Forest
Sand Dunes
SANDY BEACH AREA
Santa Fe
Santa Fe County
Santa Fe County Land For Sale
Santa Fe County NM
Santa Fe River Property
SANTA FE RIVERFRONT HOME
Santa Rosa New Mexico
Sardis
SAVANNAH TN HARDIN COUNTY
SC
Scenic
Scenic Mountain & Valley Views
SCENIC MOUNTAIN VIEWS
Scenic Views
Schoodic Lake
School
Schools
Scipio Oklahoma Real Estate
Scott Co.
SD Homes for Sale
SD Hunting Land for Sale
SD Land for Sale
SD Ranch Land for Sale
SE Iowa Home w/ Acreage
SE Iowa Hunting Land For Sale
SE Iowa Hunting Property
SE OK land e for sale
SE OK land for sale
Searcy Co Buffalo River Land
Seasonal
Seasonal Creek
Seasonal Duck Pond
Seasonal Log Home Colorado
Seasonal Stream
Seasonal Views of BSL
Seasonal Water
Secluded
Secluded & Private
SECLUDED 146+ ACRES
SECLUDED 166+ ACRES
SECLUDED 58+ ACRES
Secluded at end of road
Secluded Building sites
Secluded But Near Town
Secluded Country Estate SE LA
Secluded Deer Hunting Tract
Secluded From Road
secluded home
secluded home for sale
SECLUDED HUNTING LAND
Secluded Land For Sale
Secluded Land for Sale in VA
Secluded Land in Knoxville
Secluded land in Ozarks
Secluded Land with Timber
Secluded Lots 4-30 Acres
Secluded Mountain Community
Secluded Recreational Property
Seclusion
SECOND HOME IS 1332 SQ FT
Secure
Secure aea
Secure Parking
Secured community
Security
Security 24/7
Security Gate
Security System
Security System/Alarm
Seiad Valley CA Logging Land
Selective cut
Self sufficient
SELF SUSTAINING HOBBY FARM
Self Sustaining Property
Self-sufficient Farm So MO
Seligman AZ
Semi-private lake.
SENIC NEBRASKA SANDHILL RANCH
SEPTIC
Septic for 2 bdrm
Septic Installed
Septic Tank
SEVEN LAKES
SEVERAL GOOD BUILDING SITESD
Several irrigated tanks
Several nice homesites
SEVERAL PLACES TO BUILD
Several ponds
Several Streams on Property
Sevier County Land for Sale
Sewer
Shadow Lake
Sharp County AR Land For Sale
Sharp County Arkansas
Sharp County Hunting Land
Sheds
Shelly Sapp 334-596-3940
SHILOH FALLS SUBDIVISION
SHOP
Shop 30 x 30
Shop 40x50
Shop For Sale Antlers Oklahoma
Shop with living quarters
Shop with welder outlet
Shop/Man Cave
Shop/Storage Space
Shopping Downtown Hardy
Short Drive From Bakersville
Sierra Verde Ranch
Significant timber connected
Simmons Creek frontage
Simpson County MS Land
Single Family 3 Bedroom 3 Bath
Single family home Chama
Single Family Lot near Lake
Single Family near lake
Single floor living
SINGLE WIDE MOBILE HOME
Sioux Road Wilderness streams
SISKIYOU COUNTY
Siskiyou County Cabin in Woods
Siskiyou County Land For Sale
Siskiyou County Sustainable
Siskiyou Placer Mine Property
Siskiyou Timber Property
Ski Area Views
Ski Resort For Sale in Cody WY
Skiing Hiking Biking
Skiing in Telluride Co
Slight Slope
Slocomb Al Land For Sale
Sloped
Sloping
SMAL HOME FOR SALE EAST TX
SMALL 20X40 MOBILE HOME OFFICE
Small Acreage
Small acreage for sale
SMALL ACREAGE FOR SALE EAST TX
Small Acreage Pike County MS
Small Hardwood Drain
Small Hunting Tract For Sale
SMALL MOUTH BASS FISHING
Small Parcel For Sale Iowa
Small Pond /Open Water
Small Pond in Place
Small stream
Small town
Small Town Atmosphere
Small Town Living
Small Tracts For Sale
Smith Co TX Acreage for Sale
Smith County
Smith Mountain Lake Land
Smith Mountain Lake Lot
Sneedville
Snowmobile Trail Access
So. Central Home for Sale
solar energy property
Solar Panels
SOLOR HOME
Some Hard Wood Timber
Some Lots TN River For Sale
Some of the best hunting in OK
Some Open /Cleared Land
SOME TIMBER
Some TN Lots On Small TN Lake
Some trees
SOME WOODED AREA
South AL
South Central Missouri Farm
South Central Missouri Woods
South Central MO Ranch
South facing building land
South facing building lot
South facing building lots
South Facing Mountain Views
South Holston Lake
South Mississippi Hunting Land
South Texas
South Texas Ranch
Southeast IA Whitetail Farm
Southeast Iowa Deer Hunting
SOUTHEAST MISSOURI
Southeast Missouri home
Southeastern Ohio Land
Southern Exposure
Southern IA Pasture For Sale
Southern Indiana Hunting Land
Southern Missouri
Southern Missouri Acreage
Southern Missouri Farms
Southern Missouri Hunting Land
SOUTHERN MISSOURI RANCH
Southern MO lake property
Southern MO Land for Sale
Southern MO Ranch For Sale
Southern Oklahoma
SOUTHERN OKLAHOMA COUNTRY HOME
SOUTHERN OKLAHOMA LAND
Southern Ozark Farm for Sale
SOUTHERN TN LAND FOR SALE
Southern Utah land for sale
SOUTHWEST KANSAS FARMLAND
Southwest Missouri
Southwest NM Horse property
Spacious Common Areas
SPACIOUS HOME WITH POOL
Spectacular Views
Spirit in The Oaks Campground
Sportsman's Paradise
SPRING
SPRING / STREAM
Spring Creek
Spring fed creek
Spring fed creeks and pond.
Spring Fed Fish Pond
Spring Fed Reservoir
Spring River
Spring River AR Lot
Spring River AR Lot for Sale
Spring River Cabin in Arkansas
Spring River Land for Sale
Spring River Lot for Sale
Spring River Lot in North Ark.
Spring River Property
Spring River Riverfront Home
spring water
Springs / Creek
Springs & Creeks
Sprinkler System
SPRINKLER SYSTEM FOR YARD
Squires Mo for sale
SQUIRRELS
ST AUGUSTINE FLORIDA LAND
ST JOHNS COUNTY LAND FOR SALE
St. Francis River Frontage
St. Louis County
Stable Staff
Stanly County
STARKVILLE
Starter Home
State Highway Frontage
State Park Boundary
Statesboro
STEENS MOUNTAIN
STEENS MOUNTAINS
Steps from Beach
Steps from the Beach
Steps To Beach
STEPS TO WATER
Stigler
stock tanks (4)
Stocked Lake
Stocked Pond in Hickman co.
STOCKED PONDS & STREAMS
Stockton Lake
Stockton Lake / Stockton MO
Stockton Missouri
Stockton Mo
Storage
Storage for Sale
STORM SHELTER
Storm Shelter/Cellar
Stover
Stover Mo
Strong-Huttig School District
Studio
Stunning beachfront
Stunning views
Sturgis
STURGIS SD LAND FOR SALE
Subdivided Land For Sale NEMO
Subdividing
Subdivision possibilities
Substantial Timber Value
Sugarloaf Creek Frontage
Suitable for horses
Sulphur River Fishing Nearby
Sumrall School District MS
SUN ROOM
Sunday
Sunday July 11 @ 1:30 p.m.
Sunset views
Surfer Paradise
Surorunded green area
surrounded by conservation
Surrounded by green area
Surrounded by Land & Woods
Surrounded By Mountains
surrounded by nice homes
surveyed
Surveyed 5.20 Acres
Survival Properties
Susquehanna River
SUSTAINABLE
Sustainable Home
SUSTAINABLE HOMES FOR SALE
Sustainable land
Sustainable Off Grid potential
Sustainable Properties
Sustainable Property TA
SUWANEE RIVER LOT
SUWANNEE COUNTY HOME
Suwannee county land for sale
SUWANNEE FLORIDA
SUWANNEE RIVER
SUWANNEE RIVER LAND
SUWANNEE RIVER LOT
SUWANNEE RIVER LOT FOR SALE
SUWANNEE RIVER LOTS
SUWANNEE RIVERFRONT
SW KS FARM LAND FOR SALE
SW KS INVESTMENT OPPORTUNITY
SW KS LAND FOR SALE
SW MS HUNTING Land for Sale
SW MS Land for Sale McComb MS
SWIM
SWIMMING
Swimming Hunting Fishing
Swimming Skiing Hiking
SWVA Acreage for Sale
SWVA Home for Sale
SWVA Land for Sale
Table Rock Lake Front For Sale
Talking Rock Land for Sale
Tall Mature Trees
TANEY COUNTY FARM & HOME
Tannebaum Golf Club Nearby
Tar Camp Creek
Tax exonerated 9 more years
Tazewell
Tecumseh Land for Sale
Ten miles to Downtown
Tennessee
TENNESSEE COUNTRY HOME
TENNESSEE COUNTRY LAND
Tennessee Home Site For Sale
TENNESSEE HUNTING LAND
Tennessee Land
TENNESSEE LAND 5.33 ACRE SALE
Tennessee River
Tennessee River Cabin For Sale
TENNESSEE RIVER LAND FOR SALE
TENNESSEE RIVER MOUNTAIN VIEWS
TENNIS
Tennis Court
Terrace & BBQ
Terrain Level to Gentle
TEXAS
TEXAS ACRES FOR SALE
Texas Blueberry Farm for Sale
Texas Cattle Ranch for sale
Texas Cattle Ranches For Sale
Texas Country Home for Sale
Texas Country Homesite
Texas County Country Home
Texas Farm for Sale Smith Co
TEXAS FARM LAND FOR SALE
Texas Hill Country Land
TEXAS HOME FOR SALE
Texas Hunting Land for Sale
Texas Hunting Property
TEXAS LAND FOR SALE
Texas Living
Texas Monster Alligator Gar
Texas Pastures & Hunting Land
TEXAS RANCH LAND FOR SALE
Texas Ranch Land Grazing
Texas Recreational property
Thayer
THERESA LUNN 406-544-5970
Thick woods
Thompson Creek TImberland
THOMPSON RIVER FISHING
Thorn Hill
Thorn Hill TN Acreage for Sale
Three Rivers Estates
Thursday
Ticonderoga Land for Sale
Tiday Waterfront
Tierra Amarilla Homes for sale
Tierra Amarilla NM property
Tillable
Tillable Acreage
Tillable and Timber Land in Ad
Tillable Farm For Sale in IA
TILLABLE/CROPS IN BROOME C. O.
Timber
Timber &/or Farming Income
Timber Acreage For Sale NC
Timber Classification
TIMBER EXEMPTION LAND
Timber ground
Timber Investment
timber land
Timber land Adams County
Timber land and Acreage
Timber Land for in Slocomb AL
Timber Land For Sale
Timber Land For Sale Adams Cty
Timber Land for Sale in Amite
Timber land in AR for sale
Timber Land in the Ozarks
Timber Land Smith County TX
Timber Land Wood
Timber Property
Timber Property for Sale
Timber Property For Sale NC
Timber tract
TIMBER TRACT FOR SALE FOR SALE
Timber tract in Hyde County NC
Timber Value
Timbered Hunting Land for Sale
Timberland
Timberland Columbia County
Timberland Dallas County
Timberland For Sale
Timberland for sale Craven Co.
Timberland for sale in Ark
Timberland for sale in Tn
Timberland for Sale MO Ozarks
Timberland For Sale MS
Timberland for Sale SW MS
TimberLand in Southern MO
Timberland Investment Arkansas
Timberland Investment Property
Timberland Jefferson County
Timberland Near Little Rock
Timberland Property
Timberland Property For Sale
Timberland Southwest MS
Timberland Tract For Sale
Timberland Tract Near LA Line
Timberland west Pulaski County
Timberland- Loblolly Pines MS
Tina Marshall Land Specialist
Titled land
Titled lot
TN
TN ACREAGE TO BUILD OR FARM
TN COUNTRY HOME LAND FOR SALE
TN CREEK TIMBER LAND FOR SALE
TN Deer Wildlife Land For Sale
TN Duck Hunting Land for Sale
TN Farm For Sale - Investment
TN Highway 64 Front For Sale
TN HISTORIC COUNTRY HOME
TN HOME 21 AC LAND
TN Home For Sale
TN HOME LAND
TN HOME SITE LAND FOR SALE
TN Home with Acreage for Sale
TN Hunting Land For Sale Creek
TN Hunting Property for Sale
TN Lake Land for sale
TN Land
TN Land For Sale
TN LAND FOR SALE – 9.01AC
TN LAND FOR SALE – 9.47AC
TN Land For Sale Electric
TN Land For Sale on creek
TN Land Home Site For Sale
TN LAND TO BUILD ON FOR SALE
TN LAND WITH UTILITIES
TN Pine Timber Land For Sale
TN Property
TN Recreational Farm for Sale
TN RIVER ACCESS
TN RIVER FRONT LAND – 0.29AC
TN RIVER LAND FOR SALE
TN RIVER LOT NEAR BOAT RAMP
TN RIVER VIEW LAND FOR SALE
TN Riverfront Land
TN RIVERFRONT LAND FOR SALE
TN RIVERFRONT LOT – 0.5Ac+/-
TN RIVERFRONT LOT FOR SALE
TN RIVERVIEW LAND - 0.27AC
TN Unrestricted Land for Sale
TN Waterfront Land For Sale
Tonopah AZ Country Home
Tonopah AZ Desert Oasis
Tonopah AZ Home For Sale
Tons of Possibilities
Topisaw Creek McComb
Torrance County
Torrance County New Mexico
TOTAL OF ONE ACRE
Totally "off the grid"
Tower and Ground Blinds Convey
Town maintained road
TRACT #1 IRRIGATED LAND SW KS
TRACT 1 OF 3 - LOW TAXES
Tract 2 - 10.77 Acres
TRACT 2 OF 3 - LOW TAXES
TRACT 3 OF 3 - LOW TAXES
Tract 7 - 13 Acres
Traditional Style Home in SWVA
TRAILS
TRAILS THROUGHOUT
Training & Boarding Facility
Transmission Line RoW
Travis Hamele land specialist
Travis Hamele WI Realtor
Travis Hamele Wisconsin Realto
Treed
TREES
Trees and Meadows
Trees and River land For Sale
Trinity Riv TX Land for Sale
TRIPLE WIDE MANUFACTURED HOME
Trophy Class Hunting Land
Trophy Deer & Turkey Hunting
Trophy Deer Hunting
Trophy deer hunting land WI
Trophy hunting property
Trophy Whitetail
TROPHY WHITETAIL DEER
Trophy Whitetail Deer & Turkey
TROPHY WHITETAIL HUNTING
Trophy Whitetail Hunting Mo
Trophy Whitetails
Troup TX Hunting Land for Sale
Trout Fishing
TROUT FISHING NEAR BY
Trout Fishing-Nations BEST
Trout Pond
Trout Stream
Trout Stream Frontage
Truman Lake
Tucumcari land for sale
Tuesday
Turkey
Turkey Abundant
Turkey Creek Bottoms
Turkey Flocks Abundant
Turkey habitat
Turkey Hunting
turkey hunting Cattle Cows
turkey hunting in AR
Turkey hunting land AR
Turkey Hunting land for sale
Turkeys
Turn key
Turn Key Business
Turn Key Hunting Property MS
Turn-Key Country Farm Setup
turney. furnished & appliances
Turnkey Business w/ Low Taxes
Turnkey Hunting Camp South LA
Turnkey Hunting Camp SW MS
Turnkey Hunting Land West AL
Turnkey Hunting Property
Turnkey Hunting Property NE LA
Turnkey Texas Ranch for Sale
Tuscan Style Home Howell Co.
Tuttle School District
Twin Dams Subdivision
TWO ADJOINING LAKE LOTS
Two and one half car garage
TWO BEDROOMS
Two cabins
two country homes
Two Gas Fireplaces
Two homes for one price
Two Large Ponds
Two Parcels
Two Ponds
Two Story Garage w/ F.R.O.G.
two story with balconies
TWO TRACTS
TX
TX ACREAGE
TX Country Home Cherokee Co
TX Deer Hog Hunting Smith Co
TX Duck Hunting Land for Sale
Tx for sale
TX High Fence Ranch for Sale
TX Hunting Land Freestone Co
Tx Investment land for sale
TX Land & Stocked Fishing Pond
TX LAND FOR SALE
TX Organic Berry Farm for Sale
TX Ranch Val Verde Co for Sale
TX Recreational Land for Sale
Tx riverfront
TX Timber Land for Sale
TYLER COMMERCIAL PROPERTY
TYLER TX REAL ESTATE
Under ground power new road
Underground Utilities
undeveloped acreage
Undeveloped Land
Undeveloped Timberland
UNDEVELOPED WATERFRONT LAND
UNFINISHED CABIN
Unicoi Co
Unicol County TN Auction
Union County
Union County Dormitory
Unit 10 Hunting
UNIT 16 KANSAS
UNIT 16 KANSAS Hunting
UNIT 34 HUNTING
UNIT 34 HUNTING AREA
United Country Arkasnas
United Country Champion RE
United Country Mike Krieg
United Country Missouri
United Country Real Estate
University of Florida
Unresricted Land in East TN
Unrestricted
UNRESTRICTED ACREAGE
UNRESTRICTED ACREAGE FOR SALE
Unrestricted Home for Sale TN
Unrestricted land
Unrestricted land for sale
Unrestricted Land for Sale TN
Unrestricted Land in East TN
Unrestricted land in W Monroe
Unrestricted land W Ouachita
UNRESTRICTED TN LAND
Unrestricted wooded land
UP TO 2
UP Waterfront lot for sale
UPDATED BATHROOMS
UPDATED CONDO EAST TEXAS
Updated home
updated home for sale hermann
Upland /Flat Topography
Upland /Rolling Hills Topo
Upland /Well-Drained Topo
Upland Game
Upper Peninsula Hunter's Dream
Upper Peninsula Land
Upscale Remodel
Upshur Co TX Land for Sale
Upstate NY Home For Sale
Upstate NY Lake Property
US Forest Service
US Highway frontage
US-Hwy and County RD Frontage
USDA Organic TX Blueberry Farm
Utah
Utilities
UTILITIES @ ROAD
Utilities /Home Site Potential
Utilities & Services Included
UTILITIES AT THE ROAD
UTILITIES AVAIL AT ROAD
UTILITIES AVAILABLE
Utilities on the property
Utilities Onsite
Utilities plumbed into home
Utilities to Lot Line
VA
VA Farm for Sale with Stream
VA Golf Property for Sale
VA Hunting & Recreational Land
VA Hunting Property For Sale
VA Land for Sale
VA Mountain Land for Sale
VA Property
VA Recreational Land for Sale
VACANT
Vacant Land
Vacant Land 5.58 acres
Vacant land for sale
Vacant Land for Sale AR Ozarks
Vacant Land for Sale Fulton Co
Vacant land for sale Roper NC
Vacant Land in Southern MO
Vacant Land in TN.
Vacant Land with Improvements
Vacant Land/Lot for Sale
Vacant Lot
Vacant Lot Mariann
Vacant lot on Spring River
Vacant lots for sale NE MO
Vacant River Lot In Arkansas
VACATION HOME FOR SALE EAST TX
Vacation Mountain Retreat
Vacation Property
Vail Eagle Glenwood Springs
VALENTINE NEBRASKA
Valley & Mountain Views
Valley and Mountain views
Van Buren County IA Land
Van Buren County Land For Sale
Van Zandt County
Variety of places to build
Vast Interconnected Timber
Vernon County
Very Private Wooded Parcel
VERY SECLUDED
View
VIEW LOT
View of Buffalo Mountain
View of Mountains
View of Mt. Adam
View of Mt. Adams
View of Simcoe's
View of Spring River
Views
Views and driveway cut in
Views Casper Wy Mountains
Views for Miles from the Cabin
Views from the highest point
views of Black River
Views of Blue Ridge Mountains
Views of Cove & Big Water
Views of Crooked Creek
VIEWS OF FAIRWAYS #2 & #8
Views of Mountain Ranges
Views of Mountains
Views of Mt Adams
Views of Mt Hood
Views of Mt. Adam
Views of Simcoe's
Views of the Simcoe's
Views of Zapatillas
Village of Chama Lot for Sale
Village Utilities in Place
Vintage
Vintage Motel
Vinton County Home for Sale
Vinton County Ohio
Viola Arkansas land for Sale
Vista al mar y balcon
w/ Fencing & Gate
w/ Shop
Walk distance from the beach
Walk to Beach
Walk to schools K-12
Walk to shopping
Walk to the water access
WALK-OUT BASEMENT
Walking Distance to Beach
walking to commercial area
Walking trails on site
walkout basement building lot
Walthall County MS
Wapello County Hunting Land
Wappapello Lake
Wappapello Lake Mo
Wappapello lake Mo 3 acres
Wappapello Lake MO fishing
Wappapello Mo Lot For Sale
Ward
Washington County
Washington County Ohio Land
Washita River Bottomland
WASHITA RIVER FRONTAGE
Washoe County Burning Man BLM
Washoe County Land for sale
Washoe County NV Land For Sale
Water
Water & Electric near
Water Access
Water an Power to Home Site
water and electric
Water Available
Water Fowl Property
Water Front
Water front acres in Albany
Water front Lot
Water Front Property
Water front/views
Water hook ups
Water Property
Water Rights
Water Rights Transfer
Water Sports
Water spring
Water Tank
Water View
WATER VIEW LOT - BUILD HERE
WATER VIEW OF INDIAN CREEK
Water Views
Water Well
Waterfowl
Waterfowl Hotspot Rockville MO
Waterfowl Hunting
Waterfowl Hunting Property NC
Waterfowl Hunting WI
waterfront
Waterfront acreage for sale
Waterfront at Lake Thunderhead
Waterfront building site
Waterfront Cabin
Waterfront Camp Poplarville MS
Waterfront Country Home LA
WATERFRONT HOME / TINY HOME
Waterfront Home Columbia LA
WATERFRONT HOME FOR SALE
Waterfront Home for Sale Texas
Waterfront Home in Coldwater
WATERFRONT HOME IN WOOD COUNTY
Waterfront Home on Rush Lake
WATERFRONT HOME W/POOL EAST TX
Waterfront Homes & Land
Waterfront Lake Lot For Sale
Waterfront Land
WATERFRONT LAND FOR SALE
WATERFRONT LAND FOR SALE IN TN
Waterfront land in Ball Ground
WATERFRONT LAND READY TO BUILD
Waterfront lot
Waterfront Lot 4Sale DeTour
Waterfront lot Beaufort Co. NC
Waterfront Lot for Sale
WATERFRONT LOT FOR SALE IN TN
Waterfront Lot for Sale in VA
Waterfront Lot North MO
WATERFRONT LOT WITH BOATHOUSE
Waterfront on the Bay
Waterfront private lake lot
Waterfront property
WATERFRONT PROPERTY EAST TX
Waterfront Property for Sale
Waterfront Property in TN
WATERFRONT RECREATION
Waterfront Views
Waterfront-Lake Thunderhead
Wayne County Land For Sale
Wayne County lot for sale
Wayne County MO
Wayne County MO home site
Wayne County MO land for sale
WAYNE COUNTY TN LAND FOR SALE
Waynesboro
WAYNESBORO TN LAND FOR SALE
Wedding Venue
Week End Get A Way
Weekend Cabin Rental
Weekend getaway
Weekend getaway camping
Weekend Retreat Property OK
Well
Well & Electric on site
Well & Septic
Well and Septic installed
Well and Septic on site
Well and septic tank
Well Drained Topography
Well Established Business
WELL MANAGED PASTURELAND
Well wooded
Well-Drained /Rolling Hills
Well-maintained
Wells in Area
West Elks Wilderness hunting
West Feliciana Parish Land
West Lincoln School District
West Plains Arrowhead Lakes
West Tennessee land for sale
West Texas Ranch For Sale
West TN Hunting Land For Sale
west Tx Investment property
west TX land for sale
Western CO Luxury Home
Western Colorado Home
Western Colorado Home For Sale
Western Colorado hunting land
Western Colorado Recreational
WESTERN KANSAS LAND SALE
WESTERN MONTANA GROUP
WESTWOOD SCHOOL DISTRICT
Wet Weather Creek
Wet Weather Streams Missouri
Wetland Reserve Program Prop
Wheatland
Wheatland school
White River
WHITE RIVER FISHING
WHITE RIVER FISHING PROPERTY
White River Frontage
White River Lot In Ozarks
White River Overlook
White Top VA Land for Sale
White/Buffalo River near by
WHITEFISH MOUNTAIN RESORT
Whitesboro Land For Sale
whitetail
Whitetail Deer
WHITETAIL DEER & TURKEY
Whitetail Deer Hunting
Whitetail Deer Hunting Kansas
Whitetail Hunting
Whitetail Hunting Farm
Whitetail Hunting Property
Whitetail land Richland Cty
Whitetail Property for Sale
Whole House Generator
Wickenburg Mountains
Wilburton Land For Sale
Wild Hogs
WILD HORSE LANDING
Wild Turkey
Wilderness area
Wildlife
Wildlife Abounds
Wildlife activity
Wildlife Area
Wildlife Exempt
Wildlife Exemption
Wildlife Galore
Wildlife Haven
Wildlife Hunting Land
Wildlife Opportunites
WildlifeWater
Wilkinson Co Lake House MS
WILL DIVIDE! 20+ ACRES
Williams Landing
Williamson County Land
Windmill
Winnebago County farm for sale
Winnebago County home for sale
Winnebago County land for sale
Winnebago County WI land
Winneconne Lake home
WINNSBORO
WINNSBORO LAND FOR SALE
WINNSBORO TEXAS LAND
Winter Park /Grand Elk Skiing
Winter Park Resort views
Wisconsin Dells Hunting Land
Wisconsin Dells WI land for sa
Wisconsin Development Property
Wisconsin hunting land
Wisconsin Hunting Land For Sal
Wisconsin Log Cabin Home
Wisconsin River
Wisdom Dock
With Two Creeks
Wood Acreage
Wood Burning Fireplace
WOOD BURNING STOVE
WOOD COUNTY LAND EAST TEXAS
Wood County land for sale
WOOD COUNTY PASTURE LAND
WOOD COUNTY TEXAS ACREAGE
WOOD COUNTY TEXAS LAND
WOOD COUNTY TX LAND FOR SALE
Wood Land
Wood Lot
Wood Stove
Wooded
Wooded & open land
Wooded & secluded land
Wooded 20 acres
Wooded Acreage
WOODED ACREAGE FOR SALE
Wooded Acreage For Sale in TX
WOODED ACREAGE IN BAXTTER CO
Wooded Acreage MO Ozarks
Wooded acreage nice Timber
Wooded Acres in Chenango Count
WOODED ACRESAGE FOR SALE
Wooded Building Lot
Wooded building sites
Wooded FL acreage
WOODED FOR PRIVACY
WOODED GOLF COURSE LOT
Wooded Hollows
Wooded land
Wooded land for sake
Wooded Land For Sale
Wooded Land for Sale in Ferrum
Wooded Land for Sale in Floyd
Wooded Land for Sale in VA
Wooded Land For Sale MS
Wooded land near Beaver Lake
Wooded land near Eureka Spring
Wooded land near Eureka Sprs
WOODED LAND WINNSBORO TEXAS
Wooded Lot
Wooded Lot For Sale
Wooded Lot for sale sub div
WOODED LOT IN HOLLY LAKE RANCH
Wooded Lot Near Lake
Wooded Lot Pond Guest Quarters
Wooded Lot Ticonderoga
Wooded lot with mature trees
Wooded Lots for sale
Wooded Lots near Gasconade
Wooded property
Wooded Property For Sale
Wooded Property for Sale in VA
Wooded Property in SWVA
Wooded River Land For Sale
Wooded Small Acreage Parcel
WOODED TRACT
Wooded tract near Eureka Sprs
Wooded/Timber
Woodland
Woodland & Grass land
Woodlands
woods
Woods & Crop ground
Woods 3 acres in Arkansas
Woods and pasture
Woods with trails
Woodsroad access
WOODWORK
Wooster Elementary
Working cattle farm
Workshop/Garage/Storage
World Class Hunting
WRAP AROUND DECK
WRIGHT COUNTY RANCH FOR SALE
Wtrfrt Home 4sale UnionvilleMI
Wythe County VA Farm for Sale
Yaak
Year round
Year round access
YEAR ROUND CREEK
Year round maintained access
Year Round Recreation Property
Year round spring water
Year-Round Lake Cabin / Home
Yet Convenient
Yolo County Acreage For Sale
YOSEMITE
Young Planted / Natural Pine
Your own exotic Island
Yreka Hunting Retreat for Sale
zip
Zip Line
zoned agricultural
Zoned B-2

Transport
Supermarkets
Schools
Restaurants
Pharmacies
Hospitals

Contact Me

Similar Listings

31
Ozarks Farm And Development Property For Sale Salem Ar
Agricultural
Active

Ozarks Farm And Development Property For Sale Salem Ar

$ 379,000
DEVELOPMENT PROPERTY FOR SALE SALEM ARKANSAS MLS# 23008431 Farm & Development Property for sale at Salem, AR.  82  Acres M/L. $399,000.00 This property is located at the edge of Salem. It ha ...
82.00 acdetails
31
Country home in Fulton County AR for sale with 14.33 acreage
Residential
Active

Country home in Fulton County AR for sale with 14.33 acreage

$ 389,500
Country Home with Shop on 14.33 Acres for Sale in Salem, AR Discover the perfect blend of comfort, functionality, and country charm with this stunning 4-bedroom, 3-bathroom home nestled on 1 ...
4 2 3,216.00 ft2 14.33 acdetails
31
European Style Luxury Home & Acreage On The Southfork River
Residential
Active

European Style Luxury Home & Acreage On The Southfork River

$ 1,525,000
EUROPEAN STYLE LUXURY HOME & ACREAGE ON THE SOUTHFORK RIVER - SALEM ARKANSASMLS# 25011307Looking for luxury living with riverfront views? Welcome to your new luxury home. This European-style ...
3 4 4,309.00 ft2 15.00 acdetails
27
Secluded Log Home With Acreage In Fulton County Arkansas
Residential
Active

Secluded Log Home With Acreage In Fulton County Arkansas

$ 439,000
SECLUDED LOG HOME WITH ACREAGE IN FULTON COUNTY ARKANSASMLS# 131535MLS# 25020887 Secluded Log Home on 30 Acres - Your Ideal Homestead Escape to the tranquility of the countryside with this ...
3 3 2,500.00 ft2 30.00 acdetails

Compare Listings

Burdetta Pendergrass