Property Description
Secluded Home on 22 Acres with Creek, Spring, Timber, and Outbuildings – Near Norfork Lake & Mountain Home, AR
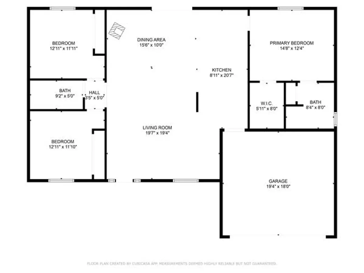
Escape to the Ozarks with this beautiful 3 bedroom, 2 bathroom home featuring 1,440 sq ft of open-concept living space. Designed for comfort, the home offers a wood stove, heat pump, and all-electric efficiency. The kitchen is a dream with quartz countertops, hickory cabinets, stainless steel appliances (convey), and a touchless water faucet. The primary bedroom ensuite includes a walk-in closet, walk-in shower, while large bedrooms, marble window sills, and modern finishes add charm throughout.
Enjoy outdoor living with concrete porches, electric plugs on the porch, and a fenced-in area for dogs. Property includes a 24×12 Bald Eagle Barn with power, 30×20 Quonset hut with power, landscaping, and winding driveway for privacy.
Set on 22 unrestricted acres of tall pines and marketable timber, this property also features an artesian spring, creek, and room for cattle, horses, or livestock. Perfectly located near Norfork Lake, Mountain Home, Spring River, Southfork River, and White River, this is an ideal retreat for outdoor enthusiasts.
Contact Burdetta Pendergrass for more information 870-371-0001
PROPERTY HIGHLIGHTS:
| United Country Arkansas | United Country Real Estate | Arkansas Property artesian sp | Retirement & Active Adult | |
| United Country Cotham and Co | Ozark Land and Home for Sale | Country Homes | ||
| Country Home Fulton co AR | No Restrictions Arkansas | Recreational Property |






























