Property Description
New Build for
Sale in Salem, MO
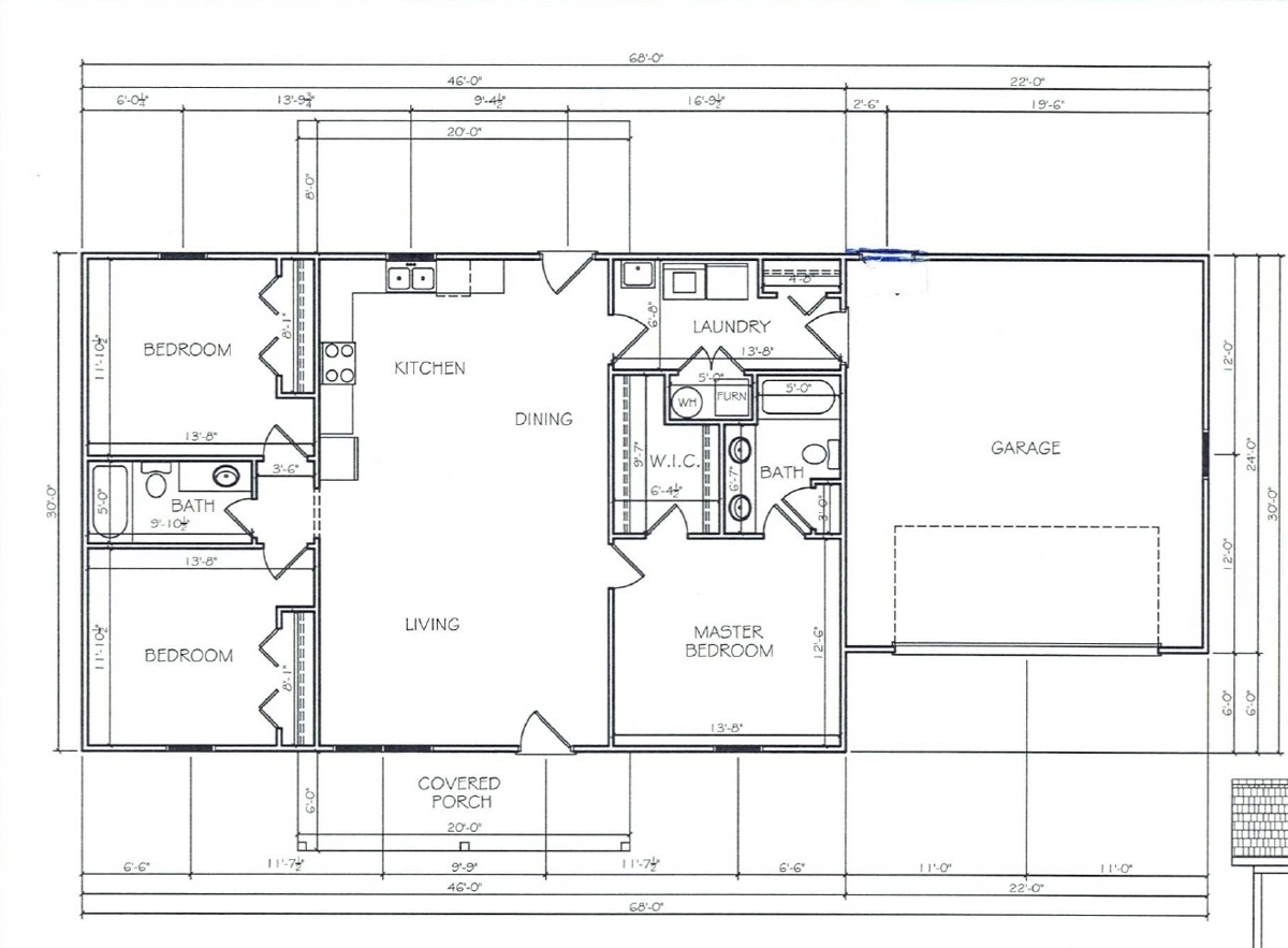
This brand-new home is set for completion in December 2025 and
offers a thoughtfully designed split floor plan for both comfort and
convenience. The main living areas will showcase luxury vinyl plank flooring,
while the bedrooms feature cozy carpeting. A modern kitchen anchors the home
with soft-close cabinetry, stainless steel appliances—including refrigerator,
smooth-top range, microwave, and dishwasher—and stylish finishes. The primary
suite provides a private retreat with a full bath and walk-in closet,
complemented by an electric heat pump, central air, and ceiling fans
throughout. A spacious two-car attached garage adds both functionality and
value.
House for Sale
in Dent County, MO
Located just a
few blocks from the high school and within easy reach of the Current River,
Montauk State Park, and local shopping, this property is ideal for both
everyday living and weekend adventures. Buyers may have limited options to
select siding, roofing, flooring, and paint colors depending on the stage of
construction at contract signing, along with a $1,000 lighting allowance to
personalize the finishing touches.
Bottom of Form
Top of Form
Bottom of Form
Bottom of Form
Additional Information
- Bedrooms: 3
- Bathrooms: 2
- Utilities on site: city
- Acreage: .344 acres
- Finished Sq Ft: 1,380 ±
- School District: Salem R-80
- 2024 Taxes: $92
- Address: 1002 W Coffman St. Salem, MO 65560
- Listing Agent: Shea Wood | 573-247-0425
About Salem, Missouri
Salem, Missouri is the county
seat of Dent County, Missouri. Salem
is located a few miles north of the Ozark
Scenic Riverways and close
to Montauk State Park, which contains the headwaters of the Current River. Salem offers a lot of recreational activities if
you like floating, boating, fishing, and hiking the Mark Twain National Forest –
For more information, contact Shea Wood, United Country
Salem Realty
For more information on this new
construction home for sale in Salem, Missouri, contact Shea Wood with United
Country Real Estate: Salem Realty at 573-247-0425, or via email. Find Shea on Facebook @ United
Country Salem Realty
*****
Find More Listings Offered By
United Country Salem Realty HERE
PROPERTY HIGHLIGHTS:
| Home for Sale in Salem, MO | Salem, MO House for Sale | New Build for Sale in MO | ||
| Salem, MO Home for Sale | New Construction for Sale | Dent County Home for Sale | ||
| House for Sale in Salem, MO | MO New Build for Sale | Home in Town |






