Property Description
Charming 2 Bed, 2 Bath Brick Home for Sale in Salem, Arkansas – Fulton County
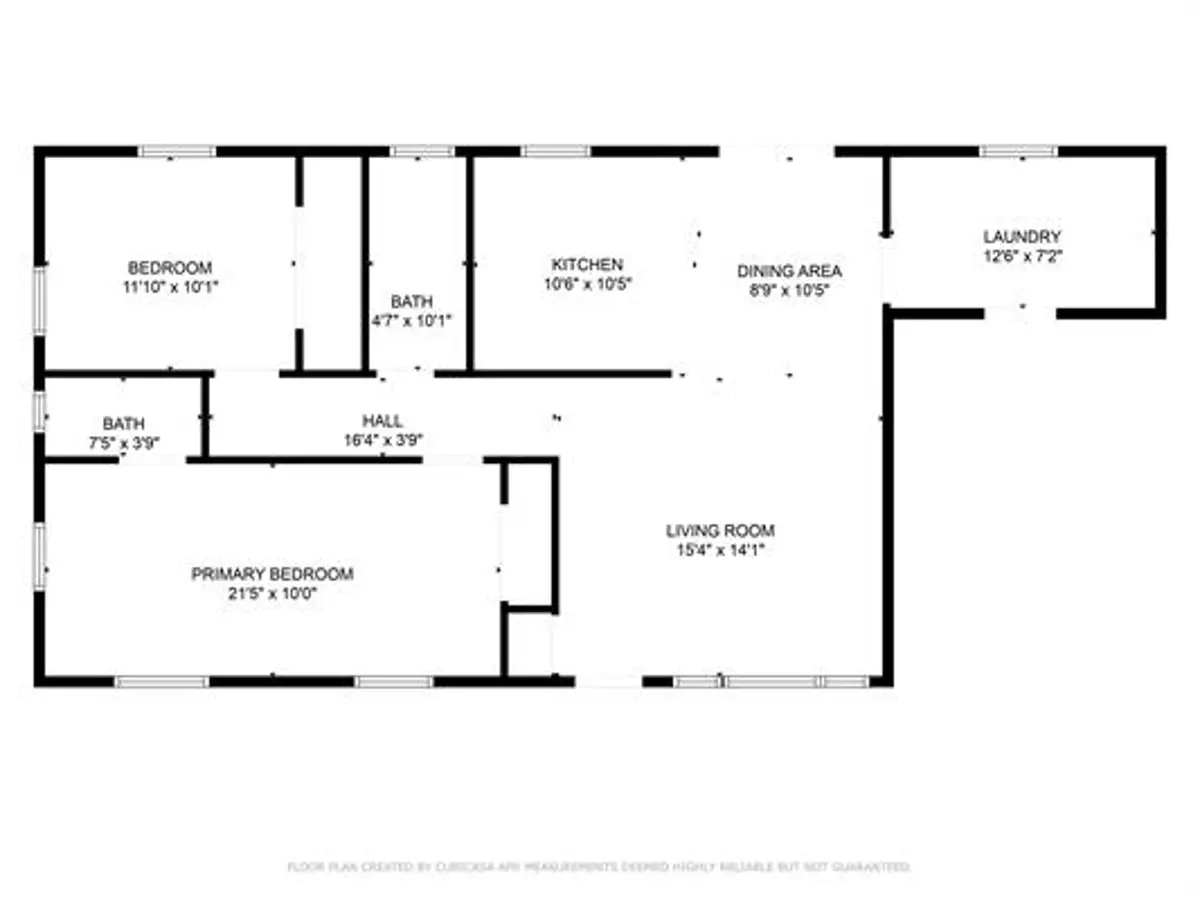
Welcome to this move-in ready brick home located in the heart of Salem, AR in beautiful Fulton County. This 2-bedroom, 2-bathroom home offers small-town convenience with timeless charm. Featuring a white picket fence, inviting front and back porches, and a 1-car garage, metal roof, this property is perfect for those seeking comfort and curb appeal.
Inside, you’ll find a spacious laundry room and a functional floor plan ideal for everyday living. Enjoy the peace of an in-town location while being close to schools, shopping, and medical facilities. Salem is known for its welcoming community, scenic beauty, and easy access to nearby Norfork Lake, Spring, and Southfork River, and outdoor recreation.
Whether you’re a first-time buyer, downsizing, or searching for a low-maintenance home, this brick beauty is a must-see.
Call today to schedule your showing of this Salem, Arkansas home for sale!
Contact Burdetta Pendergrass for more information on this property – 870-371-0001
PROPERTY HIGHLIGHTS:
| Salem AR property for sale | United Country Real Estate | AR Ozarks home for sale | ||
| Salem AR home in Town | United Country Cotham and co | Home in Town | ||
| Town home in AR | Fulton co AR home for Sale | Retirement & Active Adult |

































