Property Description
New Construction For Sale in Sandstone,
MN
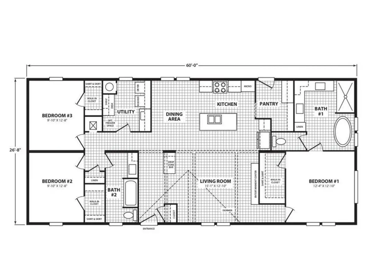
New Construction! New 3 bed/2 bath
manufactured home on 75×120 lot in town Sandstone. This home features one-level
living. Walk in to an open and inviting living room area with plenty of
lighting and windows. Open concept living area shared with the kitchen and
dining room. Kitchen features all new stainless-steel appliances, center
island, and access to back entrance with pantry/storage space. Dining space has
patio door out to a newly built deck to enjoy summer evenings outside. Primary
bedroom sits on one end of the home with large walk-in closet and huge en suite
with separate shower and tub, his and hers sinks, lots of cabinet/storage
space, and water closet. The opposite side of the home has two more bedrooms,
full bathroom with shower/tub combo, and spacious laundry room with sink and
desk space. This home sits on a nice lot in town – close to groceries and
shopping, restaurants, banking, hospital/clinic/pharmacy. City road frontage
along the front of the home and alleyway with parking space in the back.
Directions
to 118 Division Street Sandstone, MN 55072
- I-35 to Sandstone #191 – East on MN-23, staying right at the Y into town, right
on Division to second home on the left. - Click
Here for a map to the country
home for sale located at 118 Division Street Sandstone, MN 55072
Additional
Information
- Bedrooms: 3
- Bathrooms: 2
- Utilities on site: Yes
- Acreage: .21
- Finished Sq Ft: 1,600
- School District: East Central #2580
- 2025 Taxes: $464
- Address: 118 Division Street Sandstone, MN
55072
Sandstone, Minnesota
Located
100 miles North of the Twin Cities, along Interstate-35 is Sandstone, Minnesota.
This small town is home to nearly 3,000 residence and offers most everyday
amenities including Essentia Hospital, Gateway Clinic, Chris’s Food Center, Anytime Fitness, Arlen Kranz Ford, Ace Hardware, Lampert Lumber,
as well as convenience stores, restaurants, banking opportunities, and
places of Worship.
Sandstone
and the neighboring town of Askov are serviced by the East Central
School District, a K-12 school that also offers early childhood
and community education. The campus is located between the two towns,
just off of I-35 near Banning Junction.
Area
attractions include Banning State Park, the Willard Munger Trail, Robinson Park and Osprey Wilds Environmental Center.
The Sandstone Ice
Festival and Kettle River Paddle Fest draw in numerous outdoor
enthusiasts annually. The Sandstone Area Golf Course is a 9-hole, 2,608 yard, par
34 course complete with clubhouse and pro-shop. If you are looking for indoor
activities, Sandstone Lanes Bowling Alley is located right along Main Street
for league and open-bowling and you can find Midwest Country Music Theater located
downtown.
For more information, contact
Kelly Frisch, United Country Real Estate
For more information on this home for
sale in Sandstone, Minnesota, contact Kelly Frisch with United Country Real
Estate: Minnesota Properties at 763-300-6334 or via email.
Find Kelly on Facebook!
What is My Property Worth?
Curious what your home, cabin, waterfront
property, or land is worth? Click HERE to
find out!
*****
Find
More Listings Offered By
United
Country Real Estate Minnesota Properties HERE
Northstar #7004775 | Duluth LSAR# 6123269 | Pine County, Minnesota
PROPERTY HIGHLIGHTS:
| Sandstone MN Home For Sale | Pine County Home For Sale | Country Home For Sale in MN | ||
| Home For Sale in Sandstone | Home For Sale in Pine County | Sandstone MN Country Home | ||
| Sandstone MN Real Estate | Minnesota Real Estate | Home in Town |




























