Property Description
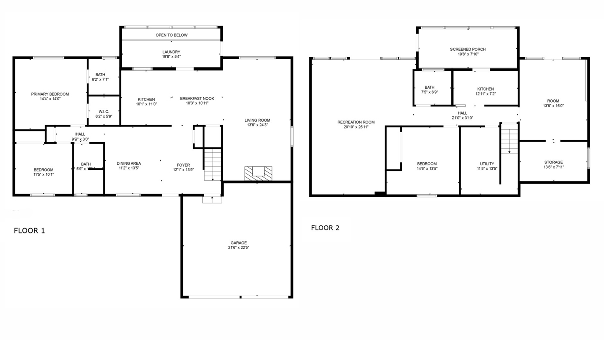
Home For Sale in Rifle, COWelcome to 1433 Jays Ave in Rifle Colorado. This newly remodeled home offers everything buyers are looking for in Garfield County real estate. With mountain views, a large yard, flexible living space, and move in ready finishes this property is a true find. Families appreciate access to schools, parks, and trails while investors will see the value in the built in income potential.Rental Opportunity in Garfield County Inside you will find two complete living spaces each with its own entrance. The upstairs features two bedrooms and two bathrooms, a bright open concept kitchen, laundry hookups, and spacious living areas. The downstairs offers two more bedrooms and one bathroom with its own kitchen and laundry hookups. This setup is perfect for multi generational living, hosting guests, or creating rental income.Western Colorado Views Step outside to enjoy the private backyard with mature fruit trees and room to garden or relax. From the back patio you can take in incredible views of Grand Mesa and the Bookcliffs. The property sits right next to Davidson Park which gives you convenient access to open green space. Living in Rifle, COLiving in Rifle places you at the gateway to the Roaring Fork Valley where world class outdoor recreation is part of everyday life. Enjoy hiking, mountain biking, hunting, fishing, and boating at Rifle Gap and Harvey Gap Reservoirs. In the winter, ski resorts are within easy reach. The valley is also known for its strong community, local restaurants, farmers markets, and cultural events that make small town living vibrant and connected. This home is move in ready and offers the rare combination of updated finishes, flexible living space, and a location that captures everything people search for in Garfield County Colorado homes for sale.
PROPERTY CONSIDERATIONS:
| Homes for sale in Garfield CO | Roaring Fork Valley Home | House for sale in Rifle CO | ||
| Newly remodeled home for sale | Homes for sale in Rifle CO | Western Colorado Homes | ||
| Rifle CO Homes for sale | Colorado Homes for Sale | Home in Town |




























