Property Description
Welcome to Your New Home at B8, Village at Fountain Greens
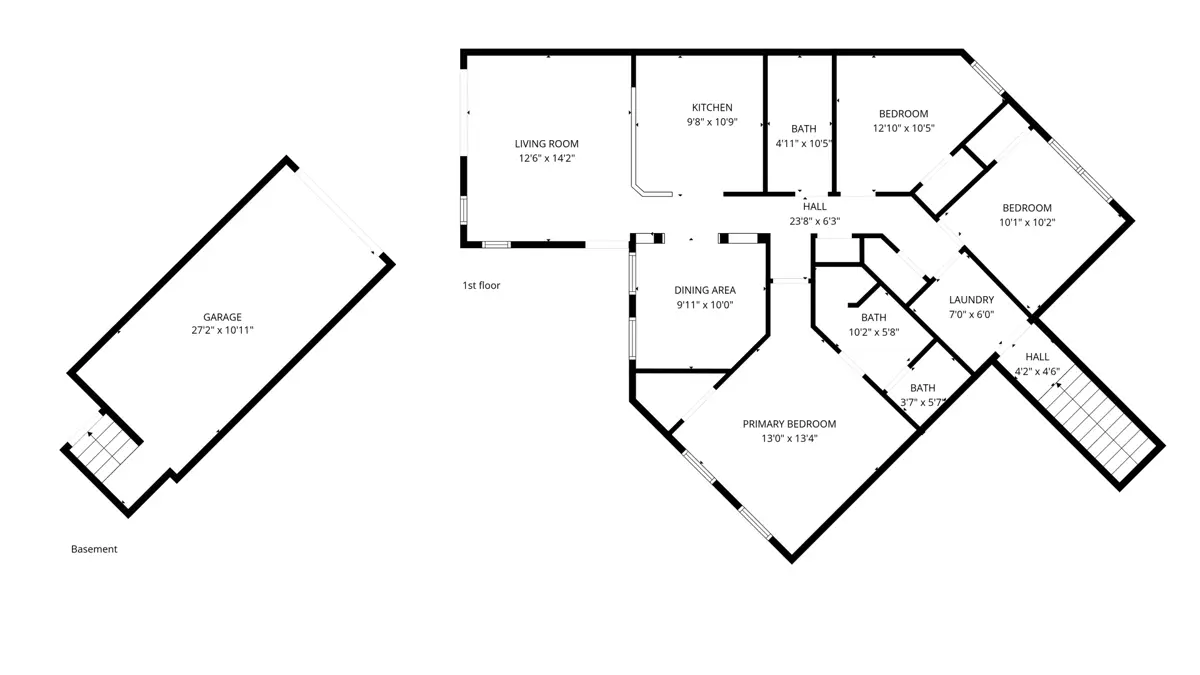
Welcome to B8 at Village at Fountain Greens, located in North Grand Junction. This condo offers three bedrooms, two baths, and an attached garage—an uncommon combination in this development. Inside, tall ceilings and ample windows keep the main living space bright and inviting. A sliding door opens to an east-facing, covered patio, while a separate dining room sits adjacent to the kitchen, creating an open and functional layout. The primary bedroom features its own bathroom and a spacious walk-in closet, while the second bathroom is conveniently positioned next to the kitchen for guest access. A large laundry room with extra cabinetry adds to the unit’s practicality by providing easy access to the attached garage.
Community Amenities and Lifestyle
Residents can enjoy the neighborhood amenities, including a walking path, a small pond, and a park. Monthly HOA dues cover lawn and tree care, water, sewer, and trash service, making maintenance hassle-free. St. Mary’s Hospital and Colorado Mesa University are approximately three miles away, and downtown Grand Junction is just five miles down the road. With new carpets and vinyl flooring, this unit is open and move-in ready.
Embrace the Outdoors in Grand Junction
Grand Junction boasts a vibrant outdoor lifestyle, perfect for nature enthusiasts and adventure seekers alike. The area is renowned for its stunning landscapes, featuring numerous parks and trails for hiking, biking, and exploring. The nearby Colorado River offers opportunities for fishing, kayaking, and rafting, while the scenic Redlands area is ideal for those who love to mountain bike or walk. With abundant sunshine and a pleasant climate, residents can enjoy outdoor activities year-round, making this location perfect for anyone looking to embrace an active and fulfilling lifestyle. Whether you’re seeking a long-term investment rental or a low-maintenance, lock-and-leave home base, this property is an ideal choice.
PROPERTY HIGHLIGHTS:
| Grand Junction Condo For Sale | Condo For Sale in North GJ | Caitlin Lucchesi 702-544-8216 | Investment & Income | |
| Retirement Living For Sale GJ | CO Rental Opportunity For Sale | Brooke Snyder 970-379-5433 | Retirement & Active Adult | |
| Colorado Investment Condo | Western Colorado Condo For Sal | Home in Town |





















