Property Description
Welcome home to this gorgeous custom brick
contemporary ranch sitting on 1.65 acres in one of the most
desirable locations in West Plains, Missouri. This spacious property
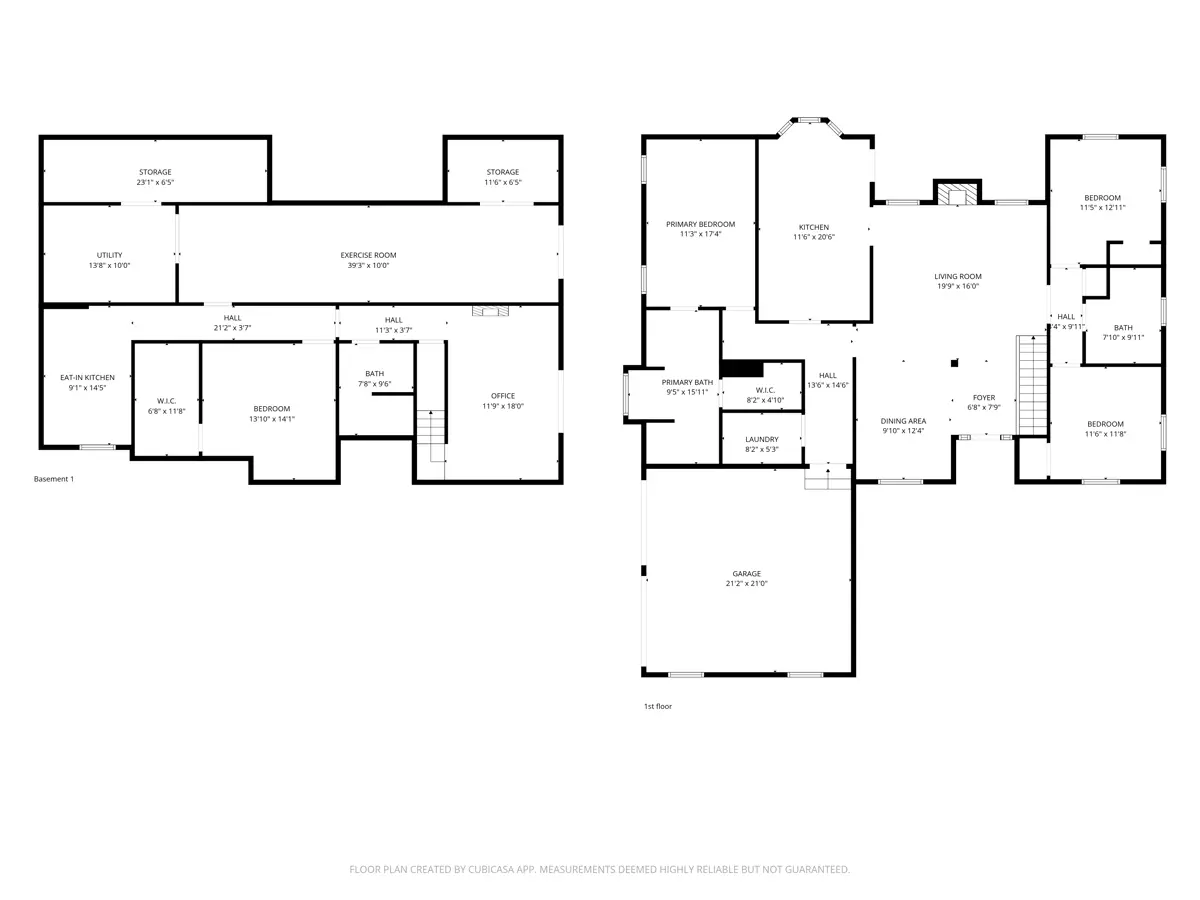
offers 4–5 bedrooms, 3 full baths, and two full living areas,
making it ideal for large families, multigenerational living, or anyone who
wants plenty of room to spread out.
Step inside and you’re greeted with vaulted ceilings,
crown molding, and an open, airy layout. The main level features a
split-floor bedroom design, giving the master suite plenty of privacy. The master
bedroom is oversized with a soaking tub, walk-in shower, and a large
walk-in closet—a peaceful retreat at the end of the day.
The kitchen offers a breakfast bar, breakfast nook,
and flows easily into both the living and formal dining areas. New
appliances make the home move-in ready and perfect for entertaining.
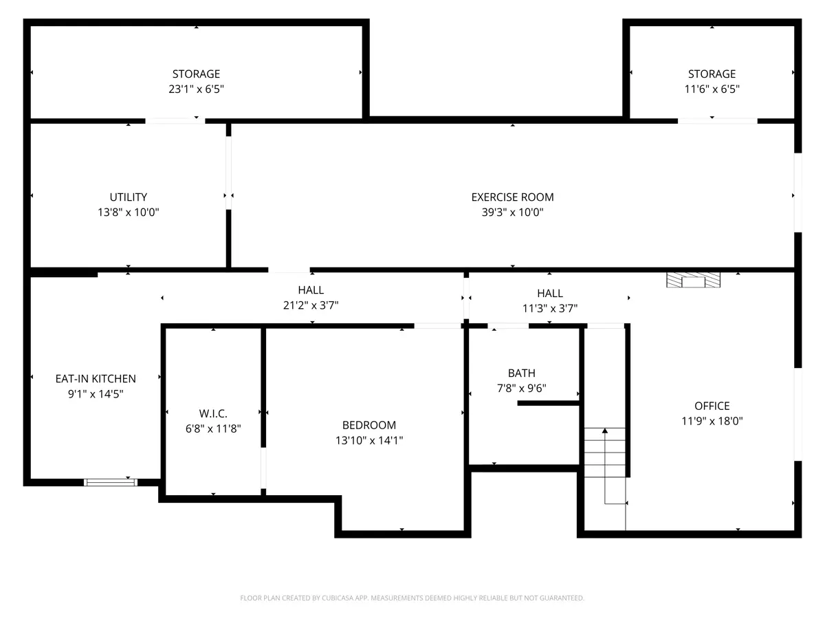
The walkout basement provides a full second living
quarters with 1–2 bedrooms, a full bath, a second kitchen,
washer/dryer hook-ups, and a large storage room. There’s also a
spacious area designed for your choice of a fifth bedroom, rec room, family
room, or home theater. This level is ideal for guests, extended family,
teenagers, or even potential rental income.
Outside, the property includes a 30×15 pony barn,
a lean-to, and a 17×20 shop—great for animals, projects,
equipment, or storage. A gated entrance, highway frontage, and a 2-car
attached garage add convenience and security.
Located in Howell County, this property is in the
highly regarded Fairview School District and just minutes from West
Plains amenities, including shopping, restaurants, Ozarks Healthcare
Hospital, major medical specialists, industrial employers, and Missouri
State University–West Plains. West Plains continues to grow with strong
regional industry, a thriving medical community, and endless outdoor recreation
throughout the Missouri Ozarks.
Whether you need space, comfort, or a home that adapts to
your lifestyle, this one checks all the boxes.
PROPERTY HIGHLIGHTS:
| Ozarks Family Home for Sale | Southern Missouri Home | Country Homes | ||
| West Plains, MO Family Home | Contemporary Family Home | Home in Town | ||
| South Central Missouri Ozarks | Home Near Town So Central MO |

































