Property Description
COLORADO ENERGY EFFICIENT HOME FOR SALE
This energy-efficient Western Colorado home is
located in a cooperative community just outside of Mesa, Colorado,
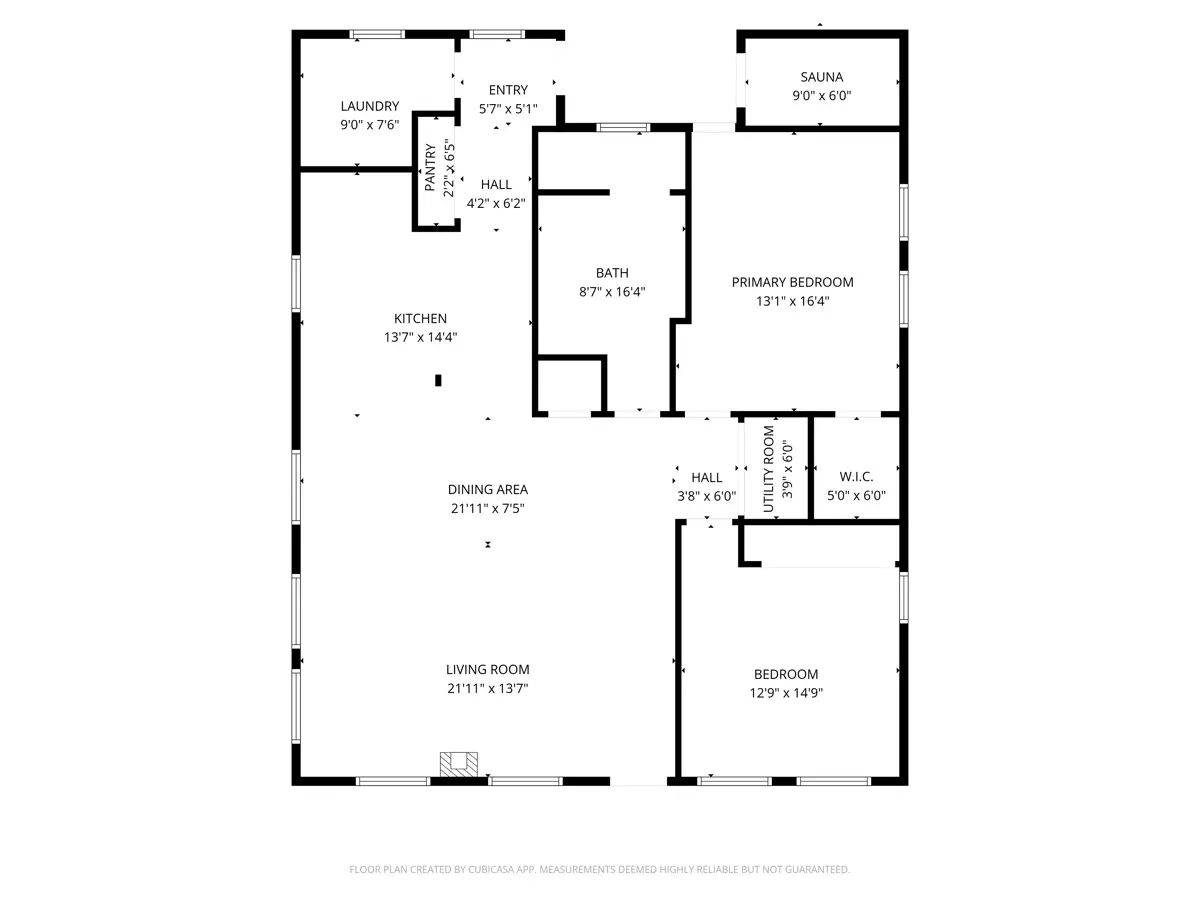
offering comfort, efficiency, and modern mountain living. Built in 2018, this 1,665
square foot, two-bedroom, one-bath home features a well-designed floor
plan with high-end finishes throughout. Covered patios and keyless
entries lead into an open-concept living, dining, and kitchen area
beneath vaulted ceilings, creating a warm and inviting atmosphere.
The home is constructed with 12-inch-thick walls insulated
with 3 inches of Rockwool. The roof system features 14-inch
TJI framing with 3 inches of foam insulation and 11 inches of
fiberglass, R-64 rating. A monolithic concrete slab floor includes 24-inch-deep
Styrofoam perimeter insulation and 2 inches of Styrofoam
beneath the slab, contributing to superior energy efficiency and year-round
comfort.
Radiant floor heat and a wood stove with an integrated
system that preheats water for a gas hybrid boiler efficiently chase away the
mountain chill. Triple-glazed insulated windows and fiberglass exterior doors
add to the home’s heating and cooling efficiency. All interior and
exterior doors are ADA compliant and three feet wide, providing enhanced
accessibility and ease of movement throughout the home. Wood doors, trim, and
beam accents bring warmth and ambiance to the attractive color scheme, while
stained concrete floors provide durability, beauty, and easy care.
The kitchen is designed for gathering and functionality,
featuring quartz and granite countertops, a large island with a duel fuel range
with a five-burner gas cooktop, electric double oven, range hood, and breakfast
bar seating. Attractive wood cabinets with soft-close doors and drawers’ pair
with stainless steel appliances including a three-door refrigerator and
dishwasher, making this space ideal for entertaining or everyday meals.
A dedicated laundry room includes washer and dryer, counter
space, cabinets, and a utility sink. The luxurious bathroom offers a spa-like
experience with a double-sink wood vanity with drawers, a walk-in tiled shower
with rain head, standard head, and handheld wand, a deep soaking tub with
handheld wand, and a commode.
The primary bedroom features a walk-in closet, private door
to the patio and enclosed sauna. The second bedroom includes a triple-door
closet for ample storage. Additional features include a maintenance room, hall
closets, ceiling fans, recessed lighting, elegant light fixtures, bamboo
charcoal water filtration system as well as a softener system, whole house surge
protection, 200-amp electrical service, dual 30-amp generator hookups, and an
evaporative cooler.
Outside, the attractive yard is designed for low-maintenance
living with xeriscaped landscaping, artificial turf, boardwalk pathways, and space
for a firepit. A detached oversized two-car garage offers radiant heated
concrete floors, automated insulated garage doors, a single entrance door with
a pet door, and an exterior concrete parking pad plus 100 amp service with a 220V connection.
Residents enjoy an estimated 13 acres of shared
community amenities, including a fenced garden and orchard, gazebo, RV
parking space, fire hydrant, and a designated trail leading to year-round Mesa
Creek. A VRBO home is available for discounted guest use, and FedEx and UPS
deliveries are provided daily within the community.
MOUNTAIN LIVING COMMUNITIES NEAR THIS COLORADO HOME FOR
SALE
Highway 65, also known as the historic Grand Mesa
Scenic Byway, serves as the main thoroughfare for locals and visitors
alike. The route winds through Plateau Canyon along Plateau Creek, offering
scenic views and frequent wildlife sightings including bighorn sheep, deer,
elk, and eagles. This property is located outside of Mesa, Colorado, with easy
access off Highway 65 into the well-planned Cool Creek Subdivision.
Situated at the base of Grand Mesa, the world’s
largest flattop mountain, the home sits on the corner of paved Cool Creek Drive
and Fox Cross Lane. Views of Powderhorn Ski Resort, Land’s End, Chalk Mountain,
and the Beehive formation are easily seen. The area offers ample room for
parking, community garden space, and designated RV parking.
The rural community of Mesa provides essential services
including a fire department, post office, restaurants, medical clinic,
community center, and more. Nearby Collbran, Colorado, accessible
via Highway 330, offers additional amenities such as schools, grocery stores,
medical and emergency services, banking, hardware stores, fitness facilities,
and summer rodeo events that celebrate the area’s western heritage. Grand
Junction is approximately one hour away via I-70, offering major shopping,
hospitals, colleges, and a regional airport.
COLORADO HOME FOR SALE CLOSE TO OUTDOOR RECREATION
Outdoor recreation surrounds this Western Colorado
mountain property in every direction. Highway 65 leads over Grand
Mesa, offering access to more than 300 lakes for fishing, boating, and camping,
along with thousands of miles of trails for hiking, biking, ATV riding,
horseback riding, cross-country skiing, snowmobiling, and hunting.
Powderhorn Ski Resort sits at the southern base of Grand
Mesa and is just a short drive from the property, offering winter skiing and
year-round activities. Highway 330 follows Plateau Creek through Plateau Valley
to Vega State Park, featuring boating, fishing at Vega Reservoir,
camping, hiking, and access to BLM and National Forest lands. Vega Lodge offers
cabin rentals and dining nearby.
Within an hour’s drive, explore the high-desert recreation
areas surrounding Grand Junction, including the Colorado National Monument,
scenic canyons, rivers, lakes, hiking and biking trails, and popular Jeep and
off-road routes. Wildlife sightings such as elk, deer, eagles, sandhill cranes,
and bighorn sheep are common throughout the region.
Live the Western Colorado lifestyle and
enjoy all that mountain living has to offer from this energy-efficient home
near Grand Mesa.
PROPERTY HIGHLIGHTS:
| Home For Sale Near Powderhorn | Home For Sale Plateau Valley | Amber Feller 970-986-0851 | Mountain Property | |
| Colorado Home For Sale | Mesa County Home For Sale | Julie Piland 970-985-0913 | Ski Property | |
| Home For Sale Western Slope | Home For Sale in CO near Ski | Home in Town |





























