Property Description
Updated 3-Bed Home in Cortez Near Hawkins Preserve | Move-In Ready
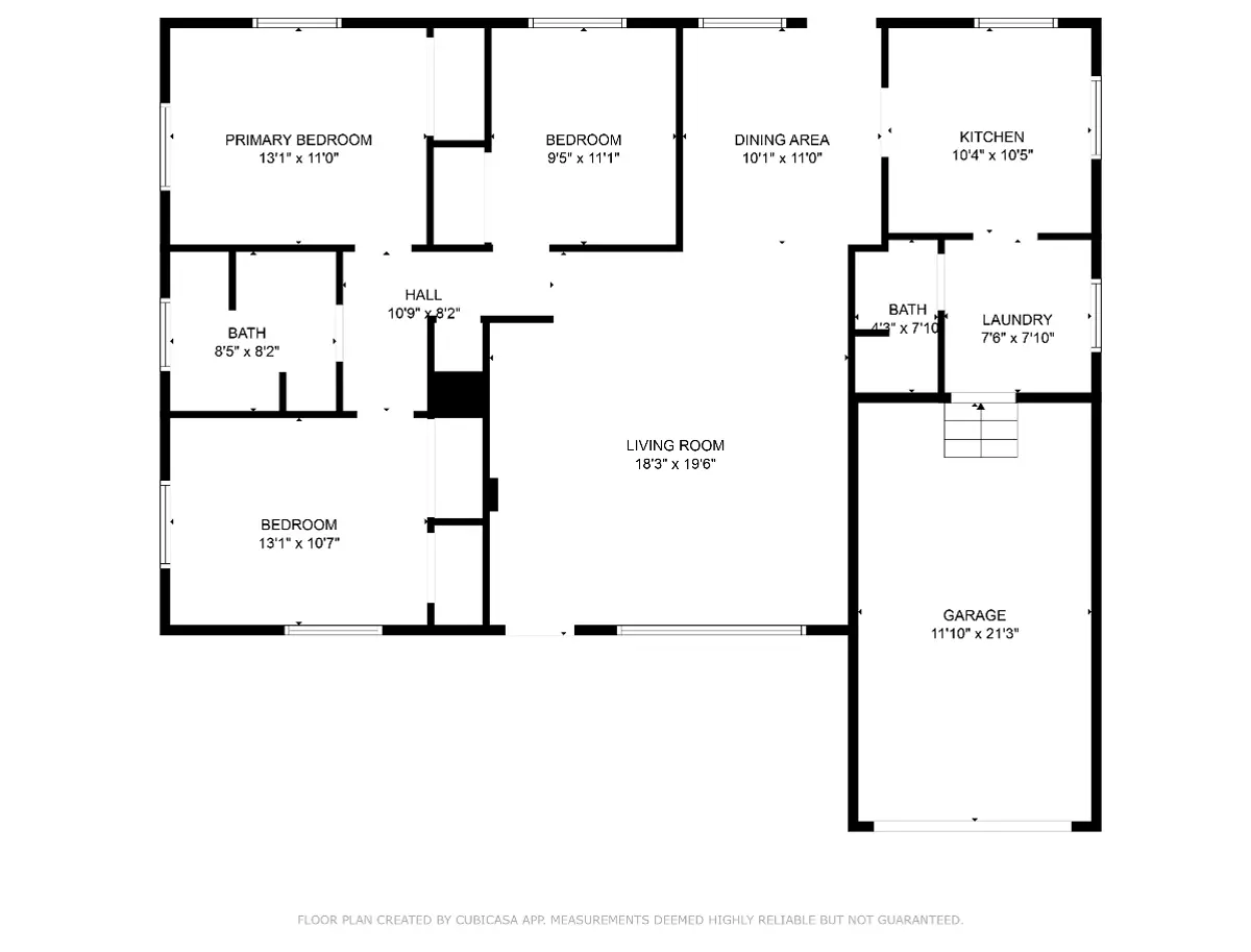
Loaded with upgrades and truly neat as a pin, this beautifully maintained 3 bedroom, 2 bath home in Cortez is located in one of the area’s most sought-after neighborhoods. Pride of ownership shines throughout, inside and out.
The home features a fully remodeled kitchen with all-new cabinets, granite countertops, stylish backsplash, and modern appliances—perfect for everyday living and entertaining. Recent upgrades also include a tankless water heater, modern furnace, and gorgeous refinished hardwood floors throughout.
The smart, practical floor plan makes daily living easy and comfortable. Step outside to a covered patio ideal for summer evenings, plus a private backyard with mature shade trees, grassy lawn, and privacy fencing—your own peaceful retreat.
Located just steps from Hawkins Preserve hiking and jogging trails and within close proximity to Mesa Elementary School, this home offers both convenience and an active outdoor lifestyle.
Move-in ready
Updated kitchen & systems
Prime Cortez location
Near trails, schools & parks
Homes like this in Cortez don’t last long—schedule your showing today.
PROPERTY HIGHLIGHTS:
| 3 bed 2 bath in town | new appliances | Privacy | ||
| popular Cortez neighborhood | hardwood | Home in Town | ||
| granite countertops | covered patio |




























