Property Description
807 E Van Buren Street, Mount Ayr, Iowa
Lots Available for New Construction
$189,000 PRICE INCLUDES the Lot & NEW HOME!
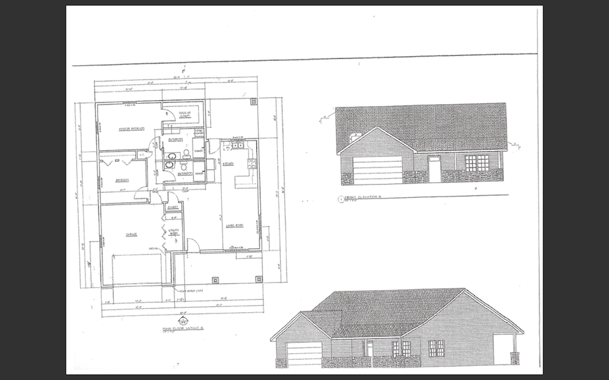
▪️2 Bed, 2 Bath Homes
▪️One-level Design
▪️Open Floor Plan
▪️Home Owners Association
If you are looking for a place to build in Mount Ayr, Iowa look no further! This empty lot is ready for new construction and these homes will be specially built for the perfect buyer!!
Van Buren Square is located north of Highway 2 at the corner of Van Buren and Garfield, with all the conveniences of the Home Owners Association while enjoying the luxuries of a private residence in these spacious two-bedroom, two-bathroom energy efficient properties!
Built with high quality standards, these homes have a one-level design eliminating stairs. By being part of the Van Buren Square Association, you will enjoy amenities like one-key access for your entire home, lawn care, snow removal, handicap-accessible rooms and doors, front and back porches, and 2″x6″ thick walls with energy-efficient windows and doors.
Inside these homes you will find an open floor plan to make for a cozy environment. Double hung windows make for ease of cleaning and great for natural light. Kitchen area is built with high quality cabinets with full extension roll trays and soft-close drawers, under mount sink for ease of cleaning and gorgeous quartz countertops.
Bedrooms are spacious with impressive closet space. Guest bathroom has a full tub including tub/shower combo and full extension drawers in the vanity. Master bedroom is large enough to accommodate king size beds and has a ceiling fan for your comfort along with a walk-in closet with plenty of storage and space for a dresser. Master bathroom has a walk-in shower, a 3-foot linen closet along with a washer/dryer hook-up.
These homes have both a front and back porch to enjoy the great outdoors. The attached garage is an oversized garage which is insulated and could be heated/cooled and has energy-efficient doors – this area provides for a great place to have a family dinner when additional room is needed when family and friends visit!
If you are looking for a place to build in Mount Ayr, Iowa look no further! This empty lot is ready for new construction and these homes will be specially built for the perfect buyer!! Potential lease is also available for the right leasee as well!! Contact us for a one-on-one appointment to review the model home and discuss the possibilities that await you at Van Buren Square!!
*Price may increase with increasing builiding costs.
PROPERTY HIGHLIGHTS:
| New Construction in Mount Ayr | HOA Homes For Sale in Iowa | Retirement Properties in Iowa | Home in Town | |
| Home For Sale in Southern IA | New Construction For Sale IA | Retirement Properties For Sale | ||
| New Home For Sale Mount Ayr IA | New Home For Sale Southern IA | Retirement & Active Adult |




















