Property Description
Lot for Sale in
Mount Ayr, IA
Discover the perfect opportunity to build your dream home in
Mount Ayr with this ready-to-build lot at Van Buren Square. These thoughtfully
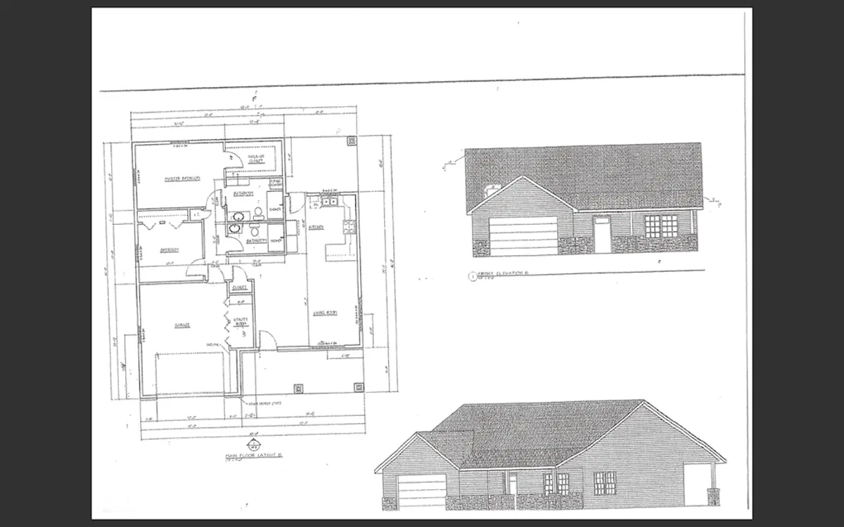
designed homes feature two bedrooms and two bathrooms in a convenient one-level
layout, ideal for eliminating stairs while maximizing comfort and
accessibility. Enjoy an open floor plan with abundant natural light,
high-quality finishes like quartz countertops, soft-close cabinets, and
under-mount sinks, as well as spacious bedrooms with ample storage. Both the
master and guest bathrooms are well-appointed, with walk-in showers, tub/shower
combos, and plenty of closet space to meet all your lifestyle needs.
New Construction
Opportunity in Ringgold County, IA
Van Buren Square offers the perfect blend of privacy and
community living, located just north of Highway 2 at Van Buren and Garfield. As
part of the Home Owners Association, residents benefit from lawn care, snow
removal, handicap-accessible features, front and back porches, oversized
insulated garages, and energy-efficient construction including 2″x6″
walls and modern windows and doors. Whether you’re building for yourself or
considering a potential lease, these homes are crafted to suit the ideal buyer.
Schedule a one-on-one appointment today to tour the model home and explore
everything Van Buren Square has to offer.
Bottom of Form
Top of Form
Bottom of Form
Bottom of Form
Additional Information
- Bedrooms: 2
- Bathrooms: 2
- Finished SqFt: 1,158 ±
- Acreage: 0.09 ± acres
- Address: 807 E Van Buren Mount Ayr, IA 50854
- Listing Agent: Rhonda Triggs | 712-621-1960
Lots Available for New Construction
$189,000 PRICE INCLUDES the Lot & NEW HOME!
Benefits
of Living in Mount Ayr, Iowa – Small Town Comfort and Convenience
Living in Mount Ayr,
Iowa provides the perfect balance of small-town charm, community spirit,
and convenient access to amenities. Residents enjoy a quiet, friendly
environment with low traffic, strong schools, and welcoming neighbors, making
it ideal for families, retirees, and professionals seeking a slower pace of
life. The area offers opportunities for outdoor recreation, including local
parks, walking trails, and nearby lakes for fishing and boating. With a range
of local shops, restaurants, and services, Mount Ayr combines the comfort and
safety of rural living with accessibility to modern conveniences, making it a
highly desirable location for homebuyers in southern Iowa.
PROPERTY HIGHLIGHTS:
| New Construction in Mount Ayr | HOA Homes For Sale in Iowa | Retirement Properties in Iowa | Home in Town | |
| Home For Sale in Southern IA | New Construction For Sale IA | Retirement Properties For Sale | ||
| New Home For Sale Mount Ayr IA | New Home For Sale Southern IA | Retirement & Active Adult |






















