Description
Experience the beauty of the Ozarks with this stunning new
3-bedroom, 2-bath home set on picturesque acreage just off Highway 5 in Wasola,
Missouri. Offering flexibility to fit your lifestyle and budget, this property
is available in multiple configurations — the new home can be purchased on 34
acres, on 1 acre, or with the additional rental home and full 35 acres for
those seeking extra space and income potential.
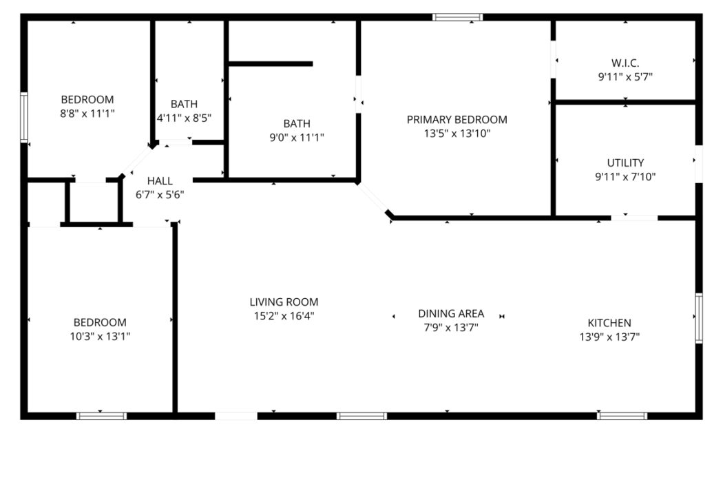
This newly constructed home blends modern design with
comfortable country living. Step inside to an inviting open-concept layout that
connects the kitchen, dining, and living areas — perfect for entertaining or
family gatherings. The primary suite features a beautiful custom walk-in
shower, adding a touch of luxury to your everyday routine.
If you choose the full 35-acre package, the property also
includes a 836 sq ft, 2 bed, 1 bath rental home currently leased, providing a
great opportunity for passive income or a guest house for family and friends.
The land itself is a versatile mix of approximately 50% pasture and 50% mature
timber, fully fenced and ready for cattle. A tranquil pond adds charm and
functionality, ideal for livestock or simply enjoying peaceful countryside
views.
Whether you’re seeking a manageable homestead on 1 acre, a
hobby farm on 34 acres, or a full working property with an income-producing
rental, this listing offers something for everyone. Conveniently located just
off Hwy 5, you’ll have easy access to local towns, outdoor recreation, and the
scenic rivers and lakes that make the Ozarks so special.
Don’t miss your chance to own this exceptional property —
where modern comfort meets Missouri countryside living.
PROPERTY FEATURES:
New build 3BR/2BA home
Buy 1, 34, or 35 acres
Income-producing rental
Custom walk-in shower
Fenced & cattle-ready
50% pasture, 50% timber
Pond & Ozark scenery
Just off Hwy 5, Wasola MO
Country Homes
Farms for Sale
Home in Town
Investment & Income
Land for Sale



























