Property Description
Welcome to your private Ozarks retreat in Gainesville,
Missouri, ideally located on a well-maintained county road just minutes from a
state highway for easy access while still enjoying peaceful country living.
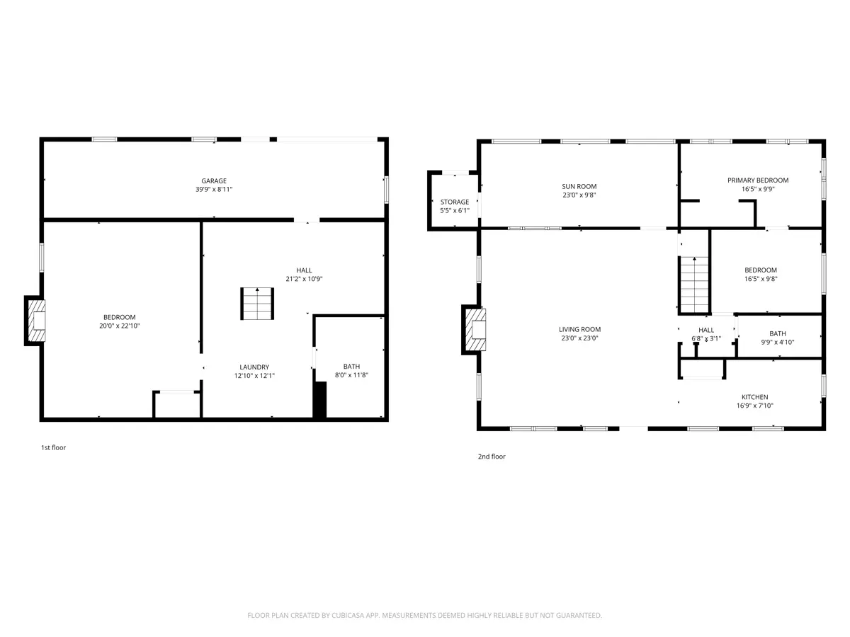
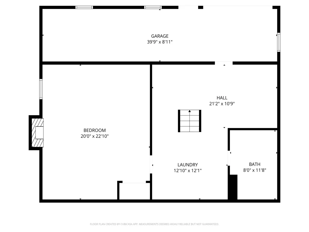
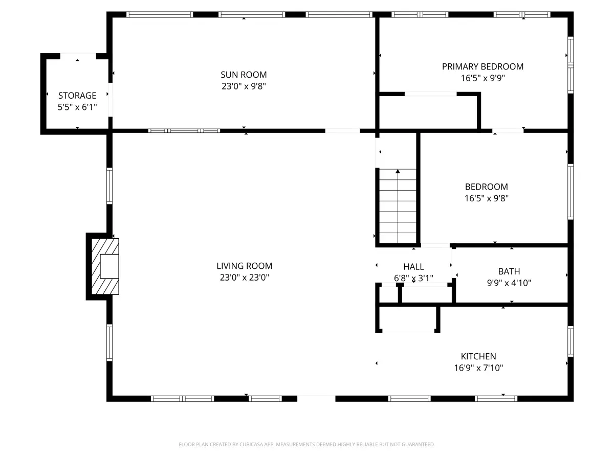
This inviting 3 bedroom, 2 bath home sits on 5.5 beautiful acres in the heart
of the Missouri Ozarks, offering both comfort and functionality.
The home is equipped with a whole house gas generator for
peace of mind, a whole house water-filtration system, two wood-burning
fireplaces for cozy evenings, and two minisplits for efficient year-round
climate control. Outdoors, enjoy a fenced yard with an electric gate, covered
horseshoe pits for entertaining, and plenty of space to relax or play.
A standout feature is the impressive 30×40 metal shop, fully
powered with a concrete floor, insulation, heat, a bathroom, and its own septic
system—ideal for a business, workshop, or serious hobbyist. Multiple additional
outbuildings provide even more storage and versatility. A 30-gallon gas pump
(used for lawn equipment) adds extra convenience for maintaining the property.
Whether you’re seeking a full-time residence, hobby farm
potential, or a peaceful Ozarks getaway, this property offers a rare blend of
privacy, accessibility, and exceptional amenities.
PROPERTY HIGHLIGHTS:
| 5.5 Acres Ozark Setting | 30×40 Heated Shop | 2 Fireplaces + Minisplits | Home in Town | Land for Sale |
| 3 Bed / 2 Bath Home | Shop w/ Bath & Septic | Near Hwy, County Road | Hunting | |
| Whole House Generator | Fenced Yard, Electric Gate | Country Homes | Investment & Income |

















































