Property Description
Welcome home to modern country living in this beautiful
newly built 3-bedroom, 2-bath home perfectly situated on a 2.68 acres just off
Highway 5 in peaceful Wasola, Missouri. Designed with both comfort and
functionality in mind, this home blends contemporary finishes with the relaxed
charm of Ozark living.
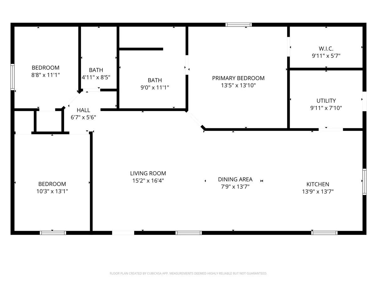
Step inside to an inviting open-concept floor plan that
connects the kitchen, dining, and living spaces — perfect for entertaining or
gathering with family. The spacious kitchen features plenty of counter space
and cabinetry, while the living area provides a bright, welcoming atmosphere.
The primary suite offers a private retreat with a custom walk-in shower, adding
a touch of luxury to your everyday routine.
With one acre of open land, there’s ample room to enjoy the
outdoors without the upkeep of a large property. Create your own garden, add a
workshop, or simply relax and enjoy the views of the surrounding countryside.
The home’s convenient location just off Highway 5 means easy access to nearby
small towns, schools, and outdoor recreation areas — including the lakes,
rivers, and trails that make the Ozarks an outdoor lover’s paradise.
Whether you’re a first-time buyer, downsizing, or looking
for a peaceful getaway, this Wasola new build offers modern comfort, rural
charm, and space to make it your own.
The new home can be purchased on 34 acres, on 2.68 acres, or
with the additional rental home and full 35 acres for those seeking extra space
and income potential.
Enjoy the ease of a brand-new home with all the benefits of
country life — move-in ready and waiting for you!
PROPERTY HIGHLIGHTS:
| New construction home | Open-concept design | Peaceful Ozark views | Investment & Income | |
| Custom walk-in shower | Move-in ready home | Country Homes | ||
| 1-acre country setting | Near Hwy 5, Wasola MO | Home in Town |



























