Property Description
Commercial Property
With Turn-Key Office Operations in Western Colorado
Commercial
property perfect for a growing business seeking a move-in-ready office in a
mountain valley community. Upscaled, professional, and efficient newer office
building located on the Western Slope of Colorado near the historic town of
Collbran. This 1,440 sq ft building is classy and streamlined with a modern
flair and the charm of a western lifestyle.
Located on busy
Highway 330, this frontage property offers building and signage visibility. The
gabled roof adds distinguished curbside appeal, highlighted with wood and rock
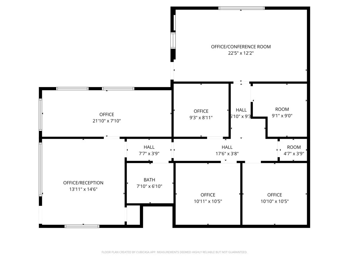
siding and a covered entry. Meet and greet customers and visitors in the spacious
reception area. Six offices create a private and quiet atmosphere to conduct
business operations, while the impressive conference room provides space to
accommodate any function.
A break room with
counter and refrigerator offers downtime and a place to relax. Don’t worry
about after-hour deliveries, with a secure drop box providing access to the
inside of the building. Warm wood accents complement the color scheme under
recessed lighting, with carpeted flooring throughout. Elegant décor enhances
the powder room.
State-of-the-art
office furniture and accessories are included, making this building a
move-in-ready opportunity to meet your business needs. Gas heat and central air
keep the rooms comfortable and easy to control with the LG Invertor system in
place. Extra items can be stored in the outside cement block storage unit,
divided into two rooms with concrete floors, shelving, and metal doors. The
property offers lots of room for parking, a frost-free hydrant, and a well.
Daily FedEx, UPS, and courier deliveries are available. Located minutes from
the I-70 corridor traveling through the center of the state, this property
invites you to bring your business to the mountain valley and enjoy prosperity
with a small-town lifestyle.
Commercial Property Near
Collbran, Colorado – Where Business Meets Lifestyle
This property sits
approximately three miles east of Collbran. This historic western town is
considered the hub of the wheel, leading to recreation, community activities,
and business operations. Tourists travel Highways 65 and 330 during all seasons
for activities including fishing, hunting, hiking, skiing, jeeping,
snowmobiling, boating, camping, rodeos, and biking.
From the I-70
corridor, these highways lead to Grand Mesa, known as the largest flat-top
mountain in the world, Vega State Park, Powderhorn Ski Resort, hunting
districts, and extensive public land access. The surrounding mountain ranges
offer recreational features for all interests, making this region ideal for
outdoor enthusiasts.
Colorado Commercial
Property Near Year-Round Outdoor Recreation
Grand Mesa
features more than 300 lakes offering fishing and boating, along with
campgrounds, lodges, hunting districts, hiking trails, cross-country skiing,
and snowmobiling. The slopes of Powderhorn Ski Resort are open year-round for
winter and summer activities. Vega State Park is known for mountain water
fishing, boating, pristine camping sites, hiking trails, and year-round
recreation, with Vega Lodge offering friendly service, dining, and cabin
rentals.
Thousands of acres
of public land covered in forests of aspen and pine trees are utilized for
four-wheeling, hunting, hiking, and more. Rodeos are conducted throughout the
summer, ranging from professional competitions to junior rodeos and gymkhanas.
Wildlife viewing is available in every direction, offering serenity and natural
beauty throughout the area.
Western Slope Colorado
Business Location Near Grand Junction & I-70
The Western Slope
of Colorado offers year-round recreation for outdoor enthusiasts. Within an
hour’s drive from Collbran is Grand Junction, the largest town on the Western
Slope, surrounded by high desert adventure. Travel Rim Rock Drive through the
nearby Colorado National Monument and enjoy views of rock formations, canyons,
plant life, birds, and wildlife along scenic drives and hiking trails.
Visitor centers
provide information on picnic areas, campgrounds, hiking trails, youth learning
opportunities, and the history of this valley’s natural beauty. Mount Garfield
is a well-known landmark for hiking and wildlife viewing, including wild horses.
Enjoy river rafting or tube floating along the Colorado River, or fish from the
many accessible riverbanks. The surrounding high desert also offers off-road,
ATV, hiking, biking, wheeling challenges, and horseback riding trails.
PROPERTY HIGHLIGHTS:
| Commercial Building/Office | Amber Rainey 970-986-0851 | Collbran Colorado Commercial | Investment & Income | |
| Commercial land and Building | Investment Property For Sale | Julie Piland 970-985-0913 | ||
| 15739 Pearl Ave Collbran, CO | Western Colorado Commercial | Commercial Property |

























