Property Description
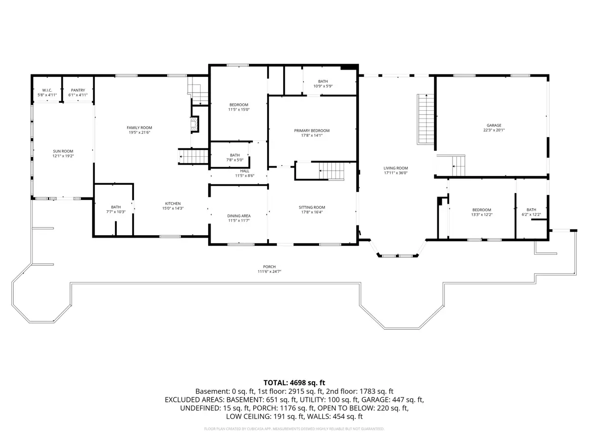
This 6-bedroom, 5-bathroom residence in the heart of historic Rogersville,
TN, offers an incredible 5,349 total square feet of versatile living space.
Combining classic Southern charm with expansive modern proportions, this home
is designed for both grand-scale entertaining and comfortable
multi-generational living. The experience begins on the massive 1,176 sq ft front porch,
providing a quintessential space for relaxation. Inside, the 2,915 sq ft main
level features a thoughtful layout with 3 bedrooms and 4 bathrooms. The primary suite serves
as a true sanctuary, boasting a private sitting room for quiet retreats.
High-end finishes including hardwood, tile, and plush carpeting flow
throughout, leading from the spacious family room into a bright, inviting
sunroom. The second floor adds another 1,783 sq ft of living area, containing 3 additional bedrooms, a full
bath, and 2 separate sitting
rooms. This level is ideal for a dedicated teen wing, home offices, or
hobby spaces. Storage is never an issue with generous walk-in closets
throughout the home and an additional 651 sq ft in the basement. Located just
moments away from the unique shops, dining, and rich history of downtown
Rogersville, this property offers the perfect balance of private luxury and
community convenience.
PROPERTY HIGHLIGHTS:
| 6 Bedrooms | 1 Acre | LOCATION, LOCATION, LOCATION | Home in Town | Retirement & Active Adult |
| 5 Bathrooms | Barn, Equip. Shed &Outbuilding | Convenient to all amenities | Investment & Income | |
| Over 5000 sq ft living space | Basement | Bed & Breakfast / Lodges | Luxury |





















































