Property Description
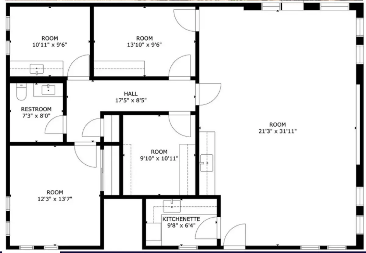
Located in the heart of Lubbock’s highly sought-after Medical District, 2204 Ithaca Avenue offers a recently renovated, move-in-ready medical office building ideal for a wide range of healthcare users. This 1,632 SF property provides flexible space well suited for medical practices, dental offices, physical therapy, counseling, or specialty clinics.
The building features a convenient and accessible location for both patients and staff, with close proximity to all major hospitals and medical facilities. Recent renovations minimize immediate capital needs, allowing an owner or investor to step into a turnkey opportunity with low ongoing maintenance and ownership costs.
From an investment standpoint, the property boasts a strong 7.5% cap rate, making it an attractive option for investors seeking stable returns in a proven medical corridor. Whether owner-occupied or leased, this property combines location, functionality, and financial performance in one of Lubbock’s most in-demand submarkets.
PROPERTY HIGHLIGHTS:
| Newly renovated . | ||||
| Commercial Property | ||||
| Investment & Income |












