Property Description
Discover this Income Producing Barndominium in Weatherford, Texas
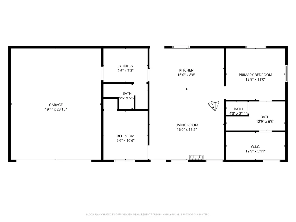
Discover peaceful country living with income potential at 4204 Greenwood Road, Weatherford, TX. This charming and modern 2-bedroom, 2-bath barndominium sits on approximately 1 acre and offers the perfect blend of comfort, functionality, and investment opportunity. Built with thoughtful design and high-quality materials, it features a bright open-concept layout, soaring ceilings, and a spacious loft area that adds an additional 300+ sqft of versatility for guests, office space, or a cozy retreat.
Currently operating as an active short-term rental, this property is fully income-producing and move-in ready. The home’s clean modern finishes, large garage, and beautiful rural setting make it ideal for investors, full-time residents, or those looking for a weekend getaway near Weatherford, Texas. Enjoy the tranquility of country life while staying close to shopping, dining, and all that Parker County has to offer.
Whether you’re seeking a turnkey investment, your next home, or a Texas retreat, 4204 Greenwood Road offers the best of both worlds — modern comfort and proven income potential in one of the area’s most desirable rural communities.
A Perfect Blend of Small Town Charm and Residential Comfort
This property boasts a cozy home with 2 bedrooms and 2 bathrooms, providing a comfortable living space on an acre in Weatherford, TX.
Livestock allowed! No HOA’s
An Investment Opportunity Not to Be Missed
Invest in your future with this property that not only offers a peaceful retreat but also has the potential for generating income. Whether you’re looking for a personal sanctuary or a smart investment, this property has you covered.
PROPERTY HIGHLIGHTS:
| Income Producing | Country Living close to Town | Equine Property | ||
| 1 acre Lot | Built in 2021 | Home in Town | ||
| Barndominium | Fenced for livestock | Investment & Income |































