Property Description
Welcome to the Peninsula Azuero, Panama’s most up-and-coming tourist destination. In recent years, Playa Venao has seen remarkable development with a new school, supermarket, gas station, and numerous projects enhancing the area. Much more growth is on the horizon, making this the perfect time to invest in Panama’s premier eco-friendly surf destination.
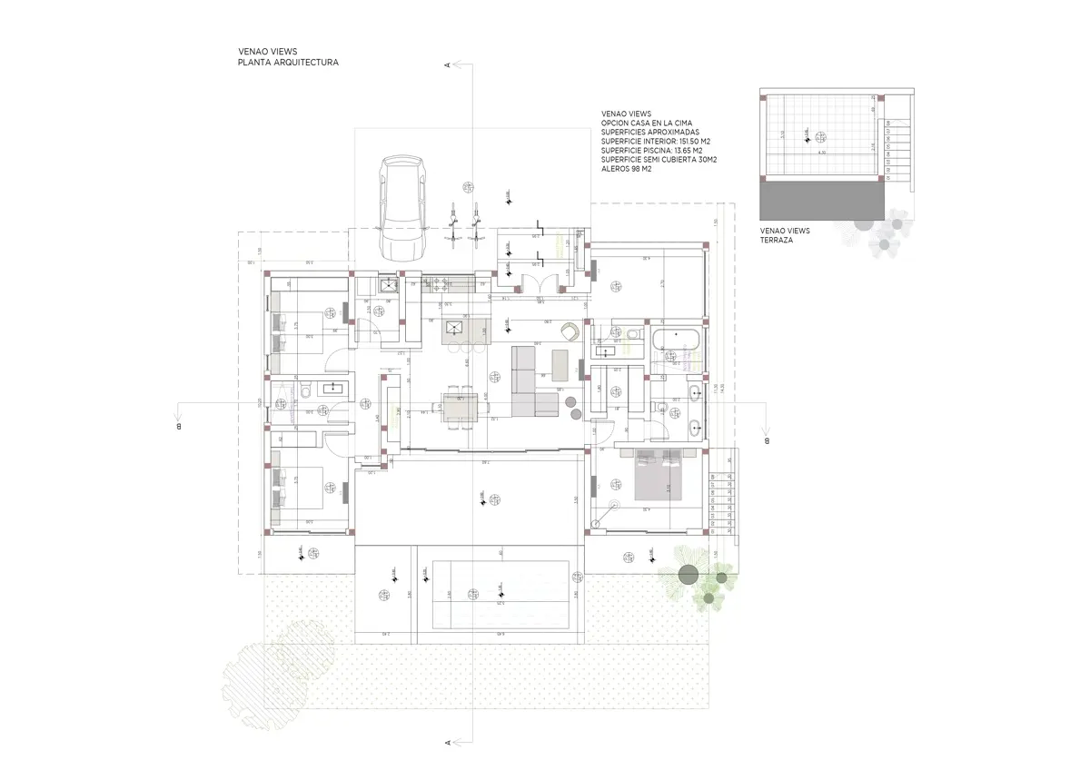
Just 3 minutes from Playa Venao beach, this spectacular 2,900m² (31,215 ft²) plot offers breathtaking views of the Pacific Ocean. The property features one of the most modern and functional builds in Venao: a thoughtfully designed 3-bedroom, 3-bathroom home with spacious entertaining areas and seamless indoor/outdoor transitions that create an unparalleled lifestyle experience.
Constructed by established developers known for excellence throughout Venao’s growth, this property represents an outstanding investment opportunity in Panama’s most sought-after region. Don’t miss your chance to secure your future with this comfortable, modern home in paradise.
___________________________________________
Bienvenido a la Península de Azuero, el destino turístico con mayor crecimiento en Panamá. En los últimos años, Playa Venao ha experimentado un desarrollo notable con una nueva escuela, supermercado, estación de gasolina y numerosos proyectos que han enriquecido la zona. El futuro promete aún más crecimiento, convirtiendo este momento en perfecto para invertir en el principal destino ecológico y de surf de Panamá.
A solo 3 minutos de la playa de Venao, esta espectacular parcela de 2,900m² (31,215 ft²) ofrece impresionantes vistas al Océano Pacífico. La propiedad presenta una de las construcciones más modernas y funcionales de Venao: una casa de 3 dormitorios y 3 baños diseñada meticulosamente, con amplios espacios para entretenimiento y transiciones perfectas entre interiores y exteriores que crean una experiencia de vida incomparable.
Construida por desarrolladores establecidos y reconocidos por su excelencia durante el crecimiento de Venao, esta propiedad representa una oportunidad de inversión excepcional en la región más codiciada de Panamá. No pierda la oportunidad de asegurar su futuro con esta cómoda y moderna casa en el paraíso.
PROPERTY HIGHLIGHTS:
| ocean view property | 3 minutes from playa venao | premium location in azuero | Country Homes | Luxury |
| 3 bedrooms, 3 bathrooms | modern architectural design | built by established developer | Investment & Income | |
| 2,900m² (31,215 ft²) land | indoor/outdoor living spaces | Coastal Property | Land for Sale |

































