Property Description
This park model is set up on site #14 in the Main
Campground, Oak Lake Campground, Kerrick, MN. This park model comes with a
deck, hard roof gazebo on the deck, 4 sheds and water softener. The yearly rent
for this site is paid for until September 2026. The seasonal site rent is
$3,450.00 plus electric. You will want to extend your vacation with this 39FLSK
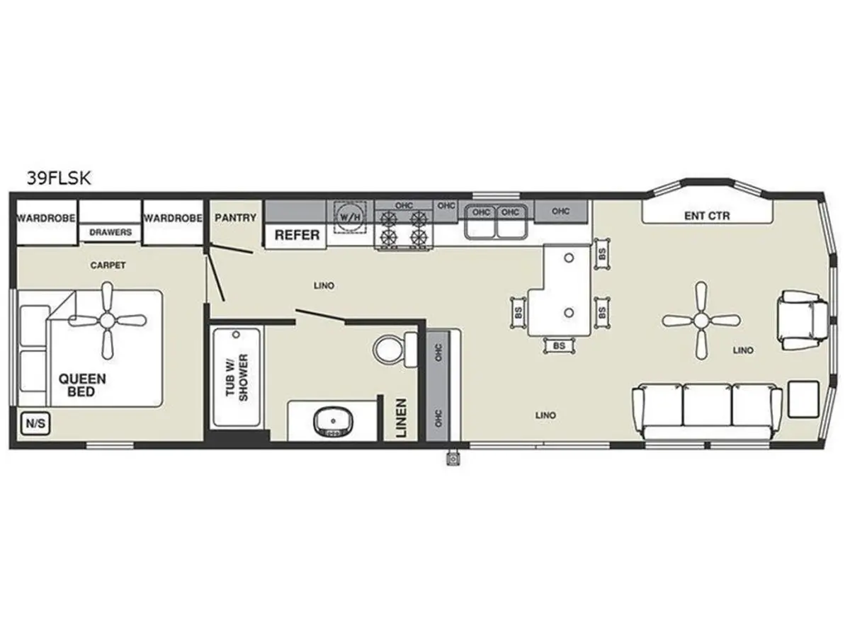
park model! You can entertain a few guests in the front living area and if one
or two want to stay over then you can easily convert the hide-a-bed sofa into a
sleeping space for them. The kitchen features everything you will need to whip
up your best meals and the L-shaped counter with bar stools allows your guests
to socialize with you while you prepare it, too. You can enjoy a nice, hot
shower each morning in the full bathroom with a power exhaust fan to eliminate
any steam. The rear private bedroom has a Serta queen mattress for you to enjoy
a good night’s rest and two wardrobes for you to keep your clothes neat and
tidy, too! Every one of these Quailridge park models by Forest River is
designed to exceed your expectations and give you a long lasting value with
exterior features like the asphalt architectural upgraded roofing shingles
backed by a 30-year warranty and the R-11 fiberglass insulation with vapor
barriers, plus the vinyl siding is backed with a lifetime warranty. Throughout
the inside, you will find it to be aesthetically pleasing and fully functional
thanks to the hardwood valances, faux wood mini blinds, and the pull-out trash
can where available. You will also love the coordinated storage chairs and
space saver microwave. With 6 interior fabric, countertop, and cabinet options
to choose from, you can create the perfect Quailridge park model!
Visit https://www.oaklakecampground.com/ to learn more about this
great location.
For more information, contact
Tanner Mikrot, United Country Real Estate
For
more information on this park model for sale in Kerrick, Minnesota, contact
Tanner Mikrot with United Country Real Estate: Minnesota Properties at
218-460-6205 or via email.
Find Tanner on Facebook!
What
is My Property Worth?
Curious
what your home, cabin, waterfront property, or land is worth? Click HERE to
find out!
Twin
Cities MLS# 7013200 | Pine County, Minnesota
PROPERTY HIGHLIGHTS:
| Park Model For Sale | Pine County, MN | 1 Bed/ 1 Bath Home For Sale | Resort Property | |
| Home on Rented Lot For Sale | Kerrick, Minnesota | Lakefront Property | RV Parks & Mobile Homes | |
| Lot in Oak Lake Campground | Deck, Gazebo, Sheds | Recreational Property |







