Property Description
LAKESIDE
COLORADO CABIN FOR SALE AT VEGA STATE PARK
Escape to
Western Colorado mountain living with this charming, fully furnished cabin
retreat tucked on a .39-acre lot in scenic Vega State Park near the historic
western town of Collbran. Set atop Grand Mesa—the largest flattop mountain in
the world—this property delivers the ultimate combination of privacy, views,
and year-round recreation, making it an ideal second home, vacation getaway, or
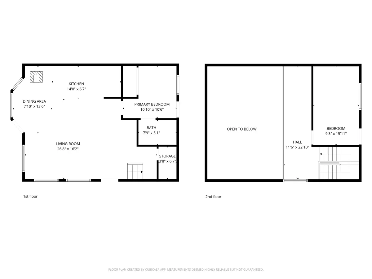
potential short-term rental investment. Step inside under high-rise ceilings
filled with bright natural light and take in sweeping views of valleys, alpine
landscape, and the Vega Reservoir. The 1176 sq ft open-concept design flows
effortlessly from the living area into a farmhouse-style kitchen featuring wood
shaker cabinetry, island cooktop with bar seating, refrigerator, microwave, and
a built-in desk workspace—perfect for extended stays or remote work in the
mountains. The adjoining main-level bedroom offers a private entrance and
custom closet shelving, paired with a full bath with vanity storage, while
under-stair storage and a maintenance room add practical convenience for
year-round use. A beautifully crafted wood staircase with scrolled railing
leads to the upper loft, where a cozy sitting area overlooks the main living
space and connects to a nonconforming bedroom with walk-out balcony. Thoughtful
interior touches and furnishings create a warm, inviting atmosphere, with
comfortable seating, natural textures, and mountain-inspired accents that make
this home truly turnkey—ready to move in and immediately enjoy everything
Colorado mountain living has to offer. From quiet mornings overlooking the views
to evenings by the pellet stove after a day of adventure, every detail invites
relaxation and connection to the outdoors. Modern comforts include ceiling
fans, recessed lighting, tile flooring, natural color palettes, landline
availability, cistern water system, septic, and outdoor lighting with electric —designed
for ease in a mountain living setting.
Just
minutes away, Vega Lodge offers dining, cabin rentals, and a welcoming
gathering place with scenic views. With direct access to hiking trails, public
lands, and nearby hunting districts, plus opportunities for fishing, boating,
snowmobiling, and wildlife viewing, this is a true recreational property in one
of Western Colorado’s most desirable high-country locations. Whether you’re
seeking a peaceful mountain escape, a basecamp for outdoor adventure, or an
investment in Colorado mountain real estate, this top-of-the-world cabin
retreat delivers unmatched lifestyle, location, and value.
COLORADO
OUTDOOR RECREATION
Within a
few minutes along tree-lined lanes, access Vega State Park. Enjoy thousands
of acres of year-round recreational activities. Endless camping sites,
hiking trails and mountain ranges surround Vega Reservoir offering fishing and
boating, or a chance to view the beauty of the rippling clear mountain waters
behind the Vega dam. Nearby Vega Lodge offers cabin rentals, a restaurant, and
much more. Highway 330 follows Plateau Creek and winds through Plateau Valley
among ranches and residential homes to Highway 65 known as the scenic byway of
Grand Mesa – the largest flat top mountain in the world with over 300 lakes for
fishing, boating, camping, lodges, and thousands of trails for hiking, ATV,
biking, horseback riding, cross country skiing, snowmobiling, and hunting
districts. Photo opportunities abound for the amateur or professional
photographer. Powderhorn Ski Resort sits at the base of Grand Mesa with ski
slopes for all ages and skills with winter and summer activities. Within an
hour’s drive explore the high desert recreation areas around Grand Junction
known for the Colorado National Monument, canyons, dinosaur finds, hiking and
biking trails, valleys, rivers, and lakes for fishing and boating to name a few
of the recreation attractions. More recreation in every direction from the I70
corridor.
MOUNTAIN LIVING IN PLATEAU VALLEY AREA COLORADO
Collbran, CO is the hub of the wheel leading to all
aspects of recreation and community activities and business. –fishing,
hunting, hiking, skiing, snowmobiling, boating, camping, rodeos, biking– and
leads to Grand Mesa, Vega Reservoir, and BLM and Forest access. The community
is surrounded by homesteaded ranches, businesses in historical buildings,
restaurants, churches, parks, schools, a bank, police and fire department,
medical clinic, and neighbors against the backdrop of towering mountains. Pride
and support are the heartbeat in this area. Community activities are celebrated
throughout the year and include Plateau Valley Heritage Days, Cowboy Christmas,
school events, many rodeos, and an occasional cattle drive through town. I70
and Grand Junction are a short drive away for major shopping, services,
hospitals, regional airport, colleges, and more with high desert recreation.
Enjoy the historic feel of Collbran and experience shopping, services, and
restaurants with friendly residents and owners. Take a stroll in the evening
under the Colorado stars and vintage solar lighting along the small western
town streets. Drive in any direction and enjoy all the outdoor activities,
sightseeing views, and recreation the Western Slope of Colorado has to offer.
COLORADO
WESTERN SLOPE AREA INFORMATION GMU 421
The
Western Slope of Colorado is known for its mild climate and has year round recreation
for all outdoor enthusiasts. Travel the Rim Rock Drive of the nearby Colorado
National monument. Enjoy the magnificent views of rock formations, canyons,
plants, birds and wildlife along the drive or hiking trails. Photo
opportunities for the photographer, and don’t forget the selfies. Stop at the
visitor center for information on picnic and campground areas, hiking trails,
youth learning opportunities, and the history of this valley’s treasure of
beauty. Mount Garfield is one of the well-known landmarks for hiking and
viewing wildlife, including wild horses. Enjoy river rafting or tube floating
along the river or fish along the many easy accesses to the riverbanks of the
Colorado River. The surrounding high desert offers off road, ATV, hiking,
biking, and horseback riding trails with valleys of dinosaur finds and
diggings, river rafting, boating, and fishing. Find many challenges with the
popular wheeling on the Jeep trails in the area. Within an hour’s drive along
I70 and Highway 65, also known as the scenic byway of Grand Mesa, sits the
largest flat top mountain in the world with over 300 lakes for fishing,
boating, camping, lodges, and thousands of trails for hiking, ATV, biking,
horseback riding, cross country skiing, snowmobiling, and game management units.
Photo opportunities abound for the amateur or professional photographer. A
visitor center on top of the Grand Mesa has information and a gift shop.
Powderhorn Ski Resort sits at the base of Grand Mesa with ski slopes for all
ages and skills with winter and summer activities.
PROPERTY HIGHLIGHTS:
| Recreational Property For Sale | Home Near Lake For Sale | Julie Piland 970-985-0913 | Mountain Property | |
| Colorado Mountain Property | Western Colorado Property | Amber Feller 970-986-0851 | Recreational Property | |
| Mesa County Mountain Property | Grand Mesa Home For Sale CO | Lakefront Property |



























