Description
Experience breathtaking panoramic views and just the right amount of seclusion while staying conveniently close to town. Nestled just off Pleasant Valley Rd, this 4.86-acre (m/l) property offers a level to gently sloping landscape, providing ample space for gardening, outdoor activities, or simply enjoying the peace and quiet.
On the northwest side of the property, you’ll find a shop/barn with electricity and an RV carport with a concrete pad, adding both functionality and convenience.
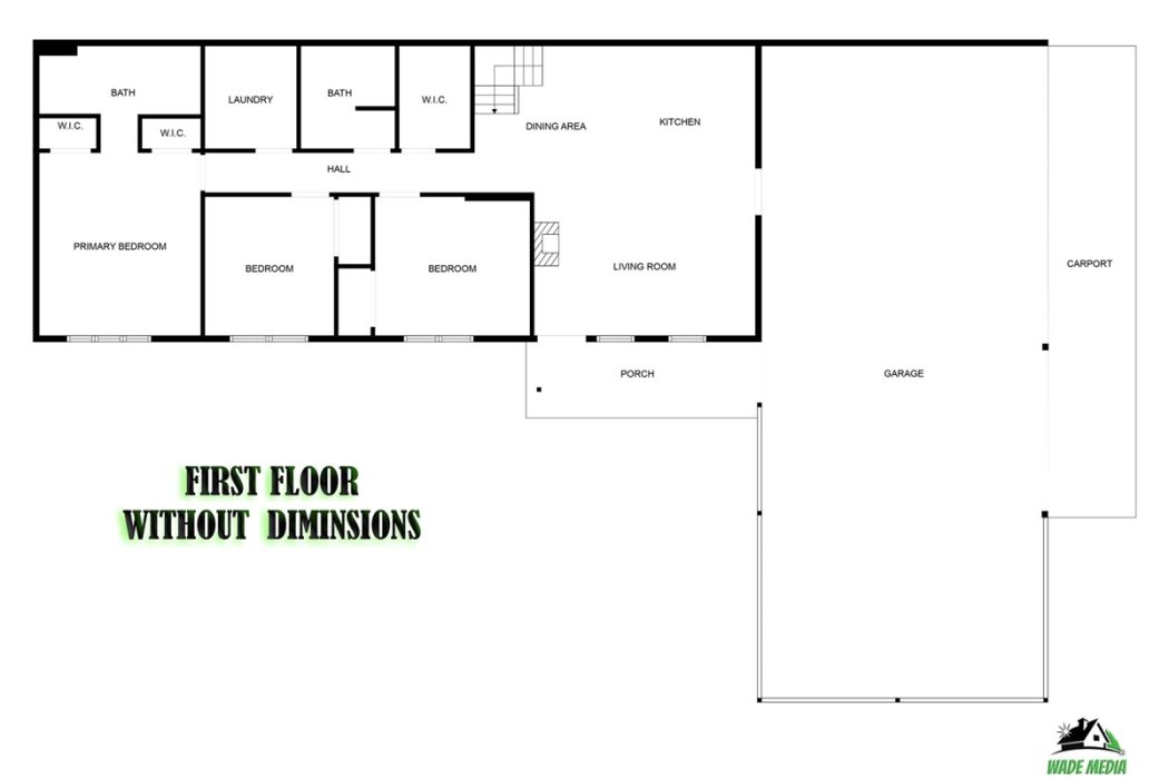
Walk-Out Earth Shelter Home
Built in 1988, this partially underground, walk-out earth shelter home offers 2,651 sq. ft. of heated and cooled living space. Constructed with 4-inch thick concrete interior walls and a 13-inch thick concrete ceiling, the home is designed for exceptional energy efficiency, naturally staying cool in the summer and warm in the winter, reducing energy costs while maintaining year-round comfort.
Additionally, there is a 2-foot crawl space between the concrete ceiling and the floor of the bonus room, allowing for easy electrical access and repairs.
Kitchen (Updated in 2009): Features under-cabinet lighting, a tile backsplash, and durable tile flooring.
Living Room: Boasts vinyl plank flooring, a propane log fireplace, neutral tones, and a charming wood plank ceiling.
Bathrooms:
Guest Bath: Features a single vanity with a granite countertop, textured neutral walls, and a tub/shower combo.
Primary Bath: Includes a double vanity, glass tile backsplash, and a tub/shower combo.
Bonus Spaces & Additional Features
Laundry Room: Equipped with electric washer/dryer hookups, linoleum flooring, and an electric hot water tank.
Upstairs Bonus Room: Offers wood-look laminate flooring, a wood plank ceiling, ceiling fan, pellet stove, and double doors leading outside.
Outdoor Spaces: A 2-car attached carport and a large patio, perfect for entertaining or relaxing in nature.
Utilities & Location
Electric: OG&E
Water: Rural Water
Sewer: Septic System
Propane: 250-gallon tank
Prime Location for Outdoor Enthusiasts
Whether you love hunting, fishing, boating, biking, or camping, this property places you near incredible outdoor adventures:
15 miles to Lake Wister State Park
20 miles to Ouachita National Forest
35 miles to Fort Smith, AR
3.5 hours to Dallas, TX
PROPERTY FEATURES:
Country Home, Large Patio
RV Storage, Small Pond
Mountain Views, Large Lot,
Near National Forrest,
Partial Underground, Barn
Near Wister Lake, Near Hiking
Near Hunting, Fishing Outdoors
Near Hochatown,, Broken Bow
Country Homes
Equine Property
Home in Town


























