Property Description
Western
Colorado high-country ranch acreage with log home, greenhouse, ponds, and
deeded National Forest access—private, scenic, and built for mountain living,
recreation, or investment.
Drive
country roads to the high-country peaks of Grand Mesa—the largest flattop
mountain in the world—where remote, quiet privacy surrounds you among
whispering pines and shimmering aspen trees. A long winding gravel drive leads
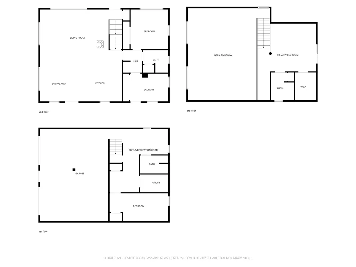
to a fully fenced 30-acre mountain ranch featuring a 2½-story, 2,592 sq ft
lodge-style log home overlooking sweeping valleys, canyons, and the Battlement
Mesa, Sunnyside, and Bookcliff mountain ranges—areas known for wild horse
sanctuaries and bighorn sheep sightings.
Step
across the covered wraparound deck and through leaded glass embellished doors
into a warm, inviting interior with wood-paneled walls, hickory hardwood
floors, soaring ceilings and expansive insulated windows framed by log beams.
Natural light pours into the open-concept living, dining, and kitchen
areas—ideal for entertaining or everyday comfort. The kitchen features
stainless steel counters, an island with chef’s propane gas cooktop and bar
seating, wood base cabinetry with open shelving, a deep copper farmhouse sink
with arched spray faucet, under-counter electric convection oven, and
split-door refrigerator. A full bath with copper sink, vanity, and closet,
along with a large laundry/mud room with outside access adds convenience for
cleanup times. The main-floor bedroom offers easy living, while additional
small deck access invites fresh mountain air and views. Warm up by the wood
stove on crisp mountain days and nights, supported by mini-split A/C and hot
water propane and electric baseboard heat. Upstairs, a loft-style primary
retreat overlooks the main level and features a spacious walk-in closet,
private balcony deck, and full bath with double vanity, linen closet, and tub.
The fully finished basement offers flexible living space with a multi-purpose
area, additional bedroom, storage, utility room, and a ¾ bath with walk-in
shower. An attached oversized heated 2-car garage with concrete floors and auto
door openers completes the home. Accent features include sliding barn doors,
ceiling fans, unique lighting, and hardwood/tile flooring to enhance the beauty
of this home.
Outside
find fenced mountain grass pastures, two seasonal spring-fed ponds, chicken
coop, and storage buildings. A professional greenhouse setup opens the door to
year-round growing, homesteading, or income potential with electric, heater,
dehumidifier, and drip/spray irrigation to support a self-sufficient lifestyle.
Ample vehicle and RV parking. Well and septic systems in place. With deeded
National Forest access, explore, hike, or hunt directly from your own land.
Located
near Collbran with access via Highways 330 and 65 to the I-70 corridor, and
just minutes to Powderhorn Mountain Resort and Vega State Park. Nearby Collbran
and Mesa offer services for residential needs. Relax and enjoy abundant
wildlife sightings and views on your own private mountainside acreage under
blue Colorado skies and star-studded nights. Whether you’re searching for a
Colorado ranch, mountain home, recreational retreat, or investment land, this
high-country acreage delivers.
Western
Colorado Ranch Property Near Collbran & Grand Junction | Plateau Valley
Living
History is
alive in the Plateau Valley with homestead ranches and generational ranching
families. This property is near the community of Mesa with restaurants,
community center, churches, PO, RV Park with a C-store and cabin rentals, fire
department, and lots of friendly residents. The nearby historic western town of
Collbran offers many services and events throughout the year. Highway 330 is
the main throughway.
Collbran
is a historical town with some of the original structures founded in 1908. Many
of these buildings present an old time western front along with modern building
to house the businesses– a bank, grocery store, post office, restaurants, a
fitness center, library, gift shops, motels, auditorium, churches, hardware
store, police and fire department, realty office, a weed control service,
Forest Service, a feed and supply store, automotive store, schools, medical and
emergency clinic, vet services, therapy center and diner that offer additional
services for the communities. 4H and FFA and school events are supported with
commitment and enthusiasm from everyone. Area activities include Collbran
Heritage Days, Cowboy Christmas, many rodeos, and occasional a cattle drive
through town and country roads.
A short
scenic drive to I70 takes you to Grand Junction with adjoining towns of
Palisade, Clifton, Grand Junction, and Fruita that span several miles along I70
with major shopping, colleges, schools, hospitals, regional airport, and more
amenities for residential and business needs. Stop at any one of the museums or
visitor centers to learn more about the history and what the region has to
offer. The area is known for its mild winters, sunny days, and all year
recreation from the high desert to the nearby mountaintops.
Mountain
Living in Western Colorado Near Grand Mesa & Collbran
Hwy 65
also known as the historic scenic byway over Grand Mesa is the main
thoroughfare traveled by locals and tourists. Local landmarks such as the
Beehive, Lands’ End, Powderhorn Ski Resort slopes, the Battlement mountains,
Sunnyside, Plateau Valley are just a few of the well-known historic attractions
in the area. The rural community of Mesa consists of a fire department, state
shop, churches, PO, restaurants, RV Park with a C-store, hair salon, medical
clinic, community center, real estate office, and a liquor store. Surrounding
ranches and residential homes stretch across the valley.
Hwy 330
takes you to the nearby western town of Collbran offering more services for
residents including a fire department, police dept, city hall, state shop,
bank, auto repair, feed store with 24 hour fuel pumps, restaurants, churches,
schools, medical center with emergency care, vet office, hardware store, 24/7
gym, grocery store, real estate and insurance office, PO, spray office, locker
plant, and specialty stores. Rodeo grounds host many events throughout the
summer. The western store fronts add to the historic aura with an occasional
cattle drive through the areas. Grand Junction is approximately an hour away
off of I70 with major shopping, regional airport, colleges, hospitals, high
desert recreation, and much more.
Colorado
Mountain Recreation Property Near Grand Junction & Grand Mesa
Highway 65
known as the scenic byway of Grand Mesa – the largest flat top mountain in the
world with over 300 lakes for fishing, boating, camping, lodges, and thousands
of trails for hiking, ATV, biking, horseback riding, cross country skiing,
snowmobiling, and hunting districts. Photo opportunities abound for the amateur
or professional photographer. Travel to the south side of Grand Mesa and arrive
in Cedaredge and the Surface Creek Valley with spreads of fruit orchards,
ranches, and residential homes surrounding the small-town life. Powderhorn Ski
Resort sits at the southern base of Grand Mesa with ski slopes for all ages and
skills with winter and summer activities and is a short drive from this
property.
Highway
330 follows Plateau Creek and winds through Plateau Valley among ranches and
residential homes to Vega State Park. Vega State Park consists of mountain
recreation of all kinds with boating, fishing on Vega Reservoir surrounded by
camping sites, hiking, hunting districts, private residential cabins and by BLM
and National Forest grounds. Vega Lodge offers cabin rentals, restaurant and
much more. Wildlife and bird sightings, including Bighorn Sheep, Elk, Deer,
Eagles, Sandhill Cranes, and more are common in all areas.
Within an
hour’s drive explore the high desert recreation areas around Grand Junction
known for the Colorado National Monument, canyons, dinosaur finds, hiking and
biking trails, valleys, rivers and lakes for fishing and boating to name a few
of the recreation attractions. Find many challenges with the popular wheeling
on the Jeep trails in the area.
Bring your
vision to this prime Western Colorado property and enjoy all that mountain
living has to offer.
PROPERTY HIGHLIGHTS:
| Colorado Log Home For Sale | Mesa County Mountain Home | Julie Piland 970-985-0913 | Hunting | Recreational Property |
| Mountain Home for Sale | Mountain Home for Sale in CO | Amber Feller 970-986-0851 | Log Homes & Cabins | |
| Western Colorado Mountain Home | Colorado Mountain Log Home | Country Homes | Mountain Property |

































