Property Description
Discover 196 acres of pure Ozark beauty with this rare
offering in Dora, Missouri — the perfect combination of secluded living, income
potential, and outdoor adventure. Nestled in the heart of the Missouri Ozarks,
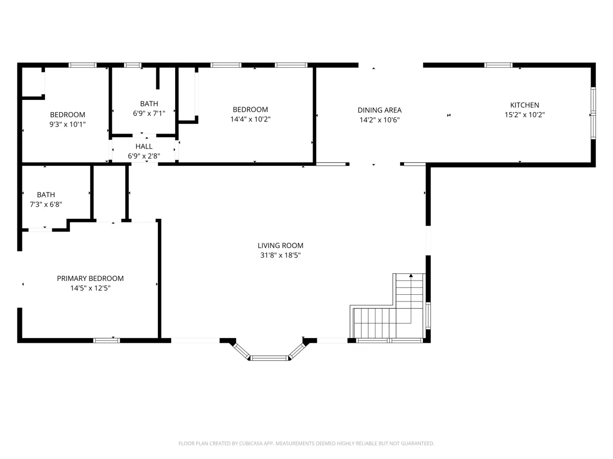
this property features a 3-bedroom, 1-bath farmhouse with classic country
charm, surrounded by rolling hills, mature hardwoods, and a mix of open pasture
and marketable timber. With convenient state highway frontage, yet privacy
abounds once you arrive.
Whether you’re seeking a hunting retreat, a working farm, or
your forever home in the country, this land offers endless potential. The
acreage includes open fields ready for livestock, a sturdy barn, and wooded
ridges that are home to abundant wildlife — including trophy whitetail deer and
wild turkey. Towering oak timber add both natural beauty and long-term
investment value.
Located near the crystal-clear North Fork of the White River
and thousands of acres of Mark Twain National Forest, outdoor enthusiasts will
find no shortage of fishing, floating, and trail-riding opportunities just
minutes away. With rich natural resources, rolling terrain, and a balance of
pasture and woodland, this is a property where you can live off the land,
manage timber, or simply enjoy the peace and quiet of rural Missouri.
Whether you dream of raising cattle, managing wildlife, or
escaping to your own private hunting paradise, this 196-acre property delivers.
Don’t miss your chance to own a true Ozark legacy — where adventure,
self-sufficiency, and serenity meet.
PROPERTY HIGHLIGHTS:
| 196 Ozark Acres | Marketable Timber Value | Close to Mark Twain Forest | Farms for Sale | Land for Sale |
| 3 Bed, 1 Bath Farmhouse | State Hwy Frontage | Near North Fork River | Home in Town | |
| Barn & Pastureland | Trophy Deer & Turkey | Country Homes | Hunting |





























