Property Description
Coming Soon! Stunning New Home by RAD Homes Inc. – Atlanta, MI
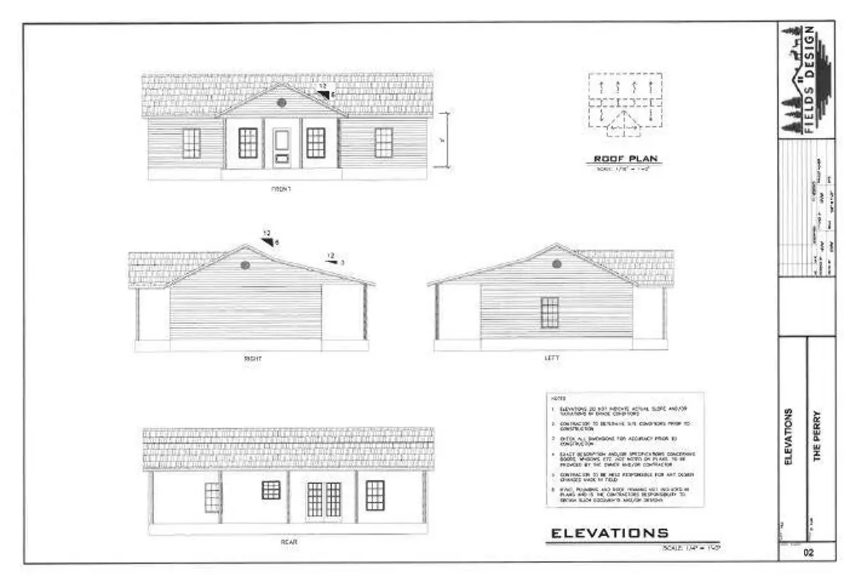
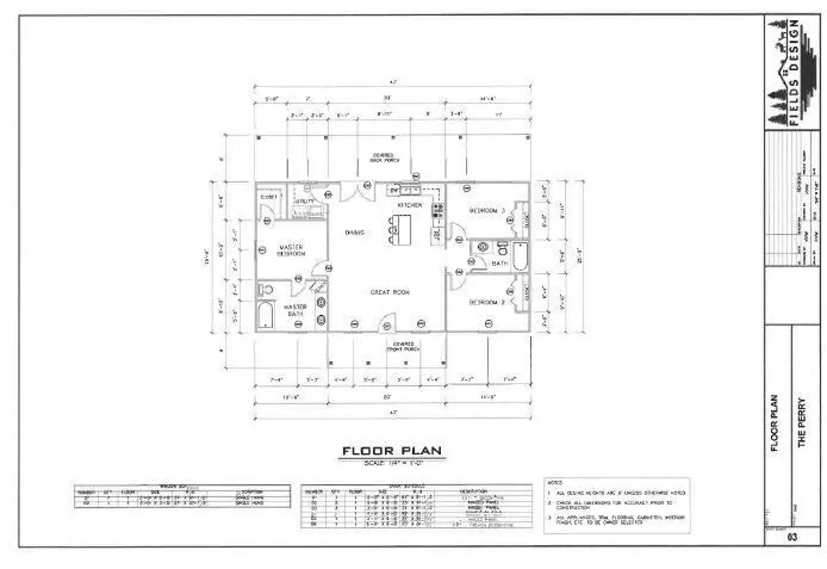
Experience modern comfort and timeless style in this beautifully crafted home! Built with high-quality materials and designed for efficiency, this home features:
✨ Granite Kitchen Counters – Sleek, durable, and perfect for entertaining
✨ Luxury Vinyl Plank Flooring – Stylish and built to last
✨ Cozy Carpeted Bedrooms – Soft and inviting for ultimate relaxation
✨ Master Suite with Tiled Shower – Your private retreat
✨ Appliances Included – Washer, dryer, stove, and fridge
✨ Energy-Efficient Jen Weld Windows & Mini-Split System – Comfort year-round
✨ Inviting Front Deck – Perfect for enjoying Michigan’s natural beauty
Prime Northern Michigan Location!
Located near Atlanta, MI, this home offers small-town charm with incredible access to the outdoors. Enjoy 350,000+ acres of state land for hunting, fishing, and exploring. The Thunder Bay River flows through town, and you’re conveniently positioned between Gaylord and Alpena for shopping, dining, and entertainment.
Easy Access & Customization Options!
Situated on a county-maintained road and close to Atlanta schools, this home is perfect for families, retirees, and outdoor enthusiasts. Plus, finishes are negotiable with the builder—make it truly your own!
Don’t Miss This Opportunity! Contact us today to learn more!
PROPERTY HIGHLIGHTS:
| prime northern mi location | vinyl plank flooring | inviting front deck | Fishing | |
| appliances included | carpeted bedrooms | close to town | Hunting | |
| granite kitchen counters | energy-eff windows mini-split | Country Homes | Recreational Property |










