Property Description
Welcome to this beautifully updated and well-maintained home
on 2.1 acres, offering a peaceful country feel just minutes from the school and
heart of Gainesville, MO. Originally built in 2001, this charming wood-sided
home has been completed and thoughtfully upgraded over the past 10 years for
modern comfort and function.
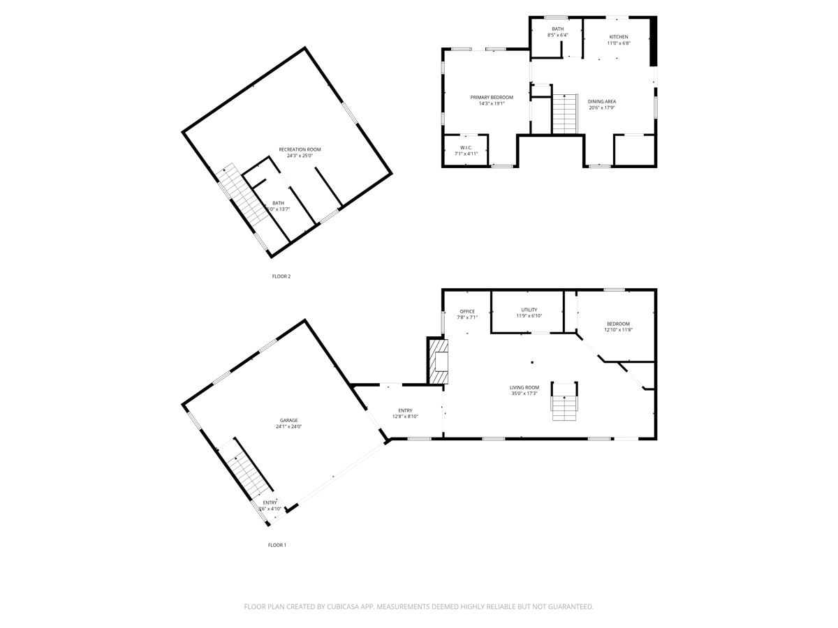
Inside, you’ll find 1,738 sq ft of living space featuring 3
spacious bedrooms and 2 full bathrooms. The open-concept living area is
highlighted by a cozy ventless propane fireplace — perfect for gathering on
cool evenings. 
Step outside and soak up the scenery — this property offers
ample outdoor living space including an 18’ above-ground ozone-filtered pool
with surrounding deck (set to be completed soon). As well as a balcony from
primary bedroom that has steps to the lower deck.  It’s the perfect setup for summer fun,
entertaining, or relaxing under the stars.
Need more space or looking for rental income? The oversized
2-car garage includes a finished loft area with its own bathroom and
kitchenette area, complete with private entrances from both inside the garage
and outdoors. This flexible bonus space is ideal for guests, a home office, or
short-term rental like Airbnb.
With low-maintenance siding, ample parking, and a great
location close to town conveniences and schools, this home is a rare find
offering value, space, and lifestyle. Whether you’re seeking a private retreat,
multi-use property, or your forever home — this one checks all the boxes.
Don’t miss your chance to own this move-in-ready gem with
room to grow and income potential built in!
PROPERTY FEATURES:
Updated wood-sided home
2.1 peaceful private acres
Ventless propane fireplace
3 spacious bedrooms
2-car garage + storage
Guest loft w/ kitchenette
Ozone-filtered pool w/ deck
Near Gainesville school
Country Homes
Home in Town
Investment & Income
Log Homes & Cabins
        
































