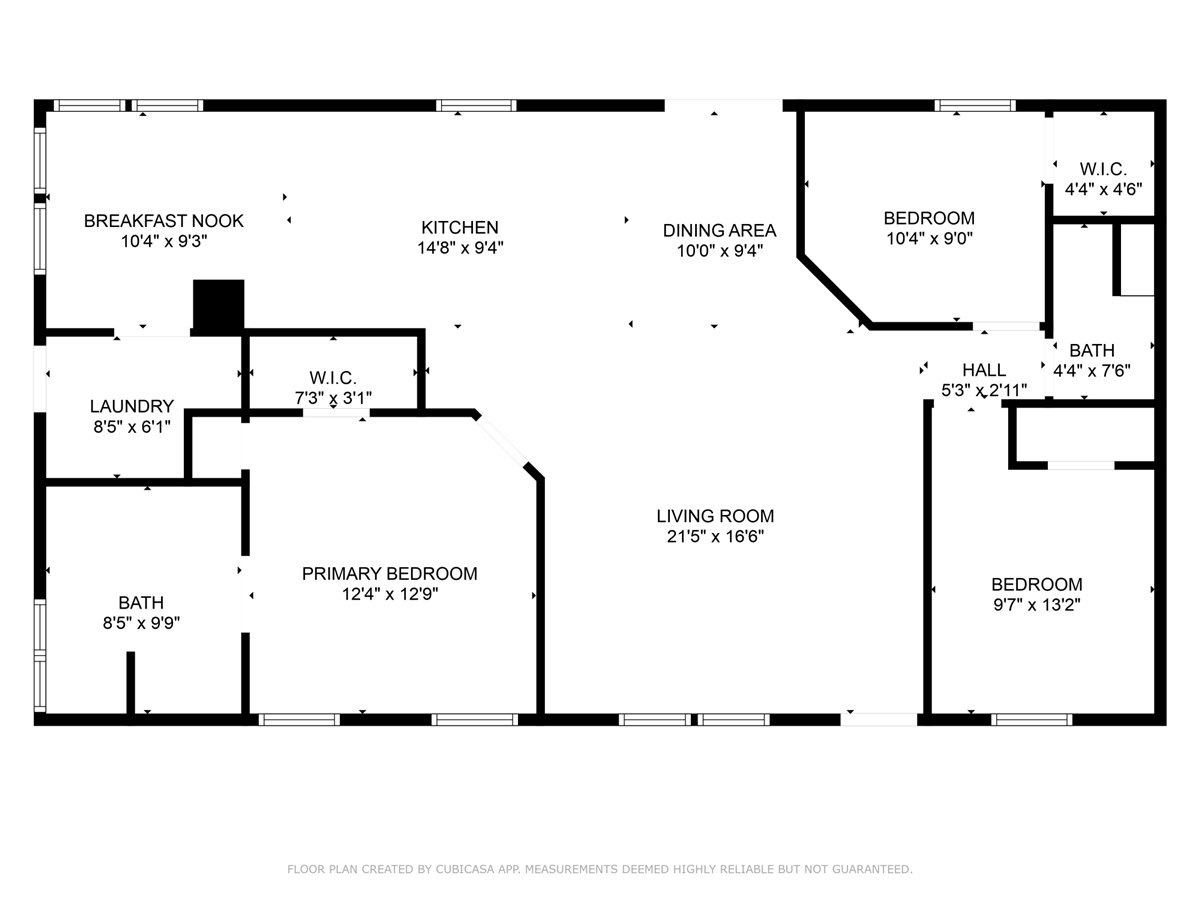
Property Description
Dreaming of peaceful mornings, lake adventures, and your own
private slice of the Ozarks? This beautifully remodeled 3-bedroom, 2-bathroom
home sits on 3 serene acres just one mile from Bull Shoals Lake access and only
two miles from the nearest boat ramp—offering the perfect haven for lake lovers
and outdoor enthusiasts alike.
Step inside and be greeted by a completely updated interior
where modern comfort meets rustic charm. Every detail has been thoughtfully
designed, from the luxury vinyl plank flooring to the brand-new stainless-steel
appliances gleaming in the spacious, open-concept kitchen. Whether you’re
preparing a fresh catch from the lake or hosting weekend guests, this home is
move-in ready and designed for easy living.
Wake up to the sounds of nature and enjoy coffee on your
porch with a seasonal lake view, surrounded by towering trees and the gentle
rustle of Ozark breezes. With three acres of usable land, there’s plenty of
room to store your boat, build out your dream space, or simply relax under the
stars around a firepit after a day on the water. A 20′ x 30′ shop building
offers ample parking, storage, or workspace, and an additional 20′ x 30′
concrete pad is ready for your future garage, guest house, or expansion project.
Tucked away in a quiet, private setting, this property
offers the seclusion you crave without sacrificing access to world-class
fishing, boating, and recreational activities. Whether you’re looking for a
full-time residence, vacation home, or income-producing retreat, this is the
perfect basecamp for your Bull Shoals adventures.
Opportunities like this don’t come often—schedule your
showing today and start living the lake lifestyle you’ve been dreaming of!
PROPERTY FEATURES:
Fully Remodeled Interior
Luxury Vinyl Plank Floors
Stainless Steel Appliances
20×30 Shop Building
Room for Boat or RV
Seasonal Lake Views
Quiet, Private Location
1 Mile to Lake Access
Country Homes
Home in Town
Investment & Income
Land for Sale
Recreational Property
        































