Property Description
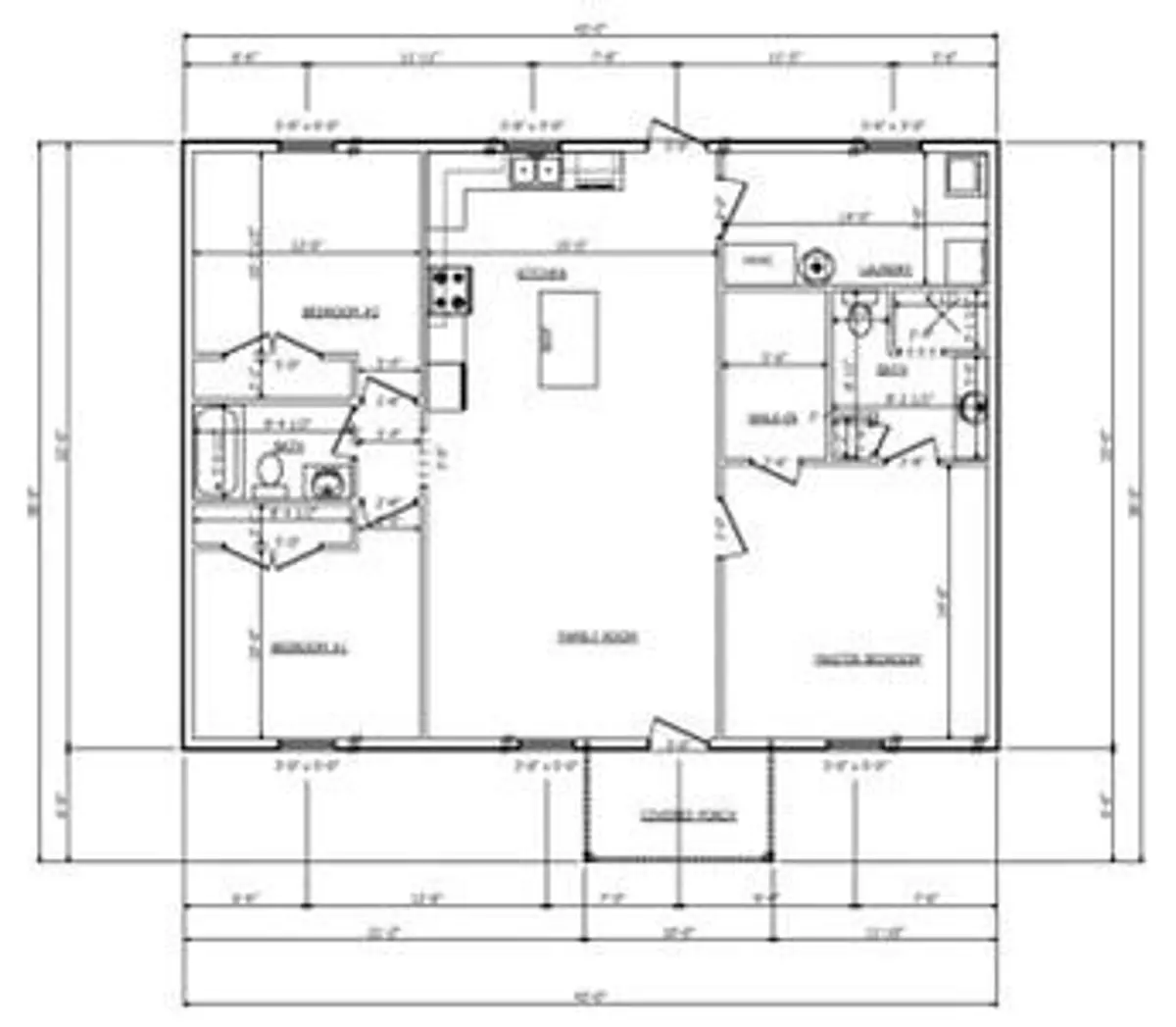
This stunning 1,436 sq. ft. custom-built home by Rick Harris Construction is currently under construction and offers high-end upgrades throughout. Featuring 3 bedrooms, 2 baths, and a desirable split floor plan, this home is designed for comfort and style. The HardiePlank siding ensures durability, while the beautifully treed, quiet lot provides a serene setting on a paved road. Located within Cross City, city limits, enjoy the convenience of city water, garbage pickup, and all town amenities. Depending on the purchase timeline, buyers may have the opportunity to select custom finishes. Don’t miss this chance to own a quality-built home in a prime location.
PROPERTY HIGHLIGHTS:
| single family | Country Homes | |||
| house for sale | Home in Town | |||
| florida sale | Retirement & Active Adult |






